北京某现代寺庙建筑群设计毕业论文
2021-03-13 00:01:23
学 号: | 0121206220115 |

毕业设计说明
题 目 | 北京现代寺庙建筑群 |
学 院 | 土木工程与建筑学院 |
专 业 | 建筑学 |
班 级 | 1201 |
姓 名 | 王翦 |
指导老师 | 王晓 |
2017 | 年 | 6 | 月 | 10 | 日 |
毕业设计题目:北京现代寺庙建筑群设计
武汉理工大学 王翦 建筑学1201
设计说明:
设计基地遵照题目为自由选择。我选择的是北京市南五环与房山线相交处附近的一片树林地形

选择初衷是想选择一块较为自由又有一定水文环境的地形
本设计被北京某地块内现代建筑形式的寺庙设计。
寺庙命名为新月寺。设计出采用现代建筑形式的、美观、满足现代佛教日常活动需要的现代建筑寺庙群。随着时代的发展和社会的进步,为了适应现代社会的需要,适应各类人群物质生活与精神信仰的需要,采取有效的应对措施,是世界各地佛教建筑发展的主要手段。因此除了佛寺之外,许多佛教图书馆、托儿所、敬老院、居士林、医疗所等设施都应运而生,以增加社会上对传统文化的认同。
目前国内外的现代寺庙建筑越来越多,其趋势为了满足现代佛教活动的需求,由百分之百的传统寺庙组成逐渐增加了现代寺庙建筑的百分比以应对一定的现代寺庙活动的建筑需求。比如庙会,等等。
伴随着这样的趋势,佛教建筑不可避免地会有一些采用现代建筑形式的趋势。
采用现代建筑形式的优点:
采用现代的方法来表达传统建筑的功能是继承与发展的重要方法,例如在有限的土地上采用多层建筑布局来适应膜拜、禅堂、讲法、内务等方面的需要;利用大空间纵向布置,留出更多的空间给信徒使用,既满足了功能的新需要,又发展了教义的精神。
提供具有一定参考意义的设计实例。
有关建筑形式的分析:现代寺庙建筑群需要的是更高的土地利用率、更丰富的功能以及更方便的建设方式。同时要保证一定的佛教氛围。
建筑形式为简化的传统建筑。保留了传统建筑的屋檐,但屋檐下的复杂构造如斗拱等可以视情况而进行适当简化,同时可以对材料进行适当替换,从而简化做法,使建造过程更加贴近现代化建设。
本建筑群中采用的建筑形式的思考主要为上述方式,在屋檐下结合玻璃和玻璃幕墙材质,进行立面组合,以营造现代感,同时又尽量保证传统建筑带来的佛教氛围。
假设把传统建筑由下而上分为三部分,那么我保留了最上面的部分。
玻璃材质与传统材质相结合、近景与远景相结合,产生特别的现代感。

布局设计特点:
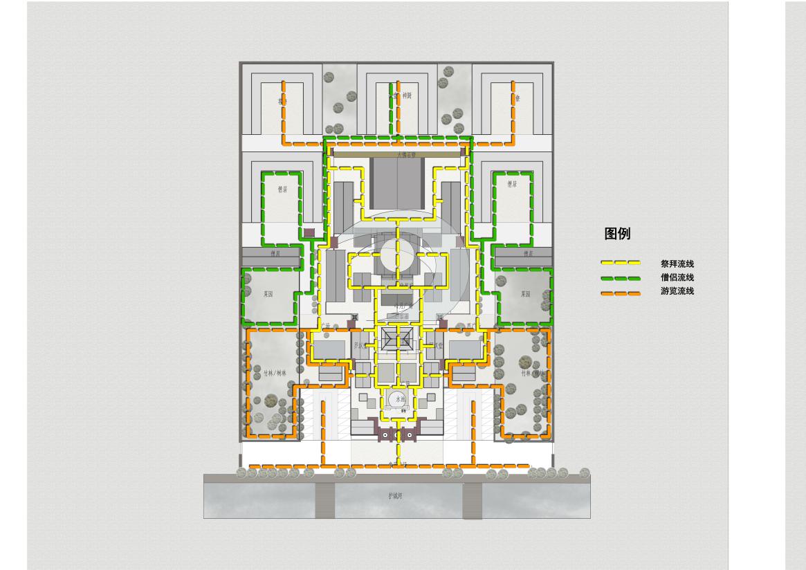
依照题目的北京建筑寺庙群而选择的三段式布局。并围绕中轴对称布置神圣祭拜区。参考了王府布局设置。

流线设计:

沿用了传统建筑屋顶以上的部分,采用了部分玻璃构件。

布局不同于传统建筑,但同样营造了佛教建筑氛围和仪式感。
建造成本较古建筑低。
给人佛教与时具进的时代感体验。

美感与艺术感。方面,大殿的设计灵感来自于天津火车站的穹顶油画精卫填海
具有更多的仪式感和美感。
目的及意义(含国内外的研究现状分析)
1目的:设计出采用现代建筑形式的、美观、满足现代佛教日常活动需要的现代建筑寺庙群
提供具有一定参考意义的设计实例。
1、本建筑群为佛教祭祀与修行场所,主要功能为出家僧日常侣修(和尚或尼姑,有设计者根据自己的体验自定)行之所,兼为一般信众提供祭祀与短期修行之处,全部建筑要求采用现代的建筑形式,主要建筑要求体现禅宗精神。 2、完成毕业设计文本,其中包括建筑策划篇与建筑设计篇,建筑设计达到方案设计深度。
2意义:本设计的社会意义,在于为现代寺庙建筑群的设计、发展方向,提供可供参考的设计实例,方便思考现代寺庙建筑群的发展方向,及将来的设计方向。个人意义在于体现个人的设计能力。
3国内外现状分析:
随着时代的发展和社会的进步,为了适应现代社会的需要,适应各类人群物质生活与精神信仰的需要,采取有效的应对措施,是世界各地佛教建筑发展的主要手段。因此除了佛寺之外,许多佛教图书馆、托儿所、敬老院、居士林、医疗所等设施都应运而生,以增加社会上对传统文化的认同。
目前国内外的现代寺庙建筑越来越多,其趋势为了满足现代佛教活动的需求,由百分之百的传统寺庙组成逐渐增加了现代寺庙建筑的百分比以应对一定的现代寺庙活动的建筑需求。比如庙会,等等。
伴随着这样的趋势,佛教建筑不可避免地会有一些采用现代建筑形式的趋势。
采用现代建筑形式的优点:
采用现代的方法来表达传统建筑的功能是继承与发展的重要方法,例如在有限的土地上采用多层建筑布局来适应膜拜、禅堂、讲法、内务等方面的需要;利用大空间纵向布置,留出更多的空间给信徒使用,既满足了功能的新需要,又发展了教义的精神。
在新加坡、台湾、日本以及国内的一些地区都逐渐出现了一些现代建筑形式的寺庙。
本次设计顺应佛教随时代发展的方向,以现代的建筑形式满足佛教建筑在精神、宗教和使用上的现代要求。
研究(设计)的基本内容、目标、拟采用的技术方案及措施
1研究内容:
研究本次设计的设计方向:社会佛教市场对现代建筑形式的需求形式及需求量的考量。即需要满足的功能和形式,需要多少现代形式的寺庙建筑群。具体表现为建筑形式、构造、布局、建筑群的规划。
考量本次设计的建筑的具体装饰,结构、建筑形式、构造、布局、建筑群的规划。
2设计内容、目标:
设计出现代建筑形式的、满足现代佛教建筑社会功能需要的、美观的寺庙建筑。
完成任务书中的主要任务,满足任务要求:
以下引用自选题任务书
2、本建筑群为佛教祭祀与修行场所,主要功能为出家僧日常侣修(和尚或尼姑,有设计者根据自己的体验自定)行之所,兼为一般信众提供祭祀与短期修行之处,全部建筑要求采用现代的建筑形式,主要建筑要求体现禅宗精神。 2、完成毕业设计文本,其中包括建筑策划篇与建筑设计篇,建筑设计达到方案设计深度。
3拟采用的技术方案:新中式建筑,宗教文化演化式建筑,塔式建筑,德国幕墙技术、现代建筑的建造技术、生态建筑、上人屋面、承重屋顶,修建传统建筑的木作营造术、瓦石营造术、等等
参考文献
[1]袁牧.中国当代汉地佛教建筑研究[D].北京:清华大学,2008.
[2]王波.中国佛教建筑的时代特点与发展趋势展望[D].济南:山东大学,2009.
[3]王琨.佛境——现代佛教建筑的建筑意[D].厦门:厦门大学,2014.
[4]王吉.苏州地区佛教建筑空间和装饰研究[D].苏州:苏州大学,2009.
[5]时阳.台湾当代佛教建筑的文化特色及其启示[D].西安:西安建筑科技大学,2013.
[6]梁氏凉.中越佛教寺院建筑对比[D].厦门:厦门大学,2014.
[7]冯博.中国佛教建筑中的象征文化研究[D].长沙:湖南大学,2012.[63]李玲.中国古建筑和谐理念研究[D].济南:山东大学,2011.
[8]宋元园.中国现代佛教建筑装饰艺术的传承与创新[D].济南:山东建筑大学,2012.
[9]王琳.基于现代简约风格下的佛寺建筑空间设计研究[D].昆明:昆明理工大学,2013
中国古代佛教建筑的场所特征 王媛,路秉杰


