湖北商贸学院众创空间室内设计方案1毕业论文
2020-04-09 15:24:37
摘 要
随着时代的发展、使用人群的变化,现有的众创空间面临使用功能缺失、交通流线不合理等众多问题,同时新时代的大学生们摈弃了原有呆板的、僵硬的办公环境,期望出现具有时代感、科技感的空间设计,营造轻松舒适的工作共享氛围,满足大部分人的工作需求。本文通过对众创空间概念的重新定义,将空间重新划分,打破原有直线型空间,将几何元素融入空间设计中,使空间穿插错落,增强了空间的穿透力和层次感,同时研究大学生创业者在众创空间中的心理分析,使新型众创空间符合环境心理学和人机工程学,营造舒适轻松工作娱乐环境,最后进一步提出湖北商贸学院众创空间的设计方案,致力于打造一个现代的新型众创空间。
关键词:众创空间、新型办公空间、环境心理学
Abstract
With the development of the times and the changes in the use of people, the existing public creation space is faced with many problems such as lack of use functions and unreasonable traffic lines. At the same time, college students in the new era have abandoned the original rigid and rigid office environment. It is expected that there will be a space design with a sense of time and technology to create a relaxed and comfortable work sharing atmosphere to meet the needs of most people. This paper redefines the concept of the creation space, divides the space, breaks the original linear space, integrates the geometric elements into the space design, intersperses the space, and enhances the penetrating power and layering sense of the space. At the same time, it studies the psychological analysis of college students 'entrepreneurs in the public creation space, makes the new public creation space conform to environmental psychology and ergonomics, creates a comfortable and relaxed work and entertainment environment, and finally puts forward the design plan of the public creation space of the Hubei Institute of Commerce and Trade. Devoted to create a modern new kind of public creation space.
Key words: Interior design,new office space, environmental psychology
目录
摘 要 I
Abstract II
第1章 绪论 1
1.1研究的目的及意义 1
1.2课题研究内容和目标 1
第2章 前期调研分析 2
2.1众创空间概述 2
2.2项目背景 4
2.3交通区位 4
2.4目标人群 5
2.5设计风格 5
第3章 设计分析 6
3.1设计说明 6
3.2 元素提取 6
3.3图纸分析 7
3.4效果图分析 10
3.5实体模型展示 15
第4章 总结 16
参考文献 17
致 谢 18
第1章 绪论
随着时代的发展和创业形式的演变,人们对众创空间的空间设计有了更多的要求,原有的与传统办公空间相似的众创空间已经不能满足目标人群的需求,需要设计师通过功能改良和外观造型改良满足创业人群的要求。
本次设计根据客户要求,针对现有众创空间办公空间单一、功能分区不合理等问题,将湖北商贸学院众创空间设计为一个功能分区合理、交通路线流畅、办公氛围轻松自然的众创空间。
1.1研究的目的及意义
在众创空间蓬勃发展的今天,依托学校的众创空间创业人群大多数为大学生,他们是新时代新环境的产物,对众创空间的功能分区,设施设备,创业服务有了更多的需求,他们致力于追求更舒适、轻松、绿色、人性化的办公空间,需要体现他们的创业理念和时代要求,而现有众创空间的空间形态与传统办公空间的空间形态比较类同,空间的利用以及功能流线规划也不合理,缺少对使用人群的分析和环境心理学以及人机工程学的研究,不能满足大学生创业者的需求,创业者在众创空间的创业效率受到极大的影响[1]。通过对理论知识的总结,以及大学生创业者在办公空间中的行为及心理的相关分析,提出湖北商贸学院众创空间的设计方案,致力打造现代的新型办公空间,满足大学生创业者的需求,尽可能地把专业和创业相结合,把人才培养和地方需求相结合,打造多元化、智能化的具有高等学校特色的众创空间[2]。
1.2课题研究内容和目标
本次设计的是根据客户需求,通过研究其文化意识心态、环境心理学、人机工程学等方面,致力于将湖北商贸学院众创空间的室内设计脱离于传统办公空间的空间形态比较类同的局面,满足创业者的需求的问题,使功能分区和功能流线得到合理地规划。提高创业者在众创空间的创业效率。把人才培养和地方需求相结合,打造多元化、智能化的具有湖北商贸学院特色的众创空间。
第2章 前期调研分析
2.1众创空间概述
众创空间是顺应创新创业时代发展而特定出现的产物,随着近几年互联网技术的高速发展,信息快速传达,应用而生的众创空间服务于不同年龄、不同行业的创业者,它是具有较低成本、服务功能齐全、资源共享便利的新型创业服务共享平台的统称。
2.1.1国内外现状
(1)国内现状
 我国国务院印发《关于发展众创空间推进大众创新创业的指导意见》(国办发(2015)9号)。文件对有关建设众创空间提出了总体要求,重点任务和组织实施[3]。国家积极号召大学生自主创新创业,由于高校科研资源条件比较好,可以发挥学生的专业及特长,由教师带领学生创业、学生团体亦可自主创业等优势,以大学生为主体的高校积极响应国家号召,建设了如清华大学i center等依托高校的众创空间。在众创空间蓬勃发展的今天,众创空间室内设计还是有许多不足:1):国家对众创空间的相关政策很多,多为创业模式、运营模式、创业指导方面文件,但缺少对空间室内设计的关注,现有的文献中对众创空间室内设计的研究比较少,对众创空间使用人员的行为和心理需求分析也是极少[1]。(2):我国现有的众创空间的室内设计大多源于传统办公空间设计,而众创空间的运营模式和传统企业办公间有巨大差异,原有的传统办公空间不能满足现有需求,且原有传统办公空间设计较为僵化,不符合新时代的需求。(3):根据对现有众创空间的研究,众创空间的主要使用者为90后大学生,但却缺少对90后大学生心理和行为的具体分析。
   图2.1  传统办公空间(图片来自360图片)图2.2传统办公空间(图片来自360图片)
(2)国外现状

我国众创空间是综合了国外创客空间、联合办公空间、创业社区演变而来,具有中国特色的服务于创新创业的空间,而在国外并没有众创空间这个名称,但早在十多年前,国外发达国家已经建设了这种形式的创新创业空间,特别是以欧美发达国家为代表的,他们对众创空间的研究比我国的众创空间早[1]。为中国众创空间的形成产生深刻影响。相比国内为了提高空间的利用率,国外的众创空间室内设计更偏向于营造使创业人员感觉比较舒适休闲,减少压抑紧张的氛围,营造以人为本的环境体验空间。如谷歌爱尔兰办公空间设计,其中包含了餐饮区,工作区,休闲娱乐区,会议讨论区。为了使员工能交流分享,空间大多使用敞开式工作环境,就如较为严肃的会议空间,都改造的轻松舒适,采取半围合状态,并且增加员工活动区域,使其爱好得以发挥。

图2.3餐饮区(谷歌爱尔兰办公空间)       图2.4办公区(谷歌爱尔兰办公空间)           
图2.5休闲娱乐区(谷歌爱尔兰办公空间) 图2.6会议讨论区(谷歌爱尔兰办公空间)
2.1.2众创空间的定义
众创空间是顺应创新2.0时代用户创新、开放创新、协同创新、大众创新趋势,把握全球创客浪潮兴起的机遇[4]。随着近几年互联网技术的高速发展,信息快速传达,应用而生的众创空间服务于不同年龄、不同行业的创业者,以灵活性、多用性著称,包含办公、休闲、商务、展示等多种功能,是顺应时代创新创业特点和需求,通过市场化机制、资本化途径和专业化服务构建的低成本、全要素、便利化、开放式的新型创业服务平台的统称[5]。
2.1.3众创空间的类型
根据我国从2015-2018公布的国家级众创空间名单,归纳其特点,将我国众创空间分为五大类,分别是:创客空间、创业社区、联合办公空间、创业咖啡。
(1)创客空间
创客空间可以根据创客空间提供的现有条件,吸引不同年龄、行业的多领域人才在这里一起分享想法,动手实现创意。
(2)创业社区
创业社区是围绕创业者提供工作、学习、创业、生活、消费各方面服务的综合性的创业空间,创业投资短期回报缺损可由创业社区的服务收费弥补。
(3)联合办公空间
联合办公是美国提出的全新办公概念,将不同行业的人组织在一起,共享办公空间、基础设施和服务设备,降低了各个小型工作室的租赁成本,同时另一方面不同行业的人可以相互交流合作,增加创业新思想。
(4)创业咖啡
创业咖啡以咖啡馆为原型,除了正常提供给创业者办公空间,同时为人才交流、投资、合作提供场所,创业咖啡通过举办创业主题活动、吸引创业企业及投资者们参加,促成企业合作,加快企业发展。
2.2项目背景
湖北商贸学院位于湖北省武汉市洪山区,是国家批准的民办普通高校,其学校涵盖工科、文科、艺术等多个专业领域,培养人才众多,有良好的校风及文化氛围,其中有先进的教学楼、图书馆、体育馆、以及众多实验室,满足各专业同学的科学研究,是众创空间建设的优选之地。湖北商贸学院众创空间面积共3500平面,共计办公楼四层,根据与业主沟通,力图营造办公化、科技化、市场化为一体的众创空间。
2.3交通区位
湖北商贸学院位于武汉市洪山区雄楚大道临侧,靠近交通主干线,附近有雄楚高架及地铁二号线,道路四通八达,交通便利,方便路演的召开,人群集会,便于企业融资。
项目位置               道路流线                 周边用地
图2.7湖北商贸学院地理位置(作者自绘)
2.4目标人群
主要使用者为湖北商贸学院的在校大学生及已毕业正在创业的90后大学生,他们来自多个专业:如艺术与设计学院、机电学院、经济学院、管理学院。其中使用男性约占百分之六十、女性约占百分之四十。新时代的大学生对空间的审美和功能使用也有了跟多的要求,他们不再满足于简单的空间分割,更倾向与敞开的办公环境,可以相互交流分享创意,同时他们的审美较以往的大学生或者社会人士也更优秀更先进,他们追求具有文化意识体现的空间动态,而不是传统直线型简单的空间形态,对于办公氛围的需求,他们更注重个人的领域性和私密性,以往全封闭的办公空间和全敞开的办公空间都不能再满足其需求,并且,传统的呆板僵化,过大的增加容积率的办公空间也是其不喜的,他们追求与生活的品味和工作质量,希望能有轻松愉快的工作氛围。
图2.8主要使用对象(作者自绘)
2.5设计风格
根据客户需求,将湖北商贸学院众创空间打造为现代、科技风,主张“少即是多”多的原则,摒弃了繁复的装饰,用简单明了的几何线条来表达空间形态。颜色上多采用木色,营造轻松温暖的工作环境。在空间划分上也不再采用单一的墙体划分,通过家具、植物、格栅,将空间功能划分,空间灵活生动。
第3章 设计分析
本次设计主要对元素提取、平面布置、功能分区详细介绍,包括:大厅、产品展示区、多功能路演室、独立创客办公室、会议室、敞开创客工位、休闲洽谈区。
3.1设计说明
根据客户需求,将众创空间划分为两层,一层为短暂性暂留区域,要体现设计感、现代带感、空间感,所以一层设计为偏几何形态的现代造型;二层为办公区域,由于目标人群长期驻留,需要更轻松舒适的工作氛围,所以运用植物造景,景观砖石,在运用一层元素的同时将空间打造的更为生态,满足目标人群对自然的向往。
3.2 元素提取
3.2.1 元素演变
从众创空间的定义来看,主要是为了目标人群创新创业,在科技、艺术等方面进行交流分享,合作共赢。而湖北商贸学院众创空间的主要使用人群是大学生,他们象征着青春、活力、多元化、可变性,通过在众创空间中相互交流,拼接重组,使得其更快发展。所以最后我联想到了七巧板。
七巧板通过三角形、平行四边形、正方形这三种形状、可以组合成不同样式,代表了创新、变化,同时不同形状可以融合在一起形成正方形,说明其团结性,最后,七巧板具有几何形态美感,符合现代大众审美,使用其做空间元素,可打造空间的科技感和时代感。
图3.1概念推演过程(作者自绘)
3.2.2元素变化方式


在本次设计中,将七巧板元素进行变化,通过切割、挤压、搭接、排列、折叠、错视、分离、支撑等变化手法将元素应用,使空间具有穿透力和层次感。
3.2 概念变换方式(作者自绘) 图3.3 概念变换方式(作者自绘)
3.2.3元素应用
元素应用于墙体拼接、天花、室内桌椅、书架等方面。图3.3为二层敞开工作区域的办公桌,整个办公桌以七巧板元素拼接而成,造型感强烈的同时也有很强使用功能,它可以根据不同的使用情况、不同的使用人数进行任意拼接,并且桌子中间预留种植绿植的位置,可种植耐阴植物,吸收二氧化碳释放氧气,改善室内空气质量。
3.3图纸分析
经过对平面图的仔细推敲,经过几版设计,最后敲定其彩色平面图、功能分区图、交通流线图、材质分析图、植物配置图。
3.3.1平面布置
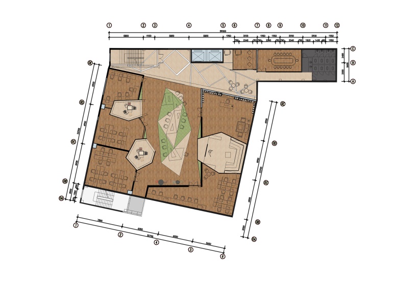
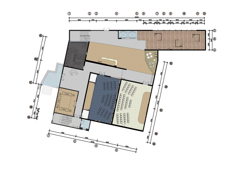
通过几何形态的划分,最大程度的利用空间,由于前期调研中发现现有众创空间缺少独立的产品展示区域,所以特意将一层具有落地窗,视野和光线良好的区域作为产品展示空间。

图3.4 一层彩色平面图(作者自绘)                3.5层彩色平面图(作者自绘)
3.3.2功能分区
现有众创空间室内设计形式还是与传统办公空间相类似,将空间分割成一个个小空间,没有考虑到使用人群的特定需求,因此在考虑到使用者的心理需求以及对功能的特殊要求,将两层空间分割为:一层设有大厅、休息区、贵宾接待室、产品展示区、多功能路演室;二层为开敞式创客工作区、半封闭创客工作区、独立创客办公室、会议室、休闲洽谈区。
首先设置了两个多功能路演室,一个为正常路演室,另一个为多功能路演室,使使用人群在非路演时间,可以充当活动场所,增进创业人员创意分享,合作共赢。同时为了接洽投资人,专门设置了贵宾接待室,使投资人与创业人能有更舒适、安全的环境相互交流融资事宜,提高融资率。
考虑到人对私密性的需求,将二层工作区域分为敞开式、半敞开式、封闭式三种空间构成,满足不同使用者的需求,敞开式的工作区域也适合目标人群分享创意,提高工作效率,提高企业创业成功率。并且在二层中设置了半敞开的会议室,创业者可以在这里开会,在空余的时间也可以充当休闲区域,在这里安静的学习。
图3.6 一层功能分区图(作者自绘)          图3.7 二层功能分区图(作者自绘
)
3.3.3流线分析
湖北商贸学院共有三个入口,每个走廊最小宽度不小于两米五,方便人们行进,工作人员互不干扰,交通流线合理。

以上是毕业论文大纲或资料介绍,该课题完整毕业论文、开题报告、任务书、程序设计、图纸设计等资料请添加微信获取,微信号:bysjorg。
相关图片展示:








        
            
