多层连锁酒店设计(结构方案:钢框架结构)毕业论文
2020-02-18 10:00:04
摘 要
本文借助PKPM、结构力学求解器、天正建筑、Office和CAD等辅助软件,对多层连锁酒店(结构方案:钢框架结构)进行设计以及相关计算。
设计主要内容为多层连锁酒店(结构方案:钢框架结构)的建筑施工图绘制、钢框架结构设计、楼梯与地基设计、楼板配筋以及结构施工图绘制。
其中建筑施工图借助天正建筑进行绘制,结构布置使用 PKPM软件进行辅助绘图,荷载统计通过人工计算,并使用PKPM软件计算得到结果进行对比检验,内力计算通过人工计算部分内力并与结构力学求解器计算结果进行对比,内力组合借助Office中的Excel绘制表格得到结果,截面验算与节点设计、楼梯与基础的设计通过人工计算并借助天正建筑和CAD等辅助软件进行绘图。最后使用天正建筑与CAD完成对结构施工图进行绘制。
关键词:施工图的绘制;PKPM计算;钢框架设计;基础设计
Abstract
With the help of PKPM, structural mechanics solver, Tianzheng Architecture, Office and CAD, this paper designs and calculates the multistorey chain hotel (structural scheme: steel frame structure).
The main contents of the design are the drawing of construction drawings of multi-storey chain hotels (structural scheme: steel frame structure), the design of steel frame structure, the design of stairs and foundations, the reinforcement of floors and the drawing of structural construction drawings.
Among them, the construction drawings are drawn by Tianzheng Building, the structural layout is aided by PKPM software, the load statistics are calculated by manual method, and the results obtained by PKPM software are compared and checked. The internal force calculation is carried out by manual method and compared with the results calculated by structural mechanics solver. The internal force combination is drawn by Excel in Office. As a result, cross-section checking and node design, staircase and foundation design are carried out by manual calculation and drawing with the help of Tianzheng Architecture and CAD and other auxiliary software. Finally, using Tianzheng Architecture and CAD to complete the drawing of structural construction drawings.
Key Words:Drawing of Construction Drawing; calculation of PKPM; Design of Steel Frame; Foundation design
目 录
第1章 绪论 1
第2章 设计资料和结构布置以及结构计算单元 3
2.1 工程名称 3
2.2 建筑地点 3
2.3 工程概况 3
2.4 结构布置 3
2.5 结构计算单元 4
第3章 荷载计算 5
3.1 截面估计 5
3.2 梁柱的线刚度 5
3.3 框架几何计算简图 7
3.4 竖向荷载标准值计算 7
3.4.1 恒荷载标准值计算 8
3.4.2 框架梁竖向荷载统计 10
3.4.3 框架柱以及梁上节点集中荷载计算 11
3.5 水平荷载标准值计算 15
3.5.1 风荷载 15
3.5.2 地震作用 17
3.6 pkpm软件输出荷载 20
第4章 内力计算 23
4.1 恒荷载标准值内力计算 23
4.2 活荷载标准值内力计算 28
4.3 风荷载标准值内力计算 30
4.4 地震作用标准值内力计算 35
第5章 内力组合与框架结构设计 37
5.1内力组合 37
5.2 框架梁截面验算 53
5.2.1 截面特性 53
5.2.2 最不利内力 53
5.2.3 强度验算 54
5.2.4 梁的整体稳定性 54
5.2.5 梁的局部稳定验算 54
5.2.6 挠度验算 55
5.2.7 梁截面确定 55
5.3 框架柱截面验算 56
5.3.1 截面特性 56
5.3.2 最不利内力 56
5.3.3 强度验算 57
5.3.4 平面内稳定性验算 57
5.3.5 平面外稳定性验算 60
5.3.6 局部稳定验算 62
5.4 节点抗震验算 63
5.5 节点域的抗剪承载力验算 64
5.6 边柱柱节点设计 65
5.6.1 连接螺栓计算 66
5.6.2 连接板厚度的确定 66
5.7 中柱柱节点设计 67
5.7.1 连接螺栓计算 68
5.7.2 连接板厚度的确定 68
5.8 柱脚设计 69
5.8.1 确定底板尺寸 69
5.8.2 确定底板锚栓直径 69
5.8.3 柱底剪力 70
5.8.4 确定底板厚度计算 70
5.8.5 靴梁计算 71
5.8.6 竖向隔板计算 72
第6章 楼梯与地基设计以及楼板配筋 73
6.1 楼梯设计资料 73
6.2 踏步板设计 73
6.2.1 荷载计算 73
6.2.2 内力计算 74
6.2.3 截面承载力计算 74
6.3 楼梯斜梁计算 75
6.3.1 荷载计算 75
6.3.2 内力计算 75
6.3.3 强度验算 75
6.3.4 梁的整体稳定性 76
6.3.5 梁的局部稳定验算 76
6.3.6 挠度验算 76
6.4 平台板计算 76
6.5 平台梁计算 76
6.5.1 荷载计算 76
6.5.2 内力计算 77
6.5.3 强度验算 77
6.5.4 梁的整体稳定性 78
6.5.5 梁的局部稳定验算 78
6.5.6 挠度验算 78
6.6 地基设计 79
6.6.1设计资料 79
6.6.2 荷载计算 79
6.6.3 地基承载力设计值 80
6.6.4 初步选择基底尺寸 82
6.6.5 验算持力层地基承载力 82
6.6.6 抗震验算 83
6.6.7 基础抗冲切验算 84
6.6.8 配筋验算 85
6.7 楼面板配筋 86
第7章 结论 87
参考文献 88
致 谢 89
第1章 绪论
毕业设计的目的及意义:
随着科技的发展,人们逐渐意识到绿色发展的重要性。因此钢材料作为可回收环保材料,在建筑业中的应用得到了飞速发展。而钢结构的应用也必定是未来建筑发展趋势。钢框架结构作为钢结构的一种结构形式也将进一步应用于各类建筑中。
毕业设计是我们本科生进入社会前对大学期间学习的各类知识的综合实践应用环节,是对已学知识的进一步巩固学习和拓展,是对我大学期间的学习、研究与实践的全面总结,也是对我综合素质和实践能力的培养与检验。
我的毕业设计题目是多层连锁酒店设计(结构方案:钢框架结构),通过本次设计,可以让我了解框架结构的应用范围,掌握钢框架结构多层酒店的构造形式、设计流程,也可以让我对建筑设计和结构设计有了进一步的掌握。同时,这次毕业设计可以让我对大学里学习的相关知识进行一个系统总结和应用,并通过应用来将知识融会贯通,锻炼我将理论联系实际的能力。毕业设计还可以提高我的专业技术素养,提供我操作专业软件进行建筑结构计算和画图的能力。
本次毕业设计的另一个重要意义是对今后我参加工作打下良好的基础。在开始毕业设计之前,我已通过应聘签约了中建钢构公司,而我的毕业设计题目选择的是钢框架结构设计,正好和我毕业后工作的方向相关,可以让我提前对以后进入公司后的工作有一定的了解,有助于我在毕业后更快的适应工作形式与工作内容。
国内外的研究现状分析:
由于钢构件的截面利用率较高,因此通常选用无粘结钢构件,这使其成为一种有趣、经济的替代方案。而其在梁与柱中的应用将会节省大量的的空间,腹板Ⅰ型钢梁的试验侧屈曲性能与腹板Ⅰ型钢柱的试验屈曲性能也是非常优良的[1]。但是钢结构的耐火性能差,经常需要热防护[2]。而被动热防护系统,如在钢结构表面应用喷涂耐火材料的钢结构绝缘等,价格昂贵,占钢结构建筑成本的很大一部分。可变火灾荷载作用下钢框架结构的层间稳定性需要在以后进一步研究提升[3]。
毕业设计的研究内容和预期目标:
本次毕业设计的主要内容为钢框架结构的多层连锁酒店设计,其中包括框架梁、框架柱、地基以及各种节点的设计,然后我还需要对所设计的多层连锁酒店的建筑施工图和结构施工图进行绘制。
这次毕业设计的预期目标是总结大学四年所学的知识,并在做设计的途中粗略了解钢框架结构的设计内容,也可以借此机会熟悉各种建筑设计或结构设计规范,最终能够对自己步入社会后工作有一定的启发与帮助。再者通过建筑施工图与结构施工图的绘制,了解并熟悉各种绘图软件,也可以进一步的提升自我。
第2章 设计资料和结构布置以及结构计算单元
2.1 工程名称
多层连锁酒店设计(结构方案:钢框架结构)
2.2 建筑地点
某城市
2.3 工程概况
本工程为拟建在某市的多层酒店,结构方案采用钢框架结构,采用压型钢板现浇混凝土楼板和柱下独立基础;
酒店的总建筑面积约为:8000m2;
建筑总高度:13.5m;
建筑层数:4层;
层高:3.0m;
抗震设防烈度为7度;
基本地震的加速度为 0.10g,第二组;
基本风压为0.30 kN/;
基本雪压为0.50kN/;
地面粗糙度为B类;
基础场地类别为Ⅱ类;
建筑重要性类别为丙类;
使用年限为50年。
2.4 结构布置
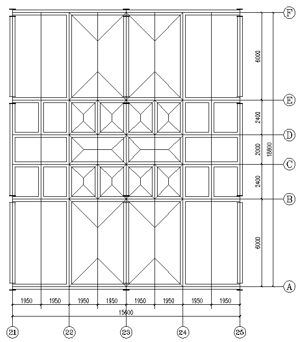
参考《房屋建筑学》和《土建专业实训指导与实例》,并根据《房屋建筑制图统一标准》进行绘制,详情见3号结构施工图[4] [5] [6]。
2.5 结构计算单元

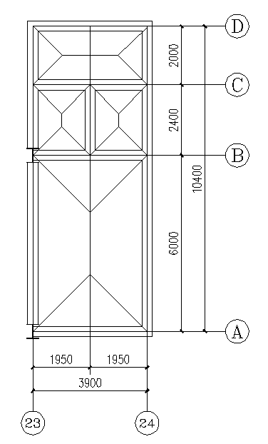
图2.1 23号轴上一榀框架的计算单元
由于结构对称,可将计算单元简化为下图

图2.2 计算单元简图
第3章 荷载计算
3.1 截面估计
梁柱构件均采用Q345B钢,截面预估如下:
柱:
,截面特性:
,
,
自重:

梁:
,截面特性:
,
,
自重:

3.2 梁柱的线刚度
梁的线刚度
边框架梁:

中框架梁:

柱的线刚度
底层柱L=4.2m:

2-4层柱L=3m:

表3.1 柱刚度修正系数的计算
楼层 | 简图 | K |
|
一般层 |
|
|
|
底层 |
|
|
|
表3.2 柱的线刚度
| |||||||
横向2~4层 | |||||||
柱编号 |
|
|
|
|
| 根数 |
|
边柱 | 110316 | 3.000 | 0.531 | 0.210 | 30877 | 2 | 169566.1 |
中柱 | 110316 | 3.000 | 1.157 | 0.366 | 53906 | 2 | |
横向底层 | |||||||
柱编号 |
|
|
|
|
| 根数 |
|
边柱 | 78797 | 4.200 | 0.744 | 0.453 | 24301 | 2 | 111374.3 |
中柱 | 78797 | 4.200 | 1.619 | 0.586 | 31386 | 2 | |
3.3 框架几何计算简图

图3.1 框架几何计算简图(尺寸标注单位:mm,标高单位:m)
3.4 竖向荷载标准值计算

以上是毕业论文大纲或资料介绍,该课题完整毕业论文、开题报告、任务书、程序设计、图纸设计等资料请添加微信获取,微信号:bysjorg。
相关图片展示:















值计算












