高强混凝土-内置钢板剪力墙抗剪承载能力分析毕业论文
2020-04-07 14:14:25
摘 要
钢板-混凝土组合剪力墙充分发挥了钢板和钢筋混凝土材料的优势,其应用和研究受到了广泛的关注。目前对高强混凝土-内置钢板组合剪力墙的研究仍不足,有待通过更多的实验数据和深入的研究分析,对其力学性能和破坏机理作进一步了解,为工程实践提供科学依据和技术支持。
本文利用Abaqus软件,根据已有的试验建立了5个高强混凝土-内置钢板组合剪力墙的精细有限元模型,将模拟结果与试验结果对比,验证了模型的正确性。通过36组模型研究钢板厚度、混凝土强度和轴压比对组合墙体抗剪承载力的影响,结果表明在一定范围内,适当增大钢板厚度、混凝土强度和轴压比能够有效提高组合剪力墙的抗剪承载能力。最后,结合中国、欧美和日本的相关结构设计规范,对高强混凝土-内置钢板组合剪力墙的设计和承载力计算公式提出建议。
关键词:高强混凝土;组合剪力墙;有限单元法;抗剪承载力
Abstract
The steel plate-concrete composite shear wall gives full play to the advantages of steel plate and reinforced concrete materials. Its application and research have attracted extensive attention. At present, the research on built-in steel plate-high strength concrete composite shear wall is still insufficient. It needs further experimental data and in-depth research and analysis to further understand its mechanical properties as well as failure mechanism, providing scientific basis and technical support for engineering practice.
In this paper, Abaqus software was used to establish five detailed finite element models of built-in steel plate-high strength concrete composite shear wall according to some existing tests. The simulation results were compared with the experimental results to verify the correctness of the models. The effect of steel plate thickness, concrete strength and axial compression ratio on the shear capacity of the composite wall was studied by thirty-six sets of models. The results showed that within a certain range, it is effective to improve the bearing shear capacity by increasing the thickness of the steel plate, concrete strength and axial compression ratio. Finally, with the related structural design specifications of China, Europe, America and Japan, the suggestions for both the design of the built-in steel plate-high-strength concrete composite shear wall and the calculation formula of its bearing capacity were proposed.
Key Words:high-strength concrete; composite shear wall; finite element method; Shear bearing capacity
目 录
第1章 绪论 1
1.1 研究背景 1
1.2 国内外研究现状 1
1.3 本文研究的内容和问题 3
第2章 高强混凝土-内置钢板剪力墙有限元模型介绍 4
2.1有限元软件简介 4
2.2 几何模型及单元选取 4
2.3 材料及截面属性 4
2.3.1 混凝土材料 4
2.3.2 钢材 7
2.4约束、载荷及边界条件 8
2.4.1结构内部约束 8
2.4.2边界条件 8
2.4.3载荷 8
2.5网格划分 9
第3章 高强混凝土-内置钢板剪力墙有限元模型的验证分析 11
3.1概述 11
3.2模型尺寸及材料参数 11
3.2.1 SPRCW系列试件 11
3.2.2 GB系列试件 13
3.3 有限元结果与试验结果对比 15
3.4 不同状态下构件的性能分析 17
3.5 小结 25
第4章 高强混凝土-内置钢板剪力墙抗剪承载力参数分析 26
4.1有限元参数分析方案 26
4.2参数分析结果 27
4.2.1轴压力 27
4.2.2钢板厚度 30
4.2.3混凝土强度 31
4.3小结 32
第5章 高强混凝土-内置钢板剪力墙抗剪承载力分析 34
5.1各国规范介绍 34
5.1.1中国规范 34
5.1.2美国规范和欧洲规范 34
5.1.3日本规范 34
5.2有限元结果与规范的对比分析 35
第6章 结论 40
6.1本文完成的工作 40
6.2结论 40
6.3展望 40
参考文献 42
致 谢 43
第1章 绪论
1.1 研究背景
随着经济水平提高和人口的大量增长,高层建筑在城市中的需求不断攀升,发展迅速。城市建筑在高度增长的同时,其功能和类型也趋于复杂化和多样化。现代高层建筑强调抗震性能,抗震设计反映了国家经济建设的水平、科学研究的成果以及工程实践的经验。剪力墙能够起到抵抗横向荷载的作用,被广泛用于结构设计。高层建筑底部构件承受的荷载往往很大,因此对剪力墙的结构提出了更为严格的要求。传统的钢筋混凝土剪力墙整体性好、抗侧刚度较大,具有一定的抗震性能,但在强震作用下延性和耗能能力相对较弱,混凝土易开裂,且现场施工量大,在高层建筑中难以避免结构尺寸过大的问题。
钢板-混凝土组合剪力墙是在内藏钢板支撑的混凝土剪力墙和钢板剪力墙的基础上发展演变而来的,主要有两种形式:双侧外包钢板-混凝土组合剪力墙和内置钢板-混凝土组合剪力墙。对于前一种形式,其设计标准已纳入国内外的设计规范中。而内置钢板的形式虽然也已经应用于实际工程,但其力学性能和破坏机理还有待更深入的研究。钢材具有强度高、刚度大、延性好的特点,是良好的建筑材料,在混凝土中加入钢板可以提高剪力墙的承载力、抗侧刚度、耗能能力,不仅可以抵抗地震作用,而且能够减小高层建筑底部剪力墙的厚度,减轻自重,增加使用面积。同时,两侧的混凝土对钢板起到支撑和保护作用,使钢板保持在平面内工作,不易发生屈曲,不易被腐蚀,充分发挥钢板的力学性能。显然,这种组合结构克服了混凝土和钢材的缺点,充分发挥各自的优势,具有广阔的应用前景。
高强混凝土相比于普通混凝土,最大的优势在于抗压强度高,因此如果将其用于高层建筑的剪力墙结构,就可能进一步减小墙体厚度,增加使用空间,提高经济效益。但高强混凝土材料本身属于脆性材料,强度越高,延性越差,抗震性能不佳。JGJ3-2010[1]提出剪力墙的混凝土强度等级不宜超过C60,保证混凝土剪力墙的延性要求。目前对高强混凝土-内置钢板剪力墙的研究不够全面,需要更多的试验和分析增强其在工程中的实用性和可靠性,为高层结构设计提供充分的理论和技术支持。
1.2 国内外研究现状
组合剪力墙作为一种新型抗侧力构件,正处于发展阶段,由于形式多样,目前国内外针对高强混凝土-内置钢板剪力墙的研究相对较少。近年来的相关研究如下所述。
2004年,Zhao、Astaneh[2]等介绍了两种组合剪力墙体系的试验研究,并对试验结果进行了总结和讨论,提出了钢板-预制混凝土组合剪力墙的概念,根据预制墙板与工字钢边框之间是否存在缝隙,即混凝土板是否参与抗剪,将组合剪力墙进行分类,同时通过试验讨论了两种组合剪力墙的优缺点,分析了连接螺栓在组合结构中的作用效果。
2011年,Arabzadeh[3]等进行了1:3的3层钢框架-钢板组合剪力墙的模型试验。试验证明混凝土板能够对钢板起到有效地约束作用,防止钢板出现平面外变形,减小结构的初始缺陷。由于此类剪力墙重量小,减小了施加在立柱和基础系统上的荷载。同时,试验结果表明,此类剪力墙在抵御中度频繁地震时表现出优越的耗能能力。
2013年,S Rafiei[4]等建立了双侧外包钢板混凝土剪力墙结构的有限元模型,并讨论了建模使用的约束方式对模拟结果的影响,比较了不同混凝土强度和钢筋强度对组合剪力墙性能的影响,并通过参数研究确定钢板与混凝土的连接件之间的最佳距离。所建立的有限元模型能够较好地模拟平面荷载作用下组合墙体的受力行为,具有较高的精度。
2014年,S Epackachi[5]等对钢板混凝土组合剪力墙的抗震性能进行了相关研究,对4个试验墙体进行了循环荷载下的测试试验,对壁厚、高宽比和配筋率等因素进行了参数分析,并利用LS-DYNA建立了相应的有限元模型,抗剪承载力的有限元结果与试验结果很接近。对组合剪力墙进行循环荷载下的性能分析,建议在墙体的基础附近使用拉杆而不用抗剪螺栓,以改善地震响应。
2016年,R Rahnavard[6]等使用ABAQUS建立了五种类型的三维有限元模型,针对材料模型和单元类型,研究复杂剪力墙结构的真实物理行为。解释了结构部件的建模细节,钢与混凝土之间的接触条件,相关的边界条件以及循环荷载的本构关系。用实验数据验证荷载与位移曲线,峰值荷载和滞后特性。研究结果显示,与其他类型相比,在剪力板设置混凝土钢框架的结构具有更好的耗散能量功能,系统的横向刚度不受连接件与混凝土保护层厚度之间的距离变化的影响。数值计算结果表明,通过增加混凝土厚度可以限值剪切钢板的屈曲,并且通过减小连接件的距离来增加能量耗散。
2006年,吕西林[7]等对16片钢板混凝土组合剪力墙进行了循环加载试验,评估其承载能力、变形能力和能量耗散能力等抗震性能以及失效检测模式、骨架曲线、延性指数和粘性阻尼系数等。比较不同长宽比、钢板厚度和剪切连接方式下剪力墙的性能指标。试验结果表明,增加钢板是提高剪力墙强度和变形能力的有效途径,并提出了该组合剪力墙的抗剪承载力计算公式。
2010年,梁兴文[8]等设计了6片带边柱的高强混凝土组合剪力墙,边柱采用高强度环加固。研究了结构的破坏形式和抗震性能,并分析了轴压比,剪跨比,高强度箍筋的数量和范围对延性、耗能能力和破坏形态的影响以及构件在三种不同状态下的位移。研究表明,边界柱可以有效地限制墙板,提高构件的变形和能量耗散能力。证明了根据轴压比和位移延性要求设置高强度箍筋的边界柱能够保证高强度混凝土剪力墙延性满足设计要求。
2011年,蒋冬启[9]完成了9片C80混凝土组合剪力墙往复水平加载试验,对比了普通钢筋混凝土、设置端部型钢以及内置钢板三种形式的剪力墙,研究了构件的抗弯承载力、抗震性能和破坏形式,提出组合剪力墙压弯承载力的计算公式。
2015年,朱爱萍[10]设计了2片型钢混凝土剪力墙和18片钢板混凝土剪力墙进行抗剪性能研究;另有2片型钢混凝土剪力墙试件和8片钢板混凝土剪力墙进行抗弯性能试验,所有试件均采用C80混凝土。研究了不同剪跨比下组合剪力墙的破坏形式,分析了轴压比、含钢率和构造措施等因素对组合剪力墙抗震性能的影响,建立了相应的有限元模型,并对内置钢板混凝土剪力墙提出设计建议。
1.3 本文研究的内容和问题
本文将选取已有的内置钢板-高强混凝土组合剪力墙试验,利用Abaqus有限元软件对构件进行建模和分析,并结合规范讨论此类组合剪力墙的抗剪承载能力,技术路线图如图1.1所示,具体内容如下:
- 根据已有的试验研究结果(蒋冬启[9]的SPRCW1、SPRCW2、SPRCW3试件和朱爱萍[10]的GB2-3-2、GB2-3-3试件),按相同的尺寸、材料参数和荷载大小,选取合适的部件类型、约束方式、网格大小、单元类型,建立相应的Abaqus精细有限元模型。
- 通过Abaqus计算得到组合剪力墙在单调加载下的水平方向位移-荷载曲线,与试验的骨架曲线进行对比,优化参数,改善建模效果,降低最大承载力的误差值,验证建模的可靠性和正确性。
- 对内置钢板-高强混凝土剪力墙结构进行参数研究,主要讨论轴压力、混凝土强度、钢板厚度对组合剪力墙承载能力的影响,并分析加载过程中构件的状态。
- 将有限元模型的抗剪承载力与各国规范给出的钢板-混凝土组合剪力墙承载力公式进行对比,得到相应的结论,并对内置钢板-混凝土剪力墙承载力的设计提出建议。

图1.1 技术路线图
第2章 高强混凝土-内置钢板剪力墙有限元模型介绍
2.1有限元软件简介
随着计算机速度的大幅度提高,成本的逐渐下降,以及程序功能的日益强大为工程和科研领域带来了新的革命,仿真模拟已成为试验以外最常见的科研手段。Abaqus是近年来兴起的有限元商业软件,虽然起步较晚,但由于其具有强大的非线性求解功能,得到了迅速的发展和广泛的使用。由于Abaqus的混凝土材料模型已被大量使用和认可,因此非常适用于土木工程领域。由于试验设备受限,因此对于钢混结构的抗震试验,多数选择以静态或准静态加载的方式进行。本文的有限元分析选择Abaqus/Standard模块进行求解。
2.2 几何模型及单元选取
钢板混凝土组合剪力墙的几何模型包括混凝土墙体、钢板、型钢和钢筋几个部分。混凝土墙由地梁、墙身、端柱和顶梁(加载梁)合并而成,使用三维实体单元C3D8R。钢板和型钢使用三维壳单元S4R,利用壳模型建立几何体能够节省建模时间,便于修改钢板厚度进行参数分析。实际情况下钢板和型钢通过焊接的方式连接,在有限元模型中将两者合并为一个部件。钢筋可分为墙身的水平分布筋、竖向分布筋和拉筋,端柱的纵筋和箍筋,所有钢筋均采用三维杆单元T3D2。实际情况下钢筋在交点处使用钢丝绑扎等方式进行固定,在建模时将所有钢筋合并为一个部件。
2.3 材料及截面属性
试件用到的材料包括混凝土和低碳钢。下面分别介绍两种材料的本构模型以及截面参数。
2.3.1 混凝土材料
混凝土材料选用Abaqus软件中的混凝土塑性损伤模型(Concrete Damaged Plasticity),由J. Lubliner[11]等提出并由Jeeho Lee[12]进行了修正。由于混凝土的拉压特性不同,因此引入受拉和受压损伤因子分别描述混凝土在反复加卸载后引起的刚度退化程度。混凝土损伤塑性模型如图2.1所示。
Abaqus可对塑性势函数、屈服函数进行自定义,塑性势函数
表达式为:
| (2.1) |
偏心率
取0.1,双、单轴抗压强度比值取1.16,系数K取2/3,膨胀角
的取值范围在25-42之间。

图2.1 混凝土单轴受压-受拉应力应变关系
混凝土受压、受拉损伤变量可按式2.2-式2.3取值:
| (2.2) | |
| (2.3) |
式中bc、bt为受压、受压损伤因子,表示压缩、拉伸塑性应变与非线性应变的比值,V.Birtel[13]建议取值bc=0.7,bt=0.1。
我国混凝土结构设计规范GB50010-2010[14]建议在进行结构非线性分析时,采用的混凝土单轴受压应力-应变曲线方程按式2.4-式2.9计算:
| (2.4) | |
| (2.5) | |
| (2.6) | |
| (2.7) | |
| (2.8) | |
| (2.9) |
式中,
表示混凝土单轴受压应力-应变曲线下降段参数值,按式2.10计算:
| (2.10) |
为混凝土单轴抗压强度代表值,
为与单轴抗压强度
相应的混凝土峰值压应变,按式2.11计算:
| (2.11) |
混凝土的极限压应变按式2.12计算:
| (2.12) |
规范建议采用的混凝土单轴受拉应力-应变曲线按式2.13-式2.17计算:
| (2.13) | |
| (2.14) | |
| (2.15) | |
| (2.16) | |
| (2.17) |
式中,
根据分析的需要可取为混凝土轴心抗拉强度标准值、设计值或平均值;
为与
相应的峰值拉应变,按式2.18计算:
| (2.18) |
曲线参数
按式2.19计算:
| (2.19) |
规范[14]给出的混凝土轴心抗拉强度和弹性模量的计算公式为:
| (2.20) | |
| (2.21) |
式中,
为混凝土立方体抗压强度标准值,
为混凝土立方体抗压强度。
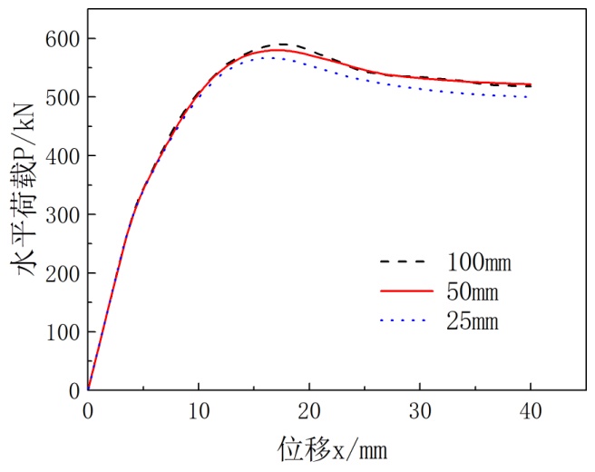
由于混凝土塑性损伤模型需要填写的数据是材料真实应力-非线性应变曲线上的一些点,以及对应的抗拉、抗压损伤因子,而不能直接输入曲线函数,因此通过Matlab程序提取有效数据。计算结果表明,混凝土强度等级提高后,收敛的速度会大幅度下降。采点的间隔对模型数值计算的收敛性有较大影响,经过反复调整后发现,在不影响曲线整体形状的前提条件下,适当减少数据点的个数,尤其是曲线的上升段,这样能够有利于提高计算效率和收敛性,且能够保证结果的精确性;在曲线的曲率变化较大的位置适当增加数据点也可能改善收敛速度。在本文研究的模型中,拉伸本构模型使用不等间隔采点,间隔在
之间,抗压本构模型使用等间隔采点,间隔为
。
以上是毕业论文大纲或资料介绍,该课题完整毕业论文、开题报告、任务书、程序设计、图纸设计等资料请添加微信获取,微信号:bysjorg。
相关图片展示:






























