某高校六层钢筋混凝土办公楼结构设计毕业论文
2020-04-07 14:06:21
摘 要
在当代社会,钢筋混凝土框架结构由于其经济实用,便于设计施工,已经成为主要工业民用建筑的结构形式。在居民楼、学校、办公楼、商业楼等领域得到广泛应用。
本设计为上海市杨浦区某高校办公楼,六层建筑,底层高为 3.6m,其余层高为 3.3m,总建筑面积3400 平方米,抗震设防为7 度,Ⅱ类场地。主体结构采用钢筋混凝土框架结构。
本设计内容包括确定计算简图,梁柱截面尺寸确定、荷载统计、内力计算、内力组合、楼梯设计、楼板设计、基础设计等。
本次设计让我熟悉了以往学到的结构设,楼梯、楼板设计及其配筋的专业知识,综合应用学习的各类知识及技能,为今后的工作打下基础。
关键词:钢筋混凝;框架结构;基础设计
Abstract
In contemporary society, reinforced concrete frame structure has become the structural form of the main industrial and civil buildings because of its economic and practical, easy to design and construction. It is widely used in residential buildings, schools, office buildings, commercial buildings and so on.
This design is designed for a university office building in Yangpu District of Shanghai with a six-story building with a height of 3.6m for the bottom floor and a height of 3.3m for the others. The total floor area is 3400 square meters. The seismic fortification is 7 degrees. The main structure adopts reinforced concrete frame structure.
The content of this design includes determining calculation diagram, Liang Zhu section size determination, load statistics, internal force calculation, internal force combination, staircase design, floor design, foundation design and so on.
This design has familiarized me with the past knowledge of structural design, staircase, floor design and reinforcement. Comprehensive application of all kinds of knowledge and skills to lay the foundation for future work
Keywords :reinforced concrete; frame structure; foundation design
目录
第一章 绪论 1
第二章 设计资料 2
2.1 设计题目 2
2.2 建筑规模 2
2.3 建筑技术条件 2
2.3.1 气象条件 2
2.3.2 工程地质条件 2
2.3.3 材料 2
第三章 确定计算简图 4
3.1 确定计算简图 4
3.2 梁、柱截面尺寸 4
3.3 材料强度等级 5
3.4 荷载统计 5
3.4.1屋面荷载标准值 5
3.4.2 楼面横梁竖向线荷载标准值 6
3.4.3.屋面框架节点集中荷载标准值 7
3.4.4.楼面框架节点集中荷载标准值 8
3.5 风荷载 8
3.6 地震作用 9
3.6.1建筑物总重力荷载代表值Gi的计算 9
3.6.2地震作用计算 11
第四章 框架内力计算 15
4.1恒载作用下的框架内力 15
4.1.1弯矩分配系数 15
4.1.2杆件固端弯矩 16
4.1.3节点不平衡弯矩 18
4.1.4内力计算 18
4.2 活载作用下的框架内力 22
4.2.1梁固端弯矩 22
4.2.2纵梁偏心引起柱端附加弯矩 22
4.2.3最不利组合 22
4.2.4各节点不平衡弯矩 22
4.2.5内力计算 23
4.3风荷载作用下内力计算 37
4.3.1水平风载作用下框架层间剪力 37
4.4地震作用下横向框架的内力计算 40
4..4.1 0.5(雪 活)重力荷载作用下横向框架的内力计算 40
4.4.2地震作用下横向框架的内力计算 45
第五章 内力组合 48
5.1弯矩调幅 48
5.2内力组合 49
第六章 框架梁柱截面设计 60
6.1判断是否考虑重力二阶效应 60
6.2框架各截面承载力计算 60
6.2.1梁承载力计 60
6.2.2柱承载力计算 64
第七章.楼梯结构设计 69
7.1.梯段板计算 69
7.2休息平台板计算 70
7.3梯段梁TL1计算 71
第八章 现浇楼面板设计 72
8.1跨中最大弯矩 72
8.2求支座中点最大弯矩 72
8.3 A区格 73
8.4 E区格 74
第九章 基础设计 76
9.1荷载计算 76
9.2确定基础底面积 76
9.3抗震验算 78
9.4地基变形验算 79
9.5基础结构设计 79
9.5.1荷载设计值 79
9.5.2 A柱 79
9.5.3 B,C柱基 80
参考文献 82
致谢 83
第一章 绪论
毕业设计是一次对以往所学知识的综合应用和检验,对于大学生巩固、应用所学知识有很大的帮助,对于即将步入社会,开始实践工作的毕业生来说具有不可忽视的意义,也是大学教育最好的结尾。
本设计是一个六层的教学办公楼设计,主要进行荷载计算,梁、柱截面设计,框架内力计算及内力组合,以及楼梯、楼板,基础设计。是一次真正的综合应用,除了要温习之前学过的各类专业知识,还要查阅各类资料,学习新的方法,这对于学生的自学能力也是一次锻炼。
第二章 设计资料
2.1 设计题目
某高校六层钢筋混凝土办公楼结构设计
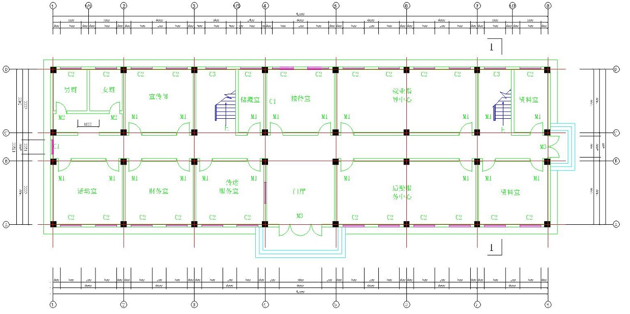
该建筑位于上海市杨浦区,根据《建筑抗震设计规范》GB50011-2010,上海市抗震设防烈度为7度,设计基本地震加速度值为0.10g。为某高校办公楼,结构型式为钢筋混凝土框架结构,结构平面图如图2.1所示。
2.2 建筑规模
总建筑面积: 3400m2 (±5%)
层数: 6层(含屋顶间)
层高: 首层3.6m,其它层3.3m
2.3 建筑技术条件
2.3.1 气象条件
(1)温度:最热月平均28.8℃ 最冷月平均3.0℃
极端最高温度39.4℃ 极端最低温度-18.1℃
(2)相对湿度:最热月平均79。
(3)主导风向:全年为西北风,夏季为东南风,基本风压
=0.3kN/m2
(4)雨雪条件:年降雨量1250mm 日最大降雨量370mm
最大积雪深度320mm 基本雪压
=0.3 kN/m2
(5)土壤冻结深度:天然地面以下0.5m。
2.3.2 工程地质条件
(1)土层分布:自然地表以下0.5m为杂填土,填土下层为3m厚砂质粘土,再下为砾石层。
(2)土层承载力标准值:砂质粘土
=250 kN/m2
砾石层
=400 kN/m2
(3)地下水位:地表以下2.5m,无侵蚀性。
(4)抗震设防烈度:7度,Ⅱ类建筑场地。
2.3.3 材料
(1)各类材料供应充分,品种齐全;
(2)墙体材料:粉煤灰加气混凝土砌块,蒸压灰砂砖,M5混合砂浆;
(3)预制构、配件采用本地生产的标准件。

图2.1 底层平面图
第三章 确定计算简图
3.1 确定计算简图
按工程地质资料提供的数据,该场地为Ⅱ类建筑场地,地质条件较好,初步确定采用柱下独立基础,本建筑抗震设防烈度为7度,乙类设防建筑,查《建筑抗震设计规范GB50011-2010》,抗震等级为三级。根据工程概况,挖去所有杂填土,基础置于第二层砂质黏土上,基底标高为设计相对标高-2.0m,柱子底层高度为:h1=3.6m 2.0m-0.5m=5.1m(初步假设基础高度为(0.5m),二至六层柱高为h2~h6=3.3m。柱节点刚接,三跨的计算跨度分别为;5400mm、2400mm、5400mm。本工程选取2轴进行结构设计,其横向框架计算单元如图所示。

图3.1.计算简图
3.2 梁、柱截面尺寸
根据《建筑抗震设计规范GB50011-2010》,本建筑超过2层,高度低于24米,抗震等级为三级,柱截面宽度和高度不宜小于400mm,剪跨比宜大于2,截面长短边比值不宜大于3.轴压比为0.85。梁截面宽度不宜小于200m,高宽比不宜大于4,净跨与截面高度之比不宜小于4。
- 框架柱:初步估算柱截面时,应满足;AC≥NC/μ·fc,其中NC=C×N,N=n×(12~14kN/m)·S。
边柱:AC ≥=103957mm2
取柱截面为450mm×500mm
中柱: AC ≥=137650mm2
取柱截面为500mm×500mm
- 梁:框架主梁h=(1/12~1/8)l,根据平面图,取h=550mm;
b=(1/3.5~1/2)h,≥250mm,取b=250mm;
因此,横向框架梁AB跨、CD跨:250mm×550mm。
框架纵梁、承重梁h=(1/12~1/8)l,取h=600mm;
非承重梁:h=(1/18~1/15)l,取h=400mm;
次梁h=(1/18~1/15)l,取h=400mm;
因此,横向框架梁BC跨:250mm×400mm;纵向框架梁250mm×600mm。
- 板厚:采用连续双向板,h≥l/40,h≥80;l为板的短边跨度。
AB跨、CD跨:h=5400/40=135mm,取140mm;
BC跨:h=2400/40=60mm,取100mm。
3.3 材料强度等级
混凝土均采用C30级,受力钢筋采用HRB400钢筋,箍筋采用HPB300钢筋。
3.4 荷载统计
3.4.1屋面荷载标准值
(1)永久荷载
屋面永久荷载标准值
35mm厚架空隔热板 0.35×25=0.875kN/m2
防水层 0.4kN/m2
20mm厚1:2.5水泥砂浆找平层 0.02×20=0.4kN/m2
140(100)mm厚钢筋混凝土现浇板 0.14×25=3.5kN/m2
(0.10×25=2.5kN/m2 )
12mm厚纸筋石灰粉平顶 0.012×16=0.192kN/m2
屋面永久荷载标准值 5.37kN/m2
(4.37kN/m2)梁自重
边跨AB,CD跨 0.25×0.55×25=3.44kN/m
梁侧粉刷 2×(0.55-0.14)×0.02×17=0.28kN/m
3.72kN/m
中跨BC跨 0.25×0.4×25=2.5kN/m
梁侧粉刷 2×(0.4-0.1) ×0.02×17=0.19kN/m
2.69kN/m
作用在顶层框架梁上的线恒荷载标准值为:
梁自重 g4AB1=g4CD1=3.72kN/m,g4BC1=2.69kN/m
板传来的荷载 g4AB2=g4CD2=5.37×5.4=29.0kN/m
g4BC2=4.37×2.4=10.49kN/m

(a)永久荷载作用下结构计算简图 (b)活载作用下结构计算简图
图3.2荷载计算简图
- 活荷载
作用在顶层框架梁上的线活荷载标准值为: q4AB=q4CD=0.7×5.4=3.78 kN/m
Q4BC=0.7×2.4=1.68 kN/m
3.4.2 楼面横梁竖向线荷载标准值
- 永久荷载
25mm厚水泥砂浆面层 0.025×20=0.5kN/㎡
140(100)mm厚钢筋混凝土现浇板 0.14×25=3.5 kN/㎡
(0.10×25=2.5kN/㎡)
12厚板底粉刷 0.012×16=0.192kN/㎡
4.192kN/㎡
(3.192 kN/㎡)
边跨框架梁自重 3.72 kN/㎡
中跨梁自重 2.69 kN/㎡
作用在楼面层框架梁上的线恒荷载标准值为
梁自重 gAB1=gCD1=3.72 kN/㎡
gBC1=2.69 kN/㎡
以上是毕业论文大纲或资料介绍,该课题完整毕业论文、开题报告、任务书、程序设计、图纸设计等资料请添加微信获取,微信号:bysjorg。
相关图片展示:









