滨江学院图书馆建筑结构设计毕业论文
2020-04-05 11:03:13
摘 要
本设计题目为滨江学院图书馆结构设计,总建筑面积约为2000平方米,建筑层数为4层,建筑总高14.1m。
设计内容主要包括建筑设计部分和结构设计部分。由于本次设计为学院图书馆设计,建筑设计部分主要要完成的内容包括,图书馆内藏书的位置、学生学习的空间、良好的采光和通风、防火措施布置、紧急事故人员疏散通道等因素;而结构设计部分主要要完成的任务包括,标准层的结构平面布置;恒荷载、活荷载、风荷载以及地震荷载的计算与效应组合;梁、柱截面设计及配筋计算;标准层现浇楼板的内力分析和设计;现浇楼梯的内力分析与设计;基础形式的确定、及其内力分析与设计;各构件截面的配筋图与建筑整体的结构施工图的绘制。
关键词:图书馆;水平荷载;内力组合;截面尺寸;配筋
Abstract
The title of this design is the structural design of Binjiang college library, with a total construction area of about 2000 square meters, with a building layer of 4 stories, with a total construction height of 14.1m.
The design content mainly includes architectural design part and structural design part. As this design is designed for the college library, the main contents of the architectural design include the location of the library, the students' learning space, the good lighting and ventilation, the layout of the fire prevention measures, the evacuation passages of the emergency personnel and so on, and the main tasks to be completed in the structural design part include the standard. The layout of the structure of the quasi layer; The calculation and effect combination of the constant load, the live load, the wind load and the seismic load; The design of the cross section of the beam and the column and the calculation of the reinforcement; The internal force analysis and design of the cast-in-place floor of the standard layer; The internal force analysis and design of the cast-in-place staircase; The determination of the basic form and its internal force analysis and design; The reinforcement map of the section and the drawing of the overall structural construction of the building.
Key words: Library; horizontal load; internal force combination; section size; reinforcement
目 录
第1章 绪论 1
第2章 荷载统计和内力计算与组合 2
2.1设计资料 2
2.2结构选型及梁柱截面尺寸估算 2
2.2.1结构选型 2
2.2.2梁柱截面尺寸估计 3
2.3计算简图的确定 3
2.4荷载统计 5
2.4.1恒载标准值 5
2.4.2活载标准值 7
2.5竖向荷载下框架受荷总图 7
2.5.1A-B/C-D轴间框架梁 8
2.5.2B - C 轴间框架梁 8
2.5.3A /D 轴柱纵向集中荷载 9
2.5.4B /C 轴柱纵向集中荷载 10
2.6风荷载标准值计算 11
2.6.1柱抗侧移刚度D的计算 11
2.6.2风荷载下的位移验算 13
2.7水平地震作用计算 13
2.8内力计算 15
2.8.1恒载标准值作用下的框架内力计算 15
2.8.2横向风荷载作用下的内力计算 24
2.8.3活载标准值作用下的内力计算 29
2.8.4水平地震作用下的框架内力计算 31
2.9内力组合 32
2.9.1竖向荷载作用下的梁端弯矩调幅计算 33
2.9.2控制截面处内力值的计算 33
2.9.3内力组合 34
第3章 构件截面设计与配筋计算 37
3.1框架梁、柱截面设计与配筋计算 37
3.1.1框架柱截面设计 37
3.1.2框架梁截面设计 40
3.2楼面板设计 41
3.2.1荷载计算 42
3.2.2配筋计算 42
3.3楼梯设计 43
3.3.2楼梯斜梁计算 45
3.3.3平台板计算 46
3.3.4平台梁计算 47
3.4基础设计 48
3.4.1作用于基础顶面上的荷载计算 48
3.4.2基础底面尺寸及埋置深度 49
3.4.3基础高度验算 50
3.4.4基础底板配筋计算 52
第4章 结束语 54
参考文献 55
致 谢 56
第1章 绪论
一所高校的地位,往往能从它的图书馆中得到。图书馆作为大学学习的一个重要场所,是我们大学生学习的第二课堂,图书馆中存储着大量的知识,学会并充分利用图书馆的学习资源是每一个大学生必须掌握的基本技能。而且图书馆作为学校的主要藏书场所,往往它的在馆藏书量的多少,代表了一所高校的知识底蕴与学校地位高低。除此之外图书馆还应具有良好的经济性与实用性,不仅要求具有良好的藏书能力,舒适的学习环境,还要求有足够办证学生安全的保护措施。然而我国现阶段,学校大型图书馆建设基本上都是以框架结构为主。
框架结构作为现在建筑的主要结构模式,是因为框架结构主要具有以下优点优点:因为框架结构的梁柱都是现浇的,所以在结构布置时具有很强的灵活性;其次是框架结构的梁柱截面尺寸和形状选择自由,可以根据建筑的功能选择最合适的截面;最后,现浇的梁柱在建造时相较简单,有助于建筑的及时完工。由于框架结构的承载力构件主要是梁柱构件,它们主要都是现浇装配的钢筋混凝土结构,由于钢材的强度高,变形能力大,框架结构一般都具有一定的延展性。其次,因为框架梁柱都是现浇装配的,故可以在已知满足设计规范要求的前提下,对框架梁柱的截面尺寸和截面形状进行一定的调节,以达到满足建筑结构美观、实用的目的。不过在实际工程建设实例中,一般为了加强建筑结构的安全性,确保其能够保证满足小震不坏,中震可修,大震不倒的要求,就必须适量的增大梁柱的横截面积,以确保建筑的整体稳定性;这样从另一个角度看,就减少了建筑的可利用面积,不利于建筑设计的经济性。因此,框架结构一般不适用于高层建筑。
本次设计的主要内容是滨江学院图书馆的建筑结构设计,总建筑面积约为2000平方米,建筑总高14.1m,建筑层数为4层,底层层高4.2m,标准层高3.3m,室内外高差0.45m。基本风压
,地面粗糙度类别为C类,基础场地类别为II类,抗震烈度为7度,建筑重要性类别为丙类,使用年限为50年。结构采用整体现浇钢筋混凝土框架结构,基础位置下独立基础。
设计过程中主要运用了《混凝土结构设计》、《混凝土结构设计原理》、《工程结构抗震设计》、《高层建筑结构设计》、《房屋建筑学》、《土地学与基础工程》等专业课程的基本内容,结合了相关结构设计的规范,还涉及到了CAD、天正建筑、PKPM、结构力学求解器等相关计算机辅助软件的的使用。此次的毕业设计,是我们这几年大学生涯所学知识的一次综合运用,用一个大的设计,不仅让我们对建筑工程设计的全过程有了一个全面的了解,还串联了我们所学的知识,让我们对所学有更好的理解,并且运用到解决实际问题中来,不仅锻炼了我们运用理论知识解决实际问题的能力,也为我们将来迈向工作岗位打下了一定的基础。
第2章 荷载统计和内力计算与组合
2.1 设计资料
工程名称:滨江学院图书馆结构设计。
建设地点:浙江省舟山市普陀区。
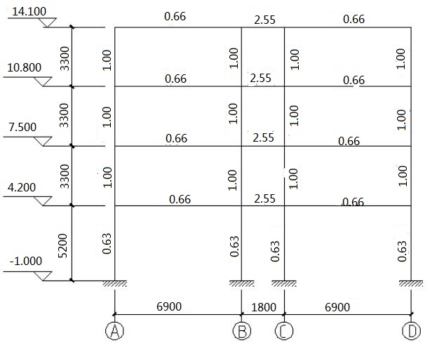
工程概况:总建筑面积约为2000平方米,建筑总高14.1m,建筑层数为4层,底层层高4.2m,标准层高3.3m,室内外高差0.45m。具体情况如图2.1[1]所示。
气象资料:基本风压
地质条件:地面粗糙度类别为C类,基础场地类别为II类。
抗震设防:抗震烈度为7度。
材料选用:
混凝土:框架梁,框架柱和楼面板都采用C30混凝土,基础和楼梯采用 C20 混凝土;
钢筋:框架梁和框架柱的纵向受力钢筋采用热轧钢筋HRB400,楼梯斜梁、平台梁中纵向受力钢筋和基础底板受力钢筋采用HRB335级,其余采用热轧钢筋HPB300;
墙体:240 厚空心砌块填充墙,用 1:2.5 水泥砂浆砌筑,重度
。

图2.1 结构平面布置图
2.2 结构选型及梁柱截面尺寸估算
2.2.1 结构选型
进行结构设计时,首先要选择各类结构的形式。结构选型是否合理,不但关系到是否满足使用要求和结构受力是否可靠,而且也关系到是否经济和是否施工方便等问题。结构选型的基本原则是:
- 适应建筑功能的要求
(b)满足建筑造型的需要
(c)充分发挥结构自身的优势
(d)考虑材料和施工的条件
(e)尽力可能的降低造价
结构选型涉及的内容较多,应根据建筑的重要性、设防烈度、房屋高度、场地、地基、基础、材料和施工等因素,经技术、经济条件比较综合确定。 根据上述结构选型基本原则,本工程选择如下结构类型:
(a)结构体系选型:采用钢筋混凝土现浇框架结构体系。
(b)屋面结构:采用现浇钢筋混凝土屋肋形盖,刚柔性相结合的屋面,屋面板厚120mm。
(c)楼面结构:全部采用现浇钢筋混凝土肋形楼盖,板厚 120mm。
(d)楼梯结构:采用钢筋混凝土梁式楼梯。
(e)天沟:采用现浇天沟。
2.2.2 梁柱截面尺寸估计
(a)框架梁的截面尺寸应根据承受竖向荷载的大小、梁的跨度、框架的间距、是否考虑抗震设防要求以及选用的混凝土材料强度等诸多因素综合考虑确定。不过也应注意:梁净跨与截面高度之比不宜小于4,梁的截面宽度不宜小于200mm。
在进行梁的截面假设进行计算时,一般可按如下规定估算,梁的最小截面高度h= 1/ 8 ~ 1/14
,其中
为柱与柱或柱与墙之间的最大距离。根据绘制的结构计算简图,不难得出
最大值为6900mm,因此梁高度可以近似假设为h=700mm进行初步估计计算,又由于矩形截面梁的高宽比h/b一般取2.0~2.5,据此可选取梁宽度为b=350mm。
(b)框架柱截面一般都采用矩形或方形截面,不过也应注意:框架柱的截面边长不宜小于250mm,圆柱的截面直径不宜小于350mm,剪跨比宜大于2,截面的高宽比不宜大于3。
在进行柱的截面假设进行计算时,一般将框架柱截面假设为方形进行计算,柱的截面尺寸一般取b = (1/12 ~ 1/18)H,其中 H 为最高层的层高。根据绘制的结构计算简图,不难看出底层的H最大,且最大值为5200mm,因此选取柱截面尺寸为b=600mm进行初步估计计算。
2.3 计算简图的确定
取①轴上的一榀框架进行设计计算,假定框架柱嵌固于基础顶面,框架梁与柱刚接。由于各层柱的截面尺寸不变,故梁跨等于柱截面形心轴线之间的距离。底层柱高从基础顶面算至二层楼面,基础顶面标高根据地质条件、室内外高差,定为-1.0m,首层层高为 4.2m,故底层柱高5.2m。其余各层柱高从楼面算至上一层楼面(即层高),均为3.3m,由此可绘出框架的计算简图,如下图所示。
不同的楼面结构与框架梁的连接构造不同,在现浇楼面中,楼面板的钢筋与 框架梁的钢筋交织在一起,混凝土同时浇灌,整体性较好[4]。在计算框架梁的截面惯性矩时,要考虑楼面板与梁连接使梁的惯性矩增加的有利影响。为简化起见,当采用现浇楼面时,边框架梁取
。其中,
为梁按矩形截面计算得到的惯性矩,
。梁,柱的线刚度为
,其中E为混凝土弹性模量,I为框架梁计算跨度。
边跨梁,即 A - B/C-D 轴间框架梁线刚度计算:

中跨梁,即 B - C 轴间框架梁线刚度计算:

底层柱线刚度计算:

标准层柱线刚度计算:

令标准层杆的线刚度为
,则其余各杆件的相对线刚度为:




图2.2 框架计算简图
2.4 荷载统计
2.4.1 恒载标准值
(a)屋面恒载标准值
防水层(刚性):30 厚 C20 细石混凝土防水 
防水层(柔性):三毡四油铺小石子 
结构层:120 厚现浇钢筋混凝土板 
抹灰层:10 厚混合砂浆 
找平层:15 厚水泥砂浆 
保温层:80 厚矿渣水泥 
找坡层:40 厚水泥石灰焦渣砂浆 3‰找平 
合计 
(b)楼面恒载标准值:
大理石面层,水泥砂浆擦缝
30 厚 1:3 干硬性水泥砂浆,面上撒 2 厚素水泥 
水泥浆结合层一道
结构层:120 厚现浇钢筋混凝土板 
抹灰层:10 厚混合砂浆 
合计 
(c)梁自重

梁自重 
以上是毕业论文大纲或资料介绍,该课题完整毕业论文、开题报告、任务书、程序设计、图纸设计等资料请添加微信获取,微信号:bysjorg。
相关图片展示:









