佳源广场写字楼建筑结构设计毕业论文
2020-04-05 11:02:20
摘 要
本次设计题目为佳源广场写字楼建筑结构设计,总建筑面积约为2800平方米,建筑层数为6层,建筑总高19.45m。
设计内容主要包括建筑设计部分和结构设计两大部分。本次设计为广场写字楼的设计,建筑设计部分主要要完成的内容包括,写字楼内办公室、会议室的位置和空间、良好的采光和通风、防火措施布置、紧急事故人员疏散通道等因素;而结构设计部分主要要完成的任务包括,标准层的结构平面布置;恒荷载、活荷载、风荷载以及地震荷载作用下内力的计算与效应组合;梁、柱的截面设计及配筋计算;标准层现浇楼板的内力分析和设计;现浇楼梯的内力分析与设计;基础形式的确定及其内力分析与设计;各构件截面的配筋图与建筑整体的结构施工图的绘制。
关键词:写字楼;竖向荷载;内力组合;截面设计;构件配筋
Abstract
The title of the design for this project is the architectural design of office buildings in Jiayuan Plaza, with a total construction area of approximately 2,800 square meters, and a six-storey building with a total building height of 19.45m.
The design content mainly includes two parts: the architectural design part and the structural design. This design is a design for a square office building. The main contents to be completed in the architectural design section include the location and space of offices and meeting rooms in the office building, good lighting and ventilation, fireproof measures arrangement, emergency evacuation channels, and other factors; The main tasks to be completed in the design part include: the layout of the standard floor; the calculation and effect combination of the internal forces under the effects of constant load, live load, wind load, and seismic load; section design of beam and column and calculation of reinforcement; Analysis and design of the internal force of the poured floor slab; analysis and design of the internal forces of the cast-in-situ staircase; determination of the basic form and analysis and design of its internal forces; drawing of the reinforcement bars of the cross-sections of each component and the construction of the overall construction of the building.
Keywords: office building; vertical load; internal force combination; section design; component reinforcement.
目 录
第1章 绪论 1
第2章 结构选型、荷载统计和内力计算 2
2.1 设计资料 2
2.2 结构选型及梁柱截面尺寸估算 2
2.3 计算简图的确定 3
2.4 荷载统计 5
2.5 竖向荷载下框架受荷总图 7
2.6 风荷载标准值计算 11
2.7 水平地震作用计算 15
2.8 内力计算 17
2.9 内力组合 42
第3章 构件截面设计与配筋计算 49
3.1 框架柱截面设计 49
3.2 楼面板设计 54
3.3 楼梯设计 55
3.4 基础设计 60
第4章 结束语 66
参考文献 67
致 谢 68
第1章 绪论
写字楼是一个城市形象的外在表现和重要代表,也是人们办公的重要场所。因此,写字楼除了对其外观有艺术感、美感的要求外,还对其实用性、经济性有相应的要求。目前,我国写字楼建筑还是主要以框架结构为主。
框架结构的主要优点在于它对空间能够灵活地分隔,自重不会很大,对于材料也较为节约,框架结构的梁、柱等构件比较容易统一化、标准化,适用于采用整体装配式结构,这样施工的工期可以得到缩短。当结构采用现浇混凝土框架的时候,结构具有良好的整体性,也具有良好的刚度。框架结构当然也存在一些缺点,比如说在节点处应力集中现象比较明显,而且框架的侧向刚度也不够大,当遭遇强烈地震作用的时候,其产生的水平方向位移也比较大,承担了一定的非结构性破坏的风险。因此,对于框架结构的设计要十分认真和细心。
本次设计过程中主要运用了《混凝土结构设计》、《混凝土结构设计原理》、《工程结构抗震设计》、《高层建筑结构设计》、《房屋建筑学》、《土力学与基础工程》等专业课程的基础知识,并且结合了相关的建筑结构设计规范,还运用到了AUTOCAD、PKPM、天正建筑和结构力学求解器等相关的专业计算机软件。本次设计乃是我们在本科毕业之前对所学专业知识进行综合实践的重要过程,是我们这几年来的学习与实践的全面总结,为我们今后踏上工作岗位打下了坚实的基础。
第2章 结构选型、荷载统计和内力计算
2.1 设计资料
(1)工程名称:佳源广场写字楼建筑结构设计。
(2)建设地点:广东省深圳市福田区。
(3)工程概况:总建筑面积约为2800平方米,建筑总高21.45m,建筑层数为6层,
底层层高4m,标准层层高3m,室内外高差 0.45m。具体情况如图2.1所示。
(4)气象资料:基本风压
。
(5)地质条件:地面粗糙度类别为B类,基础场地类别为II类。
(6)抗震设防:抗震烈度为7度。
(7)材料选用:
混凝土:框架梁柱和楼面板采用C30混凝土,基础和楼梯采用C20混凝土;
钢筋:框架梁柱纵向受力钢筋采用热轧钢筋HRB400,楼梯斜梁、平台梁中纵向受力钢筋和基础底板受力钢筋采用HRB335级,其余采用热轧钢筋HPB300;
墙体:240厚空心砌块填充墙,用1:2.5水泥砂浆砌筑,重度
。

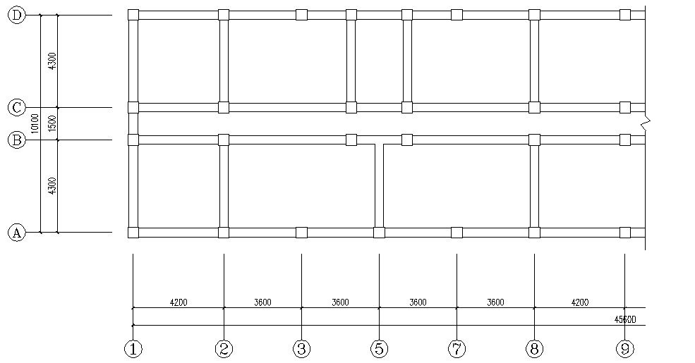
图2.1 结构平面布置图
2.2 结构选型及梁柱截面尺寸估算
(1) 结构选型
进行结构设计时,首先要选择各类结构的形式。结构选型是否合理,不但关系到是否满足使用要求和结构受力是否可靠,而且也关系到是否经济和是否施工方便等问题。
结构选型的基本原则是:
(a)满足建筑功能的要求,对于有些公共建筑,其功能有视听要求;
(b)满足建筑造型的需要,对于建筑造型复杂、平面和立面特别不规则的建筑结构选型,要按实际需要在适当部位设置防震缝,形成较多有规则的结构单元;
(c)充分发挥结构自身的优势,每种结构形式都有各自的特点和不足,有其各自的适用范围,所以要结合建筑设计的具体情况进行结构选型;
(d)考虑材料和施工的条件,由于材料和施工技术的不同,其结构形式也不同;
(e)尽可能降低造价,当几种结构形式都有可能满足建筑设计条件时,经济条件就是决定因素,尽量采用能降低工程造价的结构形式。
结构选型涉及的内容较多,应根据建筑的重要性、设防烈度、房屋高度、场地、地基、基础、材料和施工等因素,经技术、经济条件比较综合确定。 根据上述结构选型基本原则,本工程选择如下结构类型:
(a)结构体系:采用钢筋混凝土现浇框架结构体系。
(b)屋面结构:采用现浇钢筋混凝土屋肋形盖,刚柔性相结合的屋面,屋面板厚120mm。
(c)楼面结构:全部采用现浇钢筋混凝土肋形楼盖,板厚120mm。
(d)楼梯结构:采用钢筋混凝土梁式楼梯。
(2)梁柱截面尺寸估计
(a)梁的最小截面高度 h= 1/ 8 ~ 1/14
,其中
为柱与柱或柱与墙之间的距离。根据结构计算简图,
最大值为4300mm,因此选取梁高度 h=500mm,矩形截面梁的高宽比 h/b 一般取 2.0~2.5,据此选取梁宽度 b=250mm。
(b)框架柱截面一般采用方形,截面尺寸一般取 b = (1/12 ~ 1/18)H,其中H 为层高。根据结构计算简图,H最大值为4000mm,因此选取柱截面尺寸 b=500mm。
2.3 计算简图的确定
框架各构件在计算简图中均用单线条代表,各单线条代表各构件形心轴所在位置线。因此,梁的跨度等于该跨左、右两边柱截面形心轴线之间的距离。为简化起见,底层柱高可从基础顶面算至楼面标高处,中间层柱高可从下一层楼面标 高算至上一层楼面标高,顶层柱高可从顶层楼面标高算至屋面标高。
取⑨轴上的一榀框架进行设计计算,假定框架柱嵌固于基础顶面,框架梁与柱刚接。由于各层柱的截面尺寸不变,故梁跨等于柱截面形心轴线之间的距离。底层柱高从基础顶面算至二层楼面,基础顶面标高根据地质条件、室内外高差,定为-1.0m,首层层高为3m,故底层柱高4m。其余各层柱高从楼面算至上一层楼面(即层高),均为3m,由此可绘出框架的计算简图,如图2.2所示。
不同的楼面结构与框架梁的连接构造不同,在现浇楼面中,楼面板的钢筋与框架梁的钢筋交织在一起,混凝土同时浇灌,整体性较好。在计算框架梁的截面惯性矩时,要考虑楼面板与梁连接使梁的惯性矩增加的有利影响。为简化起见,当采用现浇楼面时,中框架梁取
。其中,
为梁按矩形截面计算得到的惯性矩,
。的线刚度为
,其中E为混凝土弹性模量,l为框架梁计算跨度。
边跨梁,即 A - B/C-D 轴间框架梁:

中跨梁,即 B - C 轴间框架梁:

底层柱:

标准层柱:

令
,则其余各杆件的相对线刚度为:




图2.2 框架计算简图
2.4 荷载统计
(1)恒载标准值:
(a)屋面恒载标准值
防水层(刚性):30 厚 C20 细石混凝土防水 
防水层(柔性):三毡四油铺小石子
结构层:120 厚现浇钢筋混凝土板 
抹灰层:10 厚混合砂浆 
找平层:15 厚水泥砂浆 
保温层:80 厚矿渣水泥 
找坡层:40厚水泥石灰焦渣砂浆3‰找平 
合计 
(b)楼面恒载标准值:
大理石面层,水泥砂浆擦缝
30 厚 1:3 干硬性水泥砂浆,面上撒 2 厚素水泥 
水泥浆结合层一道
结构层:120 厚现浇钢筋混凝土板 
抹灰层:10 厚混合砂浆 
合计 
(c)梁自重:

梁自重 
抹灰层:10 厚混合砂浆 
合计 
(d)柱自重:

柱自重 
抹灰层:10 厚混合砂浆 
合计 
(e)外墙自重:
标准层:
240mm 厚空心砌块填充墙 
水刷石外墙面
水泥粉刷内墙面 
合计
底层:
以上是毕业论文大纲或资料介绍,该课题完整毕业论文、开题报告、任务书、程序设计、图纸设计等资料请添加微信获取,微信号:bysjorg。
相关图片展示:









