某多层钢筋混凝土框架结构商业楼结构设计毕业论文
2020-03-31 12:04:48
摘 要
本次设计的内容是某6层钢筋混凝土框架结构商业楼的结构设计。主要建筑材料包括C30级混凝土、HRB400以及HPB335级钢筋。设计方法采用常规的混凝土框架结构设计流程,包括确定计算简图、内力计算、内力组合、框架梁和柱的设计、楼梯设计、楼板设计、柱下独立基础设计并绘制施工图。
在内力计算时使用了弯矩分配法和反弯点法进行计算,并使用机构力学求解器进行了误差分析,保证了设计值的可靠性。计算书中的计算简图、结构示意图、计算流程图等均实用Auto CAD 2014版进行绘制,保证了图片的准确性和实用性。
框架结构的建筑平面布置灵活,可以很好地适应多种使用需求。而且框架结构的构件类型较少,设计、计算和施工都比较简便,因此具有很高的实用价值。通过本次设计,可以整合我所学过的相关知识,便于在将来的工作中付诸实践。
关键词:框架结构;钢筋混凝土;多层商业楼;
Abstract
The content of this design is the structural design of a 6-storey reinforced concrete frame structure commercial building. The main building materials include C30 concrete, HRB400 and HPB335 grade steel. The design method adopts the conventional concrete frame structure design process, including determining the calculation diagram, internal force calculation, internal force combination, frame beam and column design, stair design, floor design, independent basic design under the column and drawing construction drawings.
In the calculation of internal forces, the bending moment distribution method and the anti-bending point method were used to calculate, and the mechanical analysis was used to analyze the error to ensure the reliability of the design value. The calculation sketches, structure diagrams, and calculation flow charts in the calculation book are all drawn from the practical Auto CAD 2014 edition to ensure the accuracy and practicality of the image.
The frame structure of the building has a flexible layout and can be well adapted to a variety of usage needs. Moreover, the frame structure has fewer types of components, and the design, calculation, and construction are relatively simple, and therefore have a high practical value. Through this design, the relevant knowledge I have learned can be integrated to facilitate implementation in future work.
Keywords: frame structure; reinforced concrete; multi-storey commercial but
目录
第1章 绪论 1
第2章 设计资料 2
2.1设计题目:某多层钢筋混凝土框架结构商业楼结构设计 2
2.2建筑规模 2
2.3建筑技术条件 2
2.4工程地质条件 2
2.5材料 2
第3章 确定计算简图 3
3.1框架计算简图 3
3.2梁、柱截面尺寸 4
3.3材料强度等级 5
3.4荷载计算 5
3.4.1恒、活荷载统计 5
3.4.2风荷载计算 9
3.4.3地震作用产生的荷载计算 10
第4章 框架内力计算 14
4.1恒载作用下的框架内力 14
4.1.1弯矩分配系数 14
4.1.2杆件固端弯矩 14
4.1.3节点不平衡弯矩 16
4.1.4 恒载作用下内力计算 16
4.2活载作用下荷载 18
4.2.1活载设计值统计 18
4.2.2活载作用简图 20
4.2.3活载作用下内力计算 20
4.3风荷载作用下内力计算 33
4.4地震作用下横向框架的内力计算 37
第5章 框架内力组合 67
第6章 框架梁柱截面设计 44
6.1设计值调整 57
6.2框架梁配筋 57
6.3框架柱配筋 62
第7章 楼梯结构设计 67
7.1确定楼梯布置图 67
7.2梯段板计算 67
7.3休息平台板计算 68
7.4梯段梁TL1计算 69
第8章 现浇楼面板设计 70
8.1楼板布置图 70
8.2跨中最大弯矩 70
8.3求支座中点最大弯矩 70
8.4 板的内力计算 71
8.4.1 A区格 71
8.4.2 D区格 72
8.5板的配筋 73
第9章 基础设计 74
9.1荷载计算 74
9.2确定基础底面积 75
9.2.1 A柱基础底面尺寸计算 75
9.2.2 B柱基础底面尺寸计算 76
9.3 抗震验算 76
9.4 基础结构设计 77
9.4.1 荷载设计值 77
9.4.2 A柱配筋设计 77
9.4.3 B柱配筋设计 78
参考文献 80
致谢 82
第1章 绪论
本次设计是整个本科教育内容的最终环节,通过一次综合性的结构设计,来整合和检验本科四年所学到的专业知识。将要用到材料力学、结构力学、土力学还有钢筋混凝土结构设计原理等一系列专业课程。对于我们而言,这是一次挑战也是一次自我提升的机会。
此次设计中还将涉及到一些没有学过的内容,比如房屋建筑学,以及更深的工程制图内容。这需要我们抱着积极学习的态度,去查阅资料、文献以及相关规范,并做到学以致用。这对我们的学习能力也将是一次考验。
第2章 设计资料
2.1设计题目:某多层钢筋混凝土框架结构商业楼结构设计
该建筑位于上海市杨浦区,为某集团新建商品展示销售商业楼,结构型式为钢筋混凝土框架结构。
2.2建筑规模
总建筑面积: 3400m2 (±5%) (可根据图纸修改)
层数: 6层(含屋顶间),一层和二层为产品展示区,3-6层为办公区。
层高: 首层和二层为4.2 m,其它层3.6m。
2.3建筑技术条件
1.气象条件
(1)温度:最热月平均28.8℃ 最冷月平均3.0℃
极端最高温度39.4℃ 极端最低温度-18.1℃
(2)相对湿度:最热月平均79%
(3)主导风向:全年为西北风,夏季为东南风,基本风压
=0.3kN/m2
(4)雨雪条件:年降雨量1250mm 日最大降雨量370mm
最大积雪深度320mm 基本雪压
=0.3 kN/m2
(5)土壤冻结深度:天然地面以下0.5m
2.4工程地质条件
(1)土层分布:自然地表以下0.5m为杂填土,填土下层为3m厚砂质粘土,再下为砾石层。
(2)土层承载力标准值:砂质粘土
=250 kN/m2
砾石层
=400 kN/m2
(3)地下水位:地表以下2.5m,无侵蚀性。
(4)抗震设防烈度:7度,设计基本地震加速度值为0.10g,Ⅱ类建筑场地。
2.5材料
(1)各类材料供应充分,品种齐全。
(2)墙体材料:粉煤灰加气混凝土砌块,蒸压灰砂砖,M5混合砂浆。
(3)预制构、配件采用本地生产的标准件。
第3章 确定计算简图
3.1框架计算简图
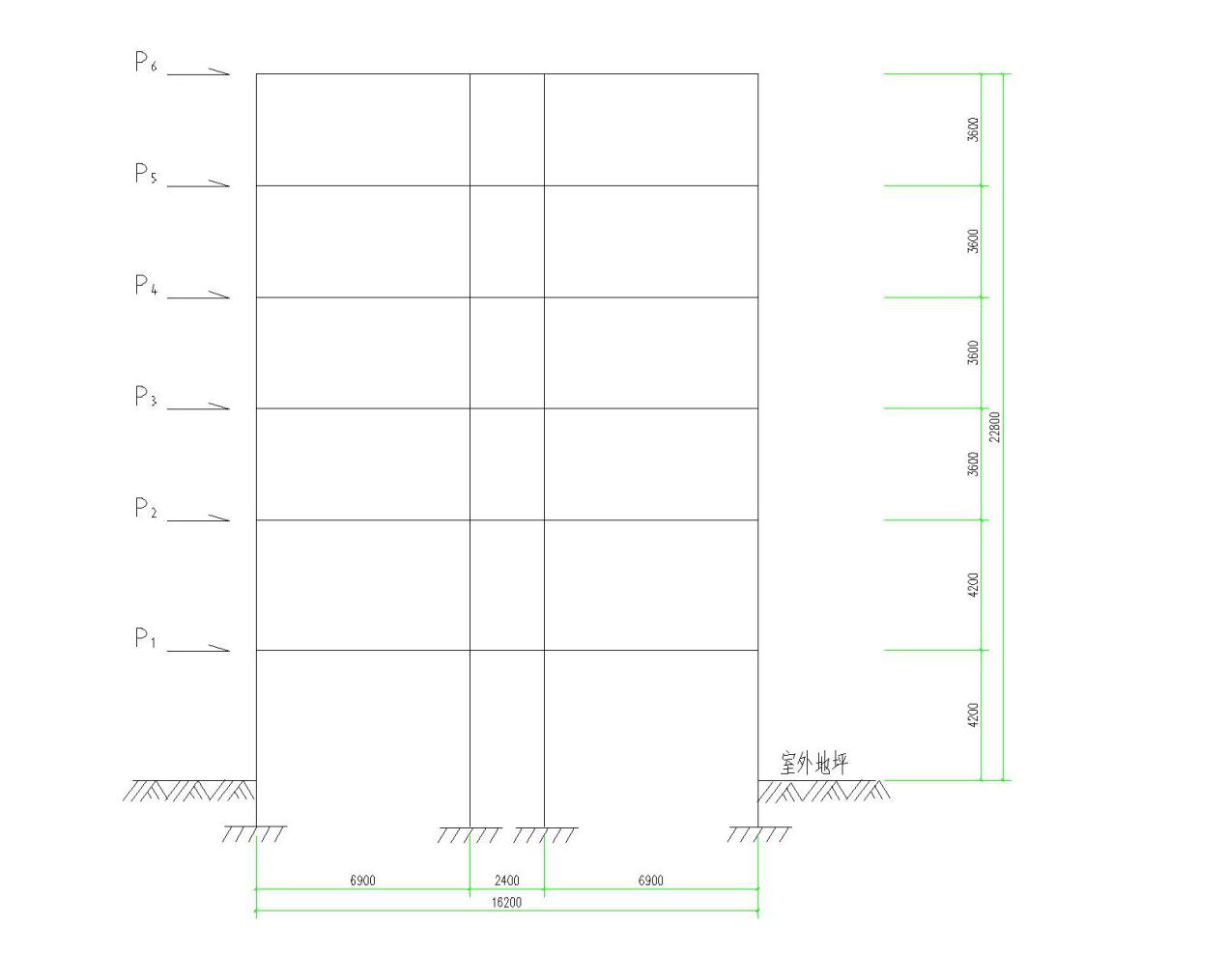
本工程横向框架计算单元取建筑施工图中第⑤-⑤榀框架,框架的计算简图假定底层柱下端固定于基础,按工程地质资料提供的数据,可知该场地为Ⅱ类场地土,地质条件较好,初步确定此建筑基础采用柱下独立基础,挖去所有杂填土,基础放置于第二层厚砂质黏土层上,基底标高为设计相对标高-1.0m。底层柱高度h1=4.2 1.0-0.5=4.7m(假设基础高度为0.5m)。第二层柱高h2=4.2m,第三层至第六层h3~h6=3.6m。柱节点刚接,横梁的计算跨度取两柱中心线至中心的间距,三跨的计算跨度分别为l=6900mm、2400mm、6900mm。计算简图如下。

图3.1 建筑结构平面图

图3.2 计算简图
3.2梁、柱截面尺寸
建筑的地表高度为22.8m,地震设防烈度为7度,按框架结构查阅《建筑抗震设计规范》GB50011-2010知建筑抗震等级应为三级,轴压比限值为0.85。
⑴按照如下公式估算柱截面面积:
边柱:AC≥
取边柱尺寸为500mm×550mm
中柱:Ac≥
取中柱尺寸为500mm×500mm
⑵估算框架梁截面面积
框架主梁:
AB、CD跨 :
=6900mm
按 h=
取 h=600mm
按b=
取 b=350mm
BC跨 :
按 h=
取h=400mm
按 b=
取b=250mm
纵向框架梁:
B、C 轴 :
按 h=
取h=700mm
按 b=
取b=250mm
A、D轴 :
按 h=
取h=400mm
按 b=
取 b=250mm
次梁:
按h=
取h=400mm
按b=
取b=250mm
⑶现浇板厚度:
AB、CD跨:
按h=
取h=150mm
BC跨 :
按h
取h=100mm
3.3材料强度等级
混凝土均采用C30等级;受力钢筋采用HRB400钢筋,箍筋采用HRB300钢筋。

(a)永久荷载作用下结构计算简图; (b)活载作用下结构计算简图
图3.3 荷载计算简图
3.4荷载计算
3.4.1恒、活荷载统计
⑴永久荷载
屋面永久荷载标准值
35mm厚架空隔热板 
防水层 
20mm厚1:2.5水泥砂浆找平层
150(100)mm厚钢筋混凝土现浇板 
(AB,CD跨板厚取150mm;BC跨取100mm) 
12mm厚纸筋石灰粉平顶 
屋面永久荷载标准值 

梁自重
边 跨AB,CD跨

梁侧粉刷



中跨BC跨

梁侧粉刷

作用在顶层框架梁上的线恒荷载标准值为

梁自重


板传来的荷载 
以上是毕业论文大纲或资料介绍,该课题完整毕业论文、开题报告、任务书、程序设计、图纸设计等资料请添加微信获取,微信号:bysjorg。
相关图片展示:









