三峡库区钢桁架拱桥的施工监控风险评估毕业论文
2020-04-03 13:14:00
摘 要
为了适应经济的发展,公路建设开始大规模地往三峡库区发展,桥梁建设场地环境也越来越复杂,建设难度不断增大,潜在施工风险也急剧增多,导致施工安全事故频发,因此特殊环境下的大跨度特殊桥梁施工风险识别意义重大。为了跨越三峡库区复杂的地形,钢桁架拱桥因其独特的优点再次被桥梁建设者和社会各界重视起来,桥梁工程领域中对于钢桁架拱桥的研究也很多,但针对大跨度钢桁架拱桥缆索吊装—斜拉扣挂的施工风险研究不多。本文以香溪长江公路大桥作为研究背景,首先介绍了钢桁架拱桥的构造及其施工方法;然后通过利用有限元软件Midas Civil建立了香溪长江公路大桥的拱肋模型,并通过施加相应的边界条件和节点荷载模拟缆索吊装—斜拉扣挂施工方法;将风险事故发生可能性划分为极低、低、中等、高和极高5个等级,风险影响程度分为无关紧要、较小、中等、重要和灾难性5种情况,建立风险矩阵图;最后根据有限元计算的应力结果得到风险事故的可能性大小,通过建立的风险矩阵得到香溪长江公路大桥施工过程的风险等级,进而确定风险源,并提出了每个等级的风险的处理措施,为三峡库区钢桁架桥梁施工中的安全防范及应急预案的编写指明方向。
关键词:钢桁架拱桥;缆索吊装斜拉挂扣;风险矩阵;风险评估
Abstract
In order to adapt to the development of the economy, began to the three gorges reservoir area on a large scale development of highway construction, bridge construction site environment is becoming more and more complex, the construction difficulty increasing, the potential risk of construction also increased sharply, leading to construction safety accident frequency, therefore under the special environment of large span bridge construction special risk identification is of great significance.To across the three gorges reservoir area of complex terrain, steel truss arch bridge because of its unique advantage again by bridge builders and the social from all walks of life value, for the steel truss arch bridge in bridge engineering, the study also many, but in view of the large span steel truss arch bridge cable hoisting - suspension hanging construction risk research is not much.In this paper, the construction and construction methods of the steel truss arch bridge are the first to be studied as a background in the Yangtze river highway bridgeAnd then by using the finite element software, the Midas family has set up the arch ribs of the shankbrook highway bridge, and by applying the corresponding boundary conditions and the node load simulates the cable sling, the technique of the slanting of the cableThe probability of risk accidents is divided into extremely low, low, medium, high, and extremely high five levels, and the risk factor is divided into non-critical, small, medium, important, and catastrophic five scenarios, establishing the risk matrix diagramFinally, according to the stress results calculated by the finite element method, the probability of risk accidents is obtained. Through the risk matrix established, the risk level of construction process of xiangxi Yangtze river highway bridge is obtained, and then the risk source is determined.
Key Words:Steel truss arch bridge;Suspension hooks;the risk matrix;risk assessment
目录
第1章绪论 1
1.1 钢桁架拱桥概况 1
1.1.1钢桁架拱桥 1
1.1.2 缆索吊装斜拉挂扣法 1
1.1.3香溪长江公路大桥 2
1.2研究的目的和意义 3
1.3本文主要内容 3
第2章Midas软件建模 4
2.1软件介绍 4
2.2建立拱肋模型 5
2.2.1建立几何模型 5
2.2.2边界条件和荷载 13
2.3定义施工阶段 13
第3章结果分析 16
3.1查看结果并统计 16
3.1.1反力结果 16
3.1.2变形结果 17
3.1.3应力结果分析 17
3.2对比分析 19
第4章风险的评估矩阵 20
4.1风险评估矩阵介绍 20
4.2建立风险矩阵 20
4.2.1建立图表 20
4.2.2定义风险矩阵图 21
第5章 风险评估 23
5.1评估简介 23
5.2评估过程 23
5.2.1确定风险等级[13] 23
5.2.2风险对比 24
5.3评估结果 24
结论 26
参考文献 27
致谢 28
第1章 绪论
1.1 钢桁架拱桥概况
1.1.1钢桁架拱桥
钢桁架拱桥最早出现在第一次工业革命可以大量炼铁之后。桥梁综合了钢桁架和拱结构二者的受力特点。钢桁架拱桥拥有着比其他类型拱桥受力更为合理的特点。所以这种结构的桥梁应用很多[1]。在国外,由于其较早就拥有了较先进的炼钢技术,所以钢桁架拱桥较多。例如:世界上最高的钢拱桥澳大利亚悉尼海港大桥建成于1932年。世界上第一座钢桁架拱桥建造于1874年,是美国的Eads bridge[2]。然而在我国,钢桁架拱桥的发展起步要晚了很多。直到1988年才开始了钢桥的建造,并且斜拉挂扣钢桁架拱桥在我国发展时间也仅仅有十多年的时间。我国第一座采用斜拉挂扣悬臂法施工的大跨钢桁架拱桥是在2005年建成的万州长江铁路大桥,之后又相继建成大胜关长江大桥,朝天门大桥等钢拱桥[3]。
钢桁架拱桥作为目前桥梁建设中的发展迅速的一大类型,对其研究提出的理论知识不可谓不多。由于,钢桁架拱桥的施工过程比较繁琐,受杆件内力、施工顺序、结构变形等因素的影响,可能会导致施工事故。所以进行施工风险评估,用以确保项目的顺利非常的重要[4]。然而,针对钢桁架拱桥施工过程中的风险监控的研究,并没有特别完善的方法和理论。也仅仅是在近些年,由于桥梁建设的快速发展,才引入了施工监控的方式,作为一种辅助。即便如此,施工过程中的风险事故还是有可能会发生。
1.1.2缆索吊装斜拉挂扣法
桥梁拥有多种结构样式,并且桥梁的建造有很多种方法,例如满堂支架法、大节段整体提升吊装法、斜拉挂扣悬臂法。在工程建设过程中采用较多的就是缆索吊装斜拉挂扣法。这种方法由来是在建造广西邕宁邕江大桥时。在施工之中研究出了千斤顶钢绞线斜拉挂扣法。该方法中,采用了高强、底松、张拉控制准确的初拉力钢绞线作为拱肋悬臂拼装的扣锁[5]。但是,这种方法的施工过程工序繁琐,施工的技术要求较高,所以用此方法建造钢桁架拱桥时,施工过程仍然面临众多的问题。
缆索吊装斜拉挂扣法主要体现在拱桁架施工过程中,其主要施工顺序为:
(1)在地面制作拱肋段。拱肋的杆件严格按照施工图纸进行焊接。
(2)以缆索吊装的方式,将要安装的拱肋节段悬吊至拱跨,再用拉索将其扣挂在上一节段,保证接口截面相重合。
(3)把刚刚安装的拱肋与上一节段进行连接。除第一节段为锚固于地基,其他为焊接。
(4)在最后一节安装时,要保证跨中部分,在吊装完成后有进行合拢的操作空间。
拱肋的合拢顺序为先合拢下弦杆,再合拢上弦杆。并且,在拱肋合拢前,应进行一次全方面的线形、位置的调整。此外,拱桁架合拢前,应该实际测量合拢口的尺寸大小,通过调整合拢口的位置,保证合拢顺利进行。在拱合拢阶段,首先采用导链,调整横向的位移;再通过对纵向对拉、对顶等微调措施实现对其纵向间距的调整。而合拢口的竖向位移和转角的调整,一般是由纵向的顶拉和压重来实现[6]。
1.1.3香溪长江公路大桥

图1.1长江大桥主跨布置
本次研究,以香溪长江公路大桥为背景,主要针对其拱结构进行建模分析。香溪长江公路大桥位于兵书宝剑峡峡口,正桥采用主跨519米中承式钢桁架拱,其主跨布置如图1.1所示。采用了桥梁的钢桁架拱的施工数据。数据如下:香溪长江公路大桥钢桁架拱结构,主桁下弦杆中心线净跨径为508米,下弦中心矢高127.0米,矢跨比1/4(矢跨比:拱桥中拱肋的计算高度和其计算跨径的比值,对拱桥主桁架的内力,构造形式以及施工方法均有影响)。拱轴线线形为悬链线形,轴系数2.0。桁架采用双片主桁平行放置,中心横向距离为25.3米。主桁采用变节间布置,有12米、11.8米两种。桥面以上为12米,桥面以下为11.8米。拱肋主要材料为Q370Qd,材料的技术条件符合《桥梁用结构钢》(GB714-2008)。其技术标准如下:
(1)公路等级:双向四车道一级公路
(2)设计速度:60km/h
(3)设计安全等级:Ⅰ级
(4)桥梁结构设计基准期:100年
1.2研究的目的和意义
作为建造大跨度桥梁拱结构建造的主要方法之一,缆索吊装斜拉挂扣法在桥梁建设中的应用越来越多。而在施工过程中,保证安全进行,施工监控必不可少。施工监控的主要目的就是为了防止风险事故的发生。而对于风险的研究,目前并没有非常准确的方法能对风险进行量化,仅是停留在了可以评估风险。现在的研究,大多都是希望能够避免风险事故的发生,从根源解决施工中的问题,以此来保证施工的安全。这样一来并不需要对风险有一个十分准确定量,只需在施工中,防止它的发生。而对于施工风险的评估,可以让人很快的找到引起风险的因素,从而实现对风险的控制。而且还可以对风险进行分类,让工作人员非常系统的提供技术支持,进行施工监控。它的意义就在于,为施工提供安全保障,对施工过程评价估量,进而提出对该项目的看法。
1.3本文主要内容
本文的以香溪长江公路大桥为工程背景,针对他的缆索吊装-斜拉挂扣法的施工拱桁架的过程,建立桥拱的三维模型,在确定合理边界条件之后,利用软件进行几何模型的计算。然后通过定义施工阶段,研究合拢后最大悬臂状态时的应力绝对值大小。最后,参照前后分析的结果建立施工监控的风险评估矩阵,进行风险识别。还通过对拉索力的改变,进一步研究了缆索吊装斜拉挂扣法对施工的影响。最后通过所建立的矩阵,对几个危险状态进行评价分析,找出之间的关联因素。由此,为钢桁架拱桥的拱结构施工提供合理依据。
第2章Midas软件建模
2.1软件介绍
midas Civil是桥梁专用空间有限元软件,也用于工业建筑,港口,隧道等结构的设计及分析。从软件的操作界面到与其他程序的相关联,使得用户的工作效率大大提高。
针对迈达斯用于桥梁结构来讲,软件提供丰富的有限元单元类型。例如板单元、一般梁/变截面梁单元、实体单元、平面应力单元、只受拉/钩/索单元等多种有限元单元类型。另外软件提供了一些常用的结构类型。使用者只需按照统一的建模流程填写数据,软件便可以直接确定生成模型。例如斜拉桥、悬索桥、移动支架法桥梁等多种桥梁结构。并且利用软件建立节点、单元均可通过将excel表格数据直接复制、粘贴。也可以通过CAD制图,利用软件自带的截面计算器进行截面设计。
midas Civil提供了多种便利的菜单系统、用户界面、工作面板和特色窗口,且提供了很多便利、实用的工具条。菜单系统包括:主菜单、树形菜单和图标菜单等。其中树形菜单,将建立模型到分析、进行设计的过程中的所有关联菜单按照一定的顺序显示,为操作者查验、修改和统计数据提供了方便。软件内部直接看到的是模型窗口和信息窗口,还可以调出可供操作人员输出数据和分析结果的表格窗口。模型窗口是可以利用可利用midas Civil多样的GUI功能进行建模、后处理操作的窗口。信息窗口主要是输出建模和分析过程中的各种警告、错误信息[7]。
利用迈达斯软件建模分析,首先要做的就是存档。与其他外国软件类似,迈达斯也可以先存盘后操作。为了避免建好的模型因为软件错误退出而丢失,所以并不建议建好模型之后再行存档。之后就是对材料、截面的定义。当这些操作完成后,接下来便可以开始建立节点、单元,逐步确立模型的形状。当模型形状建成后,接下来便是添加边界条件和荷载。添加边界条件和荷载是为了模拟模型的联结状况和受力条件[8]。完成以上流程才算是完成了一半,之后的分析,对结果的查看、处理才是最为重要的。
软件建模需要的是耐心与认真,只有一丝不苟的完成各个步骤,认真处理每一个节点、单元,才可以减小最后的误差,保证分析结果的准确性。这才是建模分析的目的。
使用迈达斯软件的目的,就是希望运用软件完成对结构的研究计算,得到结果。软件的方便之处在于,方便用户非常清楚的查看到想要的结果。例如,在查看结构的变形时,软件可以清楚的显示出变形前后的对比,以及变形的数值大小。根据数值的不同,进而我们可以确定变形最大的位置,也就是最危险的破坏点。不止如此,为了方便用户对于结果的统计,midas Civil软件还提供了对结果的文本输出。这个是有用户选定格式排列。结构输出之后,便可以直接通过文件编辑器对输出的结果文档进行记录查看、分析和处理。
2.2建立拱肋模型
建模其实就是对工程的仿真,将实际工程的施工过程和整体数据,以模型的方式等效到计算机,运用计算机研究工程。由于桥拱为一个对称的圆弧,为了方便、直观建模只建了一半,在对称截面添加约束。
2.2.1建立几何模型
建模开始,首先打开新项目并保存,文件名设为‘拱肋’。本次建模单位采用的是mm和KN。在单位系中修改。(后边建模过程中可根据自己需要改变单位,改变后之前所用单位自动换算。
本次建模采用的是Q370qD Q345qD和Q420qD,弹性模量分别为2.0600e 002和2.6000e 002,泊松比均为0.3,热膨胀系数1.2000e-005,容重分别为9.1420e-008和7.6980e-008。
这次建模用到的截面总共有39种,多数均为箱型截面,少数是工字型截面和工字变形截面。在这里,只介绍其中一个截面的定义。
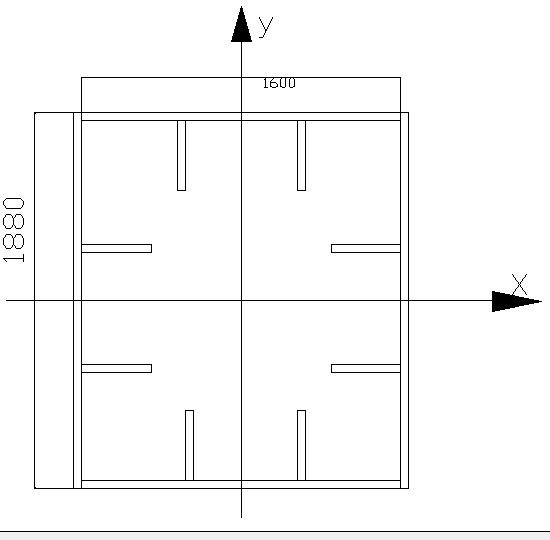
截面如下图2.1(单位均为mm):

图2.1 箱型截面
截面组成:2~□1880×40、2~□1600×40、8~350×40
截面特性(cm2/cm4):材料Q370qD,Am=3904,Ix=18770820,Iy=15594980
截面较为特殊,在软件中没有现成的规格供我们选择。这种截面需要用设计用数值截面选项来进行设计。截面各参数如下(单位mm):
设计参数:T1=40,T2=40,BT=1640,HT=1840
T1:箱型截面上实体边界厚度;
T2:箱型截面下实体边界厚度;
BT:左右两侧实体边中心线距离;
HT:上下实体边中心线距离;
验算扭转用厚度(最小)=40。
截面的形成原理可以理解为,由内外两个闭合多边形围成。在定义多边形坐标后便可形成。多边形坐标如下表2.1:
表2.1 多边形坐标表
多边形1 | 多边形2 | ||||||||
X | Y | X | Y | X | Y | X | Y | X | Y |
-800 | 900 | -320 | 900 | -320 | 550 | -280 | 550 | -840 | 940 |
-280 | 900 | 280 | 900 | 280 | 550 | 320 | 550 | 840 | 940 |
320 | 900 | 800 | 900 | 800 | 320 | 450 | 320 | 840 | -940 |
450 | 280 | 800 | 280 | 800 | -280 | 450 | -280 | -840 | -940 |
450 | -320 | 800 | -320 | 800 | -900 | 320 | -900 | 坐标值单位均为mm 注意:添加时应先添加外层多边形 | |
320 | -550 | 280 | -550 | 280 | -900 | -280 | -900 | ||
-280 | -550 | -320 | -550 | -320 | -900 | -800 | -900 | ||
-800 | -320 | -450 | -320 | -450 | -280 | -800 | -280 | ||
-800 | 280 | -450 | 280 | -450 | 320 | -800 | 320 | ||
当完成截面和材料的定义之后,接下来才可以建立单元,进而建立模型。因为,软件是直接建立单元,单元的建立需要赋加材料和截面。然后,根据桥梁拱桁架的施工图建立模型。节点总共138个,单元367个。由于所用的截面特殊,建模中梁单元没有发生偏转,所以我们可以不考虑Beta角。首先,可以优先建立一片拱的主桁。根据施工图提供的节点坐标,可以换算出建模要用的坐标,通过节点表格直接输入坐标点的数据建立节点。节点建成之后便可以建立主桁的单元。根据已知的单元需要的节点位置,同时确定该位置使用的材料和截面,并连接成单元。主桁施工图图纸如下图2.2所示。截面类型如下表2.2:
以上是毕业论文大纲或资料介绍,该课题完整毕业论文、开题报告、任务书、程序设计、图纸设计等资料请添加微信获取,微信号:bysjorg。
相关图片展示:









