贵州省道真至新寨高速公路雅雀坪大桥(7×40mT梁)施工图设计毕业论文
2020-02-17 00:56:54
摘 要
本文主要的研究目的是对已知目标跨径的预应力混凝土连续梁桥进行必要的设计验算,通过借助桥梁计算分析软件 Midas Civil 建立桥梁上部结构选型模型,模拟该连续梁桥的施工阶段,尤其是简支转连续这一阶段,实时分析施工过程中设计桥梁的受力状况以及最终成桥阶段的受力状况,有助于施工全过程桥梁的内力变化并对设计方案合理性做出适当的评估。
论文中主要包括了桥型方案的选择以及尺寸设计,Midas建模的过程和采用的方法,根据模型结果完成恒载内力标准值计算、活载内力标准值计算、收缩及徐变引起的二次内力标准值计算、预应力损失引起的二次内力标准值计算、荷载组合、各主要构件承载力极限状态验算、各主要构件正常使用极限状态验算。通过观察计算结果,提出了此类桥梁在使用阶段中墩支座处截面易开裂的问题并给出了主要的影响因素与解决办法,对于此类型桥梁的施工过程和成桥后的健康状况分析提供了方案参考。
关键词:预应力;连续梁桥;简支转连续;Midas模型
Abstract
The main purpose of this paper is to carry out the necessary design check on the prestressed concrete continuous girder bridge with known target span. By using the bridge calculation and analysis software Midas Civil to establish the bridge superstructure selection model, simulate the construction stage of the continuous girder bridge. Especially in this stage of simple support and continuous, real-time analysis of the stress state of the design bridge during the construction process and the stress state of the final bridge stage will help the internal force change of the bridge during the whole construction process and make appropriate design rationality. evaluation of.
    The paper mainly includes the selection of bridge type scheme and dimension design, the process of Midas modeling and the method adopted. According to the model results, the calculation of the standard value of dead load internal force, the calculation of the internal force standard value of live load, the contraction and the creep are caused twice. The calculation of the internal force standard value, the calculation of the secondary internal force standard value caused by the prestress loss, the load combination, the limit state check of the bearing capacity of each main component, and the check of the normal use limit state of each main component. By observing the calculation results, the problem that the section of the bridge is easy to crack at the pier support is put forward and the main influencing factors and solutions are given. The construction process of this type of bridge and the health status after the bridge is analyzed. A solution reference is provided. 
Key Words: Prestressed; Continuous girder bridge; Simply-support into continuous; Midas mode
目录
第1章 绪论 1
1.1课题研究的背景 1
1.2本次设计的任务要求 1
1.2.1课题背景 1
1.2.2设计依据 1
1.2.3设计内容 2
1.2.3提交成果 2
1.3本次设计的意义 2
第2章 桥型方案比选 4
2.1概述 4
2.2桥梁方案比选原则 4
2.3主要桥型比选 5
2.3.1拱桥 5
2.3.2预应力混凝土连续梁桥 6
2.3.3斜拉桥 6
2.4桥型比选结论 7
第3章 桥梁方案设计 8
3.1雅雀坪大桥设计基本资料 8
3.1.1主要技术标准 8
3.1.2主要材料 8
3.2上部结构设计 10
3.2.1总体设计 10
3.2.2主梁一般构造 10
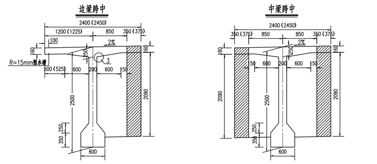
3.2.3主梁截面细部尺寸图 11
3.2.4相关设计参数 12
3.2.5预应力钢束设计 12
3.3施工要点及注意事项 15
3.3.1施工要点 15
3.3.2施工注意事项 17
第4章 Midas模型 18
4.1Midas建模过程 18
4.1.1施工要点 18
4.1.3定义截面 18
4.1.3定义变截面 19
4.1.4建立模型的节点和单元 19
4.1.5变截面组定义 19
4.1.6预应力钢束布置 20
4.1.7时间依存性材料定义 22
4.1.8边界条件及边界组的定义 23
4.1.9荷载及荷载组定义 24
4.1.10施工阶段的定义 27
4.2 Midas 模型分析过程 28
4.2.1Midas模型分析前处理 28
4.2.2生成荷载组合 28
4.2.3模型运行结果的初步判断 29
4.2.4进行PSC设计 31
第5章 结构内力计算 33
5.1恒载内力计算 33
5.2 活载效应分析 34
5.3 作用组合分析 37
5.3.1进各种作用的分类 37
5.3.2各种作用的代表值 37
5.3.3作用组合 37
第6章 附加内力分析及预应力损失分析 46
6.1附加内力分析 46
6.1.1预应力效应分析 46
6.1.2温度效应分析 47
6.1.3支座沉降引起的附加应力 48
6.1.4混凝土收缩徐变效应 50
6.2预应力损失分析 51
第7章 附加内力分析及预应力损失分析 55
7.1施工阶段法向压应力验算 55
7.2受拉区钢筋的拉应力验算 57
7.3使用阶段正截面抗裂验算 59
7.4使用阶段斜截面抗裂验算 61
7.5使用阶段正截面压应力验算 63
7.6使用阶段斜截面主压应力验算 65
7.7使用阶段正截面抗弯验算 67
第8章 桥梁墩台计算 69
8.1盖梁的计算 69
8.1.1恒载计算 69
8.1.1活载计算 69
8.1.2内力计算 76
8.2桥墩的计算 77
8.2.1荷载计算 77
8.2.2截面配筋计算及应力计算 77
8.2.1截面配筋及应力验算 79
结论 82
参考文献 83
致谢 84
第1章 绪论
1.1课题研究的背景
在桥梁设计和使用的发展历程中,预应力混凝土梁桥相对于其他类型的桥梁来说有着举足轻重的地位。尤其是现在的桥梁建设,中、小跨径及较大跨径的桥梁大部分都采用了此类桥梁,而且近几十年来其建设工作发展速度日益加快,相关的技术支持与设计标准基本上都已经相当成熟,并且对于其中的一些标准跨径桥还有专门的设计通用图纸,极大地促进了该类桥梁的发展与应用。但其实,在相关的设计、施工新工艺及新型材料的应用上还有进步空间,尤其是新材料应用方面需要进一步的完善与改进,如:超高强度混凝土等,使桥梁危险部分或构件的材料选择更加多样,加强了其工作性能和安全性,在投入使用后也能更好的发挥工作性能减少桥梁损坏并延长使用寿命,无论是从降低成本还是加强安全的方面来说都得到了很大的提升。
1.2本次设计的任务要求
1.2.1课题背景
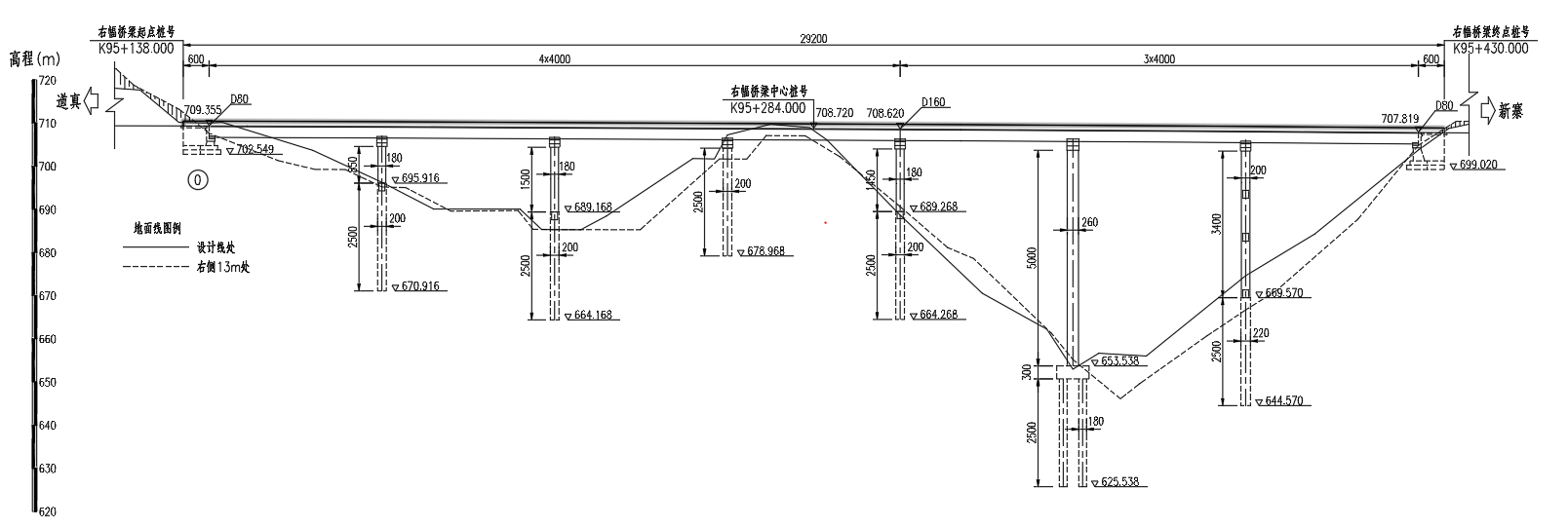
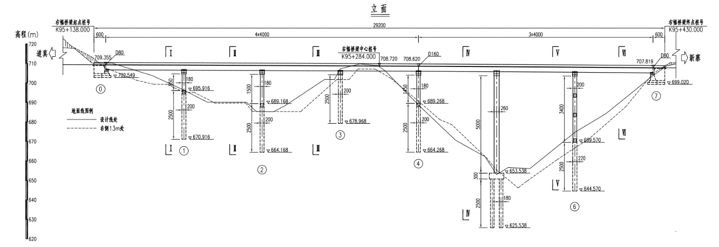
课题来源于工程实践——贵州省道真至新寨高速公路雅雀坪大桥,研究对象为7×40mT梁,简支转连续梁桥,奇数跨受力情况相仿,故选择三跨进行计算。
1.2.2设计依据
- 《公路工程技术标准》(JTG B01-2003)
 - 《公路桥涵设计通用规范》(JTG D60-2004)
 - 《公路钢筋混凝土及预应力混凝土桥涵设计规范》(JTG D62-2004)
 - 《高速公路交通工程及沿线设施设计通用规范》(JTG D80-2006)
 - 《公路交通安全设施设计细则》(JTG/T D81-2006)
 - 《公路桥梁养护规范》(JTG H11-2004)
 
1.2.3设计内容
- 用Midas软件较精确地模拟该连续T梁桥的主桥上部结构;
 - 完成恒载内力标准值计算、活载内力标准值计算、收缩及徐变引起的二次内力标准值计算、预应力损失引起的二次内力标准值计算、荷载组合、各主要构件承载力极限状态验算、各主要构件正常使用极限状态验算;
 - 完成成桥阶段内力分析;
 - 根据Midas模型验算分析及部分设计手算的结果,按照指导老师要求,编写设计说明书;
 - 依据指导老师的要求,完成相关外文文献的翻译工作。
 
1.2.3提交成果
- 设计说明书,内容包含:设计资料介绍、结构内力计算、预应力筋布置、各种验算结论等。
 - MIDAS/Civil程序及计算输入、输出数据。
 - 设计图纸,包括:A. 桥式总布置图;B. 连续梁主跨上部结构图;C. 连续梁配筋图
 
1.3本次设计的意义
本次毕业设计会使我们对桥梁设计的相关知识产生更深的认识你,桥梁设计是一项复杂且严禁的工作,需要我们充分利用自身所学的知识以及在实际现场终了解到的施工内容,通过制定各种切实可行的桥梁设计方案来比对各种桥型的体系结构特点、受理特性、所适应的跨度范围、目前的发展水平、经济性、还有各种桥型所适用的地形地貌条件和地址条件。掌握桥型的设计原则,并且通过多个方面来对拟定的方案进行比选工作,最终综合确定最优方案。同时在整个设计的过程中还可以进一步巩固我们在结构计算尤其是桥梁工程结构计算方面的知识理论,学会利用专业知识和专业设计计算软件进行桥梁上部结构的设计和计算,熟练掌握预应力混凝土结构尤其是应用于桥梁工程方面的设计原则和步骤,并熟练使用AutoCAD绘制施工图。本设计的另一个目的是通过依据实际工程背景,进行实际的桥梁设计,真正的了解实际桥梁设计的要求和流程,为今后从事相关工作或者学术研究打下坚实的基础。另外,本次设计还可以复习并综合运用所学专业知识,补足短板,对建立和完善对应的知识体系有着极大地帮助。在实际工程中运用自己所学习的知识,通过实践来加深自己对于理论知识的学习,也是我们离开校园走向工作岗位所需要的。通过这次毕业设计,也会培养我们在独立思考,分析解决问题方面的能力。
第2章 桥型方案比选
2.1概述
桥梁设计工作初期的工作重点是桥型方案的比选,需要根据设计要求拟定多个桥型并通过多个方面进行综合的比选工作。各桥型方案均需依照实际的地形地貌和桥跨长度绘制桥型布置图。
各桥型方案的优劣比较以及最终方案的确定,要综合考量各项指标,充分的确定每个方案自身的优缺点,保证最终方案是所有比选方案中最适合实际工程背景的。同时,各个方案之间要充分的互相借鉴优秀设计点,只有这样才能真正的发挥桥梁比选工作的价值,
2.2桥梁方案比选原则
桥梁设计工作前期的重点是桥型方案的设计和比较选择,可以影响整个设计工作,综合考量拟定方案的各个方面,进而对每种方案的各个评价指标给出明确的比选结果。最终确定最佳方案需要依据各个方案之间优缺点的全面比较,能否进行全面及详细的分析比选是桥梁方案比选工作能否顺利完成的关键。
桥型方案优缺点的确定参考下列原则:
- 各方案施工成桥后的实际使用工作性能,如桥梁在满足各方面要求所达到的程度。
 - 桥梁结构的合理性。
 - 桥梁的安全性,它包括桥梁从开始建设到建成投入使用以及整个使用周期全时间段内整个结构安全性能。
 - 桥梁的性价比,它不仅包括施工过程中施工难度带来的成本差异,材料选择方面的成本差异,还包括桥梁建成投入使用后实际维护保养工作以及运营收益等方面,这些都可以影响整个桥梁的经济性,桥梁的性价比需综合考虑。
 - 桥梁的美观性,除了满足人类审美角度的基本要求还应结合环保方面考虑,使建筑充分的与当地自然环境相结合,达到一种相互融合的美,同时还可以降低对自然环境的影响。
 
根据以上所提及的桥梁方面比选原则,结合各个方面进行全面详细的比较分析,然后确定最优方案。
2.3主要桥型比选
2.3.1拱桥
拱桥是以桥拱实现桥梁竖直平面内承重这一要求的。桥孔设计灵活多样,可根据桥跨长度选择多孔或者单孔,在多孔设计方面,奇数孔设计多于偶数孔,当桥孔主拱受荷时,能通过桥墩的变形或拱上结构的作用将荷载由近及远的传递到其它孔主拱继而实现均匀受荷,并且能很好的将荷载传递到基础上,其中箱拱可满足大跨径公路桥设计的基本要求。
- 优点:相对于其他桥型可以较好的减少材料用量,桥体的耐久度不会因为材料用量的减少而变差,有利于维护和降低成桥后的经济成本;桥型漂亮;构造较简单,采用广泛。
 - 缺点:拱桥在受荷过程中会将竖直方向的荷载转换为水平推力,这就要求拱桥的桥墩需要设置推力装置来满足水平推力的影响,同时对地基的要求也相应的变高;为了满足桥拱的曲线趋于合理,所以建筑高度会增加,同时也会导致拱桥两端路面边坡填土量增大,造价会增加角度,经济性效果较差、同时也提高了桥面的纵坡坡度,对行车造成了困难。
 - 施工综述:结合设计要求,拟采用现浇钢筋混凝土拱桥,现浇拱桥在施工过程中荷载较大,因此在搭设支架前对地基进行全面处理,支架可采用满堂支架,支架假设完成后要进行支架预压,保证施工安全,提高现浇拱桥质量。
 

图2-1拱桥桥型布置图
2.3.2预应力混凝土连续梁桥
连续梁桥值指的是两跨级两跨以上的梁桥,结构连续的梁桥为超静定体系。
- 优点:连续梁桥在恒活载作用下时,在支点处会产生一定的负弯矩,相对于简支梁桥来说,支点的负弯矩可以在一定程度上抵消跨中正弯矩,也就是存在卸载作用,使内力状态趋于良性,基于此项作用可以适当减小梁高,加大桥下净空,不仅可以节省材料,还能提升通航能力,连续梁桥刚度大,整体性好,超载能力大,安全度大,桥面伸缩缝少,并且因为卸载作用,可以加长桥跨,加强跨越能力。连续梁桥因为其受力状态跟简支梁桥不同,而它的结构刚度较大,所以桥面的变形小,路面平顺,具有有利于行车安全舒适。
 - 缺点:连续梁桥是一种超静定构造,如果桥址的地基条件不好,基础会在外力作用的情况下产生不均称沉降,从而形成桥梁的结构不稳定。所以,在连续梁桥基础方面需要做细致的地质勘查,保证满足该桥型基础要求。
 - 施工综述:预应力混凝土连续梁桥使用已经非常普遍,桥梁总跨度约为280m,根据已有图纸图集,可选择740mT梁进行设计施工。可采取装配式,预制T梁后吊装,后进行现浇段施工,桥面铺装,即可完成全桥施工。
 

图2-2预应力混凝土连续梁桥型布置图
2.3.3斜拉桥
斜拉桥的承载是由拉索将作用在主梁的荷载传递到桥塔上的一种桥梁斜,其结构体系由承弯的主梁,受拉的桥索,承压的主塔组成。其可看作是拉索代替支墩的多跨弹性支承连续梁。由索塔、主梁、斜拉索三部分组成斜拉桥。
- 可以减小主梁内的弯矩,建筑高度得以降低,结构质量也更小,节省了建筑材料。桥梁跨越能力较强,受力合理,设计构思多样性,造型更加美观,悬臂施工方法更加安全。
 - 斜拉桥施工工序复杂且多为高空作业,尤其是主塔施工,需严格控制施工过程,连接结构复杂。
 - 施工综述:如图所示的斜拉桥所有绳索均锚固在了索塔顶部,顶部锚固点设计困难,且要求极高,桥梁总跨280m,图中只采用了一座桥塔,也不是最好的设计方案,应分两跨或三跨。
 
45
图2-3斜拉桥桥型布置图
以上是毕业论文大纲或资料介绍,该课题完整毕业论文、开题报告、任务书、程序设计、图纸设计等资料请添加微信获取,微信号:bysjorg。
相关图片展示:
![U(6VR29~T4J(CMC@DL92]@V](http://www.biyelunwen.org/wp-content/uploads/2020/02/lw6603_202021705649161.png)







        
            
