宜昌沙湾路上跨桥(2×74m独塔斜拉桥)施工图设计毕业论文
2020-02-17 00:56:44
摘 要
本设计的题目为宜昌沙湾路上跨桥(2×74m独塔斜拉桥)施工图设计。本设计说明书旨在对目标桥梁进行设计和分析。利用Midas Civil建模软件对目标桥梁进行成桥阶段和施工阶段分别进行模拟。在成桥阶段,查看并分析在静力荷载和移动荷载的荷载组合作用下,桥梁的变形形状以及内力图。斜拉桥在施工过程中会呈现比成桥阶段更为不稳定的状态,而且施工顺序也会对结构的位移、内力、应力等结果造成一定的影响。因此可通过其施工阶段分析来验算施工中产生的位移、内力、应力,并检查施工顺序和可施工性等方面的问题,从而找出最佳的施工顺序。对于斜拉桥,索力的调整也是一个重难点,在本说明书中也会包含索力调整过程。本设计说明书中包含桥梁的基本参数、方案比选、建模过程以及结果分析,进而完成恒载内力标准值计算、活载内力标准值计算、荷载组合、各主要构件承载力极限状态验算、各主要构件正常使用极限状态验算等。经过分析验算表明,本设计的计算方法正确,结果合理,完成设计任务的要求。
关键词:斜拉桥钢桥;成桥阶段分析;施工阶段分析;Midas Civil建模
Abstract
The design topic is construction drawing design of the span bridge (2×74m single-tower cable-stayed bridge) on shawan road, Yichang. This design specification aims to design and analyze the target bridge. Midas Civil modeling software was used to simulate the bridge completion stage and construction stage of the target bridge. At the bridge stage, the deformation shape and internal force diagram of the bridge under the combined action of static load and moving load are examined. In the construction stage, cable-stayed bridge will produce more unstable state than the bridge stage, and the construction sequence will also affect the displacement, internal force, stress and other results. Therefore, the best construction order can be found by analyzing and checking the displacement, internal force, stress, construction order, constructability and other aspects generated during the construction of formfitting. For the cable-stayed bridge, the adjustment of cable force is also a difficult point, this statement will also include the adjustment process of cable force. This design manual contains basic parameters of the bridge, scheme comparison and the modeling process and the analysis of the results, and then complete the standard constant load internal force calculation, internal force values of live load calculation, loss of prestress caused by standard secondary internal force calculation, load combination, every main component bearing capacity limit state calculation and checking serviceability limit states of main components. The result shows that the calculation method is correct and the result is reasonable.
Key words: Cable-stayed steel bridge; Bridge stage analysis; Construction phase analysis; Midas Civil modeling
目录
摘 要 Ⅰ
Abstract Ⅱ
第1章 绪论 8
1.1 课题研究的背景 8
1.2 本设计的任务要求 9
1.2.1 课题来源及背景 9
1.2.2 设计的主要内容 9
1.2.3 主要完成的任务 9
1.2.4 拟采用的技术方案及措施 9
1.3 本设计的目的及意义 10
第2章 桥梁的方案设计 11
2.1 设计初始资料 11
2.1.1 技术标准 11
2.1.2 材料参数 11
2.1.3 主要技术标准及采用规范 11
2.2 桥型比选 12
2.2.1 桥梁方案设计原则 12
2.2.2 方案比选 13
2.3 总体设计 17
2.3.1 主梁设计 18
2.3.2 桥塔设计 18
2.3.3 拉索设计 19
2.3.4 基座设计 20
第3章Midas Civil建模过程及结果分析 22
3.1 建模准备 22
3.1.1 设计建模环境 22
3.1.2 定义材料和截面特性值 22
3.2 成桥阶段建模 27
3.2.1 建立节点和单元 27
3.2.2 定义变截面组 29
3.2.3 定义边界条件 31
3.2.4 定义静力荷载工况 34
3.2.5 定义移动荷载工况 37
3.2.6 定义支座沉降 40
3.2.7 结构运行分析 40
3.2.8 生成荷载组合 40
3.2.9 查看分析结果 41
3.2 施工阶段建模 41
3.3.1 施工阶段模型 41
3.3.2 定义施工阶段名称 41
3.3.3 定义结构组 42
3.3.4 定义边界组 43
3.3.5 定义荷载组 43
3.3.6 定义施工阶段 44
3.3.7 施工阶段分析控制数据 46
3.3.8 结构运行分析 47
3.3.9 索力调整 47
3.3.10 查看分析结果 48
第4章 结构内力分析 49
4.1 成桥阶段分析 50
4.1.1 恒载内力分析 50
4.1.2 活载内力分析 55
4.1.3 变形形状 60
4.2 施工阶段分析 61
4.2.1 恒载内力分析 61
4.2.2 变形形状 66
4.2.3 索力大小 66
第5章 内力组合 68
5.1 作用组合 68
5.1.1 作用的分类 68
5.1.2 作用效应组合 68
5.2 承载能力极限状态组合 68
5.3 正常使用极限状态组合 74
第6章 施工方案 85
6.1 主梁施工 85
6.2 桥塔施工 86
6.3 拉索施工 86
6.4 基座施工 88
结论 89
参考文献 90
致 谢 92
附 录 93
第1章 绪论
1.1 课题研究的背景
斜拉桥是一种跨径适用范围广、外形美观又极具现代感的桥型,其独特的拉索结构能够有效的减小梁内弯矩,使主梁的高度降低,进而减轻结构的重量,节省了建筑材料,这也让斜拉桥具有向大跨度方向发展的潜力。斜拉桥相对于悬索桥有较大的刚度,在抵抗风载、地震、竖向活载等方面的作用也存在一定的优势。
从全世界范围来看,由于结构分析技术的进步、高强材料和新施工技术的应用以及防腐技术的发展,推动了大跨径斜拉桥的发展。随着现代科学技术的飞速发展,斜拉桥在应用材料、力学实验、抗震设计等方面的难题也逐渐得到解决,设计施工也日益成熟,桥跨也不断地向更大跨度迈进,结构形式更为美观,桥身更为轻巧,桥塔趋于独特异形和多样化。斜拉桥在我国的发展起步较晚但发展速度很快。随着国家经济建设和公路交通的发展,我国的斜拉桥建设进入高速发展阶段。目前我国已经建成多座世界级的大跨度斜拉桥,且我国斜拉桥的设计与施工技术也已经跨入世界的先进行列,并取得了显著的成绩:
(1)斜拉索制造工艺实现了专业化和工厂化及防护技术不断完善;
(2)斜拉桥的施工技术逐步完善;
(3)用计算机进行结构计算和施工过程控制等。
目前我国的斜拉桥正在向新型结构、大跨度、轻质和美观等方向发展,以更好的适应交通、经济、环境和安全的要求。由于斜拉桥结构和审美上优势,以及大量的建设尝试和研究,斜拉桥以后势必还会有更大的发展。

图1.1 世界斜拉桥排名
1.2 本设计的任务要求
1.2.1 课题来源及背景
课题来源:工程实例。
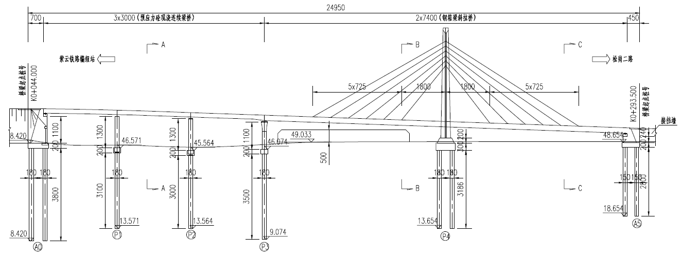
课题背景:宜昌市沙湾路桥梁的建造,本设计取其上跨桥部分进行设计和分析。
1.2.2 设计的主要内容
1)用Midas软件较精确地模拟该桥的主要结构,完成其结构内力分析;
2)完成恒载内力标准值计算、活载内力标准值计算、荷载组合、各主要构件承载力极限状态验算、各主要构件正常使用极限状态验算。
3)根据有限元分析及手算的结果,编写设计说明书;
4)根据指导老师的要求,完成相关英文文献的翻译工作。
1.2.3 主要完成的任务
1)查阅相关文献,编写开题报告;
2)完成宜昌沙湾路上跨桥主要结构Midas建模;
3)完成结构设计说明书,简要分析计算结果,设计说明书80页以上(A4);其中,计算说明部分:设计计算与说明书内容应包括:目录、设计内容简介、任务书、设计计算书、毕业设计总结等;设计部分:设计图表内容应包括:目录、设计说明书(总说明书、各篇说明书)、设计图表;
4)完成不少于30张A3图纸的设绘工作量,且以毕业设计中所涉及的主要结构的绘制工作为主;
5)查阅与本课题相关的参考文献、设计手册和著作,设计计算说明书中参考文献不少于20篇,其中外文文献不少于5篇;
6)完成不少于20000英文印刷符且与选题相关的文献翻译工作。
1.2.4 拟采用的技术方案及措施
1)技术方案:
a. 设计资料:现场地质资料,设计手册、相关文献、规范及标准。
b. 桥型方案比选:综合安全、适用、经济、美观等方面,以地质资料为基础,主要给出三种方案设计,经过比选后选出最佳方案。
c. 结构尺寸:拟定桥跨尺寸、钢箱梁截面细部尺寸、桥塔高度尺寸、桥塔截面尺寸等;
d. 建立上跨桥主要结构有限元模型;
e. 主梁内力计算:恒载内力标准值计算、活载内力标准值计算、预应力损失引起的二次内力标准值计算;
f. 荷载组合、各主要构件承载力极限状态验算、各主要构件正常使用极限状态验算。
2)技术措施:
a. 查阅设计手册、相关文献、规范及标准,确定桥型方案;
b. 用Midas软件较精确地模拟该桥的主要结构,并进行结构内力计算;
c. 利用Word编写设计计算说明书;
d. 利用Auto CAD绘制设计图表。
1.3 本设计的目的及意义
毕业设计是本科学习中所必须的且要求学生独立、认真完成的任务,同时也是将本科知识进行系统化、实践化的过程。在进行毕业设计的过程中,通过结合工程实例,综合所学的相关专业课程,比如:结构设计原理、桥梁工程、材料力学、结构力学、钢结构设计原理、AutoCAD绘图等,锻炼学生运用所学理论知识分析和解决实际问题的能力,让学生掌握桥梁设计各个设计阶段的设计内容。
本次毕业设计,注重提高学生看图识图以及CAD绘图的能力。通过让学生使用Midas进行桥梁结构的建模,进而独立完成桥梁结构的计算与分析工作。毕业设计能够让学生更加深刻地学习到桥梁工程的施工技术、施工方法、施工程序以及要求等,让学生熟练掌握CAD、Midas等专业绘图、建模软件,提高学生查阅文献资料,编写计算说明书的能力,同时也能提高学生将理论与实际相结合的能力,帮助学生建立科学的结构设计理念,并且学会用科学严谨的态度去对待自己的工作,为以后参加工作打好一定的基础。这是一次提升自身能力的机会,也是一段宝贵的经历。
第2章 桥梁的方案设计
2.1 设计初始资料
2.1.1 技术标准
桥梁结构形式:独塔斜拉桥。
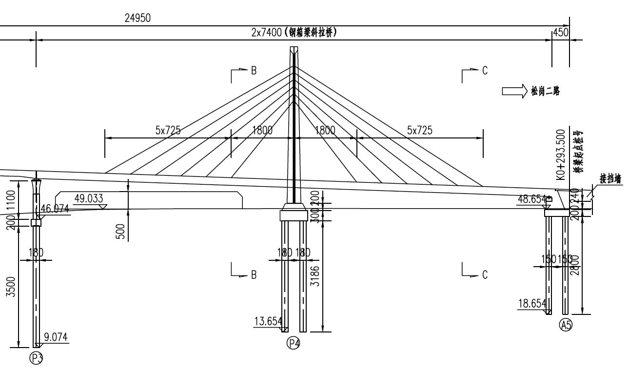
桥梁跨径:2×74m。
设计荷载:城A-荷载,双向四车道。
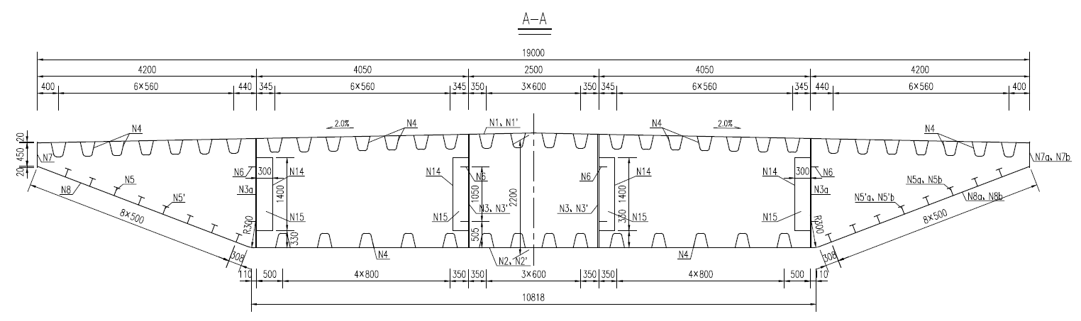
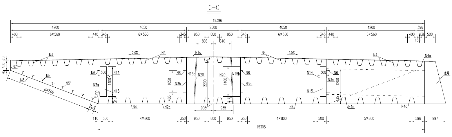
桥梁宽度:0.5m(防撞护栏) 0.25m(路缘带) 2×3.5m(车行道) 0.25m(路缘带) 0.5m(防撞护栏) 2.0m(锚索区) 0.5m(防撞护栏) 0.25m(路缘带) 2×3.5m(车行道) 0.25m(路缘带) 0.5m(防撞护栏)=19.0m。
桥面铺装:4cm厚SMA-13型沥青玛蹄脂混凝土(TLA SBS复合改性) 粘层油(PC-3型乳化沥青) 5cmAC-16C型中粒式SBS改性沥青混凝土 防水层 9cmC50钢纤维混凝土
桥面横坡:双向2.0%。
桥面纵坡:3.5%。
本桥平面位于直线上。
2.1.2 材料参数
钢材:主梁和桥塔均采用钢材,Q345qD。
斜拉索钢丝及锚具:主吊杆采用PES7镀锌高强钢丝,其标准强度为R=1770MPa,E=2.0×10MPa,拉索采用PES7系列冷铸墩头锚,其组合构件须符合《斜拉桥热挤聚乙烯高强钢丝拉索技术条件》(GB/T 18365-2001)要求,锚具经调制热处理,外表面镀锌。锚杯和锚圈的半成品表面在镀锌前应做磁粉探伤,磁粉探伤按JB3965规定执行。
混凝土:基座采用C50混凝土。
2.1.3 主要技术标准及采用规范
公路桥涵设计通用规范(JTG D60-2015).
公路钢筋混凝土及预应力钢筋混凝土桥涵设计规范(JTG D62-2012)
斜拉桥热挤聚乙烯高强钢丝拉索技术条件(GB/T 18365-2001)
公路工程技术标准(JTG B01-2014)
公路桥涵地基与基础设计规范(JTG D63-2007)
公路桥涵施工技术规范(JTJ/T F50-2011)
公路桥涵钢结构及木结构设计规范(JTG D61-2005)
公路桥梁板式橡胶支座规格系列 (JT/T 663-2006)
公路工程质量检验评定标准(JTG F80-1-2004)
公路工程水文勘测设计规范(JTG C30-2002)
2.2 桥型比选
2.2.1 桥梁方案设计原则
桥梁设计应符合安全可靠、适用耐久、技术先进、经济合理的要求,还应遵循美观和有利于环保的原则,并综合考虑因地制宜、就地取材、便于施工和养护等因素。
- 安全性
所设计的桥梁结构,在制造、运输、安装和使用过程中应用有足够的强度、刚度、稳定和耐久性,并应具有一定的安全储备以满足将来交通量增长的需求。根据桥下通航或行车的安全的要求,应留有足够的通航或通行高度,并考虑到洪水期等意外情况;根据桥上交通和行人的安全的要求,桥面应考虑设置人行道、路缘石、防撞护栏以及栏杆等设备。桥上还应设有照明设施,引桥纵坡不宣过陡,地震区桥梁,按抗震要求采取防震措施。
- 适用性
桥面宽度能满足当前以及今后规划年限内的交通流量(包括行人通道)。桥梁的两端要便于车辆的进入和疏散,而不致产生交通堵塞现象等。桥跨结构的下方要有利于泄洪、通航(跨河桥)或车辆(立交桥)和行人的通行(早桥)。桥梁结构在运行过程中不能出现过大的形变和过宽的裂缝。已建成的桥梁还应能够保证使用年限,并便于检查和维修。
- 经济性
经济的桥梁设计应是遵循因地制宜,就地取材和方便施工的原则,以适用最少的费用建成,同时,桥梁的经济型还体现在将来的养护和维修费用上。综合来说,经济的桥型应该是造价和养护费用综合最省的桥型。
- 技术先进性
设计和建造的桥梁要能够体现现代桥梁的新技术。在因地制宜的前提下,桥梁设计应尽可能采用成熟先进的工艺技术、机械设备、新型材料等。在认真学习国内外的先进技术、充分利用最新科学技术成就的同时,努力追求创新,淘汰和摒弃原来落后和不合理的设计思想。只有这样才能更好地贯彻适用、经济、安全、美观的原则,提高我国的桥梁建设水平,赶上和超过世界先进水平。
- 美观性
一座桥梁,尤其是城市桥梁和游览地区的桥梁,应具有优美的外形,结构布置精炼,空间闭口和谐,与周围环境协调。合理的结构布局和轮廓是美观的主要因素,此外,施工质量也会影响桥梁美观性。
2.2.2 方案比选
根据当地的地形地质条件、地理条件和技术标准,且由于该桥为城市桥梁,桥下有通行要求,在布置跨径的时候要考虑桥墩的位置,留有足够的桥下净空,不能影响通行,同时因为是城市桥梁,还要考虑到与周围环境的协调性。按照以上要求拟选出以下三个初选方案。
以上是毕业论文大纲或资料介绍,该课题完整毕业论文、开题报告、任务书、程序设计、图纸设计等资料请添加微信获取,微信号:bysjorg。
相关图片展示:









