河北省邢台市质监站公楼设计毕业论文
2020-02-16 23:59:21
摘 要
本计算书是针对武汉理工大学土木工程与建筑学院土木工程专业2015级毕业设计“河北省邢台市质监站办公楼”所做的书面成果。本办公楼为六层钢筋混凝土框架结构。
在建筑设计中,主要根据老师给出的建筑设计要求,再通过查找《住宅设计规范》和网上资料,确定建筑布置,进而确定其具体的建筑构造,做法和材料,从而定下最终的建筑方案。
结构设计中前期的一个月的时间里,即手算一榀框架前,是先用PKPM软件对整个结构进行三维立体建模及计算,使整体结构的布置满足电算的要求,具有一定的合理性。
老师给出计算第轴线的横向框架作为本次手算的任务,选择结构方案,初步设计梁、柱截面;然后确定其具体所受的荷载,其中包括恒荷载,活荷载,风荷载,地震作用;再通过弯矩二次分配法计算在恒、活荷载作用下横向框架内力,通过D值法、底部剪力法计算在风荷载、地震作用下横向框架内力;再进行组合后得到各截面的控制内力,最后进行各构件(梁、板和柱)的配筋计算。
此外,还进行了楼梯设计,完成梯段板,平台板,平台梁等构件的荷载、内力和配筋计算及施工图绘制。根据工程地质资料,采用柱下独立基础,确定基础埋深,验算持力层承载力,再进行基础的底面面积和配筋计算。
最后将手算与电算的结果进行对比,了解手算与电算之间的误差来源,这对于大学四年所学的知识有一个很好的总结应用,为毕业后的就业打下良好的基础。
关键词:办公楼;钢筋混凝土框架结构;荷载计算;内力组合;配筋计算
Abstract
This calculation book is aimed at the written results of the graduation design of Grade 2015 of Civil Engineering Specialty, School of Civil Engineering and Architecture, Wuhan University of Technology, "Office Building of Xingtai quality Supervision Station, Hebei Province". This office building is a six-story reinforced concrete frame structure.
In the architectural design, mainly according to the architectural design requirements given by the teacher, and then by looking up the "Code for Housing Design" and online data, determine the architectural layout, and then determine its specific architectural structure, practices and materials. In order to determine the final building plan.
In the period of one month in the early stage of structural design, that is, before calculating a frame by hand, the three-dimensional modeling and calculation of the whole structure are carried out by using PKPM software, so that the layout of the whole structure can meet the requirements of computer calculation and has a certain degree of rationality.
The teacher gives the transverse frame for calculating the axis as the task of this manual calculation, selects the structural scheme, designs the cross section of beam and column, and then determines the specific load, including constant load, live load, wind load and seismic action. Then the internal force of transverse frame under constant and live load is calculated by moment quadratic distribution method, and the internal force of transverse frame under wind load and earthquake is calculated by D value method and bottom shear method. Finally, the reinforcement of each member (beam, slab and column) is calculated.
In addition, the stair design is carried out, and the load, internal force and reinforcement calculation and construction drawing of the ladder plate, platform beam and other members are completed. According to the engineering geological data, using the independent foundation under the column, the buried depth of the foundation is determined, the bearing capacity of the bearing layer is checked, and then the bottom area and reinforcement of the foundation are calculated.
Finally, the results of manual calculation and computer calculation are compared to understand the source of error between manual calculation and computer calculation, which has a good summary and application of the knowledge learned in four years of college, and lays a good foundation for employment after graduation.
Key Word: office building; reinforced concrete frame structure; load calculation; internal force combination; reinforcement calculation
目 录
绪 论 1
第1章 工程概述 2
1.1工程名称 2
1.2 工程概况 2
1.3工程地质及水文气象条件 2
1.3.1地质资料 2
1.3.2地震资料 2
1.3.3气象条件 2
1.4材料选用 2
第2章 结构设计 3
2.1框架结构承重方案的选择 3
2.2柱网布置 3
2.3计算单元选取 3
2.4框架梁柱截面尺寸计算 6
2.4.1框架梁截面尺寸的确定 6
2.4.2框架柱截面尺寸的确定 7
2.5框架梁柱线刚度计算 8
2.5.1梁线刚度的计算 8
2.5.2柱线刚度的计算 8
2.5.3相对线刚度计算 9
第3章 荷载计算 11
3.1恒荷载标准值的计算 11
3.2活荷载标准值的计算 13
3.3竖向恒荷载作用下框架荷载计算 14
3.4风荷载计算 18
3.5地震作用 19
3.5.1 重力荷载代表值 19
3.5.2计算方法 21
3.5.3自振周期 21
3.5.4.水平地震作用标准值的计算 23
第4章 内力计算 25
4.1恒荷载标准值作用下内力计算 25
4.1.1各跨梁的固端弯矩计算 25
4.1.2各节点分配系数 27
4.1.3计算过程 30
4.2 活荷载标准值作用下内力计算 35
4.2.1各跨梁的固端弯矩计算 35
4.2.2各节点分配系数 36
4.2.3计算过程 36
第5章 水平荷载作用 41
5.1风荷载作用下内力计算 41
5.2 框架柱反弯点位置 41
5.3 风荷载作用下框架侧移的近似计算 44
5.4地震作用下框架内力计算 45
5.5水平地震作用下侧移的近似计算 47
第6章 内力组合 48
6.1荷载基本组合 48
6.1.1一般荷载组合 48
6.1.2考虑地震作用效应组合 48
6.2内力转换 48
6.3控制截面及最不利内力 49
6.3.1框架梁控制截面最不利内力组合 49
6.3.2框架柱控制截面最不利内力组合 49
第7章 框架梁柱设计 65
7.1框架梁截面设计 65
7.1.1框架梁的正截面受弯承载力计算(以第五层为例) 65
7.1.2斜截面受剪承载力计算 67
7.1.3框架梁纵筋的锚固长度 73
7.2框架柱截面设计 73
7.2.1轴压比验算 73
7.2.2柱端弯矩的调整 74
7.2.3框架柱正截面承载力计算 74
7.2.4框架柱斜截面承载力计算 77
7.3构件裂缝宽度验算 86
7.3.1框架梁裂缝宽度验算 86
7.3.2框架柱裂缝宽度验算 87
第8章 板的计算 91
8.1.1板的布置 91
8.2荷载计算 92
8.3配筋计算 94
第9章 楼梯计算 95
9.1 设计资料 95
9.2梯段板设计 95
9.3平台板计算 96
9.4平台梁计算 97
第10章 地基基础设计 100
10.1基本概况 100
10.2基础埋深确定 100
10.3地基承载力验算 100
10.3.1地基承载力特征值修正值计算 100
10.3.2初步选择基底尺寸 100
10.3.3地基承载力验算 101
10.3.4地基承载力抗震验算 102
10.3.5地基变形验算 102
10.4基础梁的设计 102
10.5柱下单独基础设计 102
10.5.1基底净反力计算 102
10.5.2基础截面抗冲切验算 103
10.5.3配筋计算 105
结束语 108
参考文献 109
致谢 110
绪 论
土木工程是具有很强的实践性的学科,这次毕业设计也就是对我们四年的大学学习一个很好的实践锻炼的机会。虽然说,随着计算机的普及,各类程序的逐渐成熟,使得设计周期变得越来越短,计算也越来越简单,可电脑毕竟是一个程序,它只会按照编好的一步一步计算,而结果是否合理,经济,计算的模型是否符合真实的工程,这就需要人为的去调整,去复核,这样就要求必须知道计算中的任何一步是怎么得来的,了解掌握其原理和过程。故本次毕业设计不但要求掌握PKPM的计算建模的方法,还需要手算一榀框架,进一步掌握和巩固所学的专业知识。
本次毕业设计的题目是河北省邢台市质监站办公楼设计,结构设计部分主要是先进行结构的选型,柱网的布置,梁柱截面的估计,再用PKPM建模计算整体的受力是否合理,由于是小高层,除了要满足梁柱的截面受力要求,还必须考虑整体的平扭比,位移比,调整后绘出整套的完整的施工图纸,手算任务为选取一榀有代表性的框架进行荷载统计,内力计算、组合及验算,主要:弯矩二次分配法计算荷载作用下的框架内力,D值法计算风荷载下框架内力,底部剪力法计算地震荷载作用下框架内力,再内力组合获得控制截面,最后进行各个构件的配筋及验算。以上的设计内容涵盖了整个大学所学的知识,将所学的知识系统化,整体化了。
工程概述
1.1工程名称
河北邢台市质监站办公楼
1.2 工程概况
本工程为办公楼设计,场地平整,总层数为六层。各层层高3.90米,楼梯间出屋面高3.0m。根据场区高程的实测数据及规划部门的相关材料,确定首层室内外高差为0.6m,底层室内设计标高±0.000。建筑总面积为3883.44m2。建筑防火等级为二级
1.3工程地质及水文气象条件
1.3.1地质资料
,厚度20m以上,承载力特征值。
1.3.2地震资料
本工程建筑抗震设防类别均为丙类,抗震设防烈度为7度,设计基本地震加速度值为0.15g,设计地震分组为第一组,场地土类型为中硬场地土,建筑场地类别为II类,建筑的设计特征周期为0.35s。框架抗震等级为三级。
1.3.3气象条件
基本风压:0.30KN/m2,采用50年一遇的风压值,地面粗糙度B类。
基本雪压:0.35KN/m2,采用50年一遇的雪压值。
1.4材料选用
1.混凝土:梁、板、柱和基础均为C30;
2.墙体:外墙采用250 mm厚加气混凝土砌块,内墙采用150 mm厚加气混凝土砌块;
3.钢筋:梁、板、柱纵筋、基础钢筋、箍筋:HRB400级(Ⅲ级);
结构设计
面板厚为120mm,楼面板厚为100mm。楼梯采用钢筋混凝土板式楼梯。
2.1框架结构承重方案的选择
竖向荷载的传力途径:楼板的恒载和均布活载直接或经次梁间接传至主梁,再由主梁传至框架柱,经框架柱传于基础,最后传至地基。
2.2柱网布置
本办公楼标准层柱网布置如图2.1所示。
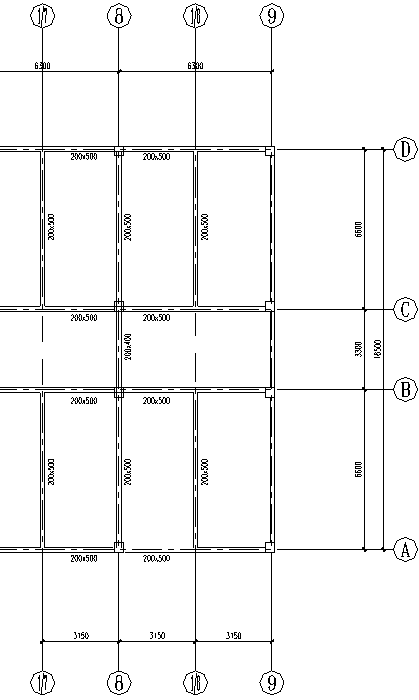
2.3计算单元选取
框架结构的计算单元选取简图如图2.2所示,取⑧轴线上的一榀框架计算。假定框架柱嵌固于基础顶面,框架柱与基础刚接,框架梁与柱刚接。由于各层柱的截面尺寸发生改
基顶标高根据地质条件、室内外高差,定为-1.500m,二层楼面标高为3.900m。其余各层柱高从楼面算至上一层楼面,故均为3.9m。计算单元立面示意图如图2.3所示。
以上是毕业论文大纲或资料介绍,该课题完整毕业论文、开题报告、任务书、程序设计、图纸设计等资料请添加微信获取,微信号:bysjorg。
相关图片展示:









