宿迁某学院多功能办公楼设计毕业论文
2020-04-22 19:38:40
重要提示:1.本电子文档标准格式中的各类说明(用蓝色字体表示)仅供参考,在参阅后请自行删除(包括本提示),黑色字体的内容全部保留。
2.本文档中日期的填写务必与“毕业设计任务书”中的工作进度计划相符。

毕业设计(论文)计算书
学生姓名: 全鑫
学 号: 1801150417
所在学院: 土木工程学院
专 业: 土木工程
设计题目: 宿迁某学院多功能办公楼设计
指导教师: 徐 锋 张伟郁 张国华
2019 年1 月 18日



目录



第一章 设计任务及资料
1.工程概况
本毕业设计 “宿迁某学院多功能办公楼设计”为实际工程应用设计。建筑场地长宽约50m×15m,建筑面积约4523m2,为六层钢筋混凝土框架结构。因功能需要,该建筑在一层设置大型报告厅室一个(跃层大空间),其它层设置普通会议区若干。按照勘察报告,工程场地Ⅱ类,建议采用桩基础。
2.工程地质资料
(1)经勘察查明,根据地层的沉积特点和物理力学特性自上而下共可划分为3层,各土层描述如下:
①层:人工填土, 厚度1.2m, 地基承载力特征值fak=60kPa。
②层:粘性土,厚度3m, 地基承载力特征值fak=260kPa。
③层:粉砂,厚度15m, 地基承载力特征值fak=360kPa。
(2)本工程地下水埋深为10米左右,地下水对钢筋混凝土结构不具侵蚀性。
(3) 建筑场地类别: II类。
3. 施工技术条件
本工程由大型建筑工程公司承建,设备齐全,技术良好。水、电供应由建设单位保证。
4.材料供应
三材及一般材料能按计划及时供应。
5、结构和场地地震效应
(1)本工程为多层框架结构,建筑结构的安全等级为二级。
(2)本工程地点位于江苏省宿迁市,抗震设防烈度为8度,设计基本地震加速度值为0.30g,建筑结构安全等级为二级,设计使用年限为50年,设计地震分组为第一组,特征周期为0.35s。
(3)工程场地Ⅱ类。
(4)按“建筑工程抗震设防分类标准”,本工程为丙类建筑。
6、荷载资料
(1)办公楼楼面活载,查《建筑结构荷载规范》GB5009-2012,确定办公楼面活载标准值为2.0KN/m2,办公楼走廊为2.5KN/m2,楼梯楼面活载标准值为3.5KN/m2;
(2)不上人屋面:活载标准值为0.7 KN/m2;
(3)屋面构造:
35厚490×490的C20预制钢筋混凝土架空板、防水层、20后1:3水泥砂浆找平层,现浇钢筋混凝土屋面板、12厚纸筋石灰粉平顶;
(4)楼面构造:
水泥楼面:10厚1:2水泥砂浆面层压实抹光、15厚1:3水泥砂浆找平层、现浇钢筋混凝土楼面板、12后纸筋石灰粉平顶;
(5)维护墙:
维护墙采用200厚混凝土空心小砌块(容重2.36 KN/m2),M5混合砂浆砌筑,双面粉刷(容重3.6 KN/m2),每开间采用2100×2100(b×h)通长塑钢窗。
本工程采用全现浇框架结构,由于开间较小,双向板的跨度超过经济跨度不多,同时考虑使用要求,不在楼面设置次梁。
7、设计要求
根据所提供的总平面图和设计要求,完成主要建筑设计、上部框架结构及基础计算、构件设计、节点构造设计、施工图绘制、施工组织设计等工作。
具体要求如下:
(1)、建筑部分
根据所提供的总平面图及标准层柱网布置图,进行建筑设计,并完成相应的建筑施工图绘制。
(2)、结构部分
结构计算
(1)进行结构布置,进行构件截面尺寸及材料强度等级选择。
(2)对下列结构、构件进行设计计算:
①手算一榀横向框架
永久荷载及其效应;可变活载(考虑不利布置)及其效应;风荷载及其效应;地震作用及其效应;其余软件计算。
②内力分析、内力组合与梁柱截面设计,手算底层、标准层和顶层;其余软件计算。
③现浇楼面板:任选一标准层手算,其余软件计算。
④楼梯设计:任选一楼梯间手算,其余软件计算。
⑤基础设计:完成基础选型、平面布置,基础相应设计计算。
(3)绘制施工图(详细要求见后)。
(4)结构设计计算说明书编写要求。
第二章 结构选型与布置




第三章 确定计算简图
3.1确定计算简图
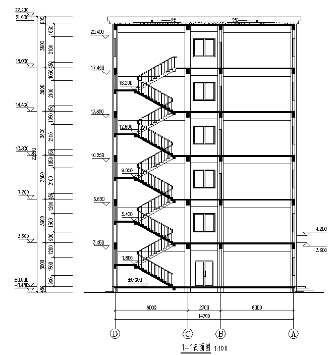
本工程横向框架计算单元取图2-4中斜线部分所示范围,框架的计算简图假定底层住下端固定于基础,按工程地质资料提供的数据,该场地为Ⅱ类场地土,地质条件较好,初步确定本工程基础采用柱下独立基础,挖去所有杂填土,基础置于第二层粉质粘土层上,基地标高为设计相对标高-2.10m。柱子高度底层为:h1=3.6 2.1-0.5=5.2m(初步假定基础高度为0.5m),二~四层柱高为h2~h4=3.6m。柱节点刚接,横梁的计算跨度取柱中心至中心间距离,三跨分别为:l=6000、2700、6000。计算简图简图3-1。

图3-1 计算简图
3.2梁、柱截面尺寸
(1)框架柱:450×450;
(2)梁:横向框架梁AB跨、CD跨:250×600,BC跨:250×500。纵向连系梁:250×600。第二层框架梁:300×800。计算简图如图2-8所示。
(3)板:120mm。
3.3 材料强度等级
混凝土:均采用C30等级
受力钢筋和箍筋都采用HRB400钢筋
3.4 荷载计算
以⑤轴线横行框架为计算分析对象。
1.屋面横梁竖向线荷载标准值


- (b)
图3-2荷载计算简图
(1)恒载(图3-2a)




图3-3 恒载顶层集中力
4.楼面框架节点集中荷载标准值:(图3-4)

图3-4 恒载中间层节点集中力
(1)永久荷载:
18.0 kN
1.57 kN
1.8×1.5×0.4=1.08 kN
[(4.8-0.45)×3.6-1.8×1.5]×2.36=30.59 kN
2×(4.35×3.6-1.8×1.5)×0.02×17=8.81 kN

0.5×4.8×0.5×4.8×3.692=31.27 kN
81.32 kN

GA=GD=81.32 kN
GA’=GD’=0.8×0.8×3.6×25=57.60 kN
18.0 kN
1.57 kN
(4.8-0.45)×(3.6-0.6)×2.36=30.80 kN
2×4.35×3×0.02×17=8.87 kN

0.5×4.8×0.5×4.8×3.692=21.27 kN
0.5×(4.8 4.8-2.7)×2.7/2×3.692=17.20 kN
97.71 kN

GB=GC=97.71 kN
GB’=GC’=57.6 kN

QA=QD=0.5×4.8×0.5×4.8×2.5=14.4 kN
QB=QC=0.5×4.8×0.5×4.8×2.5 0.5×(4.8 4.8-2.7)×2.7/2×3.5=30.70 kN

相关图片展示:










