昆山市某镇养老院医护楼设计毕业论文
2020-04-20 13:49:27
目录
1 结构选型与布置 1
1.1 工程概况及设计资料 1
1.1.1 工程概况 1
1.1.2 设计资料 1
1.2 结构选型与结构布置 4
1.2.1 结构选型 4
1.2.2 结构布置 4
2 计算简图与荷载计算 6
2.1 确定计算简图 6
2.2 梁、柱截面尺寸 7
2.3 材料选择 7
2.4 荷载计算 7
2.4.1 恒荷载标准值 7
2.4.2 横向框架上作用的恒荷载标准值 9
2.4.3 横向框架上作用的活荷载标准值 11
2.4.4 风荷载计算 11
2.4.5 地震荷载计算 13
3 框架内力计算 19
3.1 恒载作用下的框架内力 19
3.1.1 弯矩分配系数 19
3.1.2 杆件固端弯矩 25
3.1.3 节点不平衡弯矩 28
3.1.4 内力计算 28
3.2 活载作用下的框架内力 36
3.2.1 杆件固端弯矩 36
3.2.2 最不利组合 38
3.2.3 节点不平衡弯矩 39
3.2.4 内力计算 39
3.3 风荷载作用下的位移及内力计算 71
3.4 地震作用下横向框架的内力计算 77
3.4.1 0.5(雪+活)重力荷载作用下框架内力计算 77
3.4.2 地震作用下横向框架的内力计算 87
4 框架内力组合 93
4.1 弯矩调幅 93
4.2 框架梁、柱的内力组合 98
4.3 框架梁、柱的控制截面及最不利内力 122
5 框架梁、柱截面设计 123
5.1 框架梁的配筋计算 123
5.2 框架柱的配筋计算 129
6 楼梯结构设计 145
6.1 梯段板计算 145
6.1.1 荷载计算 145
6.1.2 内力计算 147
6.1.3 配筋计算 147
6.2 休息平台板计算 147
6.2.1 荷载计算 148
6.2.2 内力计算 148
6.2.3 配筋计算 148
6.3 梯段梁计算 148
6.3.1 荷载计算 148
6.3.2 内力计算 148
6.3.3 配筋计算 149
7 楼面板设计 150
7.1 设计资料 150
7.2 楼面板的计算 150
7.2.1 单向板计算 150
7.2.2 双向板计算 154
8 桩基础设计 158
8.1荷载计算 158
8.2工程地质条件 158
8.3单桩竖向承载力验算 159
8.3.1单桩竖向承载力特征值 159
8.3.2竖向承载力验算 160
8.4承台设计 161
8.4.1计算参数 161
8.4.2柱对承台的冲切验算 162
8.4.3桩对承台的冲切验算 163
8.4.4承台斜截面受剪验算 163
8.4.5承台受弯计算 165
8.4.6承台构造设计 166
8.5 桩身设计 166
8.5.1桩身结构设计 166
8.5.2桩身构造设计 167
9 软件分析结果与手算结果比较 168
1 结构选型与布置
1.1 工程概况及设计资料
1.1.1 工程概况
本毕业设计题目为实际工程应用课题。工程位于昆山市,该项目地上建筑约2.9万平方米,地下汽车库约0.8万平方米。本课题要求设计其中的医护楼,设计方案要求采用钢筋混凝土框架结构设计体系,建筑平面尺寸为67.2m×22.2m,地上结构六层,无地下室。建筑防火等级为二级,建筑结构安全等级为一级,建筑场地类别为Ⅳ类,地基基础设计等级为丙级。
1.1.2 设计资料
1. 气象资料
(1)基本风压值:ω0=0.45kN/m2
(2)基本雪压值:S0=0.40kN/m2
2. 工程地质资料
建筑物所在场地为Ⅳ类场地。根据勘查揭示,岩土层的分布如下:
①层填土,厚度为1.0~2.5m。
②层粉质粘土,层厚为0.2~1.3m;
③层淤泥质粉质粘土,层厚为2.1~4.0m;
④层黏土,层厚为4.8~5.7m;
⑤层粉质粘土,层厚为3.8~6.0m;
⑥层粉质粘土,层厚为2.1~4.1m;
⑦层粉土夹粉砂,层厚为4.7~6.5m。
地下水位在天然地面下0.7米,为上层滞水,随大气降雨及季节变化有升降,无侵蚀性。
3. 抗震烈度
拟建场地抗震设防类别为乙类,抗震设防烈度为7度,设计地震分组为第一组,设计基本地震加速度值为0.10g,特征周期为0.65s,水平地震影响系数最大值为0.08。
4.荷载资料
- 活荷载取值:查《建筑结构荷载规范》GB50009-2012,见表1-2。
 
表1-1 活荷载取值
序号  | 类别  | 活荷载标准值(kN/m2)  | 
1  | 上人屋顶活荷载  | 2.0  | 
2  | 一般房间活荷载  | 2.0  | 
3  | 走廊  | 2.5  | 
4  | 楼梯  | 3.5  | 
5  | 卫生间  | 2.5  | 
6  | 电梯机房  | 7.0  | 
(2)屋面构造
表1-2 屋面
构造层  | 材料重度  | 
C20细石混凝士30厚  | 24kN/m³  | 
4厚SBS政性沥青防水层  | 0.4kN/㎡  | 
1:3水泥砂浆找平层20厚  | 20kN/m³  | 
焦查混凝土状撕=3%,最薄处20厚  | 20kN/m³  | 
聚苯保温板80厚  | 0.5kN/m³  | 
钢筋混凝士楼板  | 25kN/m³  | 
混合砂浆抹面15厚  | 17kN/m³  | 
(3)楼面构造
表1-3 楼面
构造层  | 材料重度  | 
水磨石地面  | 0.65kN/㎡  | 
1:2.5水泥砂浆抹面压实赶光20厚  | 20kN/m³  | 
20厚素水泥浆结合层一道  | 20kN/m³  | 
钢筋混凝士楼板  | 25kN/m³  | 
混合砂浆抹面15厚  | 17kN/m³  | 
(4)外墙构造
表1-4 外墙
构造层  | 材料重度  | 
1:2.5水泥砂浆找平6厚  | 20kN/m³  | 
50厚聚苯保温砂浆  | 20kN/m³  | 
1:3水泥砂浆扫毛12厚  | 20kN/m³  | 
200厚加气混凝土砌块  | 7.35kN/m³  | 
混合砂浆抹面20厚  | 17kN/m³  | 
(5)内墙构造
表1-5 内墙
构造层  | 材料重度  | 
混合砂浆抹面20厚  | 17kN/m³  | 
200厚加气混凝土砌块  | 7.35kN/m³  | 
混合砂浆抹面20厚  | 17kN/m³  | 
(6)女儿墙构造
表1-6 女儿墙
构造层  | 材料重度  | 
1:2.5水泥砂浆找平6厚  | 20kN/m³  | 
50厚聚苯保温砂浆  | 20kN/m³  | 
1:3水泥砂浆扫毛12厚  | 20kN/m³  | 
200厚加气混凝土砌块  | 7.35kN/m³  | 
1:2.5水泥砂浆找平6厚  | 20kN/m³  | 
50厚聚苯保温砂浆  | 20kN/m³  | 
1:3水泥砂浆扫毛12厚  | 20kN/m³  | 
(7)门窗
窗 0.40kN/m2
门 0.2kN/m2
1.2 结构选型与结构布置
1.2.1 结构选型
本工程选用钢筋混凝土框架结构。框架结构具有较灵活地配合建筑平面布置的优点,利于安排需要较大空间的建筑结构。采用现浇钢筋混凝土框架时,结构的整体性、刚度较好,而且可以把梁或柱浇注成各种需要的截面形状。
1.2.2 结构布置
1. 平面布置
本工程为多层建筑,建筑高度较小,考虑建筑设计方案以及抗震设防要求等因素,本工程的平面现状选为方形,其优点是简单、规则,有利于抗震和施工。
2. 立面布置
本医护楼共六层,层高3.0m,女儿墙高1.2m,室内地面设计标高为±0.000,室内外高差0.45m。
3. 柱网布置及次梁设置
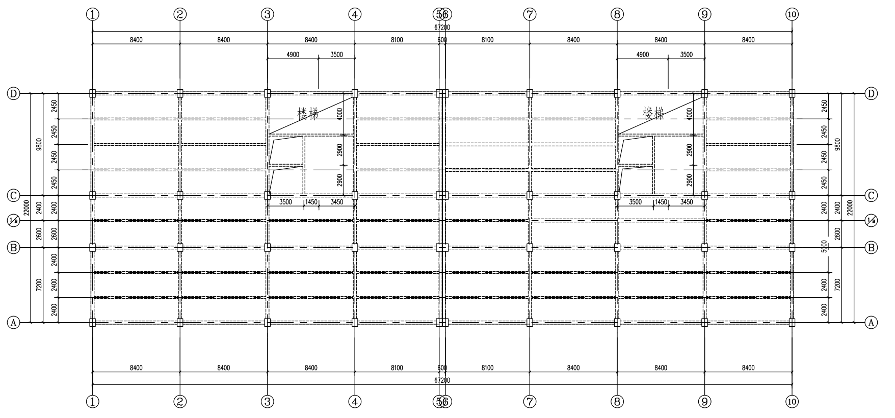
按设计任务书的要求,考虑到建筑的使用功能和结构的经济性,本工程柱网布置方式为:横向3跨,跨度分别为7.2m、5m和9.8m;纵向8跨,边上三跨柱距各8.4m,中间两跨8.1m,其中中间两跨间设有50mm的伸缩缝。根据建筑设计方案,为满足房间分割要求以及合理设置楼板的经济跨度,本工程楼面需设置次梁。
4. 基础方案
根据土层情况,采用混凝土预制桩,以粉土夹粉砂作为桩端持力层。
5. 楼梯方案
根据建筑设计方案以及结构的经济性,本工程采用平行双跑的现浇板式楼梯。
平面结构布置见下图:

图1.1 结构平面布置
2 计算简图与荷载计算
2.1 确定计算简图
本工程横向框架计算单元取图1.1结构平面布置中②号轴线所在框架,框架的计算简图假定底层柱下端固定于基础,按工程地质资料提供的数据,建筑场地类别为4类场地,本工程采用桩基础,承台置于地下2.5m处,基底标高为设计相对标高-2.50m。柱子的高度为:h1=3.0 2.5-0.5=5.0m,二层至六层柱高近似采用层高为3.0m。柱节点刚接,横梁的计算跨度取两柱中心线至中心线间的距离,三跨的计算跨度分别为:7200mm,5000mm,9800mm。
图2.1 计算简图
2.2 梁、柱截面尺寸
(1)框架柱:框架柱均为550mm×750mm,机房四周的梁上柱为300mm×300mm
(2)框架梁:框架横梁均为300mm×650mm,框架纵梁均为300mm×600mm
(3)次梁:AB跨、CD跨的纵向次梁:200mm×400mm,BC跨的纵向次梁:200mm×500mm,梯段梁:200mm×400mm
以上是毕业论文大纲或资料介绍,该课题完整毕业论文、开题报告、任务书、程序设计、图纸设计等资料请添加微信获取,微信号:bysjorg。
相关图片展示:








        
            
