昆山市某镇养老院1#养老楼设计毕业论文
2020-04-20 13:49:02
摘 要

Abstract
Keywords: frame structure, pension building, seismic design, precast pile foundation
第一章 工程概况
工程名称:昆山养老楼设计
1.1气象资料
(1)基本风压值:=0.45kN/t
(2) 基本雪压值:=0.40kN/
1.2水文地质条件
建筑物所在场地为Ⅳ类场地。根据勘查揭示,岩土层见第八章:
1.3抗震设防烈度:7度t
1.4荷载资料
:


第二章 确定计算简图
2.1确定计算简图


图2.1 t计算简图
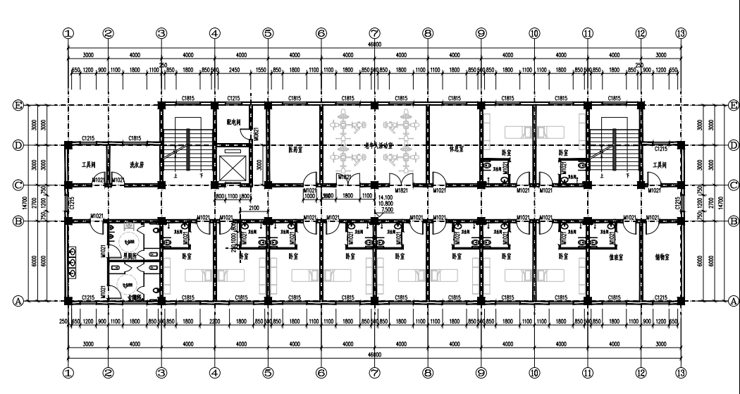
图2.2 梁柱布置图

图2.3 标准层平面图
2.2梁、柱截面尺寸
1.柱t
查规范得抗震等级为3级 为0.85
取首层中柱计算
取柱尺寸为500×500mm
2.梁
(1)横向框架AB梁: ,
取250×700mm
(2)横向框架BC梁:h,取250×400mm
(3)框架纵梁:250×700mm
3.板
板厚:AB跨 =100mm,取120mm,
BC跨 =67.5mm,取100mm。
2.3材料强度等级
混凝土均采用C30级;受力钢筋采用HRB400钢筋,箍筋采用HPB300钢筋t。
2.4荷载计算


图2.4荷载计算简图t
2.4.1屋面横梁竖向线荷载标准值
(1)永久荷载  | |
屋面荷载标准值:  | |
35厚架空隔热板 0.035×25=0.875kN/ m2 防水层: 0.4 kN/m2 20mm厚1:2.5水泥砂浆找平层 0.02×20=0.4 kN/m2 120(100)厚钢筋混凝土现浇板: 0.12×25=3kN/m2  | |
(AB、CD跨取120;BC取100): (0.10×25=2.5)kN/m2  | |
12厚纸筋灰石灰粉平顶: 0.012×16=0.192kN/m2  | |
屋面永久荷载标准值 4.87kN/m2  | |
(4.37kN/m2)  | |
梁自重:  | |
边跨AB、CD跨: 0.25×0.7×25=4.38kN/m  | |
梁侧粉刷: 2×(0.7-0.12)×0.02×17=0.39kN/m  | |
4.77kN/m  | |
中跨BC跨: 0.25×0.4×25 = 2.5kN/m  | |
梁侧粉刷: 2×(0.4-0.10)×0.02×17=0.19kN/m  | |
2.69kN/m  | |
作用在顶层框架梁上的的线荷载标准值为:  | |
梁自重: g6AB1=g5CD1=4.77kN/m,g6BC1=2.69kN/m  | |
板传来的荷载: g6AB2=g6CD2=4.87×4=19.48kN/m  | |
g5BC2=0kN/m  | |
(2)活载  | |
作用在顶层框架梁上的线活载标准值为:  | |
q6AB=q6CD=0.5×4=2.0kN/m  | |
q6BC=0kN/m  | |
2.4.2楼面横梁竖向线荷载标准值  | |
(1)永久荷载  | |
20厚水泥砂浆找平层: 0.020×20=0.4 kN/m2  | |
120(100)厚钢筋混凝土现浇板:  | 0.12×25=3kN/m2  | 
(0.10×25=2.5 kN/m2)  | |
12厚板底粉刷: 0.012×16=0.192 kN/m2  | |
楼面恒载标准值: 3.592 kN/m2  | |
(3.092 kN/m2)  | |
边跨(AB、CD)框架梁自重: 4.77kN/m  | |
中跨(BC)框架梁自重: 2.69kN/m  | |
作用在楼面层框架梁线恒荷载标准值为: 梁自重: gAB1=gCD1=4.77kN/m gBC1=2.69kN/m  | |
板传来荷载: gAB2=gCD2=3.592×4=14.37kN/m  | |
gBC2=0kN/m  | |
(2)活载  | |
作用在楼面层框架梁活载标准值为:  | |
qAB= =2×4=8kN/m  | |
qBC=0kN/m  | |
2.4.3屋面框架节点集中荷载标准值  | |
(1)恒载  | |
横向次梁自重 { 0.25×0.7×25 2×(0.6-0.1)×0.02×17 }×6=28.3kN 横向次梁承担的屋面荷载 1/2×(6 6-4)×2×2×4.87=77.92kN 合计 106.22kN 边框纵向框架梁自重: 0.25×0.7×25×8=35kN  | |
粉刷: 2×(0.7-0.12)×0.02×8×17=3.16kN  | |
1.2m高女儿墙: 1.2×8×2.36=22.66kN  | |
粉刷: 1.2×2×0.02×8×17=6.53kN  | |
边跨纵向框架梁传来屋面自重: 1/2×4×1/2×4×2×4.87=38.96kN 次梁传来的荷载 0.5×106.22=53.11kN  | |
顶层边节点集中荷载: G6A=G6D=159.42kN 顶层中柱节点:  | |
中柱纵向框架梁自重: 0.25×0.7×25×8=35kN  | |
粉刷: [(0.7-0.12) (0.7-0.1)]×0.02×8×17=3.21kN  | |
纵向框架梁传来屋面自重: 0.25×8×2.7×4.37×2=47.20kN 以上是毕业论文大纲或资料介绍,该课题完整毕业论文、开题报告、任务书、程序设计、图纸设计等资料请添加微信获取,微信号:bysjorg。 相关图片展示: 
 
 
 
 
 
 
 
             您需要先支付 50元 才能查看全部内容!立即支付
            
            
            
        
        
        最新文档
  
         | |








        
            
