无锡市某科技公司办公楼设计毕业论文
2020-04-19 21:22:13
第一章 工程概况
1.1工程概况:
本毕业设计题目为实际工程应用课题,为无锡市信达科技公司办公楼设计,建筑占地面积为42m×13m ,结构形式为2跨钢筋混凝土框架结构,地上六层,,
根据勘查揭示,岩土层的分布如下:
①层杂填土,由粉质粘土、建筑垃圾、煤渣等混杂组成,
其再下为强风化泥岩。地下水位在天然地面下1.0米,为上层滞水,随大气降雨及季节变化有升降,无侵蚀性。
1.1.3、施工技术条件
本工程由大型建筑工程公司承建,设备齐全,技术良好。水、电供应由建设单位保证。
×2100mm(b×h)通长塑钢窗。

图1-1 结构布置
第二章 计算简图与荷载计算
2.1 确定计算简图

图2-1 计算简图
柱子高度底层为:h1=3.0 0.45 1.15=4.6m,二至五层柱高为h2~ h5=3.0m。柱节点钢结,横梁计算跨度取两柱中心线至中心的间距,两跨的计算跨度分别为:7500mm、5500mm。
2.2 梁、柱截面尺寸
2.2.1、梁
:
AC跨:
∵h=(1/12~1/8)L,取700mm
b=(1/3.5~1/2)h,取300mm
∴b×h=300mm×700mm
CD跨:
∵h=(1/12~1/8)L,取500mm
b=(1/3.5~1/2)h,取250mm
∴b×h=250mm×500mm
∵h=(1/12~1/8)L,取500mm
b=(1/3.5~1/2)h,取250mm
∴b×h=250mm×500mm
2.2.2、柱
边柱:
所以柱采用方形截面,考虑施工方便,柱截面从底层到顶层尺寸均为500mm×500mm。
2.2.3、板厚
楼板均为双向板,=97.5mm
取板厚100mm。
2.3 材料强度等级
混凝土均采用C30级;受力钢筋采用HRB400钢筋,箍筋采用HPB300钢筋。
2.4 荷载计算

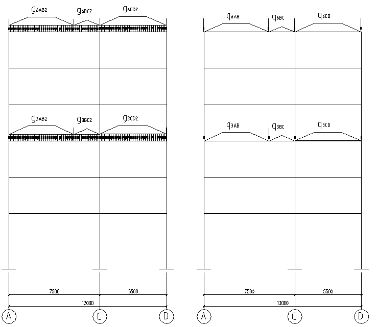
图2-2 荷载计算简图
(a)永久荷载作用下结构计算简图; (b)活载作用下结构计算简图
2.4.1
0.035×25=0.875kN/㎡
0.4kN/㎡
0.10×25=0.25kN/㎡
0.012×16=0.192kN/㎡
4.37kN/㎡
0.3×0.7×25=5.25kN/m
2×(0.7-0.1)×0.02×17=0.41kN/m
5.66kN/m
0.25×0.5×25=3.13kN/m
2×(0.5-0.1)×0.02×17=0.27kN/m
3.40kN/m
g6AC1=5.66kN/m g6CD1=3.40kN/m
g6AC2= g6CD2= 4.37×3.8=16.61kN/m
g6BC2=4.37×2.0=8.74kN/m
(2)活荷载(图2-2b)
q6AB=q6CD=0.7×3.8=2.66kN/m q6BC= 0.7×2.0=1.4kN/m
2.4.2、屋面纵梁竖向集中荷载标准值
(1)永久荷载
0.5×0.25×25=3.13kN/m
2×(0.5-0.1)×0.02×17=0.27kN/m
3.40kN/m
3.40×3.8=12.92 kN/m
4.37×[0.5×3.8×1.9 0.5×(1.8 3.8)×1]=30.13kN/m
(2)活荷载 0.7×1×3.8 0.7×3.8×1.9=7.71kN/m
2.4.3、
(1)永久荷载(图2-2a)
0.025×20=0.50kN/㎡
0.10×25=2.5kN/㎡
0.012×16=0.192kN/㎡
3.192kN/㎡
5.66kN/m
3.40kN/m
作用在楼面层框架梁上的线荷载标准值为
gAC1=5.66kN/m,gCD1=3.40kN/m
gAB2= gCD2=3.192×3.8=12.13kN/m
gBC2=3.192×2=6.38kN/m
(2)活荷载(图2-2b)
楼面活荷载
qAB=qCD=2.0×3.8=7.6kN/m qBC=2.5×2.0=5.0kN/m
2.4.4、
(1)永久荷载
0.5×0.25×25=3.13kN/m
2×(0.5-0.1)×0.02×17=0.27kN/m
3.40kN/m
3.40×3.8=12.92 kN/m
4.37×[0.5×3.8×1.9 0.5×(1.8 3.8)×1]=30.13kN/m
(2)活荷载 2.5×1×3.8 2.0×3.8×1.9=23.94kN/m
2.4.5、

图2-3 恒载顶层集中力
(1)永久荷载
0.25×0.5×3.8×25=11.88kN
2×(0.50-0.10)×0.02×4.5×17=1.22kN
1.3×3.8×4.56=22.53kN
1.3×2×0.02×3.8×17=3.36kN
0.5×3.8×0.5×3.8×3.40=12.27kN
G6A=G6D=42.57kN
0.25×0.5×3.8×25=11.88kN
[(0.5-0.10) (0.5-0.1)]×0.02×3.8×17=1.29kN
[0.5×3.8×0.5×3.8 0.5×(1.8 3.8) ×1]×4.37=30.13kN
G6C=43.3kN
(2)活荷载
Q6A=Q6D=0.5×3.8×0.5×3.8×0.7=2.53kN
Q6C=0.5×3.8×0.5×3.8×0.7 0.5×(3.8 1.8)×1×0.7=4.49kN
2.4.6、

图2-4 恒载中间层节点集中力
(1)永久荷载
11.88kN
1.22kN
2.1×1.5×0.4=1.26kN
(3.8-0.5)×0.9×4.56=13.54kN
2×3.3×0.9×0.02×17=2.02kN
1.5×(3.3-2.1)×4.56=8.21kN
2×1.5×1.2×0.02×17=1.22kN
0.5×3.8×0.5×3.8×3.192=11.52kN
50.87kN
GA=GD=50.87kN
G‘A=G‘D=0.5×0.5×3.0×25=18.75kN
11.88kN
1.22kN
(3.8-0.5)×(3.0-0.6)×4.56=36.12kN
2×(3.8-0.5)×2.4×0.02×17=2.69kN
0.5×3.8×0.5×3.8×3.192=11.52kN
0.5×(3.8 1.8)×1×3.192=8.94kN
72.37kN
GC=72.37kN
G‘C=0.5×0.5×3.6×25=18.75kN
(2)活荷载
QA=QD= 0.5×3.8×0.5×3.8×2.0=7.22kN
QB=QC=0.5×3.8×0.5×3.8×2.5 0.5×(3.8 1.8)×2.0/2×2.0=14.63kN
7、风荷载

图2-5 横向框架上的风荷载
基本风压值ω0=0.45kN/m2,地面粗糙度属C类,按荷载规范ωk=βzμsμzω0。
风载体型系数μs:迎风面为0.8,背风面为-0.5,结构高度H=20.25mlt;30m(从室外地面算起),取风振系数βz=1.0,
以上是毕业论文大纲或资料介绍,该课题完整毕业论文、开题报告、任务书、程序设计、图纸设计等资料请添加微信获取,微信号:bysjorg。
相关图片展示:









