换流站装配式框架-嵌入式防火墙结构抗震分析方法研究毕业论文
2020-03-25 08:25:39
摘 要
换流站阀厅的作用是放置换流阀,是高压输电系统中非常重要的一环。换流站阀厅发展至今已经有非常成熟的结构体系,主要是钢-混凝土组合结构。为了响应国家推动装配式建筑发展的号召,阀厅结构也发展出了一种新型的装配式框架-嵌入式防火墙结构,它的防火墙不再是现场浇筑,而是在工厂预制,现场安装。防火墙两边的柱子有凹槽,这样预制的防火墙可以从上面嵌入进去。这种结构形式和框架结构以及剪力墙结构有一定的区别,因此,为了能更准确的对装配式框架-嵌入式防火墙结构进行分析,有必要对其抗震分析的方法进行一番研究。
本项目以某换流站阀厅实际工程为研究对象,通过利用SAP2000建立换流站阀厅的模型,通过模态分析、反应谱分析以及时程分析探究嵌入式防火墙如何进行抗震分析比较合适。主要研究工作和结论如下:
1、利用SAP2000来建立换流站阀厅的模型,包括框架(虚面)模型,剪力墙(刚接)模型以及嵌入式防火墙(柔性层)模型。对三种模型进行模态分析、反应谱分析以及时程分析。
2、 通过对各种分析下的动力响应进行对比分析我们可以得到以下几个结论:
(1)通过模态分析我们可以知道,嵌入式防火墙模型的周期比剪力墙模型大,比框架模型的周期小。嵌入式防火墙模型和剪力墙模型的基本振型为扭转,框架模型的基本振型为平动。
(2)通过时程分析我们可以知道,嵌入式防火墙模型防火墙一侧的位移、加速度在纵向地震作用和横向地震作用下均大于剪力墙模型,但小于框架模型;嵌入式防火墙模型的基底剪力大于框架模型,小于剪力墙模型。说明嵌入式防火墙模型防火墙一侧的抗侧刚度大于框架模型,小于剪力墙模型。
(3)从分析结果我们可以得出,在对装配式框架-嵌入式防火墙结构进行抗震分析时,既不能按照框架模型来进行,也不能按照剪力墙模型进行分析。
关键词:装配式框架,嵌入式防火墙,时程分析,柔性层,抗震分析
Abstract
The role of the valve hall is to place the converter valve, which is a very important part of the high-voltage transmission system. The development of the valve station has so far reached a very mature structural system, mainly consisting of steel-concrete composite structures. In response to the country's call for promoting the development of fabricated buildings, the valve hall structure has also developed a new type of prefabricated frame-embedded firewall structure. Its firewall is no longer cast in the field, but is factory prefabricated and installed on site. The columns on both sides of the firewall are recessed so that the prefabricated firewall can be embedded in from above. This kind of structure has some differences with the frame structure and the frame-shear wall structure. Therefore, in order to more accurately analyze the prefabricated frame-embedded firewall structure, it is necessary to do some research on it.
This project takes the actual project of the valve hall as the research object, establishes the model of the valve hall by using SAP2000, and explores the seismic performance analysis of the embedded firewall through the modal analysis, response spectrum analysis and time history analysis. The main contents are as follows:
    1. Use SAP2000 to establish the model of converter station valve hall, including frame (virtual surface) model, shear wall (rigid connection) model and embedded firewall (flexible layer) model. Modal analysis, response spectrum analysis, and time history analysis were performed on the three models.
2. Through comparative analysis of the dynamic responses under various analyses, we can obtain the following conclusions:
(1) Through modal analysis, we can know that the cycle of the embedded firewall model is larger than that of the shear wall firewall model and smaller than that of the frame model. The basic mode shape of the embedded firewall model and the shear wall model is torsion, and the basic mode shape of the frame model is translational motion.
(2) Through time-history analysis, we can know that the displacement and acceleration of one side of the firewall model in the embedded firewall model are greater than that of the shear wall model under longitudinal earthquake action and transverse earthquake action, and are smaller than the frame model; the base shear force of the embedded firewall model. Greater than the frame model, less than the shear wall model. Explain that the firewall side of the embedded firewall model has greater side stiffness than the frame model and less than the shear wall model.
(3) From the analysis results, we can conclude that when seismic analysis is performed on a fabricated frame-embedded firewall structure, neither the frame model nor the shear wall model can be analyzed.
Key words: prefabricated frame, embedded firewall, time history analysis, flexible layer, seismic analysis
目录
第1章 绪论 1
1.1研究背景 1
1.2研究内容 1
1.3换流站阀厅的相关研究 2
第2章 换流站阀厅的相关条件及抗震计算理论基础 3
2.1工程概况及结构材料、荷载信息 3
2.1.1结构布置信息 3
2.1.2荷载条件 6
2.2分析软件SAP2000的简介 6
2.3结构抗震计算方法 7
2.3.1反应谱法 7
2.3.2时程分析法 8
第3章 装配式框架-嵌入式防火墙整体抗震计算 10
3.1模型建立 10
3.2模态分析 12
3.3装配式框架-嵌入式防火墙结构反应谱及多遇地震时程分析 14
3.3.1位移响应分析 15
3.3.2加速度响应分析 24
3.3.3内力响应分析 27
3.4本章小结 28
第四章 结论与展望 28
4.1结论 28
4.2展望 28
参考文献 30
致谢 31
第1章 绪论
1.1研究背景
阀厅是换流站内最重要的建筑物之一,也是控制换流站建设工期的关键路径之一。目前国内换流站阀厅一般采用钢结构或钢-钢筋混凝土混合结构,阀厅与换流站防火墙均采用钢筋混凝土剪力墙或钢筋混凝土框架填充墙结构,而混凝土防火墙需现场浇筑,施工周期较长,影响换流站的建设工期,这就使得国内换流站阀厅在核准后的建设工期非常紧张。现浇混凝土结构体系施工,从搭脚手架、支模、扎筋、到混凝土浇筑,多数工作由手工劳动完成。现浇混凝土结构现场施工存在着诸多缺陷:噪声扰民,粉尘污染;模板周转消耗大;施工人员多,手工劳动多,劳动强度大,且熟练程度要求较高;施工速度慢,建设周期长,受自然条件影响大;混凝土外观及内在质量控制难;现场的建筑材料浪费严重。装配式框架-嵌入式防火墙结构通过工厂生产预制和现场装配安装两个阶段建设,可节省施工工期,能较好的满足业主对工期的要求。装配式框架-嵌入式防火墙结构是一种工业化的建筑生产方式,以其劳动生产效率高、质量保证率高、施工速度快、经济效益和环境效益好等诸多优点越来越受到业主和设计人员关注。
现代意义上的装配式混凝土工业化是从20世纪的50、60年代开始兴起的,其中以西欧、美国和日本处于预制装配式混凝土技术的领先地位[1-4]。
我国位于环太平洋地震圈,属于地震高发的区域。近几年来,汶川地震、玉树地震、雅安地震几场大型的地震都给我国带来了巨大的经济损失和人员伤亡。中国的预制装配式混凝土技术自上个世纪中期开始兴起[5],随着经济的快速发展,我国对于建筑物抗震的要求越来越高。换流站阀厅作为电力系统中至关重要的一部分,对于抗震的要求自然是更高的。良好的抗震性能保证了在抗震救灾中我们仍能得到电力这个关键的能源,为我们的抗震能争取更多的方便与支持。
1.2研究内容
美国、德国等国家在换流站阀厅的技术较为领先,国内的发展起步较为迟缓[6,7]。为了提高人民的生活水平,保证人民的生活用电,我国花了很多的时间与成本来研究换流站阀厅。经过一代代先辈们的不断努力,我们对于换流站阀厅的研究实现了从无到有,从有到成熟的过程。发展到现在,我国的换流站阀厅主要以钢-钢筋混凝土框架防火墙混合体系为主。虽然这种体系已经比较成熟,但是还是存在很多缺点。嵌入式框架-装配式防火墙是对阀厅结构的一种创新,希望以此来解决目前的体系所存在的一些问题,通过查阅文献,目前国内尚无相关方面的研究。
本项目是与某设计院合作项目“换流站阀厅防火墙整体和框架梁柱节点拟静力试验”的子题。在学习结构地震响应计算理论基础上,对换流站装配式框架-嵌入式防火墙结构进行抗震分析计算,探讨换流站装配式框架-嵌入式防火墙结构抗震性能,以及合理的设计计算方法。具体研究内容如下:
1.建立SAP2000的双层框架模型,对双层框架进行静力分析,模态分析以及时程分析,了解SAP2000的使用方法,为建立换流站阀厅的模型打下基础。
2.利用SAP2000建立换流站阀厅结构的模型,并对其进行静力分析、模态分析、反应谱分析和时程分析,具体有:
1)建立三种的不同的阀厅模型,分别是防火墙为虚面的框架模型,防火墙为剪力墙的刚接模型,防火墙为剪力墙并且防火墙与柱之间还有柔性层的嵌入式防火墙模型。
2)对上述三种模型模态分析下的振型与周期进行对比,以此来研究结构形式对振型的影响。然后是对三种模型做反应谱分析和时程分析,比较一榀框架中钢柱与防火墙的顶点的位移和加速度的大小。
1.3换流站阀厅的相关研究
关于换流站阀厅,前人已经开展了非常多的研究,并且也产生很多不错的成果。
吴嘉欣[8]等人(2013)发现在削弱阀厅的扭转效应方面可以采用轻质混凝土以及适当加大剪力墙、构造柱和圈梁截面等方式,其中效果最好的是采取轻质混凝土砌块。
刘宗辉[9]等人(2012)发现,在竖向地震作用下,悬吊阀体-阀厅结构相互作用显著,因此在阀厅结构设计中应考虑竖向地震作用下悬挂阀-阀体结构的相互作用。
魏文晖[10]等人(2010)发现,悬挂阀塔由于摆动产生的离心力已经成为换流站阀厅抗震设计中必须重视的荷载,在实际的抗震设计中必须考虑进来。建议在抗震设计中可不考虑吊阀的减震作用,而将其作为结构承载的强度储备,但对两边跨结构,墙顶位移增大,此处需要加强。
钱鹏、王建[11](2009)采用SAP2000建立了阀厅的模型,利用动力时程分析法,模拟换流阀与阀厅整体结构的相互作用。通过结构及构件的几何尺寸的对比,分析了阀厅结构的尺寸确定方法;并利用静力等效阀塔,验算得到这种近似等效方法是可行的。
虽然有非常多的学者对环流站阀厅进行了研究,但是极少有人关注到装配式框架-嵌入式防火墙这种新型结构,我们究竟应该如何分析这种结构,是当成框架结构,还是剪力墙结构,尚未有明确的定论。
第2章 换流站阀厅的相关条件及抗震计算理论基础
本课题是导师研究的换流站阀厅项目的一个子课题,主要研究在水平地震作用下换流站阀厅的抗震情况以及防火墙的受力性能是否等达到规范要求。
2.1工程概况及结构材料、荷载信息
2.1.1结构布置信息
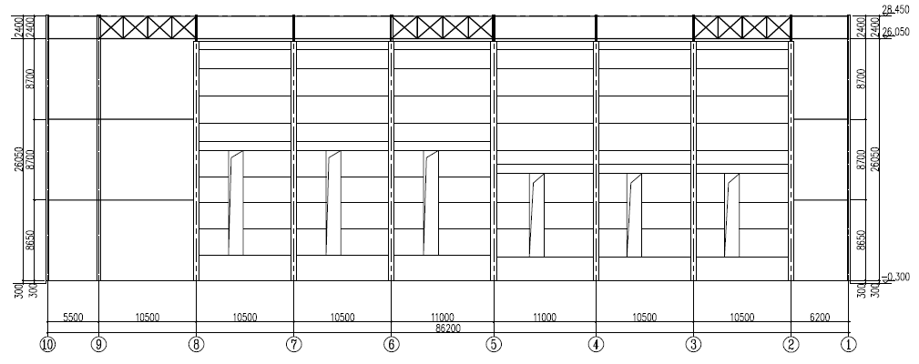
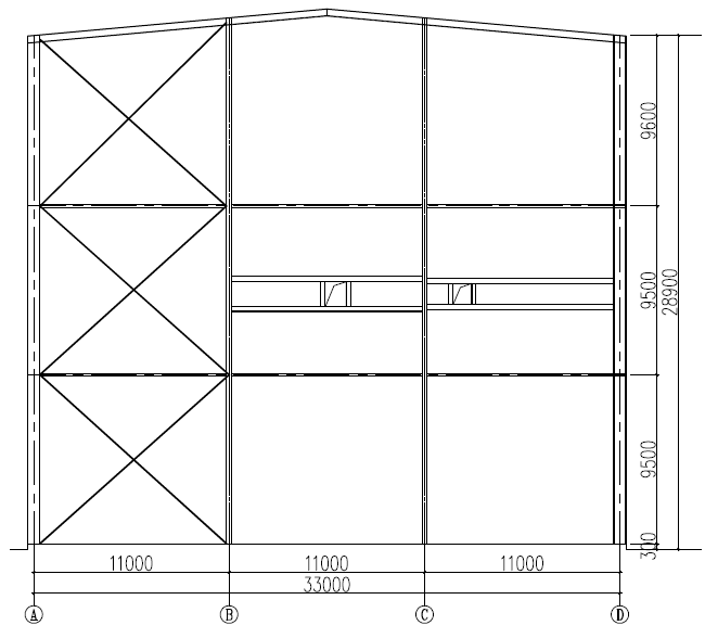
这个项目研究的结构为某±800千伏换流站阀厅,其中主要的柱是钢材构成,防火墙两侧的柱由钢筋混凝土构成,因此是钢-预制混凝土装配式混合结构形式。防火墙板采用的是嵌入式防火墙,即防火墙预先制成,然后放置到两柱之间,防火墙两侧的柱都有凹槽,用于防火墙与两侧的柱的连接。整个阀厅上方采用是钢屋架,柱与柱之间采用方钢管进行连接,以形成整体。阀厅结构的基础为杯口式,所有的柱放入其中,通过混凝土粘结,与地面牢固的连接在一起。
该结构长度为86.20米,总的宽度51.50米。纵向一共十榀框架,两端为山墙,从左至右的2到8榀框架连接有防火墙。横向山墙的宽度为33.00米,防火墙的宽度为18.5米。结构整体高度可达30.05米,其中柱高28.55米。钢柱主要采用700×300×13×24的窄翼缘H型钢,防火墙一侧的柱是混凝土柱,柱上留有160mm宽的槽口以便之后将嵌入式防火墙放置其中。考虑到槽口对于防火墙柱的刚度影响并不是很大,所以在建模过程将其视为矩形截面,分别有600×1200,500×1000,500×500三种类型的防火墙柱。屋架全部由钢材组成,屋架均采用拼接双角钢,其中上下弦的截面为2L200×16,腹杆的截面为2L140×12。各根柱之间主要采用的是方钢管200×200×8进行连接,防火墙还有截面为300×1000,400×600,400×700三种类型的梁。防火墙的厚度为150mm,采用C40混凝土制作。换流站阀厅的结构图如下图所示。

图2-1 屋架下弦水平布置

图2-2 屋架上弦水平布置

图2-3 阀厅防火墙立面布置

图2-4 纵向钢柱及柱间支撑布置


图2-5 阀厅横向结构布置 图2-6 山墙柱间支撑平面
表2-1 换流站阀厅材料表
材料或类型  | 材料重度/N/m3  | 弹性模量取值/N/m2  | |
钢柱及屋架  | Q345  | 7.85×104  | 2.00×1011  | 
混凝土梁柱  | C40  | 2.50×104  | 3.25×1010  | 
箍筋  | HPB300  | 7.85×104  | 2.00×1011  | 
纵筋  | HRB400  | 7.85×104  | 2.00×1011  | 
2.1.2荷载条件
实际作用在阀厅结构上的荷载比较复杂,为了方便建模,将以下荷载加到SAP2000中的模型当中:
1)结构本身的自重
以上是毕业论文大纲或资料介绍,该课题完整毕业论文、开题报告、任务书、程序设计、图纸设计等资料请添加微信获取,微信号:bysjorg。
相关图片展示:








        
            
