某污水处理工程初步设计毕业论文
2020-04-15 21:49:09
摘 要
简要介绍了氧化沟工艺的发展历程,总结了氧化沟工艺向着增加厌氧区和缺氧区,将曝气和推流功能分离以及优化溶解氧浓度等运行参数实现同步硝化反硝化(SND)和同步硝化反硝化除磷(SNDPR)等方向发展的趋势。但是,在氧化沟工艺的研究应用过程中,循环比对氧化沟内混合液流态、溶解氧扩散传质和微生物种群分布等方面的影响研究鲜有报道。
污水工艺流程如下:
污水→中格栅→提升泵房→细格栅→沉砂池→厌氧池→卡鲁赛尔氧化沟→二沉池→接触池→出水
污泥工艺流程如下:
二沉池→贮泥池→污泥泵房→污泥浓缩脱水机房→污泥外运
关键词:污水处理、氧化沟、脱氮、除磷
ABSTRACT
The development course of oxidation ditch is introduced briefly. Moreover,the development trends of increasing anaerobic and anoxic zones,separating aeration from plug-flow function, optimizing the operation parameters,such as dissolved oxygen concentration etc. and achieving simultaneous nitrification and denitrification(SND),and simultaneous nitrification and denitrification phosphorus removal(SNDPR) ,are summarized. However, in the research and application process of oxidation ditch technology, the influence of circulation ratio on mixed liquid flow pattern, dissolved oxygen diffusion and mass transfer and microbial population distribution in oxidation ditch is rarely reported.
Wastewater treatment processes as follows:
Sewage → coarse bar screen → pump house → Thin screen → Grit Chamber → anaerobic tank → carrousel oxidation ditch → secondary → sedimentation tank → contact tank → discharge
Sludge treatment processes as follows:
secondary sedimentation tank → store mud pool → sludge pumping station →sludge thickening and dewatering station → sludge outbound
Keywords:Sewage treatment ;oxidation ditch ; denitrification ; dephosphorization
目 录
摘要 I
ABSTRACT II
第一部分 设计说明书
第一章 概述 1
1.1 设计任务及设计资料 1
第二章 污水处理厂总体设计 2
2.1 污水处理工艺 2
2.2 污水脱氮除磷工艺 5
2.3 污水处理厂工艺选择的方案比较 7
2.4 工艺流程方案的确定 12
2.5 处理构筑物的选择 14
2.6 污泥处理工艺 15
第3章 污水处理厂的总平面布置 19
第4章 污水厂的高程布置 20
第二部分 设计计算书
第1章 泵前中格栅 23
1.1 设计依据 23
1.2 设计参数 24
1.3 设计计算 24
1.4 中格栅选用 26
1.5 计算简图 26
第2章 污水提升泵房 27
2.1 设计依据 27
2.2 设计参数 27
2.3 设计计算 28
第3章 泵后细格栅 30
3.1 设计依据 30
3.2 设计参数 30
3.3 设计计算 31
3.4 细格栅选用 32
3.5 计算草图 33
第4章 沉砂池 34
4.1 设计依据 34
4.2 设计参数 35
4.3 设计计算 35
4.4 设备选型 36
第5章 厌氧池和卡罗塞尔氧化沟 37
5.1 设计依据 37
5.2 设计参数 40
5.3 设计计算 41
第6章 二沉池 50
6.1 设计依据 50
6.2 设计参数 50
6.3 设计计算 50
第7章 消毒设施 56
7.1 设计依据 56
7.2 设计参数 57
7.3 设计计算 58
第8章 污泥处理构筑物的设计计算 60
8.1 污泥提升泵房 60
8.2 贮泥池 61
8.3 污泥浓缩脱水间 61
第9章 污水处理厂总体设计及高程布置 63
9.1 设计依据 63
9.2 污水厂的平面布置 65
9.3 污水厂的高程布置 68
第10章 污水厂项目总投资、年总成本及经营成本估算 71
10.1 项目总投资估算 71
10.2 污水厂处理成本估算 74
设计说明书
第一章 概述
1.1 设计任务及设计资料
1.1.1 设计任务
某污水处理工程初步设计。
1.1.2 设计资料
(1)工程概况
城镇污水处理厂污染物排放标准《GB18918-2002》,污水处理厂进出水水质如下:
表1-1 进出水质对照表
污染物 | 进水 | 出水(一级A标准) |
BOD5 | 203mg/L | ≤10mg/L |
CODcr | 380mg/L | ≤50mg/L |
SS | 280mg/L | ≤10mg/L |
NH3-N | 21mg/L | ≤5mg/L |
TN | 32mg/L | ≤15mg/L |
TP | 5mg/L | ≤0.5mg/L |
(2)污水处理规模
平均流量:
(1-1)
总变化系数:
(1-2)
式中:Qa-平均流量,L/s。
所以设计流量Qmax:
(1-3)
1.1.3 设计内容
1、根据排入水体的要求,估算处理厂应处理的程度; 2、污水处理工艺流程的选择,进行技术分析; 3、主要处理构筑物的设计计算(附计算草图); 4、水厂平面布置;水厂高程布置; 5、处理构筑物详图。 |
第二章 污水处理厂总体设计
2.1 污水处理工艺
污水处理工艺的选择应根据设计进水水质、处理程度要求、用地面积和工程规模等多种因素进行综合考虑,各种工艺都有其适用条件,应视工程的具体条件而定。 选择合适的污水处理工艺,不仅可以降低工程投资,还有利于污水处理厂的运行管理以及污水处理厂的常年运行费用,保证出厂污水水质。 根据上面章节对污水水质的分析,本工程要求的污水处理程度较高,对BOD5、SS、NH3-N、TP去除率要求分别达到95.1%、96.4%、76.2%和90%以上,本工程污水处理工艺在去除BOD5的同时应充分考虑除磷脱氮,还应考虑污水量和污水水质以及经济条件和管理水平,优先选用技术先进、安全可靠、低能耗、低投入、少占地和操作管理方便的成熟处理工艺。下面降对各种工艺的特点进行论述,以便选择切实可行的方案。 |
2.1.1 常规二级处理工艺
根据我国现行《室外排水设计规范》,污水处理厂的处理效率见表2-1。
表2-1 污水处理厂的处理效率
处理程度 | 处理方法 | 主要工艺 | 处理效率(%) | |
SS | BOD5 | |||
一级 | 沉淀法 | 沉淀 | 40-55 | 20-30 |
二级 | 生物膜法 | 初次沉淀、生物膜法、二次沉淀 | 60-90 | 65-90 |
活性污泥法 | 初次沉淀、曝气、二次沉淀 | 70-90 | 65-95 | |
从表2-1可见,二级活性污泥法的处理效率最高,但常规二级处理工艺仅能有效地去除BOD5、COD和SS,而对氮去除率仅为10-20%,磷去除率为12-19%,达不到本工程对氮和磷去除率的要求。因此,必须采用污水脱氮除磷工艺。
在常规二级活性污泥法中,不同的污染物是以不同的方式去除的。 (1) SS的去除污水中SS的去除主要靠沉淀作用。污水中的无机颗粒和大直径的有机颗粒靠自然沉淀作用就可去除,小直径的有机颗粒靠微生物的降解作用去除,而小直径的无机颗粒则要靠活性污泥絮体的吸附、网络作用,与活性污泥絮体同时沉淀被去除。 污水厂出水中悬浮浓度不仅涉及到出水SS指标,出水中的BOD5、COD等指标也与之有关。这是因为组成出水悬浮物的主体是活性污泥絮体,其本身的有机成分就很高,因此,较高的出水悬浮物含量会使得出水的BOD5、COD、氮、磷均增加。因此,控制污水厂的SS指标是最基本的,也是很重要的。 为了降低出水中的悬浮物浓度,应在工程中采取适当的措施,例如采用适当的污泥负荷以保持活性污泥的凝聚及沉降性能、采用较小的二次沉淀池表面负荷、采用较低的出水堰负荷、充分利用活性污泥悬浮层的吸附网络作用等。在污水处理方案选用合理、工艺参数取值合理和单体设计优化的条件下,完全能够使出水SS指标达到10mg/L以下。 (2) BOD5的去除污水中BOD5的去除是靠微生物的吸附作用和代谢作用,然后对污泥与水进行分离来完成的。 活性污泥中的微生物在有氧的条件下将污水中的一部分有机物用于合成新的细胞,将另一部分有机物进行分解代谢以便获得细胞合成所需的能量,其最终产物是CO2和 H2O等稳地物质。在这种合成代谢和分解代谢的过程中,溶解性有机物(如低分子有机酸等易降解有机物)直接进入细胞内不被利用。而非溶解性有机物则首先被吸附在微生物表面,然后被酶水解后进入细胞内部被利用。由此可见,微生物的好氧代谢作用对污水中的溶解性有机物和非溶解性有机物都起作用,并且代谢产物是无害的稳地物质,因此,可以是处理后污水中的残余BOD5浓度很低。根据国外有关设计资料,在污泥负荷为0.3kg BOD5/kgMLSS.d以下时,就很容易使得出水BOD5保持在10mg/L以下。 (3) COD的去除污水中COD去除的原理与BOD5基本相同。 污水厂出水中的剩余COD,即COD的去除率,取决于原污水的可生化性,它与城市污水的组成有关。 对于那些主要以生活污水及其成分与生活污水详尽的工业废水组成的城市污水,这种城市污水的BOD5/COD比值往往接近0.5甚至大于0.5,其污水的可生化性较好,出水COD值可以控制在较低的水平。而成分主要以工业废水为主的城市污水,或BOD5/COD比值较小的城市污水,其污水的可生化性差,处理后污水中剩余COD会较高,要满足出水COD≤60mg/L有一定的难度。 此污水处理厂进水BOD5/COD比值为0.53,接近0.5,污水的可生化性较好,采用二级处理工艺完全能使出水COD≤50mg/L。 |
2.2 污水脱氮除磷工艺
2.2.1 污水脱氮
污水脱氮方法主要有生物脱氮和物理化学脱氮两大类。目前生物脱氮是主体,也是城市污水处理中最经济和最常用的方法;物理化学脱氮主要有折点氯化法、选择性离子交换法、空气吹脱法等。国外从六十年代开始对污水脱氮的方法进行了大量的研究,结果认为物理化学法脱但从经济、管理等方面均不适宜在大中型污水处理厂中使用,因此,本工程仍以生物脱氮法为主。
2.2.2 污水除磷
污水除磷主要有生物除磷和化学除磷两大类。对于城市污水一般采用生物除磷为主,必要时辅以化学除磷,以确保出水的磷浓度在标准以内。
化学除磷主要是向污水中投加药剂,使药剂与水中溶解性磷酸盐形成不溶性磷酸盐沉淀物,然后通过固液分离将磷从污水中去除。固液分离可单独进行,也可与初沉污泥和二沉污泥的排泥相接和。按工艺流程中化学药剂投加点的不同,化学沉淀除磷工艺可分为前置沉淀、同步沉淀和后置沉淀三种类型。前置沉淀的药剂投加点是初沉池前,形成的沉淀物与初沉污泥一起排除;同步沉淀的药剂投加点设在曝气池中、曝气池出水处或在二沉池的进水处,形成的沉淀物与剩余污泥一起排除;后置沉淀的药剂投加点设在二沉池之后的混合池中,形成的沉淀物通过另投的固液分离装置进行分离。 化学除磷的药剂主要由铁盐、铝盐和石灰。 铁盐和铝盐均能与磷酸根离子作用生成难溶性的沉淀物,通过去除这些难溶性沉淀物去除水中的磷。 按照德国规范ATV-A131的规定,一般去除1kg磷需要投加2.7 kg铁或1.3 kg铝。对特定的污水,金属盐投加量需通过实验确定,随进水TP浓度和期望的除磷率不同,相应的投加量也不同。 化学除磷方法的产泥量将增加,仅由沉淀剂与磷酸根和氢氧根结合生成的干泥量为2.3 kgTs/ kgFe或3.6 kgTs/ kgAl,除此之外,还要考虑附带的其它沉淀物,因此,在实际应用中按每kg用铁量产生2.5 kg污泥或每kg用铝量产生4.0 kg污泥来计算泥量。 在初沉池投加化学药剂,除沉池产泥量将增加50-100%,如设后续生物处理,则全厂污泥量增加60-70%;在二沉池投药,活性污泥量增加35-45%,全厂污泥量增加10-25%。因此,化学药剂的投加使沉淀污泥的产量增加、浓度降低、污泥体积增大,使污泥处理的难度增加。采用化学除磷时还应考虑污泥处理与处置的费用。 |
根据以上分析及目前进水水质和经济实力,暂不考虑化学除磷,应该在生物处理污水过程中达到除磷的效果。
2.2.3 本工程采用生物脱氮除磷工艺的可行性
BOD5: N : P的比值是影响生物脱氮除磷的重要因素,氮和磷的去除率随着BOD5/N和BOD5/P比值的增加而增加。 从理论上讲,BOD5/Ngt;2.86才能有效地进行脱氮,实际运行资料表明,BOD5/Ngt;3时才能使反硝化正常运行。在BOD5/N=3-4时氮的去除率大于50%,磷的去除率也可达到55%左右。 对于生物除磷工艺,要求BOD5/Pgt;30,且BOD5/Ngt;3。 本工程进水BOD5/N=6.34,BOD5/P=40.6,能满足生物脱氮除磷工艺对碳源的要求。因此,本工程采用生物脱氮除磷工是可行的。 |
2.3 污水处理厂工艺选择的方案比较
从上述各种工艺优缺点的定性分析来看,污水脱氮除磷工艺有多种,结合本工程规模不是很大、进水浓度较低、大部分为生活污水、管理水平有限的具体情况,初步选用运行管理经验成熟,相对投资及运行成本较低,适合本工程的改良型氧化沟(即Carrousel 2000型氧化沟前加厌氧池)和A2/O工艺作为比较方案,进行全面技术经济比较,从而推荐一个更适合本工程的最佳方案。
方案一:Carrousel 2000氧化沟
荷兰的DHV公司和其在美国的专利特许公司EIMCO在原Carrousel系统的基础上发明了Carrousel 2000系统,实现了更高要求的生物脱氮和除磷功能,运行过程如图2-3所示。至今世界上已有850多座Carrousel和Carrousel 2000系统正在运行,实践证明该工艺具有投资省、处理效率高、可靠性好、管理方便和运行维护费用低等优点。
图2-3 Carrousel 2000氧化沟简图 Carrousel 2000型氧化沟由于其特殊的预反硝化区的设计(占氧化沟体积的15%),在缺氧条件下进水与一定量的混合液混合(该量可通过内部回流控制阀调节);剩余部分(体积的85%)包括有氧和缺氧区,用于进行同时硝化反硝化,也用于磷的富集吸收。每座氧化沟中配有表曝机实现沟内水体的推流、混合和充氧。系统的供氧量可以通过控制沟内表曝机运行台数的多少进行调节,另外从节能的角度考虑,每座沟中还装有一定数量的推进器用于保证混合液具有一定的流速。 1.厌氧区Ⅰ 在没有溶解氧和硝态氮存在的厌氧条件下,兼性细菌将溶解性BOD转化成低分子发酵产物,生物聚磷菌将优先吸附这些低分子发酵产物,并将其运送到细胞内、同化成胞内碳源存贮物,所需能量来源于聚磷的水解以及细胞内糖的水解,并导致磷酸盐的释放。经厌氧状态释放磷酸盐的聚磷菌在好氧状态下具有很强的吸磷能力,吸收、存贮超出生长需求的磷量,并合成新的聚磷菌细胞、产生富磷污泥,通过剩余污泥的排放将磷从系统中除去。 2.缺氧区Ⅱ 泥水混合液由厌氧区Ⅰ进入缺氧区Ⅱ,一部分聚磷菌利用后续工艺的混合液(内回流带来的)中硝酸盐作为最终电子受体以分解细胞内的PHB(聚β羟基丁酸),产生的能量用于磷的吸收和聚磷的合成,同时反硝化菌利用内回流带来的硝酸盐,以及污水中可生物降解的有机物进行反硝化,达到部分脱碳与脱硝、除磷的目的。缺氧区容积包括脱硝、除磷两部分。 3.氧化沟区Ⅲ 氧化沟兼有推流型和完全混合型反应池两者的特性,完成一次循环所需时间约为5~20 min,而总的停留时间却很长。氧化沟中有好氧、缺氧交替出现的区域,具有硝化、生物除磷、反硝化的条件。在氧化沟好氧区聚磷菌除了吸收、利用污水中的可生物降解有机物外,主要是分解体内贮积的PHB,产生的能量可供自身生长繁殖,此外还可主动吸收周围环境中的溶解磷,并以聚磷的形式在体内超量贮积。在剩余污泥中含有大量能超量聚磷的聚磷菌,大大提高了A2/C氧化沟系统的除磷效果。 |
方案二A2/O工艺
A2/O的工艺原理:首段厌氧池,流入原污水及同步进入的从二沉池回流的含磷污泥,本池主要功能为释放磷,使污水中P的浓度升高,溶解性有机物被微生物细胞吸收而使污水中BOD浓度下降;另外,NH3—N因细胞的合成而被去除一部分,使污水中NH3—N浓度下降,但NO3—N含量没有变化。 在缺氧池中,反硝化菌利用污水中的有机物作碳源,将回流混合液中带入的大量NO3—N和NO2—N还原为N2释放至空气,因此BOD5浓度下降,NO3—N浓度大幅度下降,而磷的变化很小。 在好氧池中,有机物被微生物生化降解,而继续下降;有机氮被氨化继而被硝化,使NH3—N浓度显著下降,但随着硝化过程使NO3—N的浓度增加,P随着聚磷菌的过量摄取,也以较快的速度下降。所以,A2/O工艺它可以同时完成有机物的去除、硝化脱氮、磷的过量摄取而被去除等功能,脱氮的前提是NH3—N应完全硝化,好氧池能完成这一功能,缺氧池则完成脱氮功能。厌氧池和好氧池联合完成除磷功能,运行过程如图2-4所示。 A2/O工艺的特点:(1)厌氧、缺氧、好氧三种不同的环境条件和不同种类微生物菌群的有机配合,能同时具有去除有机物、脱氮除磷的功能。 (2)在同时脱氧除磷去除有机物的工艺中,该工艺流程最为简单,总的水力停留时间也少于同类其他工艺。 (3)在厌氧—缺氧—好氧交替运行下,丝状菌不会大量繁殖,SVI一般小于100,不会发生污泥膨胀。 (4)污泥中磷含量高,一般为2.5%以上。 (5)脱氮效果受混合液回流比大小的影响,除磷效果则受回流污泥中夹带DO和硝酸态氧的影响,因而脱氮除磷效率不可能很高。
图2-4 A2/O法工艺流程图 |
方案比较
两个方案各有特点,现对主要技术和经济情况进行比较分析: (1)处理效果和工艺流程两个方案均有较好的生物处理效果,均能达到本工程要求的排放标准。两个方案工艺流程都较简单。 (2)运行管理与维护检修两个方案主要设备均能国内生产,氧化沟方案运行可靠,管理简单且有成熟的运行经验,维护费用底;A2/O方案采用鼓风曝气设备,维护费用较高,国内也有成熟的运行经验。(3)运转灵活性在运行的过程中,两个方案均可根据进水水质变化改变运行工况,减少运行成本,运转灵活性大。 (4)占地面积A2/O方案生物池和二沉池合建,较为节省用地,氧化沟生物池和二沉池分建,占地较大。 (5)电耗A2/O方案回流量大,污水提升设备多,电耗大。氧化沟虽然回流比较大,但能充分利用氧化沟的结构特点以较底的能耗实现回流,能耗较低。 |
2.4 工艺流程方案的确定
方案一 | 方案二 |
普通A2/O法 | Carrousel 2000氧化沟 |
优点:(1)该工艺为最简单的脱氮除磷工艺 总的水力停留时间,总的占地面积少于其他同类工艺。 (2)在厌氧,缺氧,好氧交替的条件下运行,丝状菌得不到大量增殖,没有污泥膨胀之忧,SVI一般均小于100。 (3)污泥中含鳞浓度高,具有很高的肥效。 (4)运行得当没有必要投药,两个A段只用轻缓搅拌,以不增加溶解氧浓度,运行费用比较低。 缺点:(1)除磷效果难以再提高,污泥增长有一定的限度,不易提高,特别当P/BOD高时更是如此。 (2)脱氮效果也难以再提高,内循环量一般以2Q为限,不宜太高,否则增加运行费用。 (3)对沉淀池要保持一定浓度的溶解氧,减少停留时间,防止产生厌氧状态和污泥释放磷的现象,但是溶解氧浓度也不宜过高,以防止循环混合液对缺氧反应器的干扰。 | 优点:该工艺具有普通A2/O法工艺的各项优点外,还具有以下一些独特的优点:
|
表2-2 城市污水处理厂工艺流程方案技术比较表
综上所述,氧化沟方案计算先进成熟,运行可靠灵活,管理经验丰富,操作管理及维护简单,能耗较少,故本设计采用氧化沟方案。
2.4.1污水处理程度
污水处理程度计算结果见表2-3。
表2-3 污水处理程度表
水 质 名称 | BOD5 | CODcr | SS | NH3-N | TN | TP |
设计进水水质(mg/l) | 203 | 380 | 280 | 21 | 32 | 5 |
设计出水水质(mg/l) | 10 | 50 | 10 | 5 | 15 | 0.5 |
处理程度(%) | 95.1 | 86.8 | 96.4 | 76.2 | 53.1 | 90 |
2.4.2 工艺方案的确定原则
城市污水处理的目的是使之达标排放或污水回用于农田灌溉、城市景观和工业生产等,以保护环境不受污染,节约水资源。污水处理工艺流程的选择应遵循以下原则:
(1)污水处理应依据《室外排水设计规范》GB50014-2006。 (2)污水处理工艺的投资和运行费用合理,工程投资和运行费用达到的处理程度是选择工艺的主要也是工艺流程选择的重要因素之一。根据处理的水质、水量,选择可行的几种工艺流程进行全面的技术经济比较,确定工艺先进合理、工程投资和运行费用较低的处理工艺。 (3)根据当地自然、地形条件及土地与资源利用情况,因地制宜、综合考虑选择适合当地情况的处理工艺。尽量少占农田或不占农田,充分利用河滩沼泽地、洼地或旧河道。 (4)考虑分期处理与排放利用情况。例如根据当地城市规划,先建一期工程,再建二期工程。 (5)施工与运行管理:如地下水位较高、地质条件较差的地区,就不宜选用深度大、施工难度高的处理构筑物。也应考虑所确定处理工艺运行简单、操作方便,便于实现自动控制等。 |
2.5 处理构筑物的选择
2.5.1 沉砂池的选择
表2-4 沉砂池的比较
池型 | 优点 | 缺点 |
平流式沉砂池 |
|
|
曝气沉砂池 |
|
|
旋流沉砂池 |
|
如上表,经比较本设计中采用旋流沉砂池。
2.5.2 沉淀池的选择
表2-5 沉淀池的比较
池型 | 优点 | 缺点 | 适用条件 |
平流式 | (1)沉淀效果好 (2)对冲击负荷和温度变化的适应能力强 (3)施工简易 (4)平面布置紧凑 (5)排泥设备已趋定型 | (1)配水不易均匀 (2)采用多斗排泥时每个泥斗需单独设排泥管,操作量大 (3)采用机械排泥时,设备复杂,对施工质量要求高 | 适用于大、中、小型污水处理厂 |
竖流式 | (1)排泥方便,管理简单 (2)占地面积小 | (1)池子深度大,施工困难 (2)对冲击负荷和温度变化的适应能力较差 (3)池径不宜过大,否则布水不匀 | 适用于小型污水处理厂 |
幅流式 | (1)多为机械排泥,运行可靠,管理较简单 (2)排泥设备已定型化 | 机械排泥设备复杂,对施工质量要求高 | 适用于大、中型污水处理厂 |
如上表,经比较本设计采用幅流式沉淀池。
2.6 污泥处理工艺
2.6.1 污泥处理要求
污水生物处理过程中将产生大量的生物污泥,有机物含量较高且不稳定,易腐化,并含有寄生虫卵,若不妥善处理和处置,将造成二次污染。 污泥处理要求如下: a、 减少有机物,使污泥稳定化; b、减少污泥提及,降低污泥后续处置费用; c、 减少污泥中有毒物质; d、利用污泥中可用物质,化害为利; e、 因选用生物脱氮除磷工艺,故尽量避免磷的二次污染。 |
2.6.2 污泥处理工艺
通常,城市污水处理厂完善的污泥处理工艺为:
剩余污泥——污泥浓缩——污泥消化——污泥脱水——泥饼
由于本工程污水处理工应此,暂不考虑设消化池,污泥直接进行浓缩、脱水。
污泥浓缩、脱水有两种方案可供选择,污泥含水率均能达到80%以下。
方案一:污泥机械浓缩、机械脱水
方案二:污泥重力浓缩、机械脱水
将两种方案的优缺点进行比较,见表2-6。
表2-6 污泥浓缩脱水比较表
项 目 | 方 案 一 | 方 案 二 |
主要构筑物 | (1)污泥贮泥池 (2)浓缩、脱水机房 (3)泥堆棚 | (1)泥浓缩池 (2)脱水机房 (3)污泥堆棚 |
主要设备 | (1)污泥浓缩脱水机 (2)加药设备 | (1)浓缩池刮泥机 (2)脱水机 (3)加药设备 |
占地面积 | 小 | 大 |
絮凝剂总用量 | 3.0-4.0kg/T.DS | 3.5kg/T.DS |
对环境影响 | 无大的污泥敞开式构筑物,对周围环境影响小 | 污泥浓缩池露天布置,气味难闻,对周围环境影响大 |
总土建费用 | 小 | 大 |
总设备费用 | 稍大 | 稍小 |
剩余污泥中磷的释放 | 无 | 有 |
从表2-6中可看出,方案一优于方案二,另外由于本工程对磷去除率要求较高,重力浓缩中磷的释放,将进一步增加进水磷含量。因此,本工程污泥处理工艺推荐采用机械浓缩、机械脱水方案。
污泥浓缩、脱水机采用一体化设备,又两种类型可以选择:一种时带式浓缩、脱水一体化机;另一种是离心浓缩、脱水一体化机,两种类型相比,带式机在国内应用较早,技术较成熟;离心机在国外使用较多,九十年代开始在国内使用。带式机与离心机比较如下: a、 脱水效果:带式浓缩脱水机的脱水污泥含水率略低于离心机。 b、运行可靠性:带式机具有成熟的运行经验,可靠性较大,离心机在国内使用时间较短,运行的可靠性有待证实。 c、 设备投资及运行成本:离心机必须依赖进口,价格很贵,电耗高,运行成本较大。按同等条件进行比较,其设备价格约高50%,运行电费每吨干泥增加170元。 d、噪声:离心机高速旋转,噪声较大。 e、 环境卫生:离心机完全在全封闭状态下工作,环境卫生条件好,带式机卫生条件差,但可通过采用加盖型带式机使卫生条件得到改善。 f、 运行维护管理:带式机所需辅助设备较多,需要高压冲洗水泵和空压机,须清洗、更换滤布等,设备运行维护管理较麻烦。 |
综合上述比较,考虑到降低工程投资,减少今后的常年运行费用,本工程污泥处理采用带式浓缩脱水一体化机。
第3章 污水处理厂的总平面布置
平面布置的原则一是要功能分区明确,流程顺畅,二是尽量紧凑,节省建筑用地,增加绿化面积,同时兼顾美观实用。根据这些原则和要求,设计的总平面布置见大图。(以下所说的方位以图中所示为准)。 整个厂区分为两个相对独立的小区,各小区都设置了一定面积的绿化带,力求创造一个优美整洁的环境。这两个小区没有明确的实际分隔,由于在功能上的差别,分成了生产区和工厂的办公区。厂里的职工的生活住所都在厂外,因此,在该污水处理厂中没有设置生活区。 污水处理厂的大部分面积被污水处理构筑物占据,都是在厂区的南面,呈直线分布,最后处理完成的污水排入恩江。而生成的污泥在厂区平面右上部(东北角)的污泥脱水间脱水处理后,由厂里的运泥车从后门运走(后门位于厂区的右上角)。后门主要用于格栅渣、沉砂、污泥等的外运。 厂区平面的上方分散着污水处理厂的办公区及相应的辅助设施,包括了:污水处理厂的办公室、车库、仓库、检修间、化验室和值班室等。污水处理厂的前门设在图中的左上部。污水处理厂的办公区的布置尽量做到避开有气味的的污水处理构筑物,一般设于厂区常年的上风向。当然,在生产区和办公区的隔离部分种植绿色植物,以求将污水处理对人的危害降到最底的限度。 |
第4章 污水厂的高程布置
污水厂的高程布置见表4-1。
表4-1 污水厂高程布置
序号 | 构筑物名称 | 水面标高(m) | 构筑物顶标高(m) | 构筑物底标高(m) |
1 | 中格栅 | -5.500 | 0.000 | -6.500 |
2 | 细格栅 | 2.000 | 3.280 | 1.000 |
3 | 沉砂池 | 1.700 | 2.000 | -1.300 |
4 | 厌氧池 | 1.200 | 1.500 | -2.800 |
5 | 氧化沟 | 0.600 | 1.200 | -4.400 |
6 | 二沉池 | -0.100 | 0.200 | -6.590 |
7 | 接触池 | -0.800 | -0.500 | -1.461 |
注:绝对标高±0.00m
第二部分 设计计算书
《室外排水设计规范》(GB50014-2006)规定: 6.2.1 城市污水处理程度和方法应根据现行的国家和地方的有关排放标准、污染物的 来源及性质、排入地表水域环境功能和保护目标确定。 6.2.2 污水厂的处理效率,一般可按本规范表6.2.2的规定取值。 |
处理级别 | 处理方法 | 主 要 工 艺 | 处理效率(%) | |
SS | BOD5 | |||
一级 | 沉淀法 | 沉淀(自然沉淀) | 40~55 | 20~30 |
二级 | 生物膜法 | 初次沉淀、生物膜反应、二次沉淀 | 60~90 | 65~90 |
活性污泥法 | 初次沉淀、活性污泥反应、二次沉淀 | 70~90 | 65~95 | |
表6.2.2 污水处理厂的处理效率
注:1 、表中SS表示悬浮固体量,BOD5表示五日生化需氧量。 2 、活性污泥法根据水质、工艺流程等情况,可不设置初次沉淀池。 6.2.3 水质和(或)水量变化大的污水厂,宜设置调节水质和(或)水量的设施。 6.2.4 污水处理构筑物的设计流量,应按分期建设的情况分别计算。当污水为自流进入时,应按每期的最高日最高时设计流量计算;当污水为提升进入时,应按每期工作水泵的最大组合流量校核管渠配水能力。生物反应池的设计流量,应根据生物反应池类型和曝气时间确定。曝气时间较长时,设计流量可酌情减少。 6.2.5 合流制处理构筑物,除应按本章有关规定设计外,尚应考虑截流雨水进入后的影响,一般应符合下列要求: 1、提升泵站、格栅、沉砂池,按合流设计流量计算; 2、初次沉淀池,一般按旱流污水量设计,用合流设计流量校核,校核的沉淀时间不宜小于30min; 3、二级处理系统,按旱流污水量设计,必要时考虑一定的合流水量; 4、污泥浓缩池、湿污泥池和消化池的容积,以及污泥脱水规模,应根据合流水量水质计算确定。一般可按旱流情况加大10%~20%计算; 5、管渠应按合流设计流量计算。 6.2.6 各处理构筑物的个(格)数不应少于2个(格),并应按并联设计。 6.2.7 处理构筑物中污水的出入口处宜采取整流措施。 6.2.8 污水厂应设置对处理后出水消毒的设施。 |
泵前中格栅
1.1 设计依据
《给水排水设计手册》第5册[5.1.1] 栅渣量与地区的特点、格栅的间隙大小,污水量以及下水道系统的类型等因素有关。在无当地有运行资料时,可采用: 格栅间隙16~25mm,0.10~0.05m³栅渣/10³m³污水 格栅间隙30~50mm, 0.03~0.01m³栅渣/10³m³污水 《室外排水设计规范》(GB50014-2006) 6.3 规定: 6.3.1 污水处理系统或水泵前,必须设置格栅。 6.3.2 格栅栅条间隙宽度,应符合下列要求: 1、粗格栅:机械清除时宜为16~25mm,人工清除时宜为25~40mm。特殊情况下,最大间隙可为100mm; 2、细格栅:宜为1.5~10mm; 3、水泵前,应根据水泵要求确定。 6.3.3 污水过栅流速宜采用0.6~1.0m/s。除转鼓式格栅除污机外,机械清除格栅的安装角度宜为60°~90°。人工清除格栅的安装角度宜为30°~60°。 6.3.5 格栅上部必须设置工作平台,其高度应高出格栅前最高设计水位0.5m,工作平台上应有安全和冲洗设施。 6.3.6 格栅工作平台两侧边道宽度宜采用0.7~1.0m。工作平台正面过道宽度,采用机械清除时不应小于1.5m,采用人工清除时不应小于1.2m。 6.3.7 粗格栅栅渣宜采用带式输送机输送;细格栅栅渣宜采用螺旋输送机输送。 |
1.2 设计参数
设计流量:Qmax =340 L/s ,以近远期最高日最高时流量计 栅前水深:h=1.0m, 过栅流速:v2=0.9m/s 栅条宽度:s=10mm=0.01m, 格栅净间距b=20mm=0.02m 栅前部分长度:0.5m, 格栅倾角α=75º 单位栅渣量:W1=0.03m3/103m3 |
1.3 设计计算
1.3.1 栅条的间隙数(n):
栅前宽度为B1=0.65m
(1-1)
1.3.2栅槽宽度(B):
(1-2)
1.3.3 进水渠道渐宽部分长度(L1):
取进水渠渐宽B1=0.8m,渐宽部分展开角20º
(1-3)
1.3.4 栅槽出水连接处的渐窄部分的长度(L2):
(1-4)
1.3.5 格栅水头损失:
因栅条为矩形截面,取
(1-5)
(1-6)
1.3.6 栅前槽总高:
栅前渠道超高 h2=0.3m,则栅前槽高
(1-7)
1.3.7 格栅总长度:
(1-8)
1.3.8 每日栅渣量:
(1-9)
故采用机械清渣。格栅采用链条回转式格栅,它由驱动机构、主传动链轮轴、从动链轮轴、牵引链、齿耙、过力矩保护装置和机架等组成。驱动机构布置在栅体上部的左侧或右侧,通过安全保护装置将扭矩传给主传动链轮轴,主传动链轮轴两侧主动链轮使两条环形链条作回转运动,在环形链条上 均布6~8块齿耙,齿耙间距与格栅栅距配合并插入栅片间隙一定深度,运行时齿耙栅片上的污物随齿耙上行,当齿耙转到格栅体顶部牵引链条换向时齿耙也随之翻转,格栅截留的栅渣脱落到工作平台上端的卸料处,由卸料装置将污物卸至输送机或集污容器中。 格栅清渣装置起动由水位差控制开关控制,当格栅前后水位差大于0.1m时,开始工作。 |
1.4 中格栅选用
根据格栅间距,宽度在《给水排水设计手册》第11册常用设备(第三版)上查得采用GLG980型高链式格栅除污机。
图1-1中格栅选型
1.5 计算简图
图1-2 中格栅示意图
第2章 污水提升泵房
2.1 设计依据
《室外排水规范》GB50014-2006中规定如下: 5.1.1 排水泵站宜按远期规模设计,水泵机组可按近期规模配置。 5.1.2 排水泵站宜设计为单独的建筑物。 5.1.3 抽送会产生易燃易爆和有毒有害气体的污水泵站,必须设计为单独的建筑物,并应采取相应的防护措施。 5.1.4 排水泵站的建筑物和附属设施宜采取防腐蚀措施。 5.1.7 雨水泵站应采用自灌式泵站。污水泵站和合流污水泵站宜采用自灌式泵站。 5.1.8 泵房宜有二个出入口,其中一个应能满足最大设备或部件的进出。 5.2.1 污水泵站的设计流量,应按泵站进水总管的最高日最高时流量计算确定。 5.2.2 雨水泵站的设计流量,应按泵站进水总管的设计流量计算确定。当立交道路设有盲沟时,其渗流水量应单独计算。 5.2.5 污水泵和合流污水泵的设计扬程,应根据设计流量时的集水池水位与出水管渠水位差和水泵管路系统的水头损失以及安全水头确定。 5.3.1 集水池的容积,应根据设计流量、水泵能力和水泵工作情况等因素确定。一般应符合下列要求: 1、污水泵站集水池的容积,不应小于最大一台水泵5min的出水量; 注:如水泵机组为自动控制时,每小时开动水泵不得超过6次。 2、雨水泵站集水池的容积,不应小于最大一台水泵30s的出水量; 3、合流污水泵站集水池的容积,不应小于最大一台水泵30s的出水量。 |
2.2 设计参数
设计流量:
集水池容积不小于最大一台水泵5min的出水量;
吸水管设计流速宜为0.7~1.5m/s,出水管流速宜为0.8~2.5m/s;
2.3 设计计算
2.3.1 水泵的流量
水泵的设计流量为
,采用4台泵(三用一备),每台设计流量为
。
2.3.2 水泵的扬程
(1)提升净扬程
(2-1)
(2)水泵水头损失h取2m。
(3)水泵的扬程
(2-2)
2.3.3 水泵吸水、出水管设计
根据水泵吸水流量和规范对流速的要求,设计水泵吸水管管径为DN500,流速为0.9m/s;出水管管径为DN400,流速为1.41m/s。
2.3.4 设备选型
考虑来水的不均匀性,易选择两台以上及两台以上的机组工作,以适应流量的变化。查《给水排水设计手册》(第十一册 常用设备),选用300WQ480-15-45型潜污泵三台(三用一备),该泵性能参数如图2-1所示。

图2-1 水泵参数
2.3.5 泵房尺寸的确定
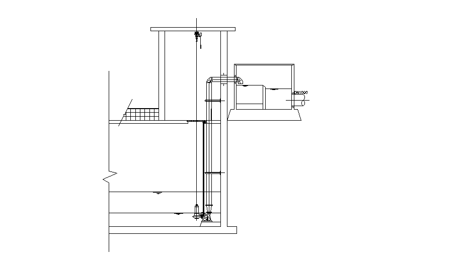
根据吸水量要求,确定采用矩形泵房,泵房平面尺寸为L×B=15.6×6.4m。集水井最低水位标高为-7.89m。

图2-2 提升泵房示意图
第3章 泵后细格栅
3.1 设计依据
《给水排水设计手册》第5册[5.1.1]: 栅渣量与地区的特点、格栅的间隙大小,污水量以及下水道系统的类型等因素有关。在无当地有运行资料时,可采用:
《室外排水设计规范》(GB50014-2006) 6.3 规定: 6.3.1 污水处理系统或水泵前,必须设置格栅。 6.3.2 格栅栅条间隙宽度,应符合下列要求: 1、粗格栅:机械清除时宜为16~25mm,人工清除时宜为25~40mm。特殊情况下,最大间隙可为100mm; 2、细格栅:宜为1.5~10mm; 3、水泵前,应根据水泵要求确定。 6.3.3 污水过栅流速宜采用0.6~1.0m/s。除转鼓式格栅除污机外,机械清除格栅的安装角度宜为60°~90°。人工清除格栅的安装角度宜为30°~60°。 6.3.5 格栅上部必须设置工作平台,其高度应高出格栅前最高设计水位0.5m,工作平台上应有安全和冲洗设施。 6.3.6 格栅工作平台两侧边道宽度宜采用0.7~1.0m。工作平台正面过道宽度,采用机械清除时不应小于1.5m,采用人工清除时不应小于1.2m。 6.3.7 粗格栅栅渣宜采用带式输送机输送;细格栅栅渣宜采用螺旋输送机输送。 |
3.2 设计参数
栅前水深:h=1m , 过栅流速:v2=0.9m/s 栅条宽度:s=0.01m, 格栅净间距e=8mm=0.008m 栅前部分长度:0.5m, 栅后宽度:1.0m 格栅倾角α=75º , 污水栅前超高:h2=0.3m 单位栅渣量:W1=0.1m3/103m3 |
3.3 设计计算
3.3.1 栅条的间隙(n):
(3-1)
3.3.2 栅槽宽度(B):
(3-2)
3.3.3 进水渠道渐宽部分长度(L1):
(3-3)
3.3.4 栅槽与出水渠道连接处的渐窄部分长度(L2):
(3-4)
3.3.5 格栅水头损失:
因栅条为矩形截面,取
(3-5)
(3-6)
3.3.6 栅后槽总高:
(3-7)
3.3.7 格栅总长度:
(3-8)
3.3.8 每日栅渣量:
(3-9)
故采用机械清渣。格栅采用旋转式格栅,它由驱动机构、主传动链轮轴、从动链轮轴、牵引链、齿耙、过力矩保护装置和机架等组成。驱动机构布置在栅体上部的左侧或右侧,通过安全保护装置将扭矩传给主传动链轮轴,主传动链轮轴两侧主动链轮使两条环形链条作回转运动,在环形链条上均布6~8块齿耙,齿耙间距与格栅栅距配合并插入栅片间隙一定深度,运行时齿耙栅片上的污物随齿耙上行,当齿耙转到格栅体顶部牵引链条换向时齿耙也随之翻转,格栅截留的栅渣脱落到工作平台上端的卸料处,由卸料装置将污物卸至输送机或集污容器中。 格栅清渣装置起动由水位差控制开关控制,当格栅前后水位差大于0.1m时,开始工作。 |
3.4 细格栅选用
根据格栅间距,宽度在《给水排水设计手册》第11册常用设备(第三版)上查得采用XGS-1000型旋转式格栅除污机,参数如图3-1所示。

图3-1 细格栅参数选型
3.5 计算草图
图3-2 细格栅
沉砂池
4.1 设计依据
《室外排水设计规范》(GB50014-2006)中规定: 6.4.1 关于设置沉砂池的规定。 一般情况下,由于在污水系统中有些井盖密封不严,有些支管连接不合理以及部分家庭院落和工业企业雨水进入污水管,在污水中会含有相当数量的砂粒等杂质。设置沉砂池可以避免后续处理构筑物和机械设备的磨损,减少管渠和处理构筑物内的沉积,避免重力排泥困难,防止对生物处理系统和污泥处理系统运行的干扰。 6.4.4 旋流沉砂池的设计,应符合下列要求: 1、最高时流量的停留时间不应小于30s; 2、设计水力表面负荷宜为150~200m3/(m2·h); 3、有效水深宜为1.0~2.0m,池径与池深比宜为2.0~2.5; 4、池中应设立式桨叶分离机。 6.4.5 污水的沉砂量,可按每立方米污水0.03L计算;合流制污水的沉砂量应根据实际情况确定 6.4.7 沉砂池除砂宜采用机械方法,并经砂水分离后贮存或外运。采用人工排砂时,排砂管直径不应小于200mm。排砂管应考虑防堵塞措施。 《给水排水设计手册》(第05期 城镇排水): 1、设计流量应按分期建设考虑: 1)当污水为自流进入时,应按每期的最大设计流量计算;当污水为提升进入时,应按每期工作水泵的最大组合流量计算。 2)在合流制处理系统中,应按降雨时的设计流量计算。 2、沉砂池个数或分格数不应小于2个,并宜安并联系列设计,当污水量较少时,可考虑一格工作,一格备用。 3、城市污水的含砂量可按106m3污水沉砂30m3计算,其含水率为60%,容量为1500kg/m3;合流制污水的沉砂量应根据实际情况确定。 4、沉砂池的超高不宜小于0.3m。 |
4.2 设计参数
设计流量:总流量29600m3/d=343L/s
近期设两组,每组流量172L/s
4.3 设计计算
4.3.1 旋流沉砂池选型
根据《给水排水设计手册》(第5册 城镇排水),选用型号为I-200旋流沉砂池,流量为180L/s。尺寸如下表4-1所示。 表4-1 旋流沉砂池尺寸 旋流沉砂池I为一种涡流式沉砂池,由进水口,出水口,沉砂分选区,集砂区,砂提升管,排砂管,电动机和变速箱组成。污水由流入口沿切线方向流入沉砂区,利用电动机及传动装置带动转盘和斜坡式叶片旋转,在离心力的作用下,污水中较大密度的砂粒被甩向池壁,可达到最佳沉砂效果,沉砂用压缩空气经纱提升管,排砂管清洗后排除,清洗水回流至沉砂区。 |
4.3.2 沉砂量:
(4-1)
4.3.3 计算草图

图4-1 旋流沉砂池示意图
4.4 设备选型
选择南京武威康流体设备有限公司生产的型号为LSSF-355螺旋砂水分离器,功率为0.75kw。
第5章 厌氧池和卡罗塞尔氧化沟
5.1 设计依据
《城市污水处理厂设计计算》 《水处理构筑物设计计算》 《室外排水设计规范》(GB50014-2006)[6.6-Ⅴ] 6.6.1 根据去除碳源污染物、脱氮、除磷、好氧污泥稳定等不同要求和外部环境条件,选择适宜的活性污泥处理工艺。 6.6.3 生物反应池的超高,当采用鼓风曝气时为0.5~1.0m;当采用机械曝气时,其设备操作平台宜高出设计水面0.8~1.2m。 6.6.4 污水中含有大量产生泡沫的表面活性剂时,应有除泡沫措施。 6.6.5 每组生物反应池在有效水深一半处宜设置放水管。 6.6.6 廊道式生物反应池的池宽与有效水深之比宜采用1:1~2:1。有效水深应结合流程设计、地质条件、供氧设施类型和选用风机压力等因素确定,一般可采用4.0~6.0m。在条件许可时,水深尚可加大。 6.6.7 生物反应池中的好氧区(池),采用鼓风曝气器时,处理每立方米污水的供气量不应小于3m3。好氧区采用机械曝气器时,混合全池污水所需功率一般不宜小于25W/m3;氧化沟不宜小于15W/m3。缺氧区(池)、厌氧区(池)应采用机械搅拌,混合功率宜采用2~8W/m3。机械搅拌器布置的间距、位置,应根据试验资料确定。 6.6.8 生物反应池的设计,应充分考虑冬季低水温对去除碳源污染物、脱氮和除磷的影响,必要时可采取降低负荷、增长泥龄、调整厌氧区(池)及缺氧区(池)水力停留时间和保温或增温等措施。 6.6.9 原污水、回流污泥进入生物反应池的厌氧区(池)、缺氧区(池)时,宜采用淹没入流方式。 6.6.21 氧化沟前可不设初次沉淀池。 6.6.22 氧化沟前可设置厌氧池。 6.6.23 氧化沟可按两组或多组系列布置,并设置进水配水井. 6.6.24 氧化沟可与二次沉淀池分建或合建。 6.6.25 延时曝气氧化沟的主要设计参数,宜根据试验资料确定,无试验资料时,可按本规范表6.6.25的规定取值。 |
表6.6.25 延时曝气氧化沟主要设计参数
项 目 | 单 位 | 参数值 |
污泥浓度(MLSS)Xa | g/L | 2.5~4.5 |
污泥负荷Ls | kgBOD5/kgMLSS·d | 0.03~0.008 |
污泥龄θC | d | gt;15 |
污泥产率Y | kgVSS/kgBOD5 | 0.3~0.6 |
需氧量O2 | kgO2/kgBOD5 | 1.5~2.0 |
水力停留时间HRT | h | ≥16 |
污泥回流比 R | % | 75~150 |
总处理效率 η | % | >95(BOD5) |
6.6.26 当采用氧化沟进行脱氮除磷时,宜符合本规范6.6.17~6.6.20条的有关规定。 6.6.27 进水和回流污泥点宜设在缺氧区首端,出水点宜设在充氧器后的好氧区。氧化沟的超高与选用的曝气设备类型有关,当采用转刷、转碟时,宜为0.5m;当采用竖轴表曝机时,宜为0.6~0.8m,其设备平台宜高出设计水面0.8~1.2m。 6.6.28 氧化沟的有效水深与曝气、混合和推流设备的性能有关,宜采用3.5~4.5m。 6.6.29 根据氧化沟渠宽度,弯道处可设置一道或多道导流墙;氧化沟的隔流墙和导流墙宜高出设计水位0.2~0.3m。 6.6.30 曝气转刷、转碟宜安装在沟渠直线段的适当位置,曝气转碟也可安装在沟渠的弯道上,竖轴表曝机应安装在沟渠的端部。 6.6.31 氧化沟的走道板和工作平台,应安全、防溅和便于设备维修。 6.6.32 氧化沟内的平均流速宜大于0.25m∕s。 6.6.33 氧化沟系统宜采用自动控制。 6.8.1 生物反应池中好氧区的供氧,应满足污水需氧量、混合和处理效率等要求,一般宜采用鼓风曝气或表面曝气等方式。 6.8.2 生物反应池中好氧区的污水需氧量,根据去除的五日生化需氧量、氨氮的硝化和除氮等要求,宜按下列公式计算:
式中:O2—污水需氧量(kgO2/d); Q—生物反应池的进水流量(m3/d); S0—生物反应池进水五日生化需氧量浓度(mg/L); Se—生物反应池出水五日生化需氧量浓度(mg/L); △XV—排出生物反应池系统的微生物量(kg/d); Nk—生物反应池进水总凯氏氮浓度(mg/L); Nke—生物反应池出水总凯氏氮浓度(mg/L); Nt—生物反应池进水总氮浓度(mg/L); Noe—生物反应池出水硝态氮浓度(mg/L); 0.12△XV—排出生物反应池系统的微生物中含氮量(kg/d); a—碳的氧当量,当含碳物质以BOD5计时,取1.47; b—常数,氧化每公斤氨氮所需氧量(kgO2/kgN),取4.57; c—常数,细菌细胞的氧当量,取1.42。 去除含碳污染物时,去除每公斤五日生化需氧量可采用0.7~1.2kgO2。 6.8.3 选用曝气装置和设备时,应根据设备的特性、位于水面下的深度、水温、污水的氧总转移特性、当地的海拔高度以及预期生物反应池中溶解氧浓度等因素,将计算的污水需氧量换算为标准状态下清水需氧量。 6.8.4 鼓风曝气时,可按下列公式将标准状态下污水需氧量,换算为标准状态下的供气量。
式中:Gs—标准状态下供气量(m3/h); 0.28—标准状态(0.1MPa、20℃)下的每立方米空气中含氧量(kgO2/m3); Os—标准状态下,生物反应池污水需氧量(kgO2/h); EA—曝气器氧的利用率,以%计。 6.8.5 鼓风曝气系统中的曝气器,应选用有较高充氧性能、布气均匀、阻力小、不易堵塞、耐腐蚀、操作管理和维修方便的产品。应具有不同服务面积、不同空气量、不同曝气水深,在标准状态下的充氧性能及底部流速等技术资料。 6.8.6 曝气器的数量,应根据供氧量和服务面积计算确定。供氧量包括生化反应的需氧量和维持混合液有2mg/L的溶解氧量。 6.8.7 廊道式生物反应池中的曝气器,可满池布置或池侧布置,或沿池长分段渐减布置。 6.8.8 采用表面曝气器供氧时,宜符合下列要求: 1 叶轮的直径与生物反应池(区)的直径(或正方形的一边)之比:倒伞或混流型为1:3~1:5,泵型为1:3.5~1:7; 2 叶轮线速度为3.5~5.0m/s; 3 生物反应池宜有调节叶轮(转刷、转碟)速度或淹没水深的控制设施。 6.8.9 各种类型的机械曝气设备的充氧能力应根据测定资料或相关技术资料采用。 6.8.10 选用供氧设施时,应考虑冬季溅水、结冰、风沙等气候因素以及噪声、臭气等环境因素。 |
5.2 设计参数
拟用厌氧池 卡罗塞(Carrousel)氧化沟,去除BOD5与COD之外,还具备硝化和一定的脱氮除磷作用,使出水NH3-N低于排放标准。
Carrousel氧化沟设计流量20000m3/d,设计为两组氧化沟。
每组设计流量
(5-1)
5.2.1 原始设计参数
进水水质 出水水质
|
5.2.2 选取设计参数
污泥产率系数Y=0.6; 内源代谢系数 假设可生物降解的VSS比例 设混合液中70%为挥发性的; 选择总MLSS浓度为4000mg/L; 曝气器采用立式低速表曝机; 反应池中溶解氧浓度C=2.0mg/L;
脱氮温度修正系数 |
5.3 设计计算
5.3.1 厌氧池
为使氧化沟具有除磷脱氮的功能,在氧化沟之前设厌氧池,这样,污水可以在这里进行厌氧中重要的释磷作用以及部分反硝化作用。
(1)设计参数:
设计中采用两座厌氧池,最大日流量为343L/s,每座设计流量为Q=171.5 L/s。水力停留时间:T=0.5h;污泥浓度:X=4000mg/L;污泥回流液浓度:Xr=10000mg/L。
(2)设计计算:
回流比:
(5-2)
污泥回流量:
(5-3)
厌氧池容积:
(5-4)
厌氧池尺寸:
水深取为h=4m,则厌氧池面积:
(5-5)
考虑0.3m的超高,故池总高为
(5-6)
厌氧池尺寸为:L×B×H=11.0m×8.0m×4.3m
选用DQ型低速潜水推流器,每池4个,共8个。


图5-1 厌氧池
5.3.2 氧化沟
(1)去除BOD5的设计计算
1)计算污泥龄
(5-7)
2)计算出水
和去除率
(5-8)
假设出水SS=10mg/L,VSS/SS=0.7,则VSS的BOD5为
(5-9)
所以总出水BOD5
(5-10)
达到排放标准。
(5-11)
(5-12)
3)计算好养区容积(V)
(5-13)
取MLSS=4000mg/L,则
(5-14)
4)校核水力停留时间和污泥负荷
水力停留时间
(5-15)
符合要求(一般取10h-40h)
污泥负荷
(5-16)
符合要求(温带取0.1-0.25)
5)计算剩余污泥量
每天产生的剩余污泥按下式计算
(5-17)
(5-18)
(5-19)
如由池底排除,二沉池排泥浓度为10g/L,则每个氧化沟产拟量为:
(5-20)
6)校核VSS产率
(5-21)
计算的产率比其取的Y值小,这是由于进水BOD5不完全是溶解性BOD5。
7)复核可生物降解VSS比例(
)
(5-22)
其中
(5-23)
代入求得
(5-24)
如果
值与最初的假设值相差较大,(1)-(6)需要重新计算。
(2)脱氮的设计计算
假设非氨态氮中没有硝酸盐的存在形式,而是大分子中的化合态氮,其在生物氧化过程中需要经过氨态氮这一形态,所以
1)需要去除的氮量
为:
(5-25)
2)设反硝化池水温为23℃,则反硝化速率Ndn’为:
(5-26)
3)缺氧区(反硝化区)容积计算:
(5-27)
4)脱氮水力停留时间
(5-28)
5)氧化沟总体积及总水力停留时间的计算
(5-29)
(5-30)
(3)氧化沟尺寸设计计算
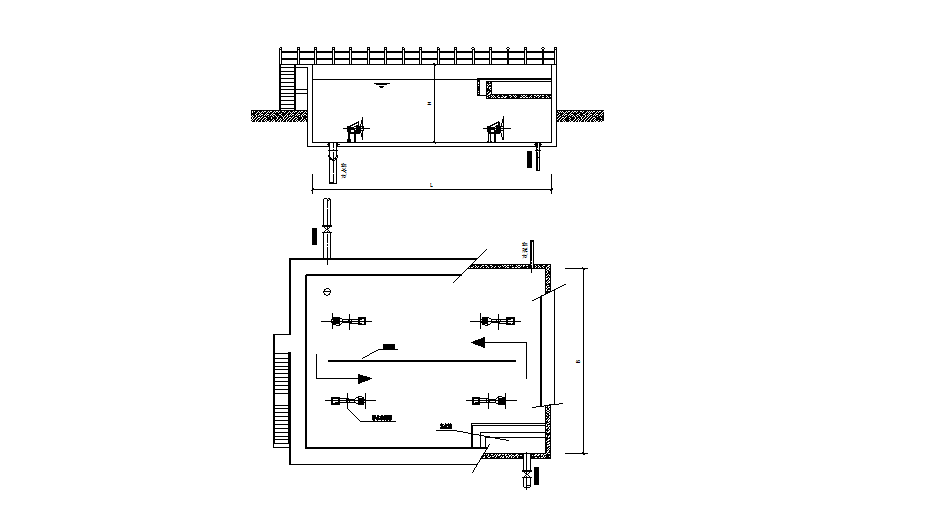
氧化沟计算草图如图5-2所示:

图5-2 氧化沟草图
1)沟体尺寸
设氧化沟宽度B=8m,取氧化沟水深h1=5m,超高h2=0.6m,间分隔墙厚度为b=0.25m,氧化沟总高H为
(5-31)
每组沟道的面积为:
(5-32)
每组氧化沟小弯道面积为:
(5-33)
每组氧化沟大弯道面积为:
(5-34)
直线部分面积为:
(5-35)
单沟道直线部分长度为:
(5-36)
2)出水堰及出水竖井
①出水堰,出水堰计算按薄壁堰来考虑
(5-37)
式中: b-堰宽;
H-堰上水头,取0.03m.
(5-38)
出水堰分为两组,每组宽度
(5-39)
②出水竖井.考虑可调式出水堰安装要求,在堰两边各留0.3m的操作距离.
出水竖井
(5-40)
出水竖井宽B=1.4m(考虑安装要求要求)
则出水竖井平面尺寸
(5-41)
(4)曝气设备的设计计算
1)需氧量计算
①碳源需氧量
:
(5-42)
(5-43)
(5-44)
式中:a-微生物对有机底物氧化分解的需氧率,取0.52;
b-活性污泥自身氧化需氧率,取0.12;
②硝化需氧量
:
每1kgNH3-N硝化需要消耗4.6kgO2
(5-45)
③脱氮产生的氧气量
一般情况下,用于合成微生物有机体的氮量为12.4%,用于合成的氮量N合为
(5-46)
N合在进水中的当量浓度N合为
(5-47)
设被还原氮浓度为C还,则被还原的氮量N还为
(5-48)
(5-49)
④总需氧量为:
(5-50)
2)标准需氧量计算,根据下列公式计算SOR(式中
)
考虑到安全系数1.4,则:
(5-51)
(5-52)
(5-53)
(5-54)
由于水中有机物会使溶解氧降低,为了安全起见,将标准需氧量取为
。
3)配置曝气设备
氧化沟水深一般要小于叶轮直径的3倍,一般取叶轮直径的1.5倍。混合全池污水
容积所需功率一般不宜小于25W/m
。氧化沟沟宽约为叶轮直径的2.2~2.4倍取中值,沟深约为沟宽的0.5倍,氧化沟污水容积所需功率应不小于15W/m3,合适功率是20W/m
。氧化沟内不宜设立柱,如需设置立柱,立柱至叶轮中心的距离应大于叶轮直径。氧化沟中间隔墙至叶轮外缘间距以0.1倍叶轮直径为宜。选用LY-I 3600型表面曝气机进行曝气,运行参数如表5-1所示。
表5-1 曝机参数表
型号 | 曝气机平盘直径(mm) | 电机功配用率(kW) | 电机轴功率(kW) | 充氧量(kgO2/h) |
LY-I 3600 | 3600 | 160 | 128.00 | 384~448 |
设每台表曝机每小时充氧量
,则表曝机台数
(5-55)
②潜水推进器.每组氧化沟设四台潜水推进器,共八台,每台电机功率N=3kW。
第6章 二沉池
6.1 设计依据
《给水排水设计手册》第5册 城市排水[5.3.4] 《室外排水设计规范》GB50014-2006[6.5]中关于辐流沉淀池设计的规定: (1)径深比的要求。根据辐流沉淀池的流态特征,径深比宜为6~12。日本指南和前苏联规范都规定为6~12,沉淀效果较好,本条文采用6~12。为减少风对沉淀效果的影响,池径宜小于50m。 (2)排泥方式及排泥机械的要求。近年来,国内各地区设计的辐流沉淀池,其直径都较大,配有中心传动或周边驱动的桁架式刮泥机,已取得成功经验。故规定宜采用机械排泥。参照日本指南,规定排泥机械旋转速度为1~3r/h,刮泥板的外缘线速度不大于3m/min。当池子直径较小,且无配套的排泥机械时,可考虑多斗排泥,但管理较麻烦。 |
6.2 设计参数
该污水厂设计采用中心进水周边出水辐流式沉淀池。
设计流量 Q=29600m3/d=343L/s.
水力停留时间 T=1.5~4.0h
污泥区容积:连续排泥,不大于2h污泥量
池子个数n=2
出水堰最大负荷不大于1.7L/(s·m)
表面水力负荷0.6~1.5m3/(m2·h)
坡向泥斗的底坡不宜小于0.05
6.3 设计计算
6.3.1 沉淀池表面面积A
(6-1)
式中: q—表面负荷,取1.5 m3/(m2·h)
设共建二座二沉池,每座二沉池表面积Ai为
(6-2)
6.3.2 二沉池直径
(6-3)
设计中选取D=23.0m
6.3.3 池体有效水深
二沉池有效水深为:
(6-4)
式中:T—沉淀时间,取2.0h
6.3.4 污泥容积
为了防止磷在池中发生厌氧释放,故贮泥时间采用2h,沉淀池污泥区所需存泥容积
(6-5)
6.3.5 污泥区的高度
泥斗下部直径
=2.0m,上部直径
=4.0m,斗倾角60度
泥斗上方锥体坡度i=0.06
泥斗区高度
(6-6)
泥斗的容积
(6-7)
锥体区高度
(6-8)
锥体体积
(6-9)
圆柱体部分高度
(6-10)
(6-11)
6.3.6 沉淀池总高度
超高
缓冲层高度
(6-12)
6.3.7 二沉池出水部分设计
1)集水槽的设计
本设计考虑集水槽为矩形断面,取底宽b=0.8m,集水槽距外缘距池边0.5m,集水槽壁厚采用0.15m,则集水槽宽度为:
m (6-13)
设计中采用
(6-14)
其中
——安全系数,取1.5,得
(6-15)
集水槽内水流速度为:
(6-16)
符合要求。
采用双侧集水环形集水槽计算,槽内终点水深为
(6-17)
槽内起点水深为
(6-18)
式中
——槽内临界水深
——系数,一般采用1.0
(6-19)

(6-20)
校核如下:
因此,设计取槽内水深为0.7m,取超高0.3m,则集水槽总高为
m (6-21)
集水槽水力计算
(6-22)
湿周:
(6-23)
水力半径:
(6-24)
水流坡度:
(6-25)
则沿程水头损失为:
(6-26)
局部按沿程水头损失的30%计,则集水槽内水头损失为:
(6-27)
2)出水堰的计算
二沉池是污水处理系统中的主要构筑物,污水在二沉池中得到净化后,出水的水质指标大多已定,故二沉池的设计相当重要。本设计考虑到薄壁堰不能满足堰上负荷,故采用90°三角堰出水。如下图6-1所示。

图6-1 三角堰示意图
(6-28)
式中 q——三角堰单堰流量
Q——进水流量
L——集水堰总长度
L1——集水堰外侧堰长
L2——集水堰内侧堰长
n——三角堰数量
b——三角堰单宽
h——堰上水头
q0——堰上负荷
设计中取
(6-29)
(6-30)
(6-31)
(6-32)
(6-33)
(6-34)
(6-35)
考虑自由跌水水头损失0.15m,则出水堰总水头损失为:
(6-36)
出水槽的接管与二沉池集水井相连,出水管管径为
,流速为:
(6-37)
6.3.8 计算草图

图6-2 沉淀池示意图
6.3.9 设备选型
查《给水排水设计手册》(第11册常用设备),选用ZG-24型周边传动刮泥机,周边线速度为2.18m/min,功率为1.5kw。
第7章 消毒设施
7.1 设计依据
《室外排水设计规范》GB50014-2006[6.13] 6.13.5 污水的紫外线剂量宜根据试验资料或类似运行经验确定;也可按下列标准确定: 1、二级处理的出水为15~22mJ/cm2; 2、再生水为24~30 mJ/cm2。 6.13.6 紫外线照射渠的设计,应符合下列要求: 1、照射渠水流均布,灯管前后的渠长度不宜小于1m; 2、水深应满足灯管的淹没要求。 6.13.7紫外线照射渠不宜少于2条。当采用一条时,宜设置超越渠。 关于污水的紫外线剂量的规定。 污水的紫外线剂量应为生物体吸收至足量的紫外线剂量(生物验定剂量或有效剂量),以往用理论公式计算。由于污水的成份复杂且变化大,实践表明理论值比实际需要值低很多,为此,美国消毒手册已明确规定采用经独立第三方验证的紫外线生物实验验定剂量作为紫外线剂量。据此,作此规定。 |
一些病原体进行不同程度灭活时所需紫外线剂量资料见表7-1。
表7-1 灭活一些病原体的紫外线剂量(mJ/cm2)
病原体的灭活程度 病原体 | 90% | 99% | 99.9% | 99.99% |
隐孢子虫 | lt;10 | lt;19 | ||
贾第虫 | lt;5 | |||
霍乱弧菌 | 0.8 | 1.4 | 2.2 | 2.9 |
痢疾志贺氏病毒 | 0.5 | 1.2 | 2.0 | 3.0 |
埃希氏病菌 | 1.5 | 2.8 | 4.1 | 5.6 |
伤寒沙门氏菌 | 1.8~2.7 | 4.1~4.8 | 5.5~6.4 | 7.1~8.2 |
伤寒志贺氏病菌 | 3.2 | 4.9 | 6.5 | 8.2 |
致肠炎沙门氏菌 | 5 | 7 | 9 | 10 |
肝炎病毒 | 4.1~5.5 | 8.2~14 | 12~22 | 16~30 |
脊髓灰质炎病毒 | 4~6 | 8.7~14 | 14~23 | 21~30 |
柯萨奇病毒B5病毒 | 6.9 | 14 | 22 | 30 |
轮状病毒SAII | 7.1~9.1 | 15~19 | 23~26 | 31~36 |
表7-2 一些城市污水厂消毒的紫外线剂量
厂 名 | 拟消毒的水 | 紫外线剂量(mJ/cm2) | 建成时间(年) |
上海市长桥污水厂 | ANO二级出水 | 21.4 | 2001 |
上海市龙华污水厂 | 二级出水 | 21.6 | 2002 |
无锡市新城污水厂 | 二级出水 | 17.6 | 2002 |
深圳市大工业区污水厂(一期) | 二级出水 | 18.6 | 2003 |
苏州市新区第二污水厂 | 二级出水 | 17.6 | 2003 |
上海市闵行污水处理厂 | ANO二级出水 | 15.0 | 1999 |
7.2 设计参数
本设计采用紫外线进行污水消毒
设计流量:Q=29600m3/d
灯管宽:45mm,灯管间隔:15mm,灯管长度:2000mm
渠前长:3136mm,渠后长:2000mm,模块间隔:28mm
水力停留时间:T=10~100s
水力负荷:250m3/d/个紫外线灯
池子个数:N=2
7.3 设计计算
7.3.1 紫外线灯数计算:
(7-1)
7.3.2 所需模块数:
每模灯数
则,模块数为:
(7-2)
7.3.3 渠道宽度:
(7-3)
7.3.4 有效水深:
(7-4)
7.3.5 消毒时间:
(7-5)
(7-6)
(7-7)

图7-1 紫外线消毒槽示意图
第8章 污泥处理构筑物的设计计算
8.1 污泥提升泵房
采用回流污泥泵房与剩余污泥泵房合建。
8.1.1 回流污泥泵的选择
因为合流制进水,故污泥处置部分根据规范可按旱流情况加大10%~20%计算,本设计按加大15%计算:
回流量
(8-1)
1)扬程的估算 H=9.0m左右
2)水泵选型
查《给水排水设计手册》(第11册 常用设备)
选用250QW500-10-30型潜污泵螺旋泵2台(1用1备),单台提升能力为500m3/h,提升高度为10.0m,功率N=30kW。
8.1.2 剩余污泥泵的选择
1)扬程的估算 H=8.5m左右
2)流量
(8-2)
3)水泵选型
查《给水排水设计手册》(第11册 常用设备)
选用50QW25-10-41.5型潜污泵螺旋泵2台(1用1备),单台提升能力为25m3/h,提升高度为10.0m,功率N=1.5kW。
8.1.3 泵房平面尺寸
L×B=7×5m
8.2 贮泥池
8.2.1 设计参数
进泥量:
(8-3)
贮泥时间:T=8h,池子个数:N=2
8.2.2 设计计算
池容为 :
(8-4)
采用矩形贮泥池
设a=5m,b=4.0m,有效水深h
=2.0m,超高h
=0.5m,斗高h
=0.5m
(8-5)
贮泥池高度:
(8-6)
8.3 污泥浓缩脱水间
本设计采用污泥浓缩脱水一体机对污泥进行浓缩脱水。
8.3.1 设备选型
选用上海安碧环保设备有限公司生产的DYH-1000型转鼓污泥浓缩脱水一体机2台,处理量为90-230kg干污泥/小时,外形尺寸为L2730×B1600×H2630,滤带宽1000mm,总功率2.5kw。
8.3.2 机房平面尺寸
L×B=27×12m
第9章 污水处理厂总体设计及高程布置
9.1 设计依据
《室外排水规范》(GB50014-2006)中规定如下: 6.1.1 污水厂位置的选择,应符合城镇总体规划和排水工程专业规划的要求,并应根据下列因素综合确定: 1、在城镇水体的下游。 2、便于处理后出水回用和安全排放。 3、便于污泥集中处理和处置。 4、在城镇夏季主导风向的下风侧。 5、有良好的工程地质条件。 6、少拆迁,少占地,根据环境评价要求,有一定的卫生防护距离。 7、有扩建的可能。 8、厂区地形不应受洪涝灾害影响,防洪标准不应低于城镇防洪标准,有良好的排水条件。 9、有方便的交通、运输和水电条件。 6.1.2 污水厂的厂区面积,应按项目总规模控制,并作出分期建设的安排,合理确定近期规模,近期工程投入运行一年内水量宜达到近期设计规模的60%。 6.1.3 污水厂的总体布置应根据厂内各建筑物和构筑物的功能和流程要求,结合厂址地形、气候和地质条件,优化运行成本,便于施工、维护和管理等因素,经技术经济比较确定。 6.1.4 污水厂厂区内各建筑物造型应简洁美观,节省材料,选材适当,并应使建筑物和构筑物群体的效果与周围环境协调。 6.1.5 生产管理建筑物和生活设施宜集中布置,其位置和朝向应力求合理,并应与处理构筑物保持一定距离。 6.1.6 污水和污泥的处理构筑物宜根据情况尽可能分别集中布置。处理构筑物的间距应紧凑、合理,符合国家现行的防火规范的要求,并应满足各构筑物的施工、设备安装和埋设各种管道以及养护、维修和管理的要求。 6.1.7 污水厂的工艺流程、竖向设计宜充分利用地形,符合排水通畅、降低能耗、平衡土方的要求。 6.1.8 厂区消防的设计和消化池、贮气罐、污泥气压缩机房、污泥气发电机房、污泥气燃烧装置、污泥气管道、污泥干化装置、污泥焚烧装置及其他危险品仓库等的位置和设计,应符合国家现行有关防火规范的要求。 6.1.9 污水厂内可根据需要,在适当地点设置堆放材料、备件、燃料和废渣等物料及停车的场地。 6.1.10 污水厂应设置通向各构筑物和附属建筑物的必要通道,通道的设计应符合下列要求: 1、主要车行道的宽度:单车道为3.5~4.0m,双车道为6.0~7.0m,并应有回车道; 2、车行道的转弯半径宜为6.0~10.0m; 3、人行道的宽度宜为1.5~2.0m; 4、通向高架构筑物的扶梯倾角一般宜采用30°,不宜大于45°; 5、天桥宽度不宜小于1.0m; 6、车道、通道的布置应符合国家现行有关防火规范要求,并应符合当地有关部门的规定。 6.1.11 污水厂周围根据现场条件应设置围墙,其高度不宜小于2.0m。 6.1.12 污水厂的大门尺寸应能容运输最大设备或部件的车辆出入,并应另设运输废渣的侧门。 6.1.13 污水厂并联运行的处理构筑物间应设均匀配水装置,各处理构筑物系统间宜设可切换的连通管渠。 6.1.14 污水厂内各种管渠应全面安排,避免相互干扰。管道复杂时宜设置管廊。处理构筑物间输水、输泥和输气管线的布置应使管渠长度短、损失小、流行通畅、不易堵塞和便于清通。各污水处理构筑物间的管渠连通,在条件适宜时,应采用明渠。 管廊内宜敷设仪表电缆、电信电缆、电力电缆、给水管、污水管、污泥管、再生水管、压缩空气管等,并设置色标。 管廊内应设通风、照明、广播、电话、火警及可燃气体报警系统、独立的排水系统、吊物孔、人行通道出入口和维护需要的设施等,并应符合国家现行有关防火规范要求。 6.1.15 污水厂应合理布置处理构筑物的超越管渠。 6.1.16 处理构筑物应设排空设施,排出水应回流处理。 6.1.17 污水厂宜设置再生水处理系统。 6.1.18 厂区的给水系统、再生水系统严禁与处理装置直接连接。 6.1.19 污水厂的供电系统,应按二级负荷设计,重要的污水厂宜按一级负荷设计。当不能满足上述要求时,应设置备用动力设施。 6.1.20 污水厂附属建筑物的组成及其面积,应根据污水厂的规模,工艺流程,计算机监控系统的水平和管理体制等,结合当地实际情况,本着节约的原则确定,并应符合现行的有关规定。 6.1.21 位于寒冷地区的污水处理构筑物,应有保温防冻措施。 6.1.22 根据维护管理的需要,宜在厂区适当地点设置配电箱、照明、联络电话、冲洗水栓、浴室、厕所等设施。 6.1.23 处理构筑物应设置适用的栏杆,防滑梯等安全措施,高架处理构筑物还应设置避雷设施。 |
9.2 污水厂的平面布置
污水处理厂的平面布置包括处理构筑物、办公楼、化验室及其他辅助建筑物以及各种管道渠道、道路、绿化带的布置。在进行污水处理处理厂厂区平面规划、布置时,应考虑的一般原则阐述如下。
9.2.1 各处理单元构筑物的平面布置
处理构筑物是污水处理厂的主体构筑物,在做平面布置时,应根据各构筑物的功能要求和水力要求,结合地形和地质条件,确定它们在厂区内平面的位置,对此,应考虑: 1、贯通、连接各处理构筑物之间的管、渠便捷、直通,避免迂回曲折; 2、土方量作到基本平衡,并避免劣质土壤地段。 3、在处理构筑物之间,应保持一定的间距,以保证敷设连接管、渠的要求,一般的间距可取值5~10m,某些有特殊要求的构筑物,如污泥消化池、消化气贮罐等,其间距应按有关规定确定; 4、各处理构筑物在平面布置上,应考虑适当紧凑。 |
9.2.2 管道及渠道的平面布置
1、在各处理构筑物之间,设有贯通、连接的管、渠。此外,还应设有能使各处理构筑物独立运行的管、渠,当某一处理构筑物因故停止工作时,使其后接处理构筑物,仍能够保持正常的运行。 2、应设超越全部处理构筑物,直接排放水体的超越管。 3、在厂区内还设有:给水管、空气管、消化气管、蒸汽管以及输配电线路。这些管线有的敷设在地下,但大部都在地上,对其安排,既要便于施工和维护管理,但也要紧凑,少占用地,也可以考虑采用架空的方式敷设。 污水处理厂内各种管渠应全面安排,避免相互干扰,管道复杂时可设置管廊,在污水处理厂厂区内,应有完善的雨水管道系统,必要时应设置防洪沟渠。 |
9.2.3 附属建筑物
污水处理厂内的辅助建筑物有:泵房、鼓风机房、办公室、集中控制室、水质分析化验室、变电所、机修、仓库、食堂等。他们是污水处理厂不可缺少的组成部分。有可能时,可设立试验车间,以不断研究与改进污水处理技术。辅助建筑物的位置应根据方便、安全等原则确定。如鼓风机房应设于曝气池附近,以节省管道与动力;变电所宜设于耗电量大的构筑物附近等。化验室应远离机器间和污泥干化场,以保证良好的工作条件。办公室、化验室等均应与处理构筑物保持适当距离,并应位于处理构筑物的夏季主风向的上风向处。操作工人的值班室应尽量布置在使工人能够便于观察个处理构筑物运行情况的位置。在污水处理厂内应广为植树绿化美化厂区,改善卫生条件,改变人们对污水处理厂“不卫生”的传统看法。按规定,污水处理厂厂区的绿化面积不得少于30%。 在污水处理厂内,应合理的修筑道路,方便运输;应设置通向各处理构筑物和辅助建筑物的必要通道,通道的设计应符合如下要求: 1、主要车行道的宽度:单车道为:3.5m,双车道为6~7m.并应有回车道。 2、车道的转弯半径不宜小于6m. 3、人行道的宽度为:1.5~2m。 4、通向高架构筑物的扶梯倾角不宜大于45度。 5、天桥宽度不宜小于1m. 具体平面布置见城市污水厂总平面图。 |
9.2.4估算占地面积
查《城市排水工程规划规范》GB 50318-2000可知本设计污水处理厂的占地面积在4.0~6.0公顷之间。
9.2.5污水处理厂附属建筑及其尺寸
根据《城镇污水处理厂附属建筑和附属设备设计标准》(GJJ31-89)确定本设计污水处理厂各附属建筑及其尺寸如表9-1所示:
表9-1 污水处理厂附属建筑及其尺寸
建筑名称 | 建筑面积(m2) | 尺寸( 长*宽) |
行政办公楼 | 250 | L× B=25m× 10m |
化验室 | 160 | L× B=16m× 10m |
机修间 | 150 | L× B=15m× 10m |
电修间 | 35 | L× B=7m× 5m |
职工宿舍 | 100 | L× B=10m× 10m |
仓库 | 120 | L× B=15m× 8m |
传达室 | 20 | L× B=5m× 4m |
食堂 | 70 | L× B=10m× 7m |
浴室及锅炉房 | 100 | L× B=10m× 10m |
车库 | 120 | L× B=15m× 8m |
9.3 污水厂的高程布置
9.3.1 污水的高程布置
污水处理工程的污水处理流程高程布置的主要任务是确定各处理构筑物的泵房的标高,确定各处理构筑物之间联结灌渠的尺寸及其标高;通过计算确定各部位的水面标高,从而使污水能够在各处理构筑物之间顺畅的流动,保证污水处理工程的正常运行。 为了降低运行费用和便于维护管理,污水在处理构筑物之间的流动,以按重力流考虑为宜,并设计选择一条距离最长,水头损失最大的流程进行水力计算。计算水头损失时,以污水厂设计流量作为构筑物和管渠的设计流量。水力计算参考以接纳水体的最高水位作为起点,逆污水处理流程向上倒推计算,以使处理后污水在洪水季节能自流排出,而水泵需要的扬程也较小,运行费用也较低。同时也考虑构筑物的挖土深度不宜过大,以免土建投资过大而增加施工上的困难。 |
污水高程计算的水头损失包括:
1)污水流经各处理构筑物的水头损失
各种处理构筑物(设备)的水头损失和构筑物中集配水渠的水头损失在构筑物的设计计算中已经计算过,此处从略。
2)连接管渠的水头损失计算
为简化计算,认为水流为均匀流。管渠的水头损失主要有沿程水头损失和局部水头损失。
(1)沿程水头损失:
(9-1)
式中 v——水流速度(m/s);
L——管段或渠道长度(m);
C——谢才系数
(9-2)
R——水力半径(m);
n——管壁粗糙系数,该值根据管渠材料而定。
(2)局部水头损失:
(9-3)
式中 ζ——局部阻力系数可参考《给水排水设计手册》取值;
v——水流速度(m/s);
g——重力加速度(m/s2)。
由于矩形渠道水头损失的水力计算表资料较为缺乏,故用上式进行计算;但铸铁管道的水力计算可查《给水排水设计手册》来进行计算。
9.3.2 水头损失计算
构筑物水头损失见表9-2。
表9-2 污水构筑物水头损失表
构筑物名称 | 水头损失(m) | 构筑物名称 | 水头损失(m) |
中格栅 | 0.11 | 氧化沟 | 0.40 |
细格栅 | 0.39 | 沉淀池 | 0.50 |
沉砂池 | 0.30 | 消毒池 | 0.30 |
厌氧池 | 0.20 | 计量槽 | 0.20 |
9.3.3 污水处理高程计算及布置
设计进水渠道的水面标高为-5.50m,受纳水体的洪水位为-1.6m,(假设地面标高均为0.00m)。根据各处理构筑物之间的水头损失推求其他构筑物的设计水面标高。经过计算,各污水处理构筑物的设计水面标高如下表9-3所示:
表9-3 水头损失计算表(m)
管渠及构筑物名称 | 水头损失 | 水面上游标高 | 水面下游标高 |
中格栅 | 0.11 | -5.5 | -5.61 |
中格栅-污水提升泵站 | 0.2 | -5.61 | -5.81 |
污水提升泵站-细格栅 | 0.5 | -5.81 | 2.39 |
细格栅 | 0.39 | 2.39 | 2 |
旋流沉砂池 | 0.3 | 2 | 1.7 |
旋流沉砂池-厌氧池 | 0.5 | 1.7 | 1.2 |
厌氧池 | 0.2 | 1.2 | 1 |
厌氧池- Carrousel氧化沟 | 0.4 | 1 | 0.6 |
Carrousel氧化沟 | 0.4 | 0.6 | 0.2 |
Carrousel氧化沟-辐流二沉池 | 0.3 | 0.2 | -0.1 |
辐流二沉池 | 0.5 | -0.1 | -0.6 |
辐流二沉池-紫外消毒渠 | 0.2 | -0.6 | -0.8 |
紫外消毒渠 | 0.3 | -0.8 | -1.1 |
紫外消毒渠-计量槽 | 0.1 | -1.1 | -1.2 |
计量槽 | 0.2 | -1.2 | -1.4 |
第10章 污水厂项目总投资、年总成本及经营成本估算
10.1 项目总投资估算
10.1.1 第一部分费用
污水厂的日处理水量为:20000m³/d。
污水处理厂人员配备可根据污水厂规模参考表10-1确定:
表10-1 污水处理厂定员指标
规模/( | 定员指标/( |
3.0—5.0 | 17.5 |
6.0—8.0 | 14.5 |
10.0 | 12.5 |
15.0 | 10.5 |
20.0 | 9.0 |
40.0 | 8.0 |
80.0 | 5.5 |
处理厂人员定为:17.5×2=35人。
根据《主要构筑物投资(第一部分费用)及面积指标》计算第一部分费用,计算结果见下表10-2。
表10-2 单元投资费估值表
名称 | 投资/[元/(m3•d-1)] | 名称 | 投资/[元/(m3•d-1)] |
曝气池(鼓风曝气) | 137.52 | 污泥浓缩池 | 17.96 |
曝气池(表曝分建) | 200.08 | 消化池 | 48.08 |
曝气池(表曝合建) | 196.36 | 预热池 | 9.00 |
吸附再生池 | 63.15 | 储气柜 | 17.89 |
生物转盘 | 464.77 | 湿污泥池 | 5.64 |
塔滤 | 509.91 | 污泥干化 | 7.62 |
接触氧化池 | 214.68 | 污泥泵房 | 61.12 |
平流沉砂池 | 12.20 | 螺旋泵房 | 33.36 |
圆形沉砂池 | 4.00 | 脱水间 | 6.16 |
曝气沉砂池 | 8.88 | 消化池控制室 | 10.40 |
平流式初沉池 | 96.24 | 锅炉房 | 24.10 |
辐流式初沉池 | 57.36 | 综合楼及控制室 | 20.24 |
竖流式初沉池 | 46.40 | 鼓风机房 | 43.68 |
斜板初沉池 | 46.88 | 投药间 | 11.40 |
辐流式二沉池 | 105.92 | 机修间 | 16.64 |
斜管二沉池 | 116.00 | 药剂库 | 5.92 |
斜板二沉池 | 96.56 | 总平面:平原 浅丘 山地 | 7200—8000/(元/100m2) |
接触池(消毒) | 26.88 | 8550—9450/(元/100m2) | |
调节池 | 89.68 | 10000—11000/(元/100m2) |
计算结果见表10-3。
表10-3 第一部分费用计算
序号 | 名称 | 单元投资 | 单元投资单位 | 基数 | 基数单位 | 总投资(万元) |
1 | 中格栅 提升泵站 | 6000.00 | 元/(L•s-1) | 34 | L/s | 205.8 |
2 | 细格栅 旋流沉砂池 | 4.00 | 元/(m3•d-1) | 20000 | m3•d-1 | 8 |
3 | 厌氧池 氧化沟 | 200.08 | 元/(m3•d-1) | 20000 | m3•d-1 | 400.16 |
4 | 幅流二沉池 | 105.92 | 元/(m3•d-1) | 20000 | m3•d-1 | 211.84 |
5 | 污泥浓缩脱水间 | 17.96 | 元/(m3•d-1) | 20000 | m3•d-1 | 35.92 |
6 | 配电间 | 24.10 | 元/(m3•d-1) | 20000 | m3•d-1 | 48.2 |
7 | 综合楼和集中控制室 | 20.24 | 元/(m3•d-1) | 20000 | m3•d-1 | 40.48 |
8 | 车库 | 4.55 | 元/(m3•d-1) | 20000 | m3•d-1 | 9.1 |
9 | 宿舍 | 21.15 | 元/(m3•d-1) | 20000 | m3•d-1 | 42.3 |
10 | 机修间 | 16.64 | 元/(m3•d-1) | 20000 | m3•d-1 | 33.28 |
11 | 化验室 | 20.24 | 元/(m3•d-1) | 20000 | m3•d-1 | 40.48 |
12 | 仓库 | 17.89 | 元/(m3•d-1) | 20000 | m3•d-1 | 35.78 |
13 | 紫外线消毒渠 | 6.88 | 元/(m3•d-1) | 20000 | m3•d-1 | 13.76 |
14 | 锅炉房 | 24.10 | 元/(m3•d-1) | 20000 | m3•d-1 | 48.2 |
15 | 总平面:平原 | 8000.00 | 元/100m2 | 190.53 | 100㎡ | 152.424 |
23 | 合计(万元) | 1325.724 | ||||
10.1.2 第二部分费用第二部分费用包括建设单位管理费、征地拆迁费、工程监理费、供电费、设计费、招投标管理费等。根据有关资料统计,按第一部分费用的50%计。
10.1.3 第三部分费用第三部分费用包括工程预备费、价格因素预备费、建设期贷款利息、铺底流动资金。 工程预备费按第一部分费用的10%计,则 价格因素预备费按第一部分费用的5%计,则
贷款期利息、铺底流动资金按第一部分费用的20%计,则 综上,第三部分费用合计为: 10.1.4 工程项目总投资工程项目总投资合计为:第一部分费用 第二部分费用 第三部分费用 即:
|
10.2 污水厂处理成本估算
污水处理厂成本通常包括工资福利、电费、折旧费、检修维修费、行政管理费以及污泥综合利用收入等项费用。 10.2.1 动力费(电费)
式中 N—水泵、鼓风机等设备的电动功率之和(不包括备用设备的功率),KW E—电费单价,元/KW·h k—污水量总变化系数。 则 10.2.2 工资福利费
式中 A—职工每人每年工资及福利费,元/年 M—职工定员,人 则
10.2.3 折旧费
式中 S—工程总投资额; P1—折旧提成率,按现行规定,排水项目取4.5% 则
10.2.4 摊销费
式中 p2—摊销费提成率,一般可按0.2%—0.4%计,取0.4% 则
10.2.5 大修理基金提成率 式中 p3—大修理基金提成率,按现行规定,排水项目取1.7%
10.2.6 检修维护费
10.2.7 其他费用 指不包括在上列费用中的间接费用,如办公费、差旅费、邮电费等。常安以上费用之和的一定百分比计,通常取10%。 即:
则
10.2.8 工程项目年总成本综合以上各项费用,得该工程项目年总成本为:
10.2.9 项目年经营成本年经营成本等于年总成本减去折旧费、摊销费和利息支出,即
则
10.2.10 污水处理厂综合成本(1)年平均处理水量
则
(2)单位处理成本
则
|
以上是毕业论文大纲或资料介绍,该课题完整毕业论文、开题报告、任务书、程序设计、图纸设计等资料请添加微信获取,微信号:bysjorg。
相关图片展示:



(6.8.2)
(6.8.4)
;
;
;
;
;
;
;
;
。
。
;
;
,
;
;
。
)
)
(10-1)
(10-2)
(10-3)
(10-4)
(10-5)
(10-6)
(10-7)
(10-8)
(10-9)
(10-10)
(10-11)
(10-12)
(10-13)
(10-14)
(10-15)
(10-16)
(10-17)
(10-18)
(10-19)
(10-20)
(10-21)
(10-22)
(10-23)
(10-24)
(10-25)
(10-26)

