金寨协鑫1GW组件生产厂房土建施工组织设计毕业论文
2020-06-19 21:51:20
摘 要
本施工组织设计是针对金寨协鑫1GW组件生产厂房土建施工的纲领性文件,在开工前针对工程本身特点和工地具体情况,按照工程的要求,对所需的施工劳动力、施工材料、施工机具和施工临时设施,经过科学计算、精心对比及合理的安排后编制出的一套在时间和空间上进行合理施工的战略部署文件。主要内容包括编制依据,编制原则,工程概况,施工准备工作总计划,施工总进度计划、资源配置计划,主要工程施工方法、施工工艺以及各种保证措施等主要内容,编制出针对性的施工组织设计,每个分部分项工程的特点、结构特征、施工难易程度工期和质量要求,编制出切实可行的施工方案,以指导施工并顺利地完成本工程项目的建设,控制工程成本,创建优质工程。
关键词:施工组织设计 进度计划 工程特点 施工方案
Jinzhai GCL 1GW components production plant construction organization design
Abstract
The construction organization design is a programmatic document for Jinzhai GCL 1GW components production plant construction, In front of the project, the characteristics of the project itself and site specific circumstances, according to the request of engineering to the construction labor force needed,start the construction material, start the construction temporary facilities of machine tool and construction, after science calculation and with meticulous care contrast and reasonable of arrangement after draw up a set of strategic deployment document that carries on a reasonable construction on time and space of .The main contents includes to draw up basis, draw up a principle, engineering general situation, start construction to prepare to work to totally row, start construction total progress plan and resources allocation plan, the main engineering starts construction method, start construction main contentses, such as craft and various assurance measure...etc., draw up to aim at a sexual construction organization design, the characteristics of each cent parts of item engineerings, structure characteristic, start construction the difficult easy degree work expect to request and draw up a practical viable construction project with quality, with instruction construction combine successfully completion originally the construction of the engineering item, control engineering cost, establish high-quality engineering.
Keyword:The construction organization designs;progress plan;engineering features; construction project
目 录
摘 要 I
Abstract II
第一章 工程概括 1
1.1 工程主要情况 1
1.1.1 工程名称、性质、地理位置 1
1.1.2 工程的勘察、设计、监理和总承包单位 1
1.1.3 总包单位对工程施工的重点要求 1
1.1.4 工程特点 1
1.2各专业设计简介 2
1.2.1建筑设计简介 2
1.2.2结构设计简介 2
1.2.3机电安装专业设计简介 3
1.3施工项目结构分解 3
第二章 施工部署 5
2.1 工程施工目标 5
2.2 进度安排 5
2.3 施工的重点、难点分析以及措施 5
2.4 工程管理组织结构形式、职责分工和人员配备 6
2.4.1施工组织结构 6
2.4.2.职能部门职责分工 6
2.4.3工程技术人员配备 9
第三章 施工准备 11
3.1 技术资料准备 11
3.2 施工现场准备 11
3.3 施工队伍准备 12
3.4 物资准备 12
第四章 施工方案 13
4.1 施工顺序 13
4.2 工程测量 13
4.2.1平面轴线控制 13
4.2.2标高控制 14
4.3 强夯地基处理 14
4.4 钻孔灌注桩施工 14
4.5 土方施工 14
4.5.1土方开挖 14
4.5.2土方回填 15
4.6 土方开挖、回填施工技术措施 15
4.7 基础结构施工(钢结构、框架结构) 16
4.7.1模板工程 16
4.7.2钢筋工程 18
4.7.3混凝土工程 22
4.7.4地脚螺栓预埋 25
4.8 主体结构分部工程(框架结构) 27
4.8.1模板工程 27
4.8.2钢筋工程 34
4.8.3 混凝土工程 36
4.8.4 砌体工程(钢结构、框架结构) 38
4.9避雷接地安装 38
4.10 给排水安装 41
4.10.1安装预留预埋阶段 41
4.10.2给水及消火栓管道安装 41
4.11 排水管道安装 48
4.12 屋面工程(框架结构) 59
4.12.1保温层施工 60
4.12.2屋面(卫生间)防水层施工: 60
4.13 装饰工程(钢结构、框架结构) 64
4.13.1耐磨地面施工(钢结构、框架结构) 64
4.13.2防水地砖地面、瓷砖地面施工 67
4.13.3 墙、顶面抹灰工程(厂房、动力站、门卫内外粉刷施工方法) 69
4.13.4轻钢龙骨吊顶 71
4.13.5室内、外涂料(钢结构、框架结构) 72
4.13.6室内面砖墙面(钢结构、框架结构) 74
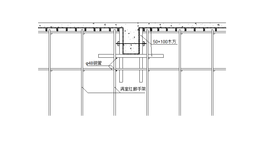
4.14 脚手架搭设(框架结构) 77
4.14.1施工部署 77
4.14.2构造要求及技术措施 77
4.14.3脚手架的搭设与拆除 79
4.14.4安全施工技术措施 80
第五章 项目施工进度计划 82
5.1 工程进度计划安排 82
5.2 控制性进度计划的编制 82
5.2.1控制性进度计划 82
5.2.2控制性进度横道图 83
5.3实施性进度计划的编制 84
5.3.1基础工程进度计划 84
5.3.2主体工程进度计划 86
5.3.3装饰、机电进度计划 87
5.3.4实施性进度计划横道图 88
5.3.5网络图 88
第六章 技术组织措施 89
6.1 保证质量的技术组织措施 89
6.1.1针对本工程质量管理体系及质量管理网络 89
6.1.2质量目标、控制计划和措施 90
6.2 保证进度的技术组织措施 106
6.2.1从组织体系上保证工期的完成 106
6.2.2从进度编制执行上保证工期完成 107
6.2.3 制定合理的施工方案保证工期完成 107
6.2.4 采用有效的技术措施保证工期完成 107
6.2.5 工期保证体系及措施 108
6.3 保证施工安全的措施 110
6.3.1安全技术措施制度 112
6.3.2安全生产检查 113
6.3.3工伤事故处理 113
6.3.4 现场图表 113
6.3.5脚手架搭设安全措施 113
6.3.6施工用电安全措施 114
6.3.7吊车安装安全措施 116
6.3.8中小型机具安全措施 117
6.3.9消防措施 117
6.3.10安全保护用品 118
6.3.11设备标志和使用 118
6.3.12现场保安管理 118
6.3.13其他安全措施 119
6.4 环境保护措施 119
6.4.1环境保护、水土保护目标 119
6.4.2 施工环保、水土保护管理组织机构 119
6.4.3 施工环保、水土保护管理保证体系 120
6.4.4环境保护措施 120
6.5 季节性施工措施 123
6.5.1雨季施工质量保证措施 123
6.5.2暑季施工措施 123
6.5.3夜间施工措施 124
6.5.4地下管线及其他地上、地下设施的保护措施 124
第七章 资源计划 125
7.1 劳动力安排计划 125
7.2 主要施工机械配备及材料进场计划 130
7.2.1工程投入的机械选型配备及进场计划 130
7.2.2过程主要物材料情况描述及进场计划 134
第八章 项目施工临时设施和现场平面图 137
8.1 生产性设施的计划 137
8.1.1大门及围墙设施 137
8.1.2施工道路设施 137
8.1.3 临时供水、排水、消防设施 137
8.1.4施工临时用电设施 138
8.1.5现场绿化及临时通讯设施 140
8.2 生活性设施的规划 140
8.3 施工现场总平面布置 140
结语 142
参考文献 142
致谢 144
附录一(劳动力手算稿)
附录二(控制性进度计划横道图)
附录三(实施性进度计划横道图)
附录四(控制性网络计划图)
附录五(实施性网络计划图)
附录六(建筑平面布置图)
第一章 工程概括
1.1 工程主要情况
1.1.1 工程名称、性质、地理位置
本工程位于安徽金寨六安经济开发区。本工程由协鑫集成科技(金寨)有限公司新建项目,包括101、102组件车间各一栋、104动力站一栋、103成品仓库、105原料仓库、107、108门卫各一栋。其中104动力站为钢筋混凝土框架结构,其余均为钢结构。本项目施工具体内容为:土建工程【承包人包工包料建设(发包人指定除外)范围包括建筑(不含钢结构外墙上的门窗)、结构专业施工图纸(不含钢结构),生活给排水、建筑电气照明、插座及应急照明,建筑防雷接地、围墙、道路、项目部临建房等工程(不含消防工程、智能化布线工程、绿化工程及设备厂家交钥匙工程)】
1.1.2 工程的勘察、设计、监理和总承包单位
相关图片展示:









