公共厕所隔断设计毕业论文
2020-04-26 12:49:11
摘 要
公共厕所往往需求和使用人口众多,高频率的使用使得如何让公共厕所提供舒适安全的人性化用户体验以及提升使用效率成为急需解决的问题。也正是如此,在这种情况下,需要我们不断创新与设计,使公共厕所不再是一种使用体验感差的不可言语的藏污纳垢之处。
该设计是为了用户在使用公共厕所时创造更舒适安全的使用感。希望通过公共厕所隔断的改良设计探索能够很好的解决上述中的问题,在满足人们使用公共厕所的功能之余,让设计的使用者在使用过程中更加的舒适、贴心。
通过对公共厕所隔断改良设计的市场、技术、用户调研明确产品设计定位,再通过造型规律、人机分析绘制出多种方案,进一步的深化完善之后选择最优方案。最后通过材料与工艺、人机尺寸等进一步完善造型设计并进行计算机模型制作,绘制效果图。期间进行了产品结构设计,绘制了产品的外观三视图和总装图。对最终方案进行成本核算,最终确定方案。
以现有公共厕所隔断作为改良设计的参照对象。改良设计要满足现有隔断的基本功能,并且具有使用便捷性、安全性、造型简洁大方、线条自然柔和。产品本身还存在一些问题,有待改善。
关键字:公共厕所;隔断;创新设计;安全;交互性
Partition design of public toilets
Abstract
There always have a large number of people need to use public toilets, high frequency of use makes how to make public toilets provide a comfortable and safe user experience and improve the efficiency of use become an urgent problem to be solved.In this case, we need to innovate and design constantly, so that public toilets are no longer a kind of inexplicable dirt hiding place with poor experience.
The design aims to create a more comfortable and safe use when customers using public toilets. It is hoped that the above problems can be well solved through the improvement of the partition design of public toilets. Besides satisfying people's use of public toilets, the users of the design will be more comfortable and intimate in the use process.
Through the market, technology and user research of the public toilet partition improvement design to define the product design positioning, and then through modeling rules, man-machine analysis to draw out a variety of plans, further deepening and improving after the selection of the best plan. Finally, through materials and technology, man-machine size and other further improve the modeling design and computer model making, rendering effect. During this period, I designed the product structure, drew the three views of product appearance and the general assembly drawing. Carry out cost accounting for the final plan and determine the final plan.
The public toilet partition already on the market are used as references for further improvement of design.The improved design summary has the basic functions of the existing public toilet partition, and it has a convenient, a safety,a simple and elegant design, and natural and soft lines.Of course, there still has some problems of the product itself that need to be improved.
Key words: public toilets; partition; innovation design; security; interactivity
目 录
摘 要 …………………………………………………………………………………I
ABSTRACT ……………………………………………………………………………II第一章 设计调研 1
1.1 市场调研 1
1.1.1 公共厕所隔断的定义 1
1.1.2 公共厕所的分类及对隔断需求 1
1.1.3 品牌产品分析 3
1.1.4 公共厕所隔断行业与市场基本情况 7
1.1.5 公共厕所隔断市场现状 9
1.2 技术调研 12
1.2.1 公共厕所隔断功能及实现原理 12
1.2.2 公共厕所隔断的材料与工艺分析 12
1.3 用户调研 15
1.3.1 用户定位 16
1.3.2 用户行为 17
1.3.3 用户需求分析 17
1.4 产品造型规律调研 19
1.4.1 产品外观形态分析 19
1.4.2 色彩分析 21
1.5 人机调研 22
1.5.1 与公共厕所隔断相关人体尺寸分析 22
1.5.2 公共厕所隔断尺寸分析 24
1.6 行业规范调研 26
1.7 设计定位 26
第二章 方案设计 27
2.1 一期方案(部分草图) 27
2.2 二期方案(部分草图) 29
2.3 三期方案 31
2.4 最终方案 32
第三章 结构设计 33
3.1 公共厕所隔断外观三视图 33
3.1.1 公共厕所隔断外观三视图 33
3.2 公共厕所隔断零部件三视图 34
3.2.1 公共厕所隔断固定板三视图 34
3.2.2 公共厕所隔断电机轨道挡板三视图 35
3.2.3 公共厕所隔断指示灯三视图 36
3.2.4 公共厕所隔断感应开关三视图 37
3.2.5 公共厕所隔断电机三视图 38
3.2.6 公共厕所隔断导轨滑轮三视图 39
3.3 公共厕所隔断总装图 40
3.4 公共厕所隔断爆炸图 41
第四章 材料与加工工艺分析 42
4.1 成型材料与工艺分析 42
4.2 表面装饰材料与工艺分析 42
第五章 人机分析 43
5.1 公共厕所隔断人机交互设计分析 43
第六章 色彩与标识设计 44
6.1 标识设计 44
6.2 色彩设计方案 44
第七章 产品成本分析 48
7.1 产品成本构成 48
7.2 产品价格导出 48
第八章 产品最终效果图 49
8.1 计算机效果图表现 49
8.2 模型效果图表现 50
参考文献 54
致 谢 Ⅲ
第一章 设计调研
本章主要内容:对公共厕所隔断的市场前景、用户需求、造型趋势、技术、人机等进行调研分析,确定产品定位。
- 市场调研
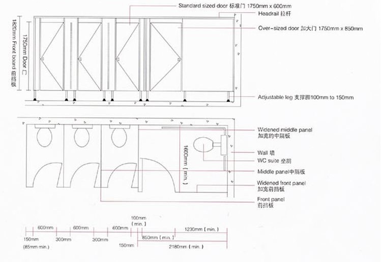
1.1.1 公共厕所隔断的定义
公共厕所隔断是公共厕所不可分割的一个组成部分。隔断能够帮助使用厕所的人建立一个独立的空间,帮助使用者革除心理性障碍。为了更好的满足现代人群对于人性化使用的需求,使其达到便捷、安全、人性化、使用操作简单舒适等特点。这样一个集用户多方面需求的公共厕所隔断是改良设计应达到的要求。
相关图片展示:









