轴线倾斜对弹支可倾瓦推力轴承性能影响分析毕业论文
2020-03-18 16:51:43
摘 要
可倾瓦轴承因其优越的性能而被称为独一无二的伟大发明,目前与可倾瓦轴承相关的研究也有一定的成果。在可倾瓦轴承的基础上,将支撑垫换为弹性橡胶垫支撑的弹支可倾瓦轴承的性能还有待进一步研究。而轴线发生倾斜是推力轴承在使用过程中的一种常见问题,因此,轴线在倾斜状态下的弹支可倾瓦性能,具有一定的研究意义。
本文将可倾瓦推力轴承的模型简化为一维模型,利用ADINA有限元分析软件,建立了一维可倾瓦轴承模型,利用ADINA的流固耦合器计算模拟了刚性支撑和弹性支撑的可倾瓦推力轴承以及不同倾斜角度下的弹支可倾瓦轴承的工况。并分析了刚支可倾瓦轴承和弹支可倾瓦轴承的性能以及轴线向不同方向倾斜时对可倾瓦推力轴承的性能影响。
关键词:可倾瓦轴承;流固耦合;ADINA;轴线倾斜
Abstract
Tilting pad bearings are known as unique and great inventions because of their superior performance. The current research related to tilting pad bearings also has certain results. On the basis of tilting pad bearings, the performance of replacing the pad with an elastic pad to support the tilting pad bearings has yet to be further studied. The inclination of the axis is a common problem where the thrust bearings are working. The research on the tilting behavior of the elastic branch under the inclination of the axis has certain research significance.
In this paper, the model of tilting pad thrust bearing is simplified to a one-dimensional model. With ADINA finite element analysis software, a one-dimensional tilting pad bearing model is established. The use of ADINA fluid-solid inference calculation simulates the tilting of the rigid support and the elastic support of thrust bearings and the tilting angle of the elastically supported bearing tilting pad bearing operating conditions. The performance of tilting pad bearings and tilting pad bearings of tilting pad and the impact of tilting the axis to different directions on the performance of tilting pad thrust bearings are analyzed.
Key Words:Titling pad bearing;Fluid structure inference;ADINA;Misalignment.
目 录
摘 要 I
Abstract II
第1章 绪论 1
1.1 研究的背景及意义 1
1.2国内外研究现状 2
1.2.1轴承润滑理论发展进程 2
1.2.2可倾瓦轴承国内外的研究现状 3
1.2.3轴线倾斜对可倾瓦轴承影响的研究现状 6
1.3本题研究的主要内容 7
1.4 本章小结 7
第2章 ADINA基本原理 6
2.1 ADINA流固耦合计算分析原理 6
2.2流体运动的求解方法 7
2.3基于ADINA-FSI的流固耦合理论 8
2.3.1耦合系统方程 8
2.3.2流体控制域方程 9
2.3.3结构域控制方程 10
2.3.4流-固耦合(FSI)控制方程 10
2.4ADINA-FSI耦合计算器正确性验证 12
2.5 本章小结 13
第3章 基于ADINA的可倾瓦轴承性能仿真 14
3.1 弹支可倾瓦模型的建立 14
3.1.1弹支瓦和刚支瓦结构模型的建立 15
3.1.2固体模型网格划分 16
3.1.3计算参数及边界条件的设置 19
3.1.4流场模型的建立 21
3.1.5流场网格的划分 22
3.1.6计算参数及边界条件的设置 24
3.2数值计算结果与分析 24
3.2.1后处理 24
3.2.2流固耦合界面水膜压力分布结果 26
3.3 本章小结 27
第4章 轴线倾斜角度对弹支可倾瓦性能的影响研究 28
4.1 轴线倾斜不同角度弹支可倾瓦模型 28
4.2数值计算结果与分析 29
4.2.1出口侧向上倾斜对比 29
4.2.2入口侧向上倾斜对比 32
4.3本章小结 36
第5章 结论与展望 37
5.1 本文总结 37
5.2展望 37
参考文献 39
致 谢 41
第1章 绪论
1.1 研究的背景及意义
近些年来,有一种先进的新型电力推进器——无轴轮缘推进器,它采用的设计思想为螺旋桨—电机两者一体化,这使它同时具有解放机舱空间、高效节能和减振降噪等显著的优点。在二十一世纪初,美国Schilling Robotics公司设计了一种无轴推进器,这种推进器采用了一个新颖的设计思路,它允许海水进入电机的内部,而取代了进行高成本的水密封措施,这种设计思路不仅使得其内部温度能够显著的降低,同时它的功率密度还能够得以增加。

图1.1美国Schilling Robitics公司开发的五叶无轴推进器
该推进器采用完全水润滑轴承系统,包括水润滑径向轴承和水润滑推力轴承,其中水润滑推力轴承是用来承担螺旋桨产生的推力负荷,是无轴推进器的关键部件。
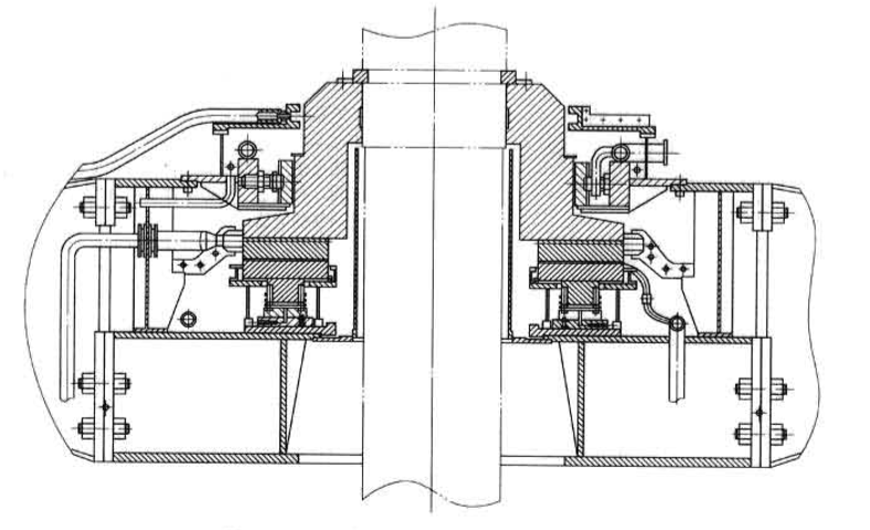
由于推进器工况变化频繁,固定瓦轴承不能适用,传统的刚性支撑可倾瓦结构也存在问题,比如支撑点磨损、海水腐蚀和海生物附着等问题。因此,该项目提出了弹支可倾瓦结构形式,这种弹性橡胶垫支撑的推力轴承结构是将橡胶垫直接安装在推力瓦的下方,其优点是不仅能使瓦易于倾斜,便于产生流体动压,而且可吸收推力轴承运行中产生的轴向跳动,调整其不均衡荷载。这种支撑方式可应用于油润滑、水润滑和气体润滑的推力轴承上。但各种工况下这种新型轴承的承载机理还有待进一步研究,特别是当轴线倾斜时,瓦块空间位置的变化情况及其对轴承性能的影响规律还需揭示。

图1.2推力轴承示意图

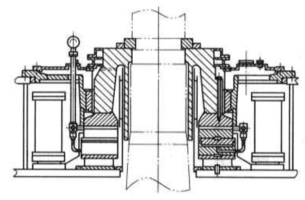
图1.3可倾瓦轴承
1.2国内外研究现状
1.2.1轴承润滑理论发展进程
在十九世纪八十年代早期,英国工程师Tower分析了火车上的轮轴轴承润滑,发现轴承中存在流体动压现象。随后在1886年,雷诺(O. Reynolds)从数学和流体力学的角度对Tower发现的现象作出了分析,并在此基础上推导出了流体力学中一个重要的公式——雷诺方程,为流体润滑理论的建立奠定了基础。
流体润滑的计算方法主要分为解析法和数值法这两种,其中解析法是将二维雷诺方程简化到一维的求解域,通过长轴承理论和端轴承理论等方法求解。而数值法是将二维的雷诺方程求解域分为有限个单元向真实解无限逼近,通常采用有限差分法和有限元法。
雷诺方程的本质是对动压油膜特性的偏微分描述,而动压油膜建立的过程不是连续的,有可能会有油膜破裂的现象发生,因此需要施加边界条件研究流体润滑理论。Swift[1]在1981年、Cameron和Wood[2]在1949年提出了雷诺边界条件,他们指出油膜在雷诺边界条件下发生破裂而终止油膜压力是一种自然现象。1981年,Elrod[3]提出了一种新的算法,在这种算法下,可以将油膜完整区和油膜破裂区统一成同一方程。2008年,Bernhard Schweizer[4][5]提出了拉格朗日欧拉描述,在本文中,ADINA有限元分析软件中的流固耦合模块即使用这种方法对可倾瓦结构和水膜部分进行运算。
湍流润滑:随着轴承的制作工艺越来越精密,轴的转速趋向高转速,油膜区渐渐出现混流甚至湍流。在忽略温度影响的因素下,轴承计算结果会偏离实际值。在二十世纪70年代,Hirs[6]提出了Bulk-Flow Theory,他们对流体润滑的油膜进行建模,并发现了在壁面上,剪切应力和相对壁面的平均流速的对应关系。
由于润滑油存在一定的黏度,因此在实际轴承的运动状态下,轴承的摩擦功耗将会大量的转变为热量,从而导致润滑油温度升高,润滑油的黏度下降,从而使油膜形成不均匀。因此还要考虑温度变化对润滑性能的影响。二十世纪七十年代,Dowson[7]提出了Thermohydrodynamics,即热流体动力润滑理论,随后热流体动力润滑理论一直沿用至今。
1.2.2可倾瓦轴承国内外的研究现状
米歇尔(A.G.M. Michell)在二十世纪初期提出了推力轴承的理论分析,从而奠定了可倾瓦轴承理论分析的基础。在此基础上,可倾瓦轴承由米歇尔和金斯柏莱(A. Kingsbury)几乎同时设计和应用成功,在当时该轴承被Barwell[8]称为“润滑科学独一无二的伟大发明”,可倾瓦轴承也叫作米歇尔轴承或金斯柏莱轴承。
在舰船运载动力机组大型轴系上,滑动轴承由于润滑性能良好、承受冲击载荷以及减摩耐磨等特性而被采用。在无轴推进器推力系统中,推力轴承承担着推进部分的全部轴向负荷,由于船舰推进工况复杂多变,而固定瓦轴承的推力轴承的倾斜度是制作时所确定的,不能随工况变化,因此不适用于无轴推进系统,而可倾瓦滑动轴承在高速运转下的稳定与载荷能自适应变化而适用。
如今流体润滑理论及可倾瓦轴承计算技术已较为成熟,例如:高庆水等[9]联立了轴承润滑以及瓦块动力学两个方程,并对该方程组进行了求解,同时模拟仿真了在不同载荷状态时,得到可倾瓦轴承低频振动时和失稳时两种状态的相关数据,在得到数据后,对超超临界汽轮发电机组轴承进行了实验并与模拟计算结果相对比;Abu-Mahfouz[10]等人在考虑瓦块质量和惯性因素影响下,建立了可倾瓦轴承的非线性动力学下的计算模型,建立在该可倾瓦轴承模型的基础上,他们对三瓦可倾瓦轴承支撑时该转子系统的分叉、混沌行为进行了一系列的分析;王丽萍[11]等人采用定轴计算法,建立了局部运动坐标系下的轴承力模型,并采用坐标变换的方法分别得到在全局坐标系中,轴承的动力学模型和解析计算方法;Childs[12]等对间隙比1.55%、支点偏移系数0.6、瓦块包角57.87°、预负荷系数0.828的可倾瓦轴承的阻尼、刚度等等相关的一系列动力学参数进行了计算和验证;纪峰[13]等在考虑热弹耦合效应的条件下,对可倾瓦轴承进行建模,建立了燃气轮机中所采用的四瓦可倾瓦轴承的计算模型,同时对模型的准确性进行了系统的比较、分析。
目前弹支推力轴承有弹性垫支撑、弹性托盘支撑、弹性支柱支撑、弹性平衡梁支撑、弹性油箱支撑、弹簧群(束)支撑、活塞支撑等形式。
(1)弹性垫支撑的推力轴承,通过采用倾斜的弹性垫,利用弹性垫的弹性变形形成压力峰,达到提供止推的目的,如图1.4所示。

图1.4弹性垫支撑推力轴承
(2)弹性托盘支撑的推力轴承,是根据刚性支柱球面点支撑的形式改进得到的,弹性托盘支撑着推力瓦块,如图1.5所示。

图1.5弹性托盘支撑推力轴承
(3)弹性油箱支撑的推力轴承,是将推力瓦放在具有一定油压的弹性邮箱上,各个油箱有油管相通,工作时,不均匀负荷能通过油管之间油压的调节使得负载均匀,如图1.6所示。

图1.6弹性托盘支撑推力轴承
(4)小弹簧群(束)支撑的推力轴承,推力瓦放在一束弹簧群上,弹簧能够根据负荷作出相应的弹性变形,形成油膜动压,并吸收推力轴承所受的不均匀负荷,如图1.7所示。

图1.7弹簧群支撑推力轴承
(5)活塞支撑的推力轴承,将每个轴瓦分别放在不同的与油缸相通的活塞上,各个活塞根据不均匀的轴向负荷位移,传递到油缸内,引起缸内油压变化,使得负载均匀,如图1.8所示。

图1.8活塞支撑推力轴承
在这些一系列的理论研究的基础上,可倾瓦轴承的相关技术正一步一步地完善,但在实际情况中,可倾瓦轴承结构较为复杂,故在设计时,不仅要考虑结构参数的影响,还要考虑运行参数等方面因素的影响。目前,弹性可倾瓦结构轴承在理论和试验也有部分相关人员正在进行研究,但当轴线倾斜时,弹支可倾瓦的瓦块空间情况和相关性能的规律还缺乏相关的研究,相关研究还不够成熟,因此还需进一步的研究和探讨。
1.2.3轴线倾斜对可倾瓦轴承影响的研究现状
在实际的推进系统运行过程中,由于螺旋桨的重力影响以及复杂多变的工况下,长时间的工作易使轴系的中心线发生偏移,因此,轴线偏斜在推进系统中十分常见,而轴线倾斜同时也是造成轴承失效的一个重要原因,而与轴线倾斜相关的文献相对匮乏,故轴线倾斜的研究亟待解决,改进推力轴承的结构,从而使其受到轴线发生倾斜时的影响产生一定的变化,最终达到延长推力轴承的寿命和可靠性的目的。
在国外,对固定瓦推力轴承偏斜影响的相关研究已经展开。在忽略轴承变形所带来的影响时,H Heshmat和 O Pinkus[14]计算了当轴线发生倾斜时对固定瓦推力轴承润滑性能的影响,在对相关计算结果进行分析之后发现,在轴线发生倾斜后,油膜最大压力、最高温度是轴线未发生倾斜时的三倍。而在考虑瓦块的弹性变形的情况下,P B Kosasih和A K Tieu[15]给定了油膜厚度和转速时轴线倾斜,计算了这种情况下对推力滑动轴承的润滑性能的影响,而他们的计算结果发现,轴线倾斜后,油膜的厚度要比未发生倾斜时小,而油膜承载能力比未发生轴线倾斜时要高,但是若倾斜程度过大时,此时油膜的承载过大,会导致油膜破裂而发生干摩擦。在既考虑偏斜又考虑载荷双重因素的影响下, I Iordanoff[16]等利用小扰动法,计算并推导出了推力滑动轴承的阻尼系数和刚度系数,并对推力滑动轴承的动力学性能进行分析,发现轴线偏斜将对轴承稳定性造成严重的影响。 S Berger[17]等对径向和轴向两种滑动轴承的动力学性能进行了分析和计算,其以非线性模型对滑动轴承的动力学行为进行了描述,发现了轴线偏斜会导致轴系将有一个临界速度。L S Andres[18]利用扰动法对轴线偏斜下的动静压推力轴承的刚度系数和阻尼系数进行了计算,分析了轴线偏斜对刚度系数和阻尼系数的影响。在考虑轴向偏斜和扭转偏斜的影响下,Y S Wang[19]等计算分析了轴线偏斜和弹性变形对径向滑动轴承和推力滑动轴承系统润滑性能的影响,计算结果发现,当轴线偏斜时轴承的径向和轴向承载能力要高于轴线未发生倾斜时的承载能力。然而,国内外与可倾瓦轴承轴线倾斜的文献相对较少,而对于弹性支撑的可倾瓦推力轴承中偏斜的影响仍有待研究。
1.3本题研究的主要内容
本文主要内容如下:
(1)水润滑弹支可倾瓦轴承结构及刚性支撑可倾瓦结构对比分析;
(2)轴线倾斜下轴承润滑模型建立;
(3)不同倾斜参数下对轴承性能影响的影响规律。
为了能保证质量地完成研究内容,拟采取计划如下:
查找相关文献、书籍,了解可倾瓦轴承的结构特点、工作特性,熟悉轴承润滑的分析方法
学习相关;的软件ADINA,为论文中的数据提供计算分析和帮助;
利用ADINA建立弹支可倾瓦轴承和刚性支撑轴承模型,计算刚性支撑和弹支可倾瓦的静态承载特性和动态承载特性参数整理,绘图,进行对比分析,比较刚性支撑和弹支可倾瓦的性能优劣;
利用ADINA建立弹支可倾瓦瓦块模型,并计算分析不同倾斜参数下瓦块的静态承载特性和动态承载特性;
通过改变可倾瓦瓦块的相关参数,使弹支可倾瓦轴承的承载特性达到最佳,得到最佳的倾斜角等相关参数。
1.4 本章小结
本章主要对弹支可倾瓦轴承的研究的目的和意义进行了部分相关的介绍,为本文进行相关的研究提供了一定指导意义。同时阐述了国内外弹支可倾瓦轴承以及轴线倾斜对弹支可倾瓦轴承影响的国内外研究现状。紧接着简要阐明了本文的主要研究内容,为后续相关工作的开展提供了一定的指导意义。
第2章 ADINA基本原理
利用ADINA建立弹支可倾瓦轴承和刚性支撑轴承模型,计算刚性支撑和弹支可倾瓦的静态承载特性和动态承载特性参数整理,绘图,进行对比分析,比较刚性支撑和弹支可倾瓦的性能优劣。计算过程如下图所示:

图2.1 ADINA-FSI求解流程
2.1 ADINA流固耦合计算分析原理
ADINA全名为Automatic Dynamic Incremental Nonlinear Analysis,是美国ADINA公司的产品,其以有限元理论为基础,与ANSYS不同的是,其通过对力学的线性方程组及非线性方程组求解,获得固体结构模型、流体模型以及力学温度场等问题的数值解,是一项基于有限元技术的大型通用仿真平台。
以上是毕业论文大纲或资料介绍,该课题完整毕业论文、开题报告、任务书、程序设计、图纸设计等资料请添加微信获取,微信号:bysjorg。
相关图片展示:









