大幕1号隧道设计毕业论文
2020-02-18 00:11:12
摘 要
开挖隧道能很好的解决地形和高程障碍连接铁路线路,既能让线路通畅、安全行驶、节约费用,而且还能增加隐蔽性、提高防护能力和不受气候的影响。
本设计的主要内容是根据铁道第四勘察设计院所给提供的隧道工点工程地质条件,对大幕一号隧道的进出口洞门进行设计和强度检验,通过理正软件对隧道衬砌内力计算,隧道的施工组织进行初步的设计,隧道附属设备进行分析和设计。
本文设计结果:隧道进出口洞门均采用翼墙式设计,隧道衬砌采用复合式衬砌。
关键词:隧道;洞门;衬砌;施工方法
Abstract
Excavation tunnels can well solve the terrain and elevation barriers connecting railway lines, which can make the lines smooth, safe and cost-effective, and can also increase concealment, improve protection and freedom from the weather.
The main content of this design is based on the engineering geological conditions of the tunnel construction site provided by the Fourth Railway Survey and Design Institute, and the design and strength test of the entrance and exit portal of the No. 1 tunnel of Daguan, and the calculation of the internal force of the tunnel lining by the rational software. The construction organization of the tunnel was initially designed, and the auxiliary equipment of the tunnel was analyzed and designed.
The design result of this paper: the tunnel entrance and exit tunnel doors are designed with wing wall and the tunnel lining adopts composite lining.
Key Word: tunnel ;Hole gate; Lining; Construction method
目录
第1章 绪论 1
1.1. 课题背景 1
1.2. 国内外现状 1
1.3. 隧道设计标准和原则 1
1.3.1. 隧道设计技术标准 1
1.3.2. 隧道设计原则 1
1.4. 工程概况及地质条件 2
1. 地貌特征 2
2. 地层岩性 2
3. 水文地质条件及不良地质 2
4. 工程地质条件 2
第2章 隧道结构断面型式方案的优化比选 4
2.1. 隧道平面设计 4
2.1.1. 线路曲直比较 4
2.1.2. 铁路隧道单双线的选定 4
2.1.3. 本隧道的设计 4
2.2. 纵断面设计 5
2.2.1. 隧道内纵坡形式确定 5
2.2.2. 隧道内纵坡坡率确定 5
2.3. 横断面设计 6
2.3.1. 建筑限界 6
2.4. 大幕一号隧道的净空确定和衬切内轮廓 7
第3章 隧道洞口位置的选定和洞门结构设计 9
3.1. 隧道洞口位置的选择 9
3.2. 隧道洞门的设计 10
3.2.1. 隧道洞门的设计原则 10
3.2.2. 隧道洞门形式的选择 11
3.2.3. 洞门的计算 11
第4章 隧道衬砌结构内力的分析与结构设计 16
4.1. 衬砌形式确定 16
4.2. 复合式衬砌设计 16
4.4. Ⅳ级围岩二次衬切拟定 16
4.4.1. 支护参数 16
4.4.2. 二次衬砌内力计算 17
第5章 隧道施工方案的设计 22
5.1. 概述 22
5.2. 施工方法的确定 22
第6章 施工组织设计 24
6.1. 概述 24
6.2. 隧道初期支护 24
6.3. 隧道二次衬切施工 26
6.4. 施工进度计划 29
第7章 隧道附属设施的设计 30
7.1. 防排水设计 30
7.1.1. 防排水设计原则 30
7.1.2. 防水 30
7.1.3. 排水 30
7.1.4. 洞口防排水 30
7.2. 运营通风和照明 31
7.2.1. 运营通风 31
7.2.2. 照明 31
7.3. 避车洞 31
7.4. 电力及通信设施 32
7.5. 其他设施 32
7.5.1. 消防设施 32
第8章 结论 33
参考文献 34
致谢 35
绪论
课题背景
在如今经济发展的高速时代,交通运输的需求也越来越大,其中铁路运输是最重要的、不可缺少的。铁路运输不仅方便快捷、运输量大,还安全和廉价,它在国防建设中,也有非常重要的军事战略地位。在修建铁路时,往往很难避开一些山岭带去,但这些地区我门可以利用隧道工程去解决地形和高程障碍连接铁路线路,既能让线路通畅、安全行驶、节约费用,而且还能增加隐蔽性、提高防护能力和不受气候的影响。
在专业理论知识基础上,通过自主设计隧道进一步了解隧道的结构、力学分析和隧道的施工方法,能够熟练的运用本科资料,联系知识的查阅能力,计算机的应用能力。运用现在的设计方法和工程施工技术从事隧道工程项目的设计和施工。
国内外现状
在国内外的隧道施工方法的是使用中,大多数都是新奥法施工。新奥法是奥地利学者拉布西维兹教授在20世纪50年代的时候提出的,它以实际隧道工程经验和岩体力学的理论为基础,将锚杆、混凝土和钢筋网组合在一起成为隧道支护方法的一种施工方法,经过一些工程实践和理论研究,在20世纪60年代的时候取得专利权并正式命名。这个方法在欧洲国家、美国和日本等多个国家被应用于地下工程并极速发展。同样在20世纪60年代,这个施工方法传入我国,在七八十年代得到迅速发展,现在我国好多的地下空间难题都离不开新奥法,在软弱易破碎的围岩地段修建隧道更离不开新奥法。
隧道设计标准和原则
隧道设计技术标准
本次新建铁路的等级为Ⅰ级,线路为单线,在宜昌到利川的铁路线段预留复线的条件,隧道列车的最高时速为160km/h,列车的牵引的牵引种类为电力牵引,列车类型暂时设为客机SS9,货车SS4,闭塞类型为继电半自动。
隧道设计原则
隧道的设计受隧道所处位置的地形、地质地貌特征和周围环境影响,经过综合考虑技术标准,施工的难易程度,然后设计相应的方案,再经过经济比较确定最后的方案。
隧道的设计还按着以节能环保,以人为本,经济耐用等为原则进行设计。
隧道的设计还应该响应国家的相关政策,遵守有关环保节能的法规,运用现在新技术和设备,力求做到经济最优化和环境友好化。
工程概况及地质条件
大幕一号隧道位于宜万铁路线白杨坪至利川段,设计时速160km/h,单线,重型。进口桩位DK238 135,出口桩位DK238 333,隧道全长198m,且进口与下村坝隧道出口距离较近。
地貌特征
隧道穿越中山区单面斜坡,坡面的自然坡度20º~40º,植被茂密,为灌木林、树林,少量旱地。旁侧有3米宽的机耕道,交通较便利。
地层岩性
地区出露地层从新到老的变化,表面是Qel dl黏土夹碎石厚0~2m,黄褐色,硬塑性,然后是寒武系(∈3hz)耗子沱群灰岩、白云质灰岩互层,灰白色~灰色,一些部分地区夹泥质条带和方解石脉,弱风化中厚层状:110º∠ 33º~200º∠ 13º。岩体节理呈裂隙发育,主要存在两种:1.节理面产状:225º ∠85º,0.3~0.6m/条,缝内没有充填裂隙宽3~5mm, 2.节理面产状:305º ∠ 85º,0.3~1.2m/条,缝内没有充填裂隙宽2~5mm,。灰岩局部被溶蚀为5~20cm的沟槽,黏土充填。岩层呈单斜构造,局部有揉皱现象。
水文地质条件及不良地质
该地区为可溶性地层,地层的裂隙发育良好,地下水是受大气降雨补给并存在于岩石裂隙中,这些地下水对混凝土强度没有侵蚀作用。地表溶沟、溶槽发育。
工程地质条件
一、工程地质评价:预测隧道正常涌水量Q= 98 m3/d、最大涌水量Q= 612 m3/d。
二、隧道围岩基本分级:隧道洞身围岩岩石属硬岩,结构面发育3组――岩体较完整。围岩基本分级为:DK238 137~ 160为IV级、DK238 160~ 255为III级、DK238 255~ 326为IV级。
三、隧道进出口边仰坡:进口边仰坡坡率1:0.75、右边坡控制高度10m、仰坡及左边坡控制高度12m,坡面浆片护坡防护;出口边仰坡坡率1:0.75、边坡控制高度12 m,仰坡控制高度10 m,坡面浆片护坡防护。
进口右边坡、出口仰坡顺层,注意加强防护;
出口浅埋段拱部存在坍落、掉块的危险,注意加强防护;隧道雨季施工时可能突水、突泥,需要加强该地区的支护,做好防排水措施。
四、地表水对砼无侵蚀性、地下水对砼无侵蚀性。
五、地震动峰值加速度为0.05g,反应谱特征周期为0.35s。
六、在路基基本成型后,需对路堑及隧道路基进行岩溶的补充勘探。
隧道结构断面型式方案的优化比选
隧道平面设计
线路曲直比较
公路隧道或者铁路隧道都是线路越直越好,除非在一些特殊的情况,例如隧道的洞口正朝东西方向,这时候为了避免阳光直射在驾驶员视野,需要把隧道某一段设计成曲线,在设计隧道应该尽量保证线路设计成直线或者采用大半径的曲线,主要还有下面的原因:
① 直线隧道比曲线隧道更容易通风,曲线隧道的摩擦风阻较大,从而导致通风阻力大,不利于自然通风,就需要花额外的费用来采用机械通风。
② 曲线上的隧道,需要增大隧道建筑限界,尺寸的变大也会带来施工的难度增加。
③ 列车在曲线隧道上行驶,产生了离心力,再加上隧道内空气湿润,让钢轨磨损加快,隧道内的养护工作量增大。
综上可以知道,从节省工程投资,减少施工难度和良好通风条件等方面来看,直线隧道都要比曲线隧道更合适。
铁路隧道单双线的选定
特长隧道以及地质条件不良的隧道,隧道的跨度对隧道的修建影响显著选择修建两座单线隧道要比双线隧道更安全。
在围岩条件差,考虑到修建过程的安全和难度。适宜选择跨度小的双洞单线隧道。
双洞单线方案的活塞风效果比单洞双线隧道方案好。
从隧道长度方面来看:
1. 隧道长度小于10千米时采用单洞双线方案。
2. 隧道长度在10-20千米,从经济技术比较和养护维修考虑,采用双线隧道加贯通平导方案。
3. 当隧道长度大于20千米时,采用双洞单线隧道是做好的。
通过对线路的考察和连接的铁路连线,本隧道选择单线。
本隧道的设计
长鹰坝一号隧道属于较短隧道,因此采用的单洞单线直线方案,隧道的选线如图:

图2.1 隧道线路平面图
纵断面设计
隧道内纵坡形式确定
隧道内纵坡形式主要单向坡和人字坡着两种。
单向坡,多用于线路的紧坡或者需要展线的地区,对运营通风和排水有利,在施工过程中水自然顺着坡道流出,特别是在下行单向隧道通风条件较好,便于废气的排出。
人字坡,多用于长隧道,特别是越岭隧道,但是因为隧道两端都是往上坡施工,排水问题能够得到解决,但是不利于通风,施工过程产生的废气往往会聚集于工作面,因此对于长大隧道,往往需要设置通风竖井或者增加机械通风,以保证隧道内的运营通风。
结合本隧道的地质情况和长度,基本坡道形式确定为单坡。
隧道内纵坡坡率确定
隧道内纵坡的坡度的确定是为了保证能够将施工涌水的排出,结合通风条件的因素,一般是将纵坡坡度控制在1%以下,这样有利于隧道内有害气体的排放,在隧道内尽可能的避免平坡,需要将排水条件优先考虑,根据《铁路隧道设计规范》:“隧道的内纵坡不应小于3‰”,这是将施工过程中和隧道竣工洞内的排水需要,保证隧道内的涌水和施工时候的涌水能够从坑道内侧沟中流出,要有3‰的坡度。
结合本隧道的实际情况,采用坡度为17.6‰的单坡。
隧道平纵指标见下表:
表2.1 隧道平纵指标表
隧道名称 | 起讫桩号 | 纵坡形式 | 纵坡坡度 | |
大幕一号隧道 | DK238 135~ 333 | 单坡 | 17.6‰ |
横断面设计
建筑限界
建筑限界是为了保证隧道内列车的正常运行和安全,与隧道中线垂直的极限横断面轮廓,它主要根据列车车厢的大小、隧道内附属设备等所占空间确定的。参照新建铁路隧道标准建筑限界,单线铁路隧道建筑限界如下图:

图2.2 隧道建筑限界
大幕一号隧道的净空确定和衬切内轮廓
隧道衬切内轮廓尺寸设计应该结合地质条件,断面的几何形状,围岩的自承受能力,既要保证隧道有足够的强度和安全性,保证隧道的服务年限达到一个最大值。衬切内轮廓的设计,首先要根据围岩的级别,工程地质条件并结合相关的工程经验对尺寸进行一个初步设计,然后对尺寸的合理性进行一个结构受力分析,验算其是否满足强度。
隧道衬切轮廓设计主要是轮廓线、轴线、和衬切截面厚度的设计,经验表明,衬切轮廓线以圆形最为合适,当隧道主要承受竖直方向上的载荷时,结构轴线上部分以圆弧形或者尖供形最为理想,隧道边墙则可以选择做成直强式衬切,当竖向载荷和横向载荷都比较大的时候,可以采用三心拱或者五心圆曲墙式衬砌。当底部压力较大时,底部应该设计相应的仰拱去保证衬切的稳定。隧道衬切截面厚度应该根据隧道所处位置的地质条件和水文条件设计成不同的厚度,但是各个截面的厚度都不能小于规范规定的最小厚度值。
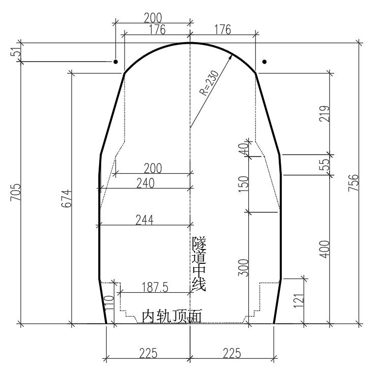
根据设计所给原始资料,该隧道是单线铁路隧道,列车的行驶速度160km/h,查铁路隧道相关书籍,参照《宜万隧参》选取隧道断面图,衬砌净高7.91m,最大净宽6.56m,
本隧道的内轮廓线,如图所示:

图2.3 断面轮廓设计图
隧道洞口位置的选定和洞门结构设计
隧道洞口位置的选择
隧道洞口是隧道进出的咽喉,洞口和洞门也是隧道施工环节最脆弱的部分对隧道洞口位置的选择是非常重要的,从我国多年的实践经验,总结出隧道“早进晚出”的一个原则,这只是一个相对说法,并不绝对,需要结合相关实际资料从而对隧道洞门进行合理的选择和设计。在选择洞口位置的时候应该尽量在地质条件好、地势开阔、方便施工的地方。所以在选择的时候需要结合地形条件、地质条件、和周围环境条件。
1. 地形条件
隧道洞口的轴线尽量和地形等高线垂直,避免与等高线平行入洞,在一些地形条件差例如:松软地层、洞口岩石不完整、容易风化等不能采用斜交进入洞内。在围岩等级为Ⅲ级及以上的围岩,可以选择斜交进洞。
傍山隧道的洞口靠山的那边边坡较高,容易发生塌方和落石。所以需要对坡体进行认真调查并且分析其稳定性,做好相应的防范措施。
位于悬崖下面的洞口不能损坏原来的山坡。首先要避免在不稳定的悬崖下面进洞,若综合考虑下只能在悬崖峭壁下面进洞,需要设置明洞,延伸长度应该在塌落区5米以外。在慢坡地段选择洞口,需要结合路填挖方情况,排水情况,在地表水和地下水汇集的地方,往往地质构造都比较破碎,并且需要做好洞口段的防水和排水。
2. 地质条件
洞口选在山坡稳定、地质条件之处,需要避开排水困难的沟谷和比较低洼的地方,不应该设在不良地质的地段。对于层面不稳定的地方应该提前进洞不然就只有进行有效的地质病害防治措施。
在黄土地区,隧道不能设计在沟穴的附近,以保证洞口不受到地质病害,在没有地下水和稳定的老土层中,除了洞外需要填方要求还应该不要深挖进洞。
在冻土区域和积雪地区,洞口应该避开容易发生滑塌、第四纪覆盖层和地下水发育的地段。在地震区域的隧道需要选择在抗震好的区域。
3. 周围环境条件
在隧道设计的时候,需要考虑到周围的居民情况,首先就是尽量减少对交通、农业和居民居住地方的影响,如果边上有居民居住的时候,应该提前进洞。在位于河水或者山洪地区,洞口的路肩设计标高应该在位于设计洪水位以上0.5米,避免洪水涌入隧道。在一些特殊地区比如雪地,考虑雪崩和风吹雪对行驶的影响,设立相应的防雪、防风工程和防止路面冻害工程。
结合综上的位置选择条件,本隧道的洞口位置选择:进口里程DK238 135、出口里程DK238 333。隧道大致呈直线,线路路程短,隧道的选择避开了陡坡,也避免了高程问题,减少了落石和滑坡的危险的发生。
隧道洞门的设计
隧道洞门的设计原则
隧道洞口需要设置洞门,洞门的机构有很多种,选用时根据洞口的地形和工作条件选择合适的洞门,铁路线路中线尽量与洞口的等高线正交,隧道洞门构造的主要要求如下:
1) 洞口端墙上方仰坡坡脚到端墙背后的水平距离要大于1.5米;且端墙墙顶要比仰坡脚的垂直高度要大于或等于0..5米,用来防止水流溢出墙顶;端墙和仰坡脚之家的水沟底和衬砌的最外缘之间的垂直距离要大于1m以上,如下图3-1所示。
以上是毕业论文大纲或资料介绍,该课题完整毕业论文、开题报告、任务书、程序设计、图纸设计等资料请添加微信获取,微信号:bysjorg。
相关图片展示:









