MQ4025门座起重机总体及臂架系统设计毕业论文
2020-02-19 19:20:26
摘 要
随着时代发展和科技进步,机械设计和制造方法不断更新、发展。目前,各种工程、医药、科学、实验、产品开发的机械设计和制造方法的主流技术是基于计算机软件进行再开发、再创新技术。本文使用AUTOCAD、SOLIDWORKS、ADAMS等软件进行MQ4025门座式起重机总体及臂架系统的设计,主要包含以下几个方面的内容:
(1)MQ4025门座起重机总体设计。包含:各工作机构和金属结构的选型和布置,整机抗倾覆稳定性验算,支承反力计算。
(2)MQ4025门座起重机臂架系统三维建模。包含:基于SOLIDWORKS的臂架系统三维建模。
(3)变幅机构动力学仿真。利用ADAMS软件建立臂架及其平衡系统的虚拟样机,重点分析MQ4025门座起重机起升、变幅、回转运动工况下臂架、小拉杠、平衡梁铰点处的受力情况;幅过程中臂架的速度、加速度和位移分析等。
本文致力于将AUTOCAD、SOLIDWORKS、ADAMS等计算机软件运用在起重机设计过程中,结果表明利用AUTOCAD、SOLIDWORKS、ADAMS等计算机软件将极大提高起重机设计的设计效率、有利于优化起重机的重要零部件和提高起重机使用寿命、避免重复设计过程中人员和自然资源的浪费。
关键词:门座起重机;臂架系统;SOLIDWORKS;ADAMS
Abstract
With the development of the times and the progress of science and technology, mechanical design and manufacturing methods are constantly updated and developed. At present, the mainstream technology of mechanical design and manufacturing methods for engineering, medicine, science, experiment and product development is the technology of redevelopment and innovation based on computer software. This paper uses AUTOCAD, SOLIDWORKS, ADAMS and other software to design the overall and boom system of MQ4025 portal crane, which mainly includes the following aspects:
(1) Overall design of MQ4025 portal crane. Includes: selection and arrangement of working mechanism and metal structure, checking calculation of anti-overturning stability of the whole machine, calculation of supporting reaction force.
(2) Three-dimensional modeling of boom system of MQ4025 portal crane. Include: Three-dimensional modeling of boom system based on SOLIDWORKS.
(3) Dynamic simulation of luffing mechanism. The virtual prototype of jib and its balance system is built by ADAMS software. The stress of jib, small bar and balance beam hinge under lifting, variable amplitude and rotary motion of MQ4025 gantry crane is analyzed, and the speed, acceleration and displacement of jib in the process of amplitude are analyzed.
This paper is devoted to the application of AUTOCAD, SOLIDWORKS, ADAMS and other computer software in crane design process. The results show that the use of AUTOCAD, SOLIDWORKS, ADAMS and other computer software will greatly improve the design efficiency of crane design, is conducive to optimizing the important parts of crane and improving the service life of crane, avoid the waste of personnel and natural resources in the repeated design process.
Key words: portal crane;boom system;SOLIDWORKS;ADAMS
目 录
第1章 绪论 5
1.1目的与意义 5
1.2国内外研究现状 5
1.3本文主要工作 7
第2章 MQ4025门座起重机总体设计 8
2.1主要技术参数 8
2.2确定各工作机构和金属结构 9
2.2.1 工作机构 9
2.2.2 金属结构 13
2.3 MQ4025门座起重机总体设计计算载荷 16
2.3.1 自重载荷 16
2.3.2 起升载荷 16
2.3.3 货物偏摆载荷 16
2.3.4 风载荷 19
2.3.5 回转离心力 20
2.3.6 水平惯性力 20
2.4整机抗倾覆稳定性验算 23
2.4.1 基本稳定性 23
2.4.2 动态稳定性 23
2.4.3 非工作最大风载荷稳定性 24
2.4.4 突然卸载时的稳定性 24
2.5轮压计算 25
2.5.1支承反力计算概述 25
2.5.2支承反力计算 26
2.6本章小结 28
第3章MQ4025门座起重机臂架系统三维建模 29
3.1 SOLIDWORKS三维建模简介 29
3.2基于SOLIDWORKS的臂架系统三维建模 29
3.2.1建模步骤 29
3.2.2各零部件建模 30
3.2.3变幅机构总装配 31
3.3本章小结 31
第4章 基于ADAMS的臂架系统动力学仿真 32
4.1 ADAMS软件介绍 32
4.2基于ADAMS的臂架系统动力学仿真 32
4.2.1基于ADAMS的臂架系统模型建立 32
4.2.2臂架系统变幅过程仿真 33
4.2.3仿真结果分析 37
4.3本章小结 39
第5章 总结与展望 40
5.1 本文总结 40
5.2 经济性和环保性分析 40
5.3 展望 41
参考文献 42
致谢 43
第1章 绪论
1.1目的与意义
门座起重机具有高工作效率、具有较大的工作范围、机动性好、能够广泛的起升各种货物等优点,大多数港口、机场都采用门座起重机作为装卸机械。单臂架门座起重机结构简单,幅度大,与其他起重机相比,它的臂架系统重量较轻,使用场合更加广泛。
到目前为止,大多数起重机设计人员采用理论与经验结合的设计方法来进行起重机的设计工作。虽然这种设计方法非常直观、简单,易于被设计者掌握,但使用至今还是存在一些问题:第一,传统设计方法中选取设计参数主要是参考同类型产品,为了保证结构稳定、机器的安全运行,通常会选取较大的设计参数,以至于出现钢材浪费,产品过重,产品成本提高等问题。第二,传统设计大多将计算模型简化,将一些与运动和强度无关的次要零部件删去,在一定程度上让分析过程失真。第三,起重机运动过程中受载情况和时间有很大关系,需要进行详细的动态分析,传统设计方法采用“绘图法”来校验起重机的变幅过程,计算量大,计算过程复杂,需要花费较多时间和人力。
时代不断发展,电脑制图(AUTOCAD)代替了手工绘图,三维建模(SOLIDWORKS)和幻灯片演示代替了人工讲解,使用计算机技术建立虚拟样机,动力学和运动学仿真让复杂的起重机运动过程变得清晰、直观、准确,利用有限元分析程序(如ANASYS)进行起重机金属结构的强度、刚度分析,大大缩短了计算时间,提高人工效率。
本文在完成MQ4025门座起重机总体及臂架系统设计的同时,使用动力学分析软件分析臂架系统的各个铰点在起重机起升、回转、变幅工况下的受力情况,相较于传统的分析手段,该方法更加简洁、直观、准确。
1.2国内外研究现状
武汉理工大学彭菁菁教授和郭燕教授,利用ANSYS软件对单臂架起重机的臂架进行结构分析,实现了臂架参数化建模,并对臂架进行模态分析,为单臂架门座起重机的臂架设计问题的解决提供了新的方法[1]。
武汉理工大学张欢,基于三维建模软件SOLIDWORKS、有限单元分析软件ANSYS和动力学仿真软件ADAMS,运用多体系统动力学的基本理论,建立了船用甲板起重机整机结构的刚柔耦合动力学模型,研究了起重机整机结构在各种典型作业工况下各个机构运动过程中所产生的动态载荷[2]。
大连理工大学刘钦澎、曹旭阳、王殿龙、董想和大连华锐重工起重机有限公司吴刚、王雪松,提出了一种改进的变幅轨迹计算方法。在优化结果的基础上,建立了臂架平衡系统的有限元模型,并采用一阶优化算法优化截面尺寸,减轻了臂架质量和优化了平衡系统[3]。
天津港第五港口有限公司曹娜,利用数学软件MATLAB,交互式CAD/CAM系统UG 和有限元分析软件ANSYS,优化了门座起重机的臂架和自重平衡系统,使臂架结构更加完善[4]。
N.Đ.Zrnić,V.M.和 Gašić,S.M.Bošnjak,利用有限元分析软件建立并分析了龙门起重机的振动模型,准确得出振动位移和影响振动位移的几个要素[5]。
晋中学院机械学院郭帅以门座起重机臂架变幅机构为刚性体,使用数学分析软件对变幅机构各个部件的重心进行动力学计算,并收集数据,准确找出在变幅过程中各机构重心位移改变情况[6]。
中船第九设计研究院工程有限公司刘彦飞介绍了大拉杆在自重作用下的受力情况,分析了大拉杆自身重量对门座起重机变幅三种不同距离的影响[7]。
阜新德尔汽车部件股份有限公司徐小东、韩颖应用ADAMS软件模拟履带起重机起臂、提升、回转、行走、变幅等不同工况,使用ANSYS软件建立臂架系统的有限元模型,利用ADAMS和ANSYS联合仿真求出臂架系统在各工况下的受力状态[8]。
国立首尔大学船舶与海洋工程系Ju-Hwan Cha和 Kyu-Yeul Lee使用动力学分析软件建立了浮吊的动力学模型,通过计算机辅助计算得出在水流浮动情况下的钢丝绳拉力[9]。
Andrej Cibicik[10] 等人把螺旋理论带入到起重机模型中去,该模型可以进行结构完整性计算和疲劳寿命预测。
以上文献表明,国内外都有利用现代计算机技术手段来辅助设计起重机的趋势,一定程度上说明利用现代计算机技术来设计起重机的设计方法要优于传统设计方法。因此,本文在上述文献的启发影响下,运用SOLIDWORKS、AUTOCAD、ADAMS等软件对MQ4025门座起重机臂架系统仿真分析,通过使用ADAMS软件进行臂架系统的动力学分析以找出在起升、变幅、回转工况下臂架系统中各个铰点的受力情况。
1.3本文主要工作
本文旨在于利用SOLIDWORKS进行臂架系统的三维建模以及把ASAMS的仿真技术运用于MQ4025门座起重机臂架系统设计中,以减少传统设计方法中对起重机变幅机构设计的工作量和解决难以完成的臂架系统动态分析问题。具体工作如下:
第2章是MQ4025门座起重机总体设计。包含;各工作机构和金属结构的选型和布置,整机抗倾覆稳定性验算,轮压计算。
第3章是MQ4025门座起重机臂架系统三维建模。包含:SOLIDWORKS三维建模简介,基于SOLIDWORKS的MQ4025门座起重机臂架系统三维建模。
第4章是臂架系统在起升、回转、变幅工况下的动力学仿真。利用ADAMS软件建立变幅过程中MQ4025门座起重机的虚拟样机,重点分析门座起重机变幅过程中人字架、臂架、小拉杠、平衡梁铰点处的受力情况和变幅过程中臂架的速度、加速度和位移分析等。
第5章是全文总结、经济性和环保性分析和展望。
第2章 MQ4025门座起重机总体设计
2.1主要技术参数
设计参数是设计时要求机械运行所能达到的最低使用要求,根据起重机的工作级别和工作场合不同,起重机的技术参数也就不同。在起重机的设计过程中,需要有针对的确定起重机的主要技术参数。技术参数见表2.1。
表2.1 设计技术参数
技术参数名称 | 技术参数 | |||
起重量 (t) | 40t/20m吊钩 | |||
工作幅度(m)(最大/最小) | 25/9 | |||
起升高度 (m)(轨上/轨下) | 20/16 | |||
起升机构(m/min) | 20吊钩 35抓斗 | |||
变幅机构(m/min) | 20 | |||
回转机构(r/min) | 1 | |||
运行机构(m/min) | 25 | |||
整机 | A7 | |||
起升机构 | M7 | |||
变幅机构 | M7 | |||
回转机构 | M7 | |||
运行机构 | M4 | |||
基距 (m) | 11 | |||
轨距 (m) | 12 | |||
工作最大风压(N/m2) | 250 | |||
非工作最大风压(N/m2) | 1560 | |||
许用轮压(KN) | 250 | |||
轨道型号 | P50 | |||
最大尾部半径(m) | 7.6 | |||
电源(电压/频率)(v/Hz) | 380/50 | |||
使用地区 | 沿海 | |||
2.2确定各工作机构和金属结构
起重机的工作机构用于实现货物在空间中的运动,完成货物的装卸、搬运、安装等作业过程。MQ4025门座起重机可分为回转和非回转部分,回转部分的工作机构包括变幅机构、起升机构和回转机构,非回转机构是运行机构。MQ4025门座式起重机的金属结构包括人字架、门架结构、转台、臂架系统等。金属结构是起重机的骨架,它支承起重机和承受其他作用在起重机上的外载荷以及它们产生的力矩。
2.2.1 工作机构
(1)起升机构
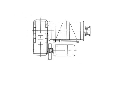
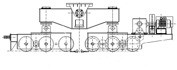
起升机构主要由钢丝绳滑轮组卷绕系统、驱动装置、安全辅助装置、制动装置、取物装置等组成。起升绞车由电机、联轴器、减速器、卷筒及制动器等组成。大多数起重机起升机构是电动机驱动,交流电动机能直接从电网汲取电力,操作简单,维修方便,重量轻,工作可靠,在电机起升机构中被广泛采用。钢丝绳滑轮组卷绕系统如图2.1所示,MQ4025门座起重机起升铰车如图2.2所示。

图2.1钢丝绳滑轮组卷绕系统

图2.2 起升机构组成及布置形式
(2)变幅机构
以上是毕业论文大纲或资料介绍,该课题完整毕业论文、开题报告、任务书、程序设计、图纸设计等资料请添加微信获取,微信号:bysjorg。
相关图片展示:









