宇通ZK6579校车车身总布置设计毕业论文
2020-02-17 11:10:59
摘 要
随着我国经济实力的增强和人们生活水平的提高,我国的教育规模不断扩大:越来越多的儿童能进入小学学习。同时伴随着国家“撤点并校”号召的响应,小学上下学的交通运输市场正迅速扩大,对专用校车的需求在不断上升。
本次宇通ZK6579校车车身总布置的设计工作是在整车总布置设计的基础上进行,主要是参考已给的整车参数和相关的国家标准、行业标准,并结合人机工程学的基础理论和知识进行车身总布置设计。其内容主要是校车踏步尺寸的确定、地板高度的确定、出口和座椅的布置、通道与引道的尺寸控制、外观标识和信号系统的布置、驾驶区座椅和操纵机构的布置以及仪表盘的布置设计,并进行相关的视野校核。
关键词:车身总布置设计;车身室内布置设计;人机工程学;视野校核;
ABSTRACT
With the improvement of China's economic strength and the improvement of people's living standards, the scale of education in China is constantly expanding: more and more children can enter primary school. At the same time, along with the response of the national “sign-off and merging school” call, the transportation market for primary and secondary schools is rapidly expanding, and the demand for dedicated school buses is rising.
The design of the Yutong ZK6579 school bus body layout is based on the overall layout design of the vehicle, mainly referring to the given vehicle parameters ,related national standards, industry standards, and the basic knowledge of ergonomics. The content is mainly the determining the size of the school bus ladders, the determining of the floor height, the layout of the exits and the seats, the size control of the passage and approach, the layout of the appearance and signal system, the arrangement of the driver's seat and the steering mechanism, and the layout of the instrument panel. The layout is designed and the relevant field of view is checked.
Key Word: overall layout design;body interior layout design;ergonomics;visual field check;
目 录
第1章 绪论 1
1.1 研究背景和目的 1
1.2 国内外研究现状 1
第2章 设计方法 2
2.1 现代设计方法 2
2.2 本研究采用的方法 2
第3章 已知参数及制图要求 3
3.1 整车的主要参数 3
3.2 车身制图的要求 3
3.2.1 图面布置 3
3.2.2坐标系和零平面的选择 3
3.2.3 坐标线标记和间隔 3
第4章 车身主要尺寸的确定 4
4.1 踏步尺寸的选则 4
4.2 地板高度的选择 5
4.3 出口布置 5
4.3.1 出口数目的确定 5
4.3.2 乘客门位置及尺寸确定 5
4.3.3 应急门设计 5
4.3.4 乘客门和应急门上的应急窗 6
4.4 座椅布置 6
4.4.1 座椅及护板尺寸确定 6
4.4.2 座椅的布置方案 7
4.4.3 座椅的上方空间校核 8
4.5 通道和引道尺寸的确定 8
4.6 外观标识和信号系统布置 11
4.7 安全措施 12
第5章 驾驶区的布置 13
5.1 人体模型及其尺寸 13
5.2 驾驶区座椅的布置设计 14
5.3 眼椭圆及视野校核 15
5.3.1 眼椭圆样板的制作 15
5.3.2 眼椭圆在车身图上的定位 17
5.3.3 视野校核 17
5.4 操纵杆件和仪表板的布置 18
5.5 踏板的布置 19
第6章 结论 21
致 谢 22
参考文献 23
第1章 绪论
1.1 研究背景和目的
在汽车诞生的这一百多年里,相关技术在不断的发展,如今已成为一类技术密集型的典型产品。随着汽车产业的迅速发展,车身设计也在汽车设计的过程中占越来越重要的地位,而车身的总布置设计是其中关键的组成部分。车身总布置是为了在车身有限的内部空间内将乘客或物品安排于最合适的位置,既要保证乘员舒适性,也要考虑最大的承载质量,最大程度地提高车身的面积利用率[1]。车身总布置需在整车总布置基础上开展,整车总布置会提供整车的外形参数、各个总成的位置分布、前悬、后悬、轴距、轮距、离去角、接近角等关键尺寸[2]。接着根据相关标准,参考同类车型,即可初步确定整车的踏步尺寸、地板高度、乘客区座椅布置、乘客门尺寸等基本控制尺寸,若通过相关的功能校核,就可获得有效数据。
本设计题为宇通ZK6579校车车身总布置设计,是在宇通校车的底盘基础上进行车身的总布置工作。校车作为一种特殊的专用车,它对安全性能要求最高。合理的车身总布置应在保证较高的安全性的基础上,满足一定的乘客舒适性。车身的总布置设计是是其他设计工作的前提与基础,因此本研究具现实意义,可以为校车的相关研究提供参考价值。
1.2 国内外研究现状
在车身的内部布置方面,人机工程学的知识为车身内部布置贡献了最合适的设计工具。在国外,人机工程的相关理论在汽车设计的研究里应用越来越深入和广泛,让汽车和车身的设计更加适应人体特征,提高了人机系统的工作效率,符合车身设计中“以人为本”的设计理念[3]。人机工程的相关理论为我们在车身内部空间布置方面提供了合适有效的研究方法与经验数据。这些数据与经验对我们整体的汽车设计过程都有很好的借鉴意义。在国内,对于专用校车的设计研究起步较晚,特别是车身总布置这方面,因此缺乏经验,尚未形成明确清楚的研究思路与方法,人机工程的知识与理论尚未合理地融入其中。不过随着2012年3月校车新国标的实施,我国关于校车的设计、管理、运行方面的工作都越来越标准化、程序化、严格化。本设计也是在参考新国标基础上进行的[4,5]。
第2章 设计方法
2.1 现代设计方法
车身设计中传统的设计方法在设计的各个阶段都会反复制作平面图形以及立体模型。这使得汽车设计的周期较长,但数据的可行度却不高,且需付出大量的劳动。在现代,计算机辅助技术和制造技术(如CATIA\CAD\CAE等)在车身设计中占不可或缺的地位,用计算机的软件、硬件新成就,如计算机绘图技术、数据库、智能仿真技术等,为汽车设计贡献了理性的工具与手段[6]。计算机理论与数控加工技术的合作,可用来制造高精度的机械零件,以及进行产品的自行检查与装配,此即为计算机辅助与制造技术。近年来,它在汽车车身的设计过程中得到广泛的应用,并带来革命性的技术变革[7]。
车身设计中采用CAD\CAE技术有许多的优点,主要体现在:1.缩短设计与制造周期。如模具加工科直接参考CAD的结果,极大提高了制造模具的效率。由于没有两次的油泥模型、工艺模型与主模型的制造过程,使得人力、物物力大大节约。2.极大提高了精度。一旦完成车身表面的数学模型,将其存入数据库,经计算机系统即可实现多放共享,为后续的设计、制造、模具准备提供完善、精确的原始数据。消除了数据的形式转换,模具的加工精度得以大幅调高。3.减轻工作人员的工作强度,改善其工作环境。4.方便将设计结果仿真处理,提高数据的可信度。5.方便修改设计结果,或在原设计基础上升级、换型[1,2]。
2.2 本研究采用的方法
本人主要以国家标准为依据,以行业标准、同类车型参数为参考而展开本次车身的布置设计过程。在驾驶室、仪表盘的布置设计过程中,大量运用了人机工程学的相关知识与理论,始终以人的感受为重点,突出人在“人-机-环境”中的核心地位。在落实布置设计的过程中,相关的计算机软件为我提供了不少便利。以下为我的设计思路:
1、确定设计的理念与原则(“以人为本”、“安全第一”)。
2、查找资料确定校车的长宽高、轮距、接近角、前悬、后悬等参数,为接下来的设计过程做好准备。
3、查找相关标准,参考同类车型,初步定好相关尺寸,绘制车身总布置的草图。
4、利用人机工程的相关理论布置驾驶室,进行仪表盘的布置设计,在老师指导下确定最终方案,再进行视野校核。
5.利用CAD 、CATIA完善车身总布置和零件图的绘制。
6.撰写毕业论文初稿,在老师的指导下进行修改至完成。
第3章 已知参数及制图要求
3.1 整车的主要参数
本次设计是基于宇通ZK6579校车底盘的基础上进行的车身总布置。经过查询官网资料和相关报道,具体的数据与信息见表3.1:
表3.1 宇通ZK6579整车参数表

3.2 车身制图的要求
3.2.1 图面布置
绘制车身总布置图、车身线图、零件图、装置图、总成图时,一般会以汽车自右向左的行驶方向来布置图面[8],图面布置应该做到图形分布均匀。
3.2.2坐标系和零平面的选择
在车身设计里会用右手原则规定坐标系,在坐标里,会以汽车前进方向为x轴,以宽度方向为y轴,以高度方向作为z轴。一般取汽车纵向车架上表面一段较长并且平直的表面作为z轴零平面;取通过汽车的前轮中心线并且与z轴零平面垂直的平面为x轴零平面;取汽车的左右对称平面为y轴零平面[8]。
3.2.3 坐标线标记和间隔
根据QC/T 490-2000车身制图的国标,坐标线应为细实线,坐标线间隔应为100mm及其整数倍。根据已知的数据,本次绘图将采用100mm的间隔[8]。如果需要,可以在坐标线的间隔之间加入任意数值的坐标线。坐标线的标记必须包括坐标线到零平面距离的百分之一的数值(若为负方向的数值,需加负号)和坐标的方向。
第4章 车身主要尺寸的确定
4.1 踏步尺寸的选则
根据《专用校车安全技术条件》(下文简称为“新国标”),在校车空载时,第一级踏步距离地面的高度不应大于350mm,其他踏步的高度不应该大于250mm,有效的深度(从一级台阶的边缘到下一级台阶的边缘的水平方向距离)不应该小于230mm[5]。其余的要求必须合乎GB 13094的规定,见图4.1和表4.1[9]:

图4.1 乘客用踏板
表4.1 空载时踏步的尺寸规定

由此,可将尺寸确定如下:第一级踏步厚度为20mm,深度为300mm,高度为170mm;第二级踏步的深度为250mm,高度为150mm。
4.2 地板高度的选择
根据已知的接近/离去角、轮胎半径、前悬、后悬的数据,再参考上文中第一级踏步距离地面的高度限制(350mm),可知车身至地面的最小距离为295mm。根据上文已定的踏步高度及第一级踏步厚度,可得出地板离地最小高度为635mm。
4.3 出口布置
校车的出口包含乘客门、应急门、安全窗、应急顶窗和撤离舱口,其各自的布置位置、数目与尺寸要求需详细参考校车的新国标,确定过程如下:
4.3.1 出口数目的确定
参考GB 24407-2012 中的应急出口要求表(如下表4.2),又因为本校车车长5.7m,本校车可确定为3个基本出口:一个右侧乘客门、一个司机门及一个后围应急门[5]。
表4.2 应急出口的位置、种类和最少数量

4.3.2 乘客门位置及尺寸确定
新国标里要求在校车右侧的前后轮胎之间必须布置一个乘客门,所以本校车的唯一乘客门将布置于校车右侧翼子板之后。另外要求乘客门需装上由安全玻璃制成的应急窗。
本车长为5.7m,属于轻型校车,关于出口的其他技术要求可参考GB 18986-2003中关于乘客门最小尺寸的规定[10]。本次设计将乘客门高度定为2000mm,宽度定为800mm,符合要求。其他技术要求如:乘客门应该锁止可靠,在校车行驶过程中不可自行打开;校车静止时,车门应该便于从车内、车外开启;校车外的开门开关在校车空载时离地面不应大于1800mm;车门在关闭状态时,车门内侧的任何装置不应遮盖踏步板等等,本设计均已考虑。
4.3.3 应急门设计
后围应急门相关要求可参考GB18986-2003 4.5.6中的规定[10]。本次设计的应急门为铰接式的向外开启的应急门(铰接于前端),并可保证开启角度大于100°,配有声响装置,可在应急门没有关闭的时候提醒驾驶员。另外要求应急门需装上由安全玻璃制成的应急窗,车外开关装置离地面的高度应该在1000-1500mm之间,且距离该门不会大于500mm;车内的开关装置应该离下方地板上表面的距离在1000mm-1500mm之间[10]。参考其中的最小尺寸要求表,将本次设计中后围应急门的宽度定为600mm(gt;550mm),高度定为1400mm(gt;1250mm)。
4.3.4 乘客门和应急门上的应急窗
乘客门和应急门上应急窗的相关要求可参考GB18986-2003 4.5.7中的规定。其中相关技术要求如:应急窗应该易于从车内和车外都可迅速打开,并且在每个应急窗附近都有一个可迅速击破应急窗的工具;铰接式和弹射式的应急窗应该向外开启,弹射式的应急窗不应在操作时从从校车上整个分离开等等,本设计均已考虑[10]。根据其中最小尺寸的要求表,乘客门上的应急窗的宽度定为750mm,高度定为380mm;后围应急门上的应急窗宽度定为500mm,高度定位650mm。
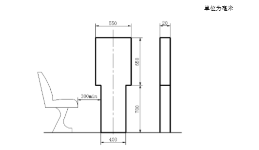
4.4 座椅布置
根据新国标,在座位数小于40时,专用校车应该至少安排一个看管人员的座位,看管人员的座位应布置在通道和乘客门附近[5]。另外,看管人员的座位需要有永久性的标识。再根据车内空间及装载质量 的限制,遂将本校车设计为20座校车:1(驾驶员) 1(看管人员) 18(乘客)。
4.4.1 座椅及护板尺寸确定
本设计将长条座椅选为小学生座椅,其尺寸要求参考新国标中规定,见下表4.3[5]。本设计中将座椅深度定为350mm;座椅宽度为700mm;座垫高度为350mm(轮毂处座椅的座垫高度为365mm);靠背的厚度为55mm;靠背的高度为830mm(轮毂处座椅的靠背高度为845mm);扶手距离座垫的高度为200mm。因车内空间限制,第五排座椅选为单人座椅,其宽度为380mm,其余尺寸与长条椅相同。值得注意的是:学生座椅不可为折叠座椅,其外观需全部用软化材料包裹。尤其是座椅的后背,需要进行软化处理后作为阻碍学生往前冲的屏障。本次设计中的座椅规定均不可调节,否则可能会压缩后排生存空间,后排学生在惯性作用下很危险。座椅的抗前倾能力需要通过国标GB 27887中的动态试验,其抗后倾能力需要通过国标中的静态试验。除驾驶员座椅采用三点式安全带外,学生和照管人员座椅均采用两点式的安全带。
驾驶员座椅要求合乎GB 15083的相关技术要求,参考同类车型的座椅,其宽度定为450mm,深度定为430mm。
以上是毕业论文大纲或资料介绍,该课题完整毕业论文、开题报告、任务书、程序设计、图纸设计等资料请添加微信获取,微信号:bysjorg。
相关图片展示:









