集中荷载作用下承台系梁承载能力分析毕业论文
2020-02-19 16:29:13
摘 要
梁式承台由于其大跨度能力和良好的支撑性能而在许多场景中使用,确定梁的剪切性能对其结构设计具有重要的指导意义。
梁式承台的跨高比较小,是典型的深受弯构件。本文先介绍了深受弯构件的基本概念、受力性能和破坏形态,并对拉压杆模型进行了详细介绍,之后分别使用我国规范和拉压杆模型进行抗剪承载力计算,再使用OpenSEES进行有限元分析,得到极限承载力与手算结果进行对比,最后基于之前电算的模型,控制混凝土强度、剪跨比和跨高比的控制变量分析,探究了其对抗剪承载力的影响。
分析表明,随混凝土强度的增加,抗剪承载力显著增加;剪跨比为0.5时,构件的承载力最小;随着跨高比的增大,承载力减小。通过本文的研究,对非线性构件有了一定的理解,并掌握了拉压杆模型进行设计的方法,使用OpenSEES进行建模模拟分析的能力。
关键词:钢筋混凝土深受弯构件,承载力,拉压杆模型,OpenSEES有限元分析
Abstract
The beam type cap is used in many scenes because of its large span capability and good support performance. Defining the shear performance of the beam cap has important guiding significance for its structural design.
The beam-type cap is relatively small in height and is a typical deep-bending member. This paper first introduces the basic concept, force performance and failure mode of the deeply bent members, and introduces the Strut-and-tie Model in detail. Then, using the Chinese standard and the Strut-and-tie Model to calculate the shear capacity, and then use OpenSEES. The finite element analysis is carried out to compare the ultimate bearing capacity with the hand calculation results. Finally, based on the previous computerized model, the control variables of concrete strength, shear span ratio and span height ratio are controlled to explore the influence of the shear bearing capacity. .
The analysis shows that with the increase of concrete strength, the shear capacity is significantly increased; when the shear span ratio is 0.5, the bearing capacity of the member is the smallest; as the span ratio increases, the bearing capacity decreases. Through the research in this paper, the nonlinear components have a certain understanding, and the method of designing the tension and compression rod model is mastered, and the ability of modeling and simulation analysis is performed using OpenSEES.
Key words: reinforced concrete deep flexural members, bearing capacity, Strut-and-tie Model, OpenSEES finite element analysis.
目录
摘要 3
Abstract 4
第一章 绪论 1
1.1深受弯构件的基本概念 1
1.2深受弯构件的破坏形态 1
1.2.1深梁的破坏形态 1
1.2.2短梁的破坏形态 1
1.3深受弯构件的研究现状 2
1.4本文的研究内容 3
第二章 拉压杆模型 5
2.1拉压杆模型的基本概念 5
2.2混凝土梁桥中的B区和D区 5
2.3拉压杆模型的构成 5
2.3.1拉杆 5
2.3.2压杆 5
2.3.3节点 6
2.4构建拉压杆模型的方法 6
2.5拉压杆模型法设计的步骤 7
2.6拉压杆模型的研究现状和进展 7
3.1.1梁式承台的设计资料 8
第四章 OpenSEES有限元分析 18
4.1 OpenSEES概述 18
4.2 弯曲-剪切相互作用模型 18
4.2.1 元素表达 19
4.2.2 基于挠曲 - 剪切相互作用位移的梁柱单元 19
4.2.3分段分析 19
4.2.4 相互作用模型的纤维截面 21
4.2.5 纤维建模-材料建模 21
4.2.6 材料的定义 22
4.3 结果分析 24
第五章 深受弯构件承载能力影响因素分析 27
5.1混凝土强度的影响 27
5.1.1深受弯构件参数设计 27
5.1.2结果分析 27
5.2剪跨比的影响 29
5.2.1深受弯构件参数设计 29
5.2.2结果分析 29
5.3跨高比的影响 31
5.3.1深受弯构件参数设计 31
5.3.2结果分析 31
5.4结论 33
参考文献 34
附录:OpenSEES命令流 36
致谢 38
第一章 绪论
梁式承台目前在城市建设中有大量应用,其自身跨越的同时能支承上部结构,因此对梁式承台承载力的研究具有重大意义。
1.1深受弯构件的基本概念
深受弯构件是指跨度与其截面高度之比较小的梁。梁的计算跨径l与梁的高度h之比的受弯构件称为深受弯构件。又可:的简支梁和的;的简支梁和的。[12]
1.2深受弯构件的破坏形态
1.2.1短梁的破坏形态
短梁的破坏形式主要包括弯曲破坏、剪切破坏两种形态,也可能发生局部受压和锚固破坏。
1)弯曲破坏
短梁发生弯曲破坏时,随其纵向钢筋配筋率不同,会发生超筋破坏适筋破坏或少筋破坏。
2)剪切破坏
短梁的剪切破坏形式有斜压破坏、剪压破坏和斜拉破坏。
1.2.2深梁的破坏形态
1)弯曲破坏
纵向配筋率不足时,发生正截面弯曲破坏,如图所示。
纵向配筋率较大时,在弯曲剪切段开始形成斜裂缝时,斜裂缝两侧混凝土的主压应力明显增大,梁内产生应力重分布,形成拉伸拱力系统,如图所示。在此拱式受力体系中,底部混凝土被压碎破坏,这种破坏被称为斜截面弯曲破坏,如图所示。

图 简支深梁的弯曲破坏
)正截面弯曲破坏 (b)斜截面弯曲破坏 (c)拉杆拱受力图式
2)剪切破坏
纵向钢筋配筋率较大时,梁腹混凝土产生斜压破坏,如图所示。
深梁主裂缝附近会出现一条条小的裂缝,之后梁身破坏,这种破坏被称为劈裂破坏,如图所示。
3)局部承压破坏和锚固破坏
支座处的局部应力很大,因为它于竖向压应力与纵向受拉钢筋锚固区应力组成的复合应力作用区。试验表明,深梁发生局部承压破坏的可能性比一般梁发生局部承压破坏的可能性要大得多,在达到弯曲和剪切承载能力之前。在斜裂缝发展时,深梁支座处的纵向钢筋拉应力增加很快也容易发生锚固破坏。

图 深梁的剪切破坏
(a)斜压破坏 (b)劈裂破坏
1.3深受弯构件的研究现状
近年,许多国内外学者对深梁承载能力进行了研究。
夏桂云和曾庆元[2]综述了深梁理论、截面剪切修正系数计算理论、深梁线性与几何非线性有限元、深梁材料非线性分析、深梁振动理论、深梁稳定理论、箱梁结构分析:弯曲、剪力滞、变形分析时考虑剪切变形影响的计算理论、考虑剪切变形的钢腹板桥的研究成果、弹性地基深梁、深梁理论在工程结构中的应用等。提出了杆系结构的静力、振动和稳定分析方法都可用深梁理论进行重建和重写.
[3]进行了一项实验研究来研究截面高度(),剪切跨度与有效深度之比()和混凝土抗压强度()参数对RC深梁对角裂缝和裂缝宽度特性的影响研究。剪切加固对此特性的影响也进行了探讨。在具有简单支撑条件的3点载荷下测试种不同的具有或不具有抗剪加固的深梁试样。
研究中也出现了一些矛盾和思想的碰撞,在Kong等人的研究中,观察到当比率增加时,平均和最大斜裂缝宽度增加。因此,推断出比率是影响深梁斜裂缝宽度特性的参数之一。在Birrcher等人的研究中,有人指出,由于比率和斜裂缝宽度之间的关系可忽略不计
[4]等对对24根钢筋混凝土()深梁的结构性能进行了实验研究,探讨了影响抗剪承载力的参数,如剪切跨度-深度比,混凝土抗压强度,腹板配筋率和有效梁深度。
[5]提出了有关深梁深度效应的有趣结果。强度结果表明,,。
1.4本文的研究内容
介绍深受弯构件的基本概念,结合相关资料对深受弯构件的破坏形态进行简要说明。
介绍了拉伸杆模型的绘制方法和深弯构件中拉杆模型的计算方法。
根据《混凝土结构设计规范》对宝丰路硚口路段号桥墩的承载能力进行手算,并建立拉压杆模型计算其承载力。
使用有限元分析软件OpenSEES对宝丰路硚口路段号桥墩承台系梁的承载能力进行建模分析。
对比手算和电算的结果。
本文的技术路线图如图所示
图 技术路线图
第二章 拉压杆模型
2.1拉压杆模型的基本概念
拉压杆方法最初在欧洲开发,是一种以力学原理为基础的设计方法,适用于应力应变比较复杂而不能使用平截面假定分析的情况。压杆-拉杆模型由桁架模型发展而来,是一种从理想化的桁架模型,包括拉杆,压杆和节点。此模型能掌握结构的主力特性,又同时利用了桁架轴力计算的简便。
实践表明,拉压杆模型具有良好的工程精度,可用于计算区。
2.2混凝土梁桥中的B区和D区
B表示或,区的截面应变分布基本可以使用平截面假定,它们的截面应力可以通过计算内力(弯矩、扭矩、剪力和轴向力)得出。在混凝土未开裂时,这些应力可借助于截面特性参数(如面积、惯矩等)来计算,当拉应力超过了混凝土抗拉强度而开裂时,则桁架模型(或抗弯塑性发展模型)可用于计算。
D表示或,表示力受扰动,区截面应变非线性分布,从弹性阶段开始平截面假定便不再适用。梁截面的抗弯塑性发展模型随着荷载的增加不能够正确地显示其破坏机理。
2.3拉压杆模型的构成
拉压杆模型由拉杆,压杆和节点构成。
2.3.1拉杆
拉杆为拉压杆模型中的理想化受拉构件。拉杆主要包括钢筋及其周围的混凝土。周围的混凝土定义了拉杆的截面积以及锚固拉杆的有效区域。设计中不考虑拉杆中混凝土所承受的拉力,只考虑钢筋作为拉杆所承受的拉力,但混凝土依旧会减少拉杆的变形。
2.3.2压杆
压杆为拉压杆模型中的理想化受压构件。压杆的形状可以根据压力场的合理扩散情况,可以为棱柱形、瓶型或扇形如图所示。压杆的有效截面积由端部支撑、锚固受力和几何边界所决定。

图 压杆类型
2.3.3节点
节点为拉压杆模型中轴力线相交的点。为保证平衡,每个节点应作用三个力,如图所示。节点表示该节点作用三个压力,如图所示;表示该节点作用两个压力一个拉力,如图所示;表示该节点作用一个压力两个拉力如图所示;表示该节点作用是三个拉力,如图所示。在通过节点传递力的条件下,节点周围混凝土所占的体积称为节点区。

图2.2 节点的类型
2.4构建拉压杆模型的方法
混凝土材料塑性变形有限,在满足平衡条件和屈服准则条件下,在多种选择中存在最合适或最优的拉压杆模型。
- 在施加力时,拉杆压杆中心与应力迹线大致相重合,以减少结构的应力重分布。
 - 最小应变能准则。拉杆中存在有绝大部分的拉压杆模型中的应变能,因此最优的拉压杆模型,拉杆总长度最小。
 - 弹性应变相容误差。在构建拉压杆模型的时候,通常需要先借助有限元分析,来获得构造拉压杆模型的结构的应力迹线,或按荷载路径法或参考已有标准模型来构建。
 
2.5拉压杆模型法设计的步骤
- 确定荷载和支座反力,按照构造要求初步确定尺寸;
 - 将结构划分为区和区;
 - 设计区,以确定区与区区域之间的边界力;
 - 构建区的拉压杆模型;
 - 根据平衡条件确定拉压杆模型各部分的内力;
 - 进行钢筋设计,并使其满足锚固稳定性要求;
 - 通过验算压杆和其节点区确定尺寸。
 
2.6拉压杆模型的研究现状和进展
世纪初期,提出使用桁架模型来进行混凝土梁的抗剪扭的设计计算。
世纪中期,众多学者致力于简化模型来揭示破坏机理,探索合理设计区的方法。
世纪年代末,提出的拉压杆模型被认为是最适合的模型,用于设计区。
年国际桥梁协会在德国斯图加特举行的桥梁年会上, 提出用结构混凝土 (structural concrete)的概念,各种形式、各种结构的钢筋混凝土和预应力混凝土都被考虑在内,并且提出促进基于拉压杆模型的统一设计方法研究。
近些年来,我国学者也在拉压杆模型领域取得了良好的研究成果。同济大学徐栋等应用拉压杆模型设计研究了体外预应力桥梁转向结构分析及配筋,王田友学者应用了拉压杆模型对框架节点的配筋设计;湖南大学的谭子希学者基于拉压杆模型,探究了布筋形式和孔的形状对开口深梁抗剪承载力的影响。
总之,拉压杆模型理论逐渐发展成熟。
第三章 梁式承台承载能力计算
3.1基于《混凝土结构设计规范》经验公式计算承载力
查阅相关资料过后,在老师的指导下,我对宝丰路硚口路段号桥墩承台进行了研究,尝试了对其承载力的验算。整理过后,可将计算共分为两个部分:首先根据我国《混凝土结构设计规范》的附录G部分,对承台梁的承载力进行计算;然后是建立拉压杆模型对承载力进行计算。
3.1.1设计资料
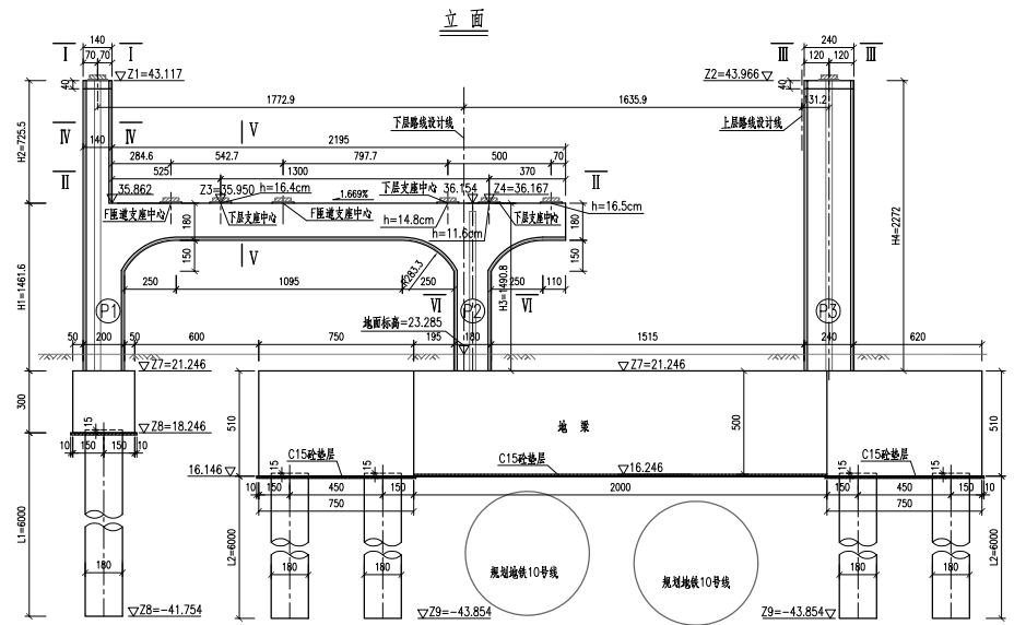
1)桥跨结构的设计资料:宝丰路硚口路段号桥墩承台,结构形式是钢板箱形梁,单跨桥的计算跨径为,单向四车道,桥面宽度为。

 ;
 ;
 ;
b)汽车荷载:
公路Ⅰ级
2)桥墩设计资料:
 
 
	
 
 
 
 
  

图3.1 桥墩尺寸图
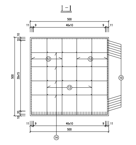
3)梁式承台的设计资料
 
 

图3.2 梁式承台钢筋布置图

图3.3 钢筋数量表
3.1.2内力计算
- 计算集中力大小
 - 荷载分析:
 
 
 
 
- 钢箱梁恒载:作用于钢箱梁的全部荷载集度
 
 
作用于号桥墩的集中力(按一跨桥梁进行取值)
以上是毕业论文大纲或资料介绍,该课题完整毕业论文、开题报告、任务书、程序设计、图纸设计等资料请添加微信获取,微信号:bysjorg。
相关图片展示:








        
            
