大桥悬浇施工中挂蓝受力分析毕业论文
2020-04-12 16:46:53
摘 要
随着最近十几年国家对基础设施的大力投资,桥梁建造业得到飞跃式发展,桥梁的施工工艺难度也在不断提升,逐渐向大跨度方向、高技术方向发展。大跨度预应力混凝土连续梁桥就是在适应时代发展需求的基础上设计而出现的。目前大跨度预应力混凝土连续梁桥施工一般常采用悬臂挂篮浇筑施工,施工技术要求高,安全系数要求较高,施工的工程质量受到各个施工工序的影响。
本文以马埠头大桥的具体工程为背景,通过分析马埠头大桥挂蓝图纸,简化计算模型,把空间结构等效(或近似等效)成平面结构,利用三大力学(即理论力学、材料力学和结构力学)等相关力学知识求出精确解,计算出各主要构件的受力情况与变形挠度,并利用梁单元和杆单元建立挂篮有限元模型,通过Midas/Civil软件进行空间仿真分析,对施工挂篮在施工承载过程中各个主要构件的强度、变形和结构稳定性进行验算。通过对两种计算方法的对比分析得到施工挂蓝所受的力与变形,其结果能够指导挂篮的工艺设计,增加施工进度,降低施工成本,从而达到施工安全可靠,经济合理。
关键字:挂篮;简化计算模型;有限元模型;受力;变形
Abstract
With the country's vigorous investment in infrastructure in recent years, the bridge construction industry has experienced rapid leaps and developments, and the construction technology of bridges has also been increasingly difficult, and it has gradually developed in the direction of large-span and high-tech. The large-span prestressed concrete continuous beam bridge is designed based on the needs of the development of the times. At present, the construction of long-span prestressed concrete continuous girder bridges is usually carried out by cantilevered blue cast construction. The technical requirements are high and the safety factor is relatively high. The quality of construction projects is affected by various construction processes.
In this paper, taking the specific project of Mabutou Bridge as the background, through the analysis of Mabuou Bridge hanging blue drawings, the calculation model is simplified, the space structure is equivalent (or nearly equivalent) into a plane structure, and the related mechanics knowledge of materials mechanics, structural mechanics, etc. The exact solution is calculated, and the stress and deflection of each major component are calculated. The finite element model of the hanging basket is established by using the beam element and the rod element, and the space simulation analysis is performed by Midas/Civil software. The construction hanging basket is in the process of construction carrying. The strength, deformation and structural stability of each major component are checked. Through comparison and analysis of the two calculation methods, the stress and deformation of the construction hanging blue can be obtained. The results can guide the process design of the hanging basket, increase the construction progress, reduce the construction cost, and achieve safe, reliable and economical construction.
Key Words:Hanging basket; Simplified calculation model; Finite element model; Force; Deformation
目 录
第1章 绪论 1
1.1 前言 1
1.2挂篮的结构构造和力学分析、分类及结构特点 1
1.2.1 常用挂篮的结构构造和力学分析 1
1.2.2 挂篮的分类 3
1.2.3 几种挂篮结构的主要特点 3
1.3挂篮发展方向 6
1.4挂篮的设计要求 6
1.5本文的研究内容、途径、目的及意义 7
1.5.1 研究内容 7
1.5.2 研究途径 7
1.5.3 研究目的 8
1.5.4 研究意义 8
第2章 挂篮计算分析的理论基础 9
2.1挂篮的结构计算 9
2.2计算依据 9
2.2.1 计算的原则 9
2.2.2 计算依据及参考资料 9
2.3工程概况 9
2.4挂篮设计 10
2.4.1 主要技术参数 10
2.4.2 挂篮构造 10
2.4.3 挂篮计算设计荷载及组合 11
第3章 挂篮主要构造受力与变形分析 14
3.1挂篮底篮的纵梁受力与变形 14
3.1.1 底板下纵梁受力计算 14
3.1.2 腹板下纵梁受力计算 15
3.2底篮下横梁受力检算 16
3.2.1 底篮下前横梁受力检算 16
3.2.2 底篮下后横梁受力检算 17
3.3外滑梁的计算 20
3.4内滑梁纵梁计算 20
3.4.1 悬臂浇筑施工时 20
3.4.2 移篮时: 21
3.5菱形挂篮前上横梁受力检算 21
3.5.1 荷载分析 22
3.5.2 受力检算 22
3.6吊带计算 23
3.7挂篮主桁计算 23
3.7.1 主桁受力计算 23
3.7.2 杆件强度计算 25
3.8主桁架后锚梁计算 26
3.9挂篮走行时抗倾覆计算 27
3.10本章小结 28
第4章 主要构造有限元分析 29
4.1有限元模型的建立与求解 29
4.1.1 有限元模型的建立 29
4.1.2 有限元的求解 29
4.2主要构造云图分析 29
4.2.1 主构架检算 30
4.2.2 前上横梁检算 30
4.2.3 横联检算 31
4.2.4 前托梁检算 32
4.2.5 后托梁检算 34
4.2.6 底板下底纵梁检算 36
4.2.7 腹板下底纵梁检算 37
4.2.8 外滑梁检算 38
4.2.9 吊杆检算 40
4.2.10 挂篮走行时挂篮构建检算 41
4.3本章小结 42
第5章 结论 42
参考文献 44
致谢 46
第1章 绪论
- 前言
自从上世纪60年代悬臂浇筑施工由西德首次使用以来,已经成为建造大中跨度桥梁的有效施工方法。日本预应力混凝土工业协会开发的预应力混凝土桥梁调查报告指出,1972年后建成的有近200座跨度大于100米的桥梁,其中超过87%是使用悬臂法建造的桥梁,而悬臂浇筑施工约占80%。挂篮用作悬臂浇筑施工的主要设备有很多种类。一些国家,如日本和法国,已经建立了定性系列。自80年代中国开始使用这项技术以来,也已取得了巨大成就。作为一种可以沿着轨道行走的活动脚手架,挂篮的工作原理是将梁端的荷载施加到已经建成的梁体结构上,避免了在脚手架施工,为跨海、峡谷等恶劣条件下的悬臂现浇施工提供了方便。
挂篮是悬臂浇筑施工的主要器具,它是一个能在已浇筑梁端上滑动或滚动的承重结构,其悬挂锚固在已经施工好的箱梁梁段上,梁段现浇施工时在挂篮上进行箱梁的模板安装、管道安设、钢筋绑扎、混凝土灌注、预应力张拉、压浆等工作。当一个梁段的施工完成后,待其达到一定的强度时,挂篮解除后锚,前移并固定,进行下一梁段的悬灌,如此循环直至悬臂灌注完成。由于梁段的施工过程在挂篮上进行又系高空作业,且为梁段的承重结构,所以挂篮的设置除应保证强度安全可靠外,还应满足变形小、行走方便、锚固、装卸容易以及各项施工作业的操作要求,并注意安全防护设施。因此对施工挂篮的受力与变形分析具有重要的意义。
- 挂篮的结构构造和力学分析、分类及结构特点
- 常用挂篮的结构构造和力学分析
- 挂篮的结构构造和力学分析、分类及结构特点
菱形挂篮和三角形挂篮
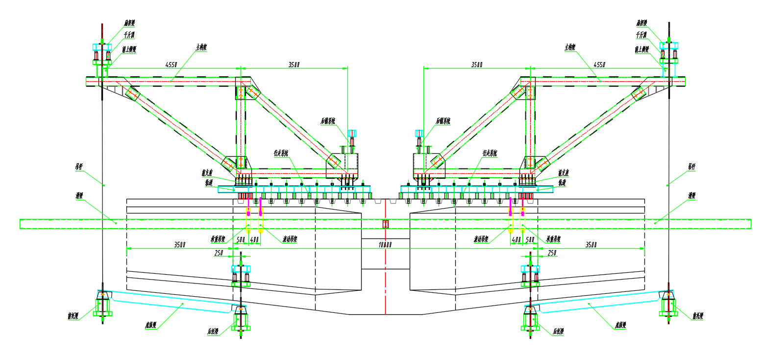
(1)菱形挂篮的结构及构造[1]
菱形挂篮主要由菱形桁架、悬吊系统、走行系统、模板系统及张拉操作平台五部分组成。
①菱形桁架
以上是毕业论文大纲或资料介绍,该课题完整毕业论文、开题报告、任务书、程序设计、图纸设计等资料请添加微信获取,微信号:bysjorg。
相关图片展示:









