水工码头结构病害分析及补强研究毕业论文
2020-04-03 13:13:26
摘 要
水工码头的主要结构形式是钢筋混凝土结构。然而因为各种病害以及缺乏有效的维护手段,钢筋混凝土结构往往在达到设计年限使用之前,就会出现各种破损。特别是水工建筑物长期暴露在海水海浪等恶劣条件下,相比普通的钢筋混凝土结构更容易产生病害。这些病害轻则减少码头寿命且需要耗费大量人力、物力进行维修,重则会直接危害水工码头结构的安全性,造成经济损失与重大安全责任事故。
本文主要研究了水工码头结构物的病害种类,并将病害进行系统分类,分析引起结构病害的具体原因。同时提出了使用碳纤维布加固钢筋混凝土梁的方法,及加固后的梁抗弯承载力公式。最后通过对一座码头纵梁和横梁的实例的计算,分析具体的处理病害的方法。
关键词:钢筋混凝土;病害;碳纤维布;裂缝;锈蚀
Abstract
The main structural form of hydraulic wharf is reinforced concrete structure. However, due to various diseases and lack of effective maintenance measures, reinforced concrete structures often have various breakages before reaching the design life. In particular, hydraulic structures are exposed to harsh conditions such as seawater and waves for a long time, which are more prone to disease than ordinary reinforced concrete structures. These diseases reduce the life of the wharf and need to spend a lot of manpower and material resources for maintenance. The worse situation will directly harm the safety of the structure of the hydraulic wharf, and cause economic losses and major safety liability accidents.
This paper mainly studies the disease types of hydraulic wharf structures, and classifications of diseases, and analyzes the specific causes of structural diseases. At the same time, the method of strengthening RC beams with CFRP and the formula of flexural bearing capacity of reinforced beams are put forward. Finally, through the calculation of an example of a pier longitudinal beam and crossbeam, the specific methods for dealing with the disease are analyzed.
Key Words:Reinforced concrete; terminal disease; CFRP; crack; corrosion.
目 录
第1章 绪论 1
1.1 研究背景 1
1.2 国内外研究背景 5
1.2.1 国内研究背景 5
1.2.2 国外研究背景 6
1.3 本文所做的主要工作 6
第2章 病害分类、机理及解决方法 8
2.1 混凝土病害 8
2.1.1 裂缝、膨胀、脱落 8
2.1.2 碱骨料反应 9
2.1.3 混凝土碳化 10
2.1.4 冻融循环 10
2.2 钢筋的锈蚀 11
2.3 本章小结 13
第3章 碳纤维布加固钢筋混凝土结构 14
3.1 碳纤维布使用背景 14
3.2 计算假设 14
3.3 完好的梁的应力状态 15
3.4 有裂缝的梁的应力状态 15
3.5 碳纤维补强的梁的应力状态 18
3.5.1 受压区混凝土被压碎、碳纤维布被拉断时的应变 19
3.5.2 受压区混凝土被压碎、受拉筋被拉断时的应变 20
3.5.3 受压区混凝土被压碎、碳纤维布被拉断时的应力 20
3.5.4 受压区混凝土被压碎、受拉筋被拉断时的应力 21
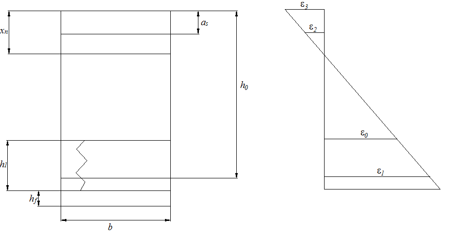
3.6 碳纤维补强的梁的正截面抗弯承载力公式 22
3.7 本章小结 23
第4章 病害处理方法实例 25
4.1 完好的纵梁的承载力分析 25
4.2 纵梁钢筋遭锈蚀后的承载能力 28
4.3 横梁的钢筋遭锈蚀后的处理方法 30
4.4 本章小结 32
第5章 总结与展望 33
参考文献 34
致谢 37
第一章 绪论
1.1研究背景
在经济全球化的当前世界格局下,港口作为宝贵的基础设施资源,有着促进国民经济发展、提高国家竞争力水平、优化产业结构等作用。随着国家“一带一路”政策的贯彻,港口将继续扮演着至
关重要的角色,如图1.1所示,可以说港口是进一步扩大对外开放和带动中西部协调发展的重要依托。2006年上海港完成货物年吞吐量4.7亿吨,成为世界第一大港口。图1.2为15-17年中国港口内贸、外贸吞吐量增长情况,2017年全国规模以上港口完成货物吞吐量126亿吨以上,同比增长6.4%。因此水工码头作为港口的重要组成部分,对其稳定性的研究也越来越受到重视,若无法保障港口水工建筑物的耐久性,港口的安全生产也就无从谈起。

图1.1 世界主要港口和航线示意图

图1.2 15-17年中国港口内贸、外贸吞吐量增长情况
但是,水工码头的主要结构形式是钢筋混凝土结构。钢筋混凝土具有坚固耐久成本低等优点,被普遍应用于水工码头的建设中。然而因为各种病害以及缺乏有效的维护手段,钢筋混凝土结构往往在达到设计年限使用之前,就会出现各种破损。特别是水工建筑物长期暴露在海水海浪等恶劣条件下,相比普通的钢筋混凝土结构更容易产生病害。这些病害轻则减少码头寿命且需要耗费大量人力物力进行维修,重则会直接危害水工码头结构的安全性,造成经济损失与重大安全责任事故。
我国大多数码头水工设施主要建于上世纪七八十年代,由于当时设计经验不足,现如今都在长期使用中产生了各种各样的病害[1-7]。水工码头的板梁结构往往不到10年就普遍出现钢筋锈蚀、混凝土剥落等情况,并日益加剧。例如,童保全等1984年调查浙江沿海使用仅7年到十余年的22座钢筋混凝土水闸(构件共 967件),钢筋腐蚀使混凝土顺筋胀裂、剥落甚至钢筋锈断的构件占56%。惠州九十年代所建一座万吨级油码头,于7年后便发现了严重的结构病害:纵梁混凝土保护层严重开裂,钢筋大部分锈蚀、外露,不得不于2001年末,停产3个月大修,龄期仅8年。江苏省水科所对华东84座沿海混凝土挡潮闸进行了调查, 钢筋锈蚀严重需要维修或大修的为71座,其中有些挡潮闸胸墙、启闭机工作桥大梁钢筋已经锈断。2001年河海大学对某港的堤坝钢筋混凝土护栏实地调查后发现,该工程虽然投入使用不到4年,却已出现严重钢筋锈蚀、保护层开裂、混凝土剥落和钢筋锈断。图1.3为宁波某海港码头破坏情况。

图1.3 宁波某海港码头破坏情况
连接珠海情侣路与野狸岛的海燕桥,全长300余米,于1997年正式建成,2003年正式启用,2003年养护中发现该桥桥墩产生大量的顺筋膨胀、部分混凝土剥离,随即限载通行。打掉剥离的混凝土保护层,混凝土的钢筋主筋锈蚀严重,如图1.4所示。而箍筋亦锈蚀断落,基本丧失原有作用,墩柱混凝土内部也存在缺陷,墩柱混凝土表层存在分层剥离现象。

图1.4 海燕桥底部外露且锈蚀的钢筋
在2015年湛江某板桩码头的码头腐蚀调查与分析中,该码头纵梁面板并无多少破坏,但横梁、轨道梁出现了诸多裂缝,且集中在梁底面及底面以上30cm 内的两侧,如图1.6所示。桩帽出现了大量裂缝,其钢筋也锈迹斑斑,如图1.7所示,个别纵梁的底部甚至能看到外露的箍筋,横梁肩台部与局部边角也有脱空的现象。


图1.6轨道梁侧面的裂缝 图1.7 桩帽大面积锈斑
在2015年的八所港矿砂码头混凝土腐蚀现状分析中,混凝土的破损有着多种多样的形式,随着钢筋的腐蚀,混凝土表面产生了与混凝土内部的钢筋基本平行的顺筋裂缝。或因钢筋生锈而引起保护层鼓起、层裂。部分混凝土构件甚至出现了严重的开裂剥落和钢筋外露、锈断等现象。而混凝土的胀裂是沿着锈蚀筋而产生的,锈蚀筋主筋底部的混凝土保护层早已剥落,还有部分混凝土沿着箍筋胀裂如图1.8及1.9所示。钢筋表面亦出现不同大小的蚀坑。


图1.8混凝土梁保护层胀裂或脱落 图1.9混凝土柱的纵向裂缝
综上所述,现如今我国大多数水工建筑物都存在病害威胁,若没有合理的对策,会对钢筋混凝土结构造成重大威胁并给社会带来重大经济损失。目前水工结构码头的病害已成为世界性重点研究课题,随着我国经济的高速增长,越来越多的水工建筑物正在建成或投入使用,病害问题亟需合理有效的解决方案。
因此本文就水工码头结构的病害分析及补强做出了相关研究。
1.2国内外研究背景
1.2.1国内研究背景
我国从60年代就开始了对钢筋混凝土结构耐久性的研究。但关于水工建筑物的病害的研究起步较晚,在80年代才开始有大范围的研究。陆文海于1985年著作了《水工建筑物病害处理一书》[9],从石土坝的病害处理到渠系工程的病害处理都有完整研究。2000年后,关于水工码头建筑物的病害机理及其应对策略的研究产生了井喷式增长,这与我国经济的发展有着密不可分的关系。2001年出版的《水工建混凝土病害评估与修补文集》[10]涵盖了17个工程实例,从检测评估、修补材料及工艺三个方面论述了当时的水工建筑物病害处理技术,并对未来的进展作出了展望。2015年范旭征博和曹鑫就高桩码头结构的病害分析及施工的质量控制进行了详细探讨[11],提出了许多合理有效的质量控制措施。2016年郑建文从水工建筑物种类的角度出发,分析了各种病害类型并提出了有效的治理措施[12]。在水工建筑物越来越受到重视的趋势下,近年来更多关于这方面的论文也涌现而出, 每年也有大量水工建筑物的病害分析及技术在期刊上发表。
1.2.2国外研究背景
国外从上个世纪早期就开始了对混凝土结构腐蚀问题的探索。国际材料与结构实验协会(RILEM)于上世纪60年代还专门成立了混凝土钢筋锈蚀技术委员会(CRC)。2006年Munteanu V F通过对一座蓄水大坝裂缝的研究[13],解释了钢筋混凝土与水源相互充当阴极与阳极的关系从而使混凝土内钢筋发生锈蚀,损害钢筋混凝土结构的机理。 2011年Ren ZJ, Wang T, Wei LU 等人通过对青岛董家口港区的调查,研究了水工建筑物的特点与演变[14]。2012年Xie M, Tang JY 对水工建筑物基础的病害的种类以及成因作出了详细研究[15]。2015年Glass G, Davison N, Roberts A提出了一种牺牲阳极的阴极保护法[16],从化学角度出发,通过将牺牲的阳极连接至海水以减少钢筋的腐蚀。2014年Wang Xin等人将从流体力学方面研究了水流对水工建筑的影响[17]。2015年Yang Guangming等人通过采矿技术数据进行水工建筑物的健康诊断,有效地将两者联系起来,提供了水工建筑物的健康诊断的新思路和基础[18]。
1.3本文所做的主要工作
针对水工码头结构的病害分析及补强本文所做的主要工作为以下内容:
(1)调查阅国内外参考文献和资料,了解水工码头混凝土结构的病害情况以及其危害。如上文所述,我国大部分水工建筑物都有病害问题,因此水工码头病害问题已引起普遍关注并成为水工建筑物稳定性研究的重点研究课题。
(2)将水工结构的病害进行系统分类,分析引起结构病害的具体原因。目前已知的水工结构病害类型如表1.1所示。
表1.1 水工结构病害分析
结构部分 | 病害问题 | |||
混凝土保护层 | 开裂 | 膨胀 | 剥落 | |
混凝土板、梁 | 裂缝 | 分层剥离 | 碱-骨料反应 | 混凝土表面缺陷 |
混凝土墩、柱 | 裂缝 | 碳化 | 碱-骨料反应 | 冻融 |
箍筋 | 锈斑 | 外露 | 锈断 | |
钢筋 | 锈斑 | 锈断 | ||
(3)提出用碳纤维布加固钢筋混凝土结构的方案,根据碳纤维的加固机理,提出新的加固梁抗弯承载力计算方法。碳纤维布具有耐腐蚀、重量轻,且方便施工等特性。用碳纤维布加固混凝土梁后,将碳纤维布与钢筋混凝土梁看作一个整体,加大了梁的截面积,弥补了诸如裂缝、剥落等病害的缺陷,相当于增加了混凝土的抗弯模量。通过重新计算计算截面的截面积、惯性矩、中和轴位置以及弹性模量从而得到新的抗弯模量。
(4)将得出的公式运用到实际的项目中,验证该公式的实用性。通过先计算钢筋混凝土梁残余承载力,即使用碳纤维布加固前钢筋混凝土梁在自重及恒载的作用下要产生破坏所需的弯矩。再计算使用碳纤维布加固后,梁在工作荷载的作用下,产生破坏所需要的弯矩,两者相减即是新的加固梁抗弯承载力。
第二章 病害分类、机理及解决方法
本章将对钢筋混凝土水工结构物的主要病害进行系统分类,主要分为混凝土病害和钢筋的锈蚀。同时分析这些病害产生的原因及其机理,并列举出一些解决这些病害的方法。
2.1混凝土病害
2.1.1裂缝、膨胀、脱落
开裂是最为常见的钢筋混凝土结构病害,伴随着裂缝而来的往往还有膨胀以及脱落。通常的破坏形态如图2.1所示。

图2.1开裂的混凝土保护层
混凝土产生裂缝的原因有很多种,一是由于设计或施工原因,导致本身混凝土保护层过薄,或是施工过程中,没有严格按照规范操作,导致混凝土保护层未能起到良好的保护作用,从而开裂以至剥落。二是钢筋锈蚀引起的开裂与膨胀[19]。

图2.2 钢筋锈蚀使混凝土开裂过程图
如图2.2所示,当钢筋生锈后,钢筋会膨胀挤压外层的混凝土,使混凝土裂开甚至脱落。三是由于外界环境作用,对于水工建筑物而言,风浪流的直接作用会导致混凝土保护层受损,海水中具有侵蚀作用的化学成分也会使钢筋锈蚀从而影响混凝土保护层。
处理裂缝的手段根据其破损程度也是多种的[20-21]。对于不影响内部结构的开裂,可以直接进行表面修补,包括水泥灌缝、嵌缝或环氧树脂喷涂以达到填充表面裂缝的目的。对于已经露出钢筋的部分,需要先清除铁锈,然后在去除与钢筋接触不严密的混凝土部分,最后经过清水冲洗和润湿后,用更高强度的混凝土填实。为了预防混凝土表面裂缝的产生,还可采用WHDF抗裂防水技术,通过促进水泥的水化程度以降低孔隙率,增强凝胶粘结力。
2.1.2碱骨料反应
碱骨料是指过烧生石灰,是水泥和石灰在高温煅烧时所产生的碱性废料,这种碱性骨料与空气中的水汽发生反应,会生成碱硅酸盐凝胶,同时还会吸水并引起膨胀,对混凝土造成破坏。图2.3和2.4为某钢筋混凝土排架厂房碱骨料反应导致混凝土脱落的情况[22]。


图2.3钢筋混凝土排架厂房碱骨料反应 图2.4碱骨料反应导致混凝土脱落
目前尚未有完全解决碱骨料反应的方法。可在水泥中加入一定比例的高活性偏高岭土与粉煤灰[23],能够消化硅酸盐水泥的水化产物,降低了水化产物的碱度,从而减少了碱骨料反应。对于已发生了碱骨料反应的部位,若已发生碱骨料反应部位较少,可凿除已发生反应的部位。
以上是毕业论文大纲或资料介绍,该课题完整毕业论文、开题报告、任务书、程序设计、图纸设计等资料请添加微信获取,微信号:bysjorg。
相关图片展示:









