低层格构轻钢小框架村镇住宅设计毕业论文
2020-02-17 01:20:55
摘 要
本论文主要讨论在湖北新农村住宅中,将轻钢框架中的格构柱换成方管柱的可行性。先讨论钢结构的优缺点和轻钢龙骨体系的优越性以及需要改进的地方,然后结合导师王小平教授所给出的设计概况,用天正CAD画出平立剖,进行结构施工图布置,进行荷载统计和内力分析算出选取框架的荷载,用有限元软件ABAQUS对所选取的框架进行建模,将上句所述的荷载输入模型并进行有限元计算。此新型农村住宅占地面积120m2,建筑面积324m2。标高6m,共两层,每层3m。场地类别为II类场地,基本风压取0.40KN/M。不上人屋顶。
在结构设计中,笔者先确定恒活荷载,通过结构布置图对框架的次梁尺寸进行大致估算,在其确定的最小高度以上结合经济高度选取一个合适的尺寸,再将此尺寸带回,算出框架次梁带给主梁的具体荷载,并统计发泡混凝土墙给楼面梁带来的荷载,再通过王小平教授估算的主梁、柱的尺寸得出其重力,这样所选取的某榀框架所承受的荷载就全部得出来了。将其结果导入ABAQUS有限元软件中进行计算,得出应力图,并最后得出结论。
关键词 建筑方案设计,结构设计,ABAQUS有限元软件建模
ABSTRACT
This paper mainly discusses the feasibility of replacing the Gering in the light steel frame with the square pipe string in the new rural residence in Hubei Province. This paper first discusses the advantages and disadvantages of steel structure and the superiority of light steel keel system and the need for improvement, and then combined with the design situation given by the tutor Professor Wang Xiaoping , the flat profile is drawn by the CAD , and the structure construction drawing is arranged, The load of the selection frame is calculated by load statistics and internal force analysis, and the selected frame is modeled by the finite element software ABAQUS, and the load input model described in the preceding sentence is calculated and the finite element calculation is carried out . This new countryside covers an areaof2m, with a construction area of 324m2. Elevation 6m, a total of two layers, 3m per layer. The site category IS Class II site, the basic wind pressure to take the 0.40kn/m. No, the roof of the humans.
In the structural design, the author first determines the constant live load, through the structure layout diagram of the frame of the secondary beam size of the approximate estimation, in its determination of the minimum height above the economic height of the selection of a suitable size, and then bring back this size, calculate the frame of the beam to the main beam of the specific load, and statistics of the foaming concrete wall to The gravity of the main beam and column estimated by Professor Wang Xiaoping is obtained, so that all the loads borne by the selected analytes frame are all available. The results are imported into the ABAQUS finite element software for calculation, and it is concluded that the effort should be made and the final conclusion is drawn.
Key words :architectural design,structural design,ABAQUS Finite element software modeling
目录
第一章 绪论 1
1.1引言 1
1.2轻钢龙骨体系概述 2
1.3轻钢结构在国际和国内的研究 3
1.4本文研究的内容简述 4
第二章 轻钢框架-加气混凝土墙体结构 5
2.1轻钢框架-加气混凝土结构简介 5
2.2 轻钢框架-加气混凝土砌块体系的墙体以及梁节点的做法 5
2.3 轻钢框架-加气混凝土体系墙体的做法 7
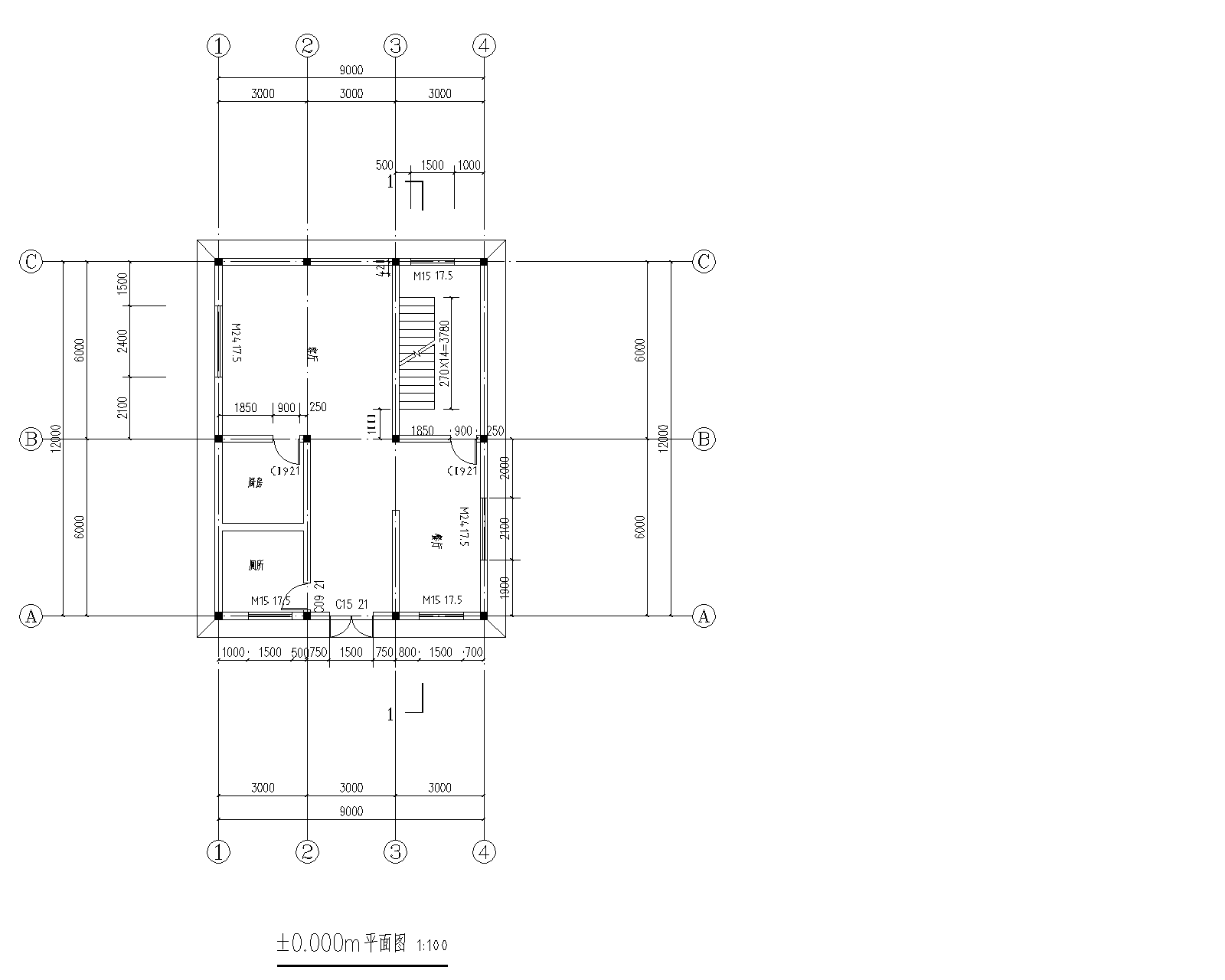
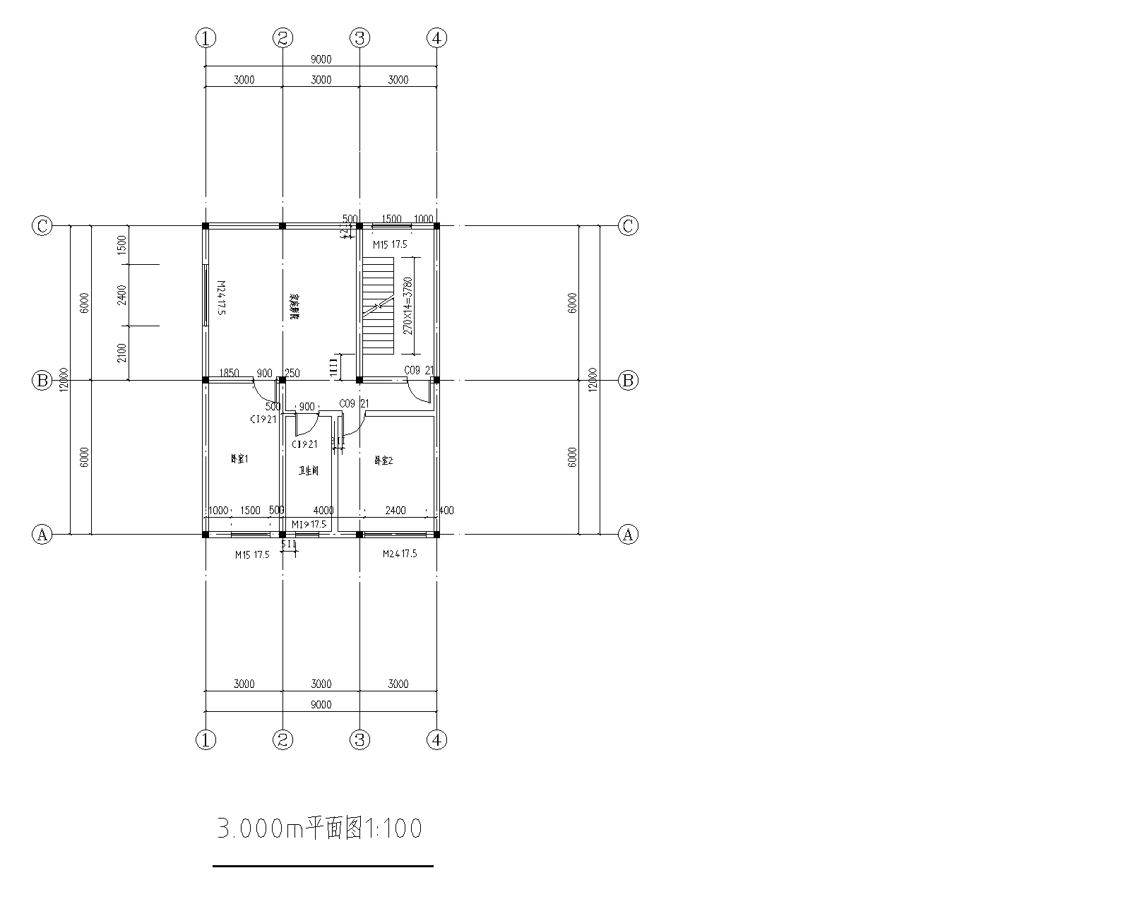
第三章 工程概况 9
3.1设计概况 9
3.2 本工程的建筑平面图和建筑立面图 10
3.3 主要构件选型及尺寸初步估算 17
3.3.1 主要构件选型 17
3.3.2 结构施工图布置 18
3.4 荷载统计 19
3.4.1恒载标准值计算: 19
A.平屋面 19
B.楼面 19
C.240厚墙面 19
3.4.2 活荷载标准值计算: 19
A.屋面和楼面的活荷载标准值 19
B.雪荷载的标准值计算 20
C.风荷载的标准值的计算 20
D.地震荷载 23
3.5梁截面的初选与内力计算 24
3.5.1 屋面次梁初选 24
3.5.2楼面次梁初选 28
3.5.3次梁承受的恒、活载作用标准值 33
3.5.4所选框架所承受的荷载 35
第四章 轻钢框架-加气混凝土墙体体系建模 37
4.1简化模型 37
4.2有限元软件ABAQUS的简述和建模方法 37
4.2.1 ABAQUS的简述 37
4.2.2 ABAQUS的建模方法 37
4.3此轻钢框架-加气混凝土墙体结构用有限元软件ABAQUS建模的具体步骤 38
4.3.1 部件(part) 38
4.3.2 材料特性(propotery) 39
4.3.3 装配(assemble) 40
4.3.4分析步(step) 42
4.3.5 相互作用(interaction) 45
4.3.6载荷(load) 47
4.3.7 网格(mesh) 49
4.3.8 分析作业(job) 51
4.3.9 结果分析 53
第五章 结论与展望 61
5.1 此论文结果分析 61
5.2 有待研究的问题 61
致谢 62
参考文献 64
第一章 绪论
1.1引言
钢材主要可以分为钢板、钢绞线、型钢,钢结构并不是完完全全都由钢材组成,也会有混凝土、砖石砌块等等其他的建筑材料构成,但是其用作承力的结构构件是由钢材组成的[1],它的特点是自重轻、强度高、塑性好(通过内力重分布可以大量节省材料)、加工方便(可以通过合理的焊接工艺在施工现场进行组拼)、耐性好(通过表面喷漆),但是其缺点我们也不能忽视并且要更加重视,比如钢结构会受温度很大的影响,到600摄氏度时其强度基本没有,911事件就是一个很好的例子,导致大楼倒塌的并不是飞机的冲击力而是其燃油燃烧导致局部温度过高,钢材丧失承载力,当温度过低时,钢材的强度虽然会增大但是其韧性会降低,也就是变脆,这时其抗冲击的能力就很差了。[1]钢结构也有一个很大的问题,那就是焊接处的应力集中[2]。应力集中和焊接的工艺有很大的关系。应力集中发生在内部缺陷处,在反复的荷载作用下,内部缺陷越来越大,最后导致破坏,所以应力集中是不可忽视的[4],虽然焊接时我们不能完全消除应力集中,但是我们可以采用某些措施,比如尽量采用平焊,避免仰焊,或者以机器代替人工加工。
新中国开国时,由于技术原因,不仅是钢铁产业需要大量的外国进口,工业血液石油也需大量进口,所以开国以后的一段时间内,钢铁产业相对于发达国家基本属于停滞,直到改革开放,这一现象才有所好转。改革开放以后,钢铁产业的蓬勃发展也给建筑领域的钢结构发展带来福音,但由于钢材价格的昂贵,钢结构建筑仍然没有普遍存在于中国的建筑行业。
直到21世纪,科技不断地发展,技术不断地创新,人们的生活方式也在不断地改变,对生活质量的要求不断地提高,我们从事的建筑行业也会发生前所未有的挑战和机遇,我们如何在传统建筑结构上进行改进和创新显得格外重要。在比较大众化的建筑结构中,在我们课本中也经常看到的结构,比如剪力墙结构体系,钢混框架结构,砌体结构等等[6],都会消耗大量的资源和产生巨大的污染,在给人类带来短期巨大收益的同时,也加快了环境不可逆的污染和地球能源的耗竭,同时由于民众环保意识的增强,这也慢慢地阻碍建筑行业的发展在中国,建筑垃圾占垃圾总量的百分之四十,当人们对建筑的要求变高时,社会的发展和环境因素产生相互制约,传统的建筑结构已经很难甚至不能符合时代潮流也不能在未来建筑结构中占有一席之地,如今新型结构体系如钢结构就能完美地解决上述问题。钢结构相比混凝土与砌体,优点显而易见,具有强度高,塑性韧性好,对疲劳荷载的承载性能也有很大的提升,因此更适合承受动力荷载比如地震作用,风荷载以及海洋工程中的抗海浪冲击等等,同时钢结构也具有自重轻,材料均质,制造和安装快捷,易回收等优点,但钢结构也有不可忽视的缺点,譬如抗高温能力不足,易腐蚀等缺点,但是这些缺点我们都可以轻易地解决,比如加隔热层和抗腐蚀层等等,总而言之,其缺点相对与优点很小很小,因此我认为,钢结构将成为未来建筑结构中的主体。但是从我国的国情来看,虽然产钢量位居世界前茅,但是用于建筑用钢占有的比例却很小,这也是制约了我国近期钢结构建筑发展的一个重要原因。但是在国家的最新政策中,政府强调了鼓励建筑行业使用钢结构的推广使用,这也意味着我国未来钢结构的发展将达到前所未有的高度。
建筑钢结构一般用于建筑物结构,同时亦可用于构筑物,围护结构[5]。建筑钢结构一般分为普通钢结构与轻钢结构。他们没有严格的定义,从经验上来说,轻钢结构一般用于由冷弯薄壁型钢,热轧轻型型钢,焊接轻型型钢,圆管方管矩形管,薄钢板所组成的结构。当厂房行车起吊重量大于二万五千千克,每平方用钢量大于五十千克,钢板厚度大于10毫米的结构我们通常采用重钢结构。

图:轻钢龙骨体系
1.2轻钢龙骨体系概述
轻钢龙骨体系是从木结构发展开来的,后来随着人们对生活质量的提高,木结构的耐火性和耐腐蚀性已经不能满足人们日益增长的物质与生活需求了,轻钢结构构件的材料开始从木头变成了冷弯薄壁型钢材,由钢板材、带材或扁钢用冷加工轧制而成。轻钢龙骨结构是结构板将密排的柱和梁相连而成的,他是一种绿色经济的建筑房屋方案。其优点和钢结构的优点基本相同,即质量轻,承载力高,工厂加工和现场施工方便等优点。
轻钢结构十九世纪中期就已出现在西方,上世纪六十年代只占有建筑市场的百分之十五,但是在上世纪九十十年代就开始在世界范围内(尤其是北美)的住宅楼占有一席之地,并且逐年增长。如今,轻钢结构在国外已经技术成熟,普遍应用。
钢结构最先被引入中国的时候是十九世纪末期,由加拿大引进的。当时加拿大引进的是无比钢结构,和传统的钢结构相比,其将c型墙柱和楼面梁用v型冲压连接件,方管和自攻螺丝构件代替,在同等用钢量的基础上,承载力显著提高。到二十一世纪初,我国出现了格构轻钢结构,柱和梁均采用格构式,一般上下弦采用冷弯薄壁钢管[3]。格构式构件腹部空的,钢材集中于外部,相对于实腹式具有更强大的承载力。由于轻钢结构承载力大,刚度大,稳定性强且施工安装快捷方便,其多用于小型建筑,比如新农村小洋房,底层办公室住宅等等。
轻钢结构很早就被引入到我们国家,为何到21世纪初才渐渐被人们认可和大量使用呢?为何全国各地已遍及开来但规模仍然与国外有一定的差距呢?主要原因如下:第一 自身局限性:c型钢不利于抗震;外墙体不具有比较好的承载力导致的二次装修不太方便[12];用钢量较大,价格昂贵。第二 外部因素:国内轻钢结构规模没有搞起来,所以从事有关方面的专业人员也很少,所以技术落后,需要从国外订购,这也大大地增大了成本;与传统的建筑结构相比,钢结构的绿色环保的优势在之前并没有很好的考虑[13],人们只注重经济而不考虑环境,所以钢结构并不是很受人们喜爱;我国对钢结构性能的研究和改造技术还没有成熟,缺乏研究。
1.3轻钢结构在国际和国内的研究
在2014年举办的欧洲钢结构会议上,总计有479篇论文[14]。其中关于节点的有74篇,关于组合结构、结构抗火、结构抗震各有50篇左右,关于冷弯结构和稳定的论文有40篇左右,关于其他方面的论文相对较小,在此就不一一阐述。在关于节点设计时,我们需要考虑抗震性能、钢-混凝土组合节点、节点区加固、疲劳、新型节点构造、局部屈曲、高强螺栓等问题。矩形钢管梁柱连接节点有两种形式,一种是连接板上预焊螺母,另一种是梁上下翼缘开孔。在研究组合结构时,我们需要考虑抗震性能、剪力连接键、组合墙、组合梁、钢管混凝土结构、型钢混凝土结构、型钢混凝土墙、钢-木组合等等方面。在结构抗火的研究中时,我们需要考虑混凝土板薄膜效应、大空间火灾、约束构件抗火性能、高强钢高温材性、火灾下结构连续性倒塌、结构全过程抗火分析等问题[15]。其中值得注意的是大跨组合蜂窝梁广泛应用于大空间结构中,在火灾下会发生侧向屈曲。我们在研究结构抗震时,要研究关于屈曲约束支撑、带支撑框架、钢板剪力墙、结构振动控制与健康监测以及结构抗震等问题[10]。其中,关于抗震的新型耗能柱值得我们注意,其由型钢柱及其中间低屈服点钢剪力连接件,利用其屈服耗能,便于安装和拆换。在稳定的领域,我们需要考虑此类问题,比如梁的弯扭屈曲、初始缺陷、残余应力、钢板剪力墙稳定、柱的屈曲等因素。残余应力由制造或焊接时冷却不均匀所导致,其数值甚至可以接近或达到钢材屈服强度,对钢结构的稳定十分不利。初始缺陷对结构尤其是承受动力荷载时因为内部缺陷处的裂痕不断扩张慢慢相连最后破坏,危害极其严重,对构件的疲劳十分不利[9]。在柱的屈曲问题里面,选用截面的不一样最终也会导致屈曲方式的不一样,比如双轴对称截面(例如H型钢、方管、矩形管、圆管等等)通常发生弯曲失稳[10];比如单轴对称截面(上下翼缘长度不等的工字钢)易发生弯扭失稳;又比如特殊的十字型截面,变形会绕着中心轴转动,即通常发生扭转失稳。由螺栓锚固钢板提供平面外约束的支撑的新型全钢材屈曲约束支撑值得我们注意。
在国内,我国很晚引进轻钢结构,但是由于我国在轻钢结构方面的研究和技术相对于国外有很大的差距,所以轻钢结构在我国的发展比较缓慢,这种发展缓慢的现象直到二十一世纪初我国引入了现代化钢结构后才有有所好转。在二十世纪八十年代,由沈祖炎领导的团队对轴心受压单角钢开展了极限承载力的研究,在理论分析和试验分析后,画出了稳定系数和长细比的曲线,对世界关于角钢轴压承载力的研究产生了巨大的推动作用[7]。在2005年,西建科的由蒋璐领导的团队对高强冷弯薄壁型钢进行了大量的研究,将实验数据总结,发现当时的规范对高强度薄壁型钢并不能很好地结合。在2010年,武汉理工大学的王小平教授和万红霞教授领导的研究团队对轻钢龙骨组合墙体(由蒙皮支撑)开展了关于屈曲的试验,其研究成果对轻钢结构的发展具有重要的意义[8]。在2012年,以长安大学与兰州大学牵头领导的研究,对冷弯薄壁型钢组合墙体的轴压性能的研究产生了巨大的突破并得出了以下结论:1密排薄壁的墙架柱采用以密柱外覆墙板所组成的墙体后承载力提高显著。2轻质墙板采用不同的材料对密柱的计算长度有影响从而导致对承载力的提高也各所不同。
1.4本文研究的内容简述
本文首先利用天正CAD软件,先对平立剖进行设计,然后建筑施工图并且在老师的指导和修正下改进。然后统计荷载使用ABAQUS软件建模进行计算和校核。最后写出感想完成小结。
第二章 轻钢框架-加气混凝土墙体结构
2.1轻钢框架-加气混凝土结构简介
前一章介绍的轻钢房屋体系是目前小型住宅的理想结构之一,传统的轻钢结构墙体尽管有很多优点(在上一章已经阐述),但其二次装修的不便性以及感官上的不安全性可以说是此结构类型使用方面的最大弊病,也成为了其发展的瓶颈。为了改善其缺点,本文将探讨可以有效解决上述两缺点的新型墙体-加气混凝土墙体。这种墙体强度高,刚度大,有利于二次装修和居民所谓的安全感。其造价也传承了轻钢龙骨墙体经济适用的优点,舒适度也和轻钢龙骨墙体不分伯仲。由于加气混凝土墙体的加入,整个结构的刚度、承载力有明显的增大,周期相对减小,在用料上,框架的用钢量可以减少。但是国内外在此领域上缺乏研究,所以本文将重点对此结构进行讨论。
本文研究的组合墙体用于两层的农村住宅当中,每层框架由三米高的方柱,六米长的桁架梁组成,大致模型图如下。方柱的截面为200×200,厚度由后续计算而定,先取厚度为6毫米。梁用方管钢组成,桁架节点用U型连接件连接。梁和柱的连接选用铰接。具体做法下节将会仔细阐述。
以上是毕业论文大纲或资料介绍,该课题完整毕业论文、开题报告、任务书、程序设计、图纸设计等资料请添加微信获取,微信号:bysjorg。
相关图片展示:









