(21.5 2×27 18)m预应力砼现浇连续箱梁桥施工图设计毕业论文
2020-02-17 00:36:28
摘 要
本毕业设计题目为18 2×27 21.5m预应力混凝土现浇连续箱梁桥施工图设计,以广开高速上某联左幅为4跨连续的预应力混凝土箱梁桥为背景。由于预应力混凝土连续箱梁具有施工周期短、稳定性和抗裂性好等优点,所以拟采用预应力混凝土连续箱梁作为桥梁上部结构的主体。
本次设计上部结构部分首先通过桥梁方案比选确定主梁的结构和拟定尺寸;然后利用Madis建立模型,进行运行分析,读取内力计算结果,进而布置预应力钢束并进行预应力损失的计算;最后进行PSC验算,检验各截面应力值。
下部结构部分考虑上部结构计算结果、桥梁结构和地质条件选用圆形桥墩与摩擦型桩,主要进行盖梁、桥墩和桩基础的设计、计算和验算。
经过计算结果分析表明,本次设计的桥梁内力分布合理,符合相关规范要求。
关键词:预应力混凝土连续箱梁桥;Midas建模;预应力钢筋;结构分析
Abstract
This graduation project is about the construction drawing design of 18 2×27 21.5m cast-in-situ prestressed concrete continuous box girder bridge. The background of this graduation project is a 4-span continuous prestressed concrete box girder bridge on Guangkai Expressway. Because of the advantages of short construction period, good stability and crack resistance, the prestressed concrete continuous box girder is proposed as the main body of the superstructure of the bridge.
In the upper structure part of this design, firstly, the structure and size of the main girder are determined by comparing the bridge schemes; secondly, Madis is used to establish the model, carry out operation analysis, read the internal force calculation results, then arrange the prestressing steel bundles and calculate the prestressing loss; finally, PSC checking is carried out to check the stress values of each section.
In the lower part, circular piers and frictional piles are selected to take account of the calculation results of the upper structure, bridge structure and geological conditions. The design, calculation and checking of cap beams, piers and pile foundations are mainly carried out.
The analysis of calculation results shows that the internal force distribution of the bridge designed in this paper is reasonable and meets the requirements of relevant codes.
Key words: Prestressed concrete continuous box girder bridge; Midas modeling; Prestressed steel bar; Structural analysis
目录
第1章 绪论 1
1.1预应力混凝土连续箱梁桥的发展 1
1.2选题设计思想及意义 1
第2章 桥梁方案设计 3
2.1桥梁方案比选 3
2.2桥梁线性布置 5
2.3技术标准与设计规范 5
2.4技术指标 6
2.5主要材料 6
2.5.1混凝土 6
2.5.2钢材 6
2.6结构尺寸的设计 6
2.6.1梁高的初步确定 6
2.6.2截面类型的确定 7
2.6.3截面细部尺寸的选择 7
第3章 midas/civil建模 9
3.1 midas/civil建模过程 9
3.1.1设定操作环境 9
3.1.2定义材料 10
3.1.3定义截面 10
3.1.4定义变截面/变截面组 11
3.1.5建立节点 13
3.1.6建立单元 13
3.1.7定义时间依存性材料 14
3.1.8定义边界条件及边界组 14
3.1.9定义静力荷载工况 15
3.1.10定义移动荷载工况 15
3.1.11定义结构组 16
3.1.12定义荷载组 17
3.1.13定义施工阶段 17
3.1.14生成荷载组合 18
3.2 Midas/Civil分析过程 19
第4章 主梁内力计算 21
4.1恒载内力计算 21
4.2活载内力计算 22
4.3温度作用下内力计算 24
4.4支座沉降作用下内力计算 30
4.5收缩荷载作用下内力计算 32
4.6徐变荷载作用下内力计算 33
4.7内力组合 35
第5章 预应力钢筋设计 41
5.1.纵向预应力筋估算 41
5.2 预应力筋的布置 46
5.3预应力次内力 49
第6章 预应力损失计算 51
6.1预应力钢筋与管道壁之间的摩擦
51
6.2锚具变形、钢筋回缩和接缝压缩
51
6.3预应力钢筋与台座之间的温差
52
6.4混凝土的弹性压缩
52
6.5预应力钢筋的应力松驰
52
6.6混凝土的收缩徐变
53
6.7预应力损失计算结果 54
第7章 主要截面的验算 62
7.1施工阶段正截面法向应力验算 62
7.2受拉区钢筋的拉应力验算 63
7.3使用阶段正截面抗裂验算 65
7.4使用阶段斜截面抗裂验算 66
7.5使用阶段正截面压应力验算 67
7.6使用阶段斜截面主压应力验算 68
7.7使用阶段正截面抗弯验算 69
7.8使用阶段斜截面抗剪验算 71
第8章 盖梁的设计与验算 73
8.1盖梁内力计算 73
8.2配筋计算 74
8.2.1弯矩作用下正截面配筋计算 74
8.2.2剪力作用时配筋计算 74
8.3抗裂验算 74
第9章 桥墩计算 77
9.1荷载计算 77
9.2截面配筋计算 78
9.3墩柱截面承载力验算 79
第10章 钻孔灌注桩的计算 81
10.1荷载计算 81
10.2桩长计算 81
10.3桩的内力及位移计算 82
10.3.1基本假定 82
10.3.2桩的计算宽度 83
10.3.3桩的变形系数 83
10.3.4计算最大冲刷线处桩身弯矩、水平力及轴向力 83
10.3.5最大冲刷线下深度Z处桩截面上的弯矩及水平压应力 84
10.3.6桩顶纵向水平位移验算 86
10.4桩身截面配筋的计算 87
10.5桩的截面承载力验算 89
参考文献 90
第1章 绪论
毕业设计是本科生培养计划中的一个重要组成部分。它能够培养学生综合分析和解决问题的能力、独立工作能力、组织管理和社交能力,对于增强责任感,提高毕业生全面素质具有重要意义。是学生学习、研究与实践成果的全面总结;是全面检验学生综合素质与工程实践能力的方法。
通过进行毕业设计,我们可以培养自己的综合分析和解决问题的能力、独立工作能力、组织管理和社交能力。有效提升自己对工程报告、设计文件的编写过程的熟悉程度。充分了解国内外各种桥梁的现状和发展趋势,提高计算、绘图的能力,能够熟练地查阅文献和使用规范手册,确保我们对于CAD、MIDAS等计算机辅助软件运用的能力得到很大的提升,为将来走向工作岗位打下良好的基础。
1.1预应力混凝土连续箱梁桥的发展
随着我国交通建设的快速发展,在中小跨径桥梁中使用连续箱梁结构的比重越来越大。连续梁是一种古老的结构体系,它具有变形小、结构刚度好、行车平顺舒适、伸缩缝少、养护简单、抗震能力强等优点。
箱型截面具有良好的结构性能,在现代各种桥梁中得到广泛应用。其主要优点是:顶板和底板部具有较大的混凝土面积,能有效地抵抗正负弯矩,并满足配筋的要求,适应具有正负弯矩的结构,如连续梁等;桥梁承受偏心荷载时,箱形截面梁抗扭刚度大,内力分布比较均匀;承重结构与传力结构相结合,使各部件共同受力,达到经济效果。
目前桥梁施工技术的逐渐成熟,各种具有现实意义的施工技术逐渐出现在人们的眼前,悬臂施工法、顶推法和逐跨施工法逐渐取代以前固定的满堂支架法,成为当代施工方法的主流。在连续梁的施工中,同时充分利用了预应力技术,预应力提前给混凝土施加压应力,从而可以使施工更加的安全可靠。连续箱梁桥的施工方法多种多样,我们要做到因时因地,根据安全经济、保证质量、降低造价、缩短工期等方面因素综合考虑选择。
1.2选题设计思想及意义
毕业设计是以广开高速上某联左幅为4跨连续的预应力混凝土箱梁桥为工程背景,进行设计尺寸拟定,采用箱形截面,须完成连续箱梁结构有限元模型建立,并进行连续箱梁结构有限元计算,包括主梁内力计算包括恒载和活载计算及内力组合,得出最不利情况,从而来确定预应力钢束的数量的布置位置。再通过对主梁截面几何特性的计算,从而进行钢束预应力损失估算,配筋完成后应对截面的强度与应力进行验算,主梁端部的局部承压强度验算,主梁变形验算等。下部结构设计包括桥墩和桩基的设计,盖梁、墩柱、桩基计算等,各部分构件都应进行内力和配筋计算及验算。
第2章 桥梁方案设计
2.1桥梁方案比选
本次设计是根据相关任务书的主要要求,结合设计桥梁所在地区的地形地貌的相关资料,并考虑到桥梁的相关设计原则如:适用性、舒适与安全性、经济性、先进性、美观性和实用性的一些要求。“安全可靠、适用耐久、经济合理、技术先进、环境保护和可持续发展”的基本原则必须考虑其中。
某联左幅四跨径布置为18 2×27 21.5m,设计汽车荷载为公路Ⅰ级;设计基准期是100年。目前常用的基本桥型体系包括:梁桥、拱桥、板××桥、梁拱组合桥、斜拉桥等。在满足安全施工的基本前提下,根据施工方便、造价经济、功能适用的主要选型原则,结合相关规定,现拟定以下三种桥型布置方案:
方案一:18 2×27 21.5m预应力混凝土连续箱梁桥
- 结构布置:采用单箱多室整体箱梁,该部分桥梁总长为93.5m。
- 上部结构设计:单侧桥宽16.25m。箱梁采用后张法预应力混凝土现浇,C50混凝土,梁高1.6m。
方案二:18 2×27 21.5m钢筋混凝土箱型拱桥
- 结构布置:采用箱型拱桥,桥梁全长93.5m。
- 上部结构设计:单侧桥宽16.25m。
方案三:18 2×27 21.5m预应力凝土T形刚构桥
- 结构布置:采用T形刚构结构,该部分桥梁总长为93.5m。
- 上部结构设计:单侧桥宽16.25m。主梁采用后张法预应力混凝土现浇,C50混凝土,梁高1.6m。
三种方案的具体比较见下表:
参考指标 | 方案一 | 方案二 | 方案三 | |
施工要求 | 施工方法 | 采用满堂支架法。施工时在桥梁底搭设支架,架设模板,全桥现浇混凝土,达到强度后张拉预应力钢束。 | 采用悬臂浇筑施工,用单悬臂-连续的施工程序:在桥墩两侧对称逐段就地浇筑混凝土,待混凝土达到一定强度后,张拉预应力筋,移动机具、模板继续施工。 | 采用悬臂施工法,由桥墩处开始浇筑,向两端跨中延伸,最后跨中合龙。 |
施工难易 | 结构简单施工技术成熟、先进,难度小。 | 已有成熟的工艺技术经验,需要大量的吊装设备。 | 技术较先进,工艺要求严格。 | |
施工效率 | 可实现平行施工,周期短。 | 占用施工场地多,需要劳力多。 | 梁体与桥墩不能同时施工,施工周期长,工序较复杂。 | |
景观要求 | 受力明确,结构简单,施工方便。 | 桥墩处箱梁根部建筑高度较大,桥梁美观欠佳。超静定结构,对地基要求高。 | 受力较合理,结构分析简单,造型美观。 | |
经济指标 | 施工方便,人工、材料、机械消耗省。 | 施工工艺相对简单,造价低,耗用钢材少,但水泥消耗大。 | 工艺要求严格,耗材较多,养护较麻烦。 | |
功能适用 | 一次成桥,无结构体系转化。适合城市运营,行车舒适可实现上下部空间的综合利用,检修方便 | 结构刚度大,变形小,支点截面将出现较大的负弯矩。伸缩缝少,抗震能力强,线条明快简洁。 | 属于静定结构,受力不如超静定结构好。桥面平整度易受悬臂挠度影响,行车条件稍差。 | |
综合比较,方案一优于方案二和方案三。
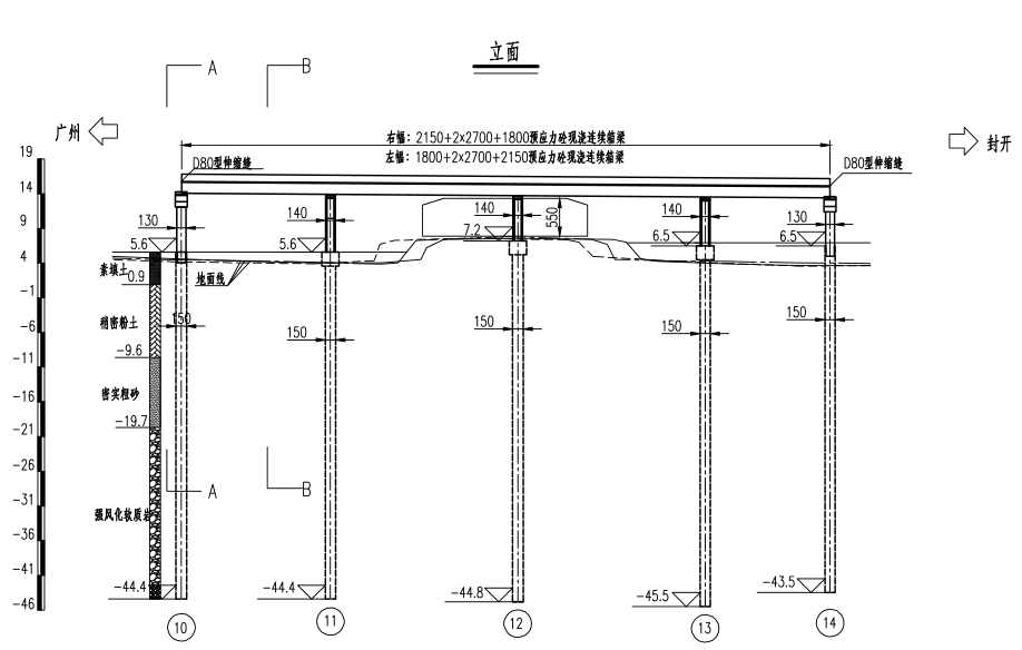
因此,该部分桥梁设计选用方案一。桥型方案为:采用单箱多室整体箱梁,单侧梁宽16.25m,桥跨布置为18 2×27 21.5m,该部分桥梁总长为93.5m。
2.2桥梁线性布置
全桥共长93.5m,一联四跨:(18 2×27 21.5)m,桥宽16.25m。桥型跨径布置见图 。

图2.1桥型布置图
2.3技术标准与设计规范
(1)中华人民共和国交通部标准《公路工程技术标准》JTG B01-2014。
(2)中华人民共和国交通部标准《公路桥涵设计通用规范》JTG D60-2015。
(3)中华人民共和国交通部标准《公路钢筋混凝土及预应力混凝土桥涵设计规范》JTG D62-2018。
(4)中华人民共和国交通部标准《公路桥涵地基与基础设计规范》JTG D63-2007。
(5)中华人民共和国交通部标准《公路抗震设计规范》JTG B02-2013。
(6)中华人民共和国交通部标准《公路桥涵施工技术规范》JTG/T F50-2011。
(7)中华人民共和国交通部标准《公路桥梁抗风设计规范》JTG/T D60-1-2004。
(8)华人民共和国交通部标准《公路工程水文勘测设计规范》JTG C30-2015。
(9)中华人民共和国交通部标准《公路交通安全设计技术规范》JTG D81-2006。
2.4技术指标
(1)道路等级:高速公路。
(2)主线桥标准桥宽为33m,0.5m护栏+15.25m行车道+0.5m护栏+2×0.25m分隔带 0.5m护栏+15.25m行车道+0.5m护栏。跨径:(18 2×27 21.5)m。
(3)梁高:梁高1.6m。
(4)桥梁设计基准期:100年。
(5)桥梁设计安全等级:一级。
以上是毕业论文大纲或资料介绍,该课题完整毕业论文、开题报告、任务书、程序设计、图纸设计等资料请添加微信获取,微信号:bysjorg。
相关图片展示:









