新义学校宿舍楼设计毕业论文
2020-02-17 00:12:30
摘 要
本计算书是针对武汉理工大学土木工程与建筑学院土木工程专业2015级毕业设计“新义学校宿舍楼设计”所做的书面成果。该宿舍楼为五层钢筋混凝土框架结构。
在“建筑设计”中,寻找了几个学校宿舍的建筑方案并从实用性、美观性、经济性等方面对他们进行比较,并由建筑指导老师杜文丽确定最终的方案,确定其具体的建筑平面构造、做法和材料。
在“结构设计”中,选择具有代表性的第⑥轴的横向框架作为本次手算的任务,然后计算其线刚度,根据其具体受到的荷载,包括恒荷载,活荷载,风荷载,地震作用,进行内力组合从而得出梁柱板各截面的控制内力,最后进行各构件的配筋计算。
此外,还进行了结构方案中的楼梯设计,完成梯段板,平台板,平台梁等构件的内力计算和配筋计算及施工图绘制。根据工程地质资料,结构采用独立基础
在结构设计过程中,前一个月的时间是使用建筑结构设计软件PKPM对整个结构进行建模计算,然后在后一个月的时间里选一榀具有代表性的框架进行手算完成计算书,这样既使自己掌握了PkPM软件的基本应用,又使自己对本科四年所学的东西有一个很好的回顾综合,并把手算与电算的结果进行对比,使自己对框架结构的受力有一个更明确的了解。
关键词:宿舍楼,钢筋混凝土框架结构,结构设计
Abstract
The written achievement which Xinyi School Dormitory Building design abstract this account book aims at Wuhan University of Technology civil engineering specialized 2015 level of graduation project . The dormitory is a five-story reinforced concrete frame structure.
In “Architectural Design”, I searched for the architectural schemes of several school dormitories and compared them in terms of practicality, aesthetics, economy, etc., and the architectural guide Du Wenli determined the final plan to determine its specific architectural plane. Construction, practices and materials.
In "Structural Design", select the representative 6th axis transverse frame as the task of this hand calculation, and then calculate its line stiffness, according to its specific load, including constant load, live load, wind load, earthquake The function is to combine the internal forces to obtain the control internal force of each section of the beam-column plate, and finally calculate the reinforcement of each component.
In addition, the stair design in the structural scheme was also carried out, and the internal force calculation, reinforcement calculation and construction drawing of the members of the step board, platform board and platform beam were completed. According to engineering geological data, the structure adopts an independent basis.
In the structural design process, the previous month was to use the building structure design software PkPM to model the entire structure, and then select a representative framework for the calculation of the calculation in the next month. Even if I have mastered the basic application of PkPM software, I have a good review and synthesis of what I have learned in the four years of undergraduate study, and compare the results of the calculation with the results of the computer to make myself feel the force of the frame structure. A clearer understanding.
key Word: dormitory building, reinforced concrete frame structure, structural desi
目录
1 绪论 1
2 设计资料 2
2.1 工程名称 2
2.2 工程概况 2
2.3 建筑等级 2
2.4 设计荷载 2
2.5 抗震设防 2
2.6 气象资料 2
2.7 地质资料 3
2.8 材料选用 3
3 结构选型 4
3.1 柱网布置 4
3.2 框架结构承重方案的选择 4
3.3 计算单元选取 4
3.4 梁、柱截面尺寸的初步估计 6
3.4.1 梁截面初选(⑥轴) 6
3.4.2 柱截面初选(⑥轴) 6
4 侧移刚度的计算 8
4.1 梁线刚度ib的计算(I=2I0) 8
4.2 柱线刚度ic的计算(I=I0) 8
4.3 相对线刚度计算 8
5 恒荷载作用下内力计算 10
5.1 恒荷载标准值计算 10
5.2 恒载作用下框架的所受荷载 11
5.2.1 框架梁的恒载 12
5.2.2 柱纵向集中恒荷载计算 16
5.3 恒载作用下框架的内力计算 17
6 活荷载标准值计算 26
6.1活荷载标准值 26
6.2活载作用下框架所受荷载 26
6.2.1 屋面与楼面活载 26
6.2.2 柱的集中力 29
6.3 活载作用下框架的内力计算 30
7 风荷载作用 37
7.1 风荷载标准值 37
7.2 侧移刚度D 38
7.3 风荷载作用下框架侧移计算 38
7.4 框架柱的剪力分配计算 39
7.5 框架柱反弯点高度的计算 41
7.6 框架柱端的剪力弯矩及梁端的弯矩计算 42
8 水平地震荷载作用 46
8.1 重力荷载代表值的计算 46
8.1.1 顶层重力荷载代表值 46
8.1.2 二~五层重力荷载代表值 46
8.1.3 底层重力荷载代表值 46
8.2 水平地震作用力的计算(基底剪力法) 47
8.3 水平地震作用下框架的侧移验算 48
8.4 水平地震作用下框架内力计算(D值法) 48
9 荷载和内力组合 53
9.1 横梁弯矩调幅 53
9.2 梁的内力组合 55
9.2.1 梁的内力组合计算 55
9.2.2 框架梁组合的剪力设计值 58
9.3 柱的内力组合表 60
9.3.1 柱的内力组合计算 60
9.3.2 柱的剪力设计值 63
10 框架梁、柱配筋 65
10.1 框架横梁配筋 65
10.2 框架柱配筋 69
11 板的配筋 74
11.1 双向板计算 74
11.1.1 荷载设计值 75
11.1.2 内力计算 75
12 楼梯设计 81
12.1 设计参数 81
12.2 楼梯板(LT-1)计算 81
12.3 平台板计算 82
12.4 梯段梁计算 83
13 基础设计 86
13.1 地基基础设计等级 86
13.2 确定基底尺寸 86
13.3 地基承载力验算 86
13.4 基础受冲切承载力验算 87
13.5 基础底板配筋计算 88
13.7 地基承载力验算 90
13.8 基础受冲切承载力验算 91
13.9 基础底板配筋计算 92
结束语 95
参考文献 96
致谢 97
1 绪论
土木工程是一门有着很强实践性质的学科,仅仅从书本上学来的只是初窥门径,只有真正使用过才算将其变为自己的。这次毕业设计就是对我们在大学中专业课程学习到的知识的一次综合使用。如今随着计算机的普及运用,各类程序的逐渐成熟,计算机在土木工程方面也有着很大的作用。绘制图纸,设计模型,计算结构稳定也更为简单。可电脑只会按照设定程序一步步计算,而其计算的结果是否真正合理,经济,计算的模型是否能够直接使用,这就需要人为的去验证、调整,这样就要求我们必须了解其计算方法和步骤。所以本次毕业设计不但要求我们学会使用PKPM的进行建模计算并自己配筋,还要手算一榀框架,进一步掌握所学的专业知识并融会贯通。
本次毕业设计的题目是新义学校宿舍楼设计,时间有三个半月。其中前一个月进行工地参观实习和参考资料绘制建筑平面图;中间一个半月用PKPM软件进行建模计算,并根据计算结果绘制梁板柱配筋图、楼梯平立面图、基础详图;后一个月便是进行手算一榀桁架并编写本计算书。具体为计算恒活风载和地震作用下结构的弯矩、剪力和轴力,并用多种内力组合方式进行组合,得出最不利组合,根据组合结果进行配筋及验算。除此之外还进行楼梯和基础的配筋计算。以上的设计和计算包含了大学四年里学到的绝大部分专业知识,将所有知识使用一遍,不会的弄懂,会的记熟,便能很好的完成本次毕业设计。
2 设计资料
2.1 工程名称
新义学校宿舍楼
2.2 工程概况
建筑共分为5层,每层层高均为3.6m,总高度18.4m。室内外高差600mm,一层室内设计标高±0.000。建筑占地面积为1218.24 m2,总面积为6091.2m2。
2.3 建筑等级
建筑物耐久等级为二级,耐火等级为二级,防水等级为二级。
2.4 设计荷载
基本风压:0.30kN/m2,采用50年一遇的风压值,地面粗糙度B类。
基本雪压:0.30kN/m2,采用50年一遇的雪压值。
2.5 抗震设防
本工程建筑抗震设防类别均为丙类,抗震设防烈度为6度,设计基本地震加速度值为0.05g,设计地震分组为第一组,场地土类型为中软场地土,建筑场地类别为II类,建筑的设计特征周期为0.35s。框架抗震等级为三级。
2.6 气象资料
(1)主导风向:夏季:东南风;冬季:东北风。
(2)风速:冬季平均2.9m/s,夏季平均2.8 m/s,最大风速22.3m/s。
(3)气温:最热月平均温度35.7oC,最冷月平均温度为-2 oC。
(4)极端最高温度为41.4 oC,极端最低温度为-12.8 oC。
(5)相对湿度:最热月平均79%,最冷月平均76%。
(6)降水:平均年降雨量1285.4mm,最大暴雨强度84mm/h,最大降雨量435.1mm,最大积雪深度263mm。
2.7 地质资料
本工程建筑场地划分为Ⅱ类,工程建筑场地土层至上而下为:素填土:以粘土组成,夹中压缩性土,厚度0.3~1.7m,承载力特征值fak=110kPa;粉质粘土:半干湿,密实,可塑,厚度1.8~15.3m,承载力特征值fak=350kPa。施工时应做好防排水,回填时采用不透水材料分层夯实。
2.8 材料选用
(1)混凝土:柱、板、基础为C30,梁为C45
(2)墙体:外墙、分户墙采用200mm厚加气混凝土砌块
局部隔墙用100mm厚轻质隔墙
(3)钢筋: 柱、梁纵筋:HRB400级(Ⅲ级)
板钢筋:HRB400级(Ⅲ级)
箍筋:HRB400级(Ⅲ级)
基础钢筋:HRB400级(Ⅲ级)
3 结构选型
采用钢筋混凝土现浇框架结构体系。屋面,楼面均采用现浇钢筋混凝土肋形楼盖,屋面板厚为120mm,楼面板厚为100mm。楼梯采用钢筋混凝土板式楼梯。
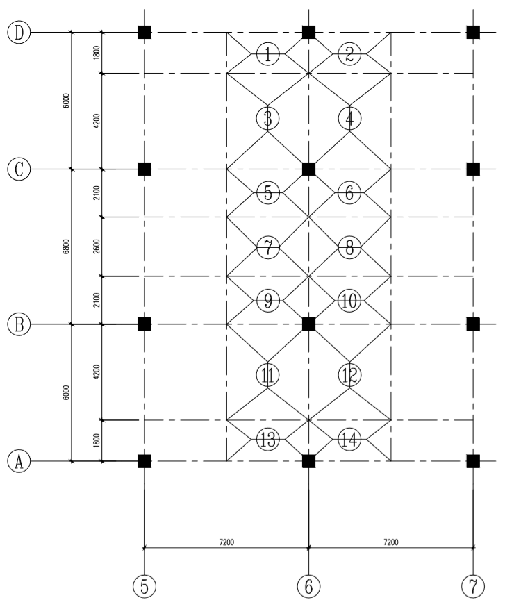
3.1 柱网布置
本住宅标准层柱网布置图2.1所示:
3.2 框架结构承重方案的选择
竖向荷载的传力途径:楼板的均布活载和恒载经次梁间接或直接传至主梁,再由主梁传至框架柱,最后传至地基。
3.3 计算单元选取
框架结构的计算单元如图所示,取⑥轴上的一榀框架计算。底层柱高从基础顶面算至一层楼面,基顶标高根据地质条件、室内外高差,定为-2.000m,二层楼面标高为3.600m。其余各层柱高从楼面算至上一层楼面,故均为3.6m。框架结构的计算单元简图2.2所示:

图2.1 柱网布置图

图2.2 计算单元选取简图

图2.3 计算单元立面示意图
3.4 梁、柱截面尺寸的初步估计
3.4.1 梁截面初选(⑥轴)
主梁:AB跨 L=6000mm
h=(1/10~1/15)L=600mm~400mm,取h=600mm; b=250mm
BC跨 L=6800mm
h=(1/10~1/15)L=680mm~453mm,取h=600mm; b=250mm
以上是毕业论文大纲或资料介绍,该课题完整毕业论文、开题报告、任务书、程序设计、图纸设计等资料请添加微信获取,微信号:bysjorg。
相关图片展示:









