扬州市某科技园5号楼设计毕业论文
2020-04-23 20:11:11
摘 要


Abstract


目 录
第一章 结构选型与布置
1.1设计课题已知条件
1.2气象资料
1.3水文地质资料
1.3.1场地条件:
1.3.2抗震设防烈度
1.3.3荷载资料
第二章 确定计算简图
2.1确定计算简图
2.2梁、柱截面尺寸
2.3材料强度等级
2.4荷载计算
2.4.1屋面横梁竖向线荷载标准值
2.4.2楼面横梁竖向线荷载标准值
2.4.3屋面框架节点集中荷载标准值:
2.4.4楼面框架节点集中荷载标准值:
2.5风荷载
2.6地震作用
第三章 框架内力计算
3.1恒载作用下的框架内力
3.1.1弯矩分配系数
3.2杆件固端弯矩
3.2.1横梁固端弯矩:
3.2.2节点不平衡弯矩
3.2.3内力计算
3.3活载作用下的框架内力
3.3.1梁固端弯矩:
3.3.2各节点不平衡弯矩:
3.2.3内力计算:
3.4风荷载作用下的位移、内力计算
3.4.1 水平风载作用下框架层间剪力
3.5地震作用下横向框架的内力计算
3.5.1 0.5(雪 活)重力荷载作用下横向框架的内力计算
3.5.2.地震作用下横向框架的内力计算
第四章 框架内力组合
4.1课题计算
4.1.1弯矩调幅
4.1.2内力组合
第五章 框架梁柱截面设计
5.1课题计算
第六章 楼梯结构计算设计
6.1课题设计
6.2梯段板计算
6.1.1.荷载计算
6.1.2.内力计算
6.1.3.配筋计算
6.3休息平台板计算
6.3.1荷载计算
6.3.2.内力计算
6.3.3.配筋计算
6.4梯段梁TL1计算
6.4.1.荷载计算
6.4.2.内力计算
6.4.3.配筋计算
第七章 现浇楼面板设计
7.1例题计算
7.2跨中最大弯矩
7.3求支座中点最大弯矩
7.3.1 A区格
7.3.2 B区格
第八章 基础设计
8.1基础设计课题
8.2荷载计算
8.3确定基础底面积
8.4.抗震验算
8.5地基变形验算
8.6基础结构设计(混凝土选用C35)
第九章 PKPM软件在框架结构设计中的应用
9.1 PK模块分析单榀框架内力
主要参考文献 120
第一章 结构选型与布置

1.1设计课题已知条件
1.2气象资料
(1)基本风压值: W0 = 0.40 kN/m2
(2)基本雪压值: S0 = 0.65 kN/m2
1.3水文地质资料
1.3.1场地条件:

土层号 | 天然含水量 ω(%) | 天然重度γ (KN/m3) | 天然孔隙比e | 塑性 指数 IP | 液性 指数 IL | 抗剪强度指标 | 压缩指标ES1-2 | 承载力特征值fak(kPa) | |
Ck(kpa) | φk (º) | ||||||||
① | / | 17.2 | / | / | / | / | / | / | / |
② | 27.6 | 19.3 | 0.803 | 13.1 | 0.61 | 30.1 | 10.7 | 7.5 | 120 |
③ | 35.9 | 17.8 | 1.147 | 13.9 | 1.24 | 15.7 | 6.4 | 2.5 | 65 |
④ | 28.3 | 19.3 | 0.805 | 12.9 | 0.63 | 34.8 | 11.2 | 8.6 | 160 |
1.3.2抗震设防烈度:七度。(假定场地覆盖层厚度大于9 m,小于80 m。)
1.3.3荷载资料



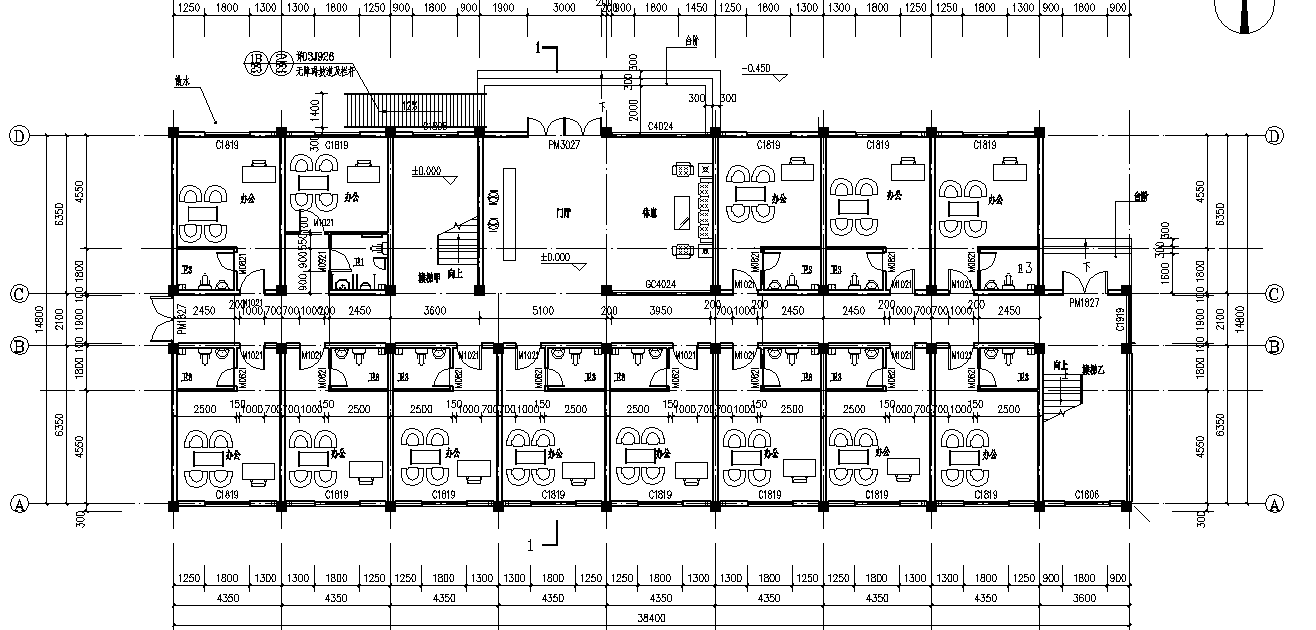
图 1-4 一层建筑平面图(1:100
相关图片展示:









