江苏省盐城市大丰区新丰中学实验楼方案二毕业论文
2020-04-22 19:39:02

6.3已知条件
题目:盐城大丰区新丰中学实验楼方案二
根据建筑方案图,本工程结构为五层钢筋混凝土框架,建筑面积约6437m2,其它条件如下:
一.
- 6.: =0.44 kN/
- : =0.34 kN/

2.2梁柱截面尺寸
600mm600mm。
:240mm600mm。 240mm400mm。 :240mm700mm。
(3):AB,CD620mm,BC600mm。
0.03424=0.774 kN/
防水层 0.4 kN/
0.0220=0.4 kN/
6 0.6224=3 kN/
(0.624=2.4 kN/)
0.06266=0.692 kN/
4.77 kN/
(4.37 kN/)
0.240.624=3.74 kN/m
2(0.6-0.62)0.0267=0.33 kN/m
4.07 kN/m
0.240.424=2.4 kN/m
2(0.4-0.6)0.0267=0.2 kN/m
2.7 kN/m
4=4=4.07 kN/m,4=2.7 kN/m
4=4=4.776=29.22 kN/m
4=0
4=4=0.46=3 kN/m
4=0
0.02420=0.4 kN/
0.6224=3 kN/
(0.624=2.4 kN/)
6 0.06266=0.692 kN/
3.692 kN/
(3.692 kN/)
4.07 kN/m
2.7 kN/m
6=6=4.07 kN/m
6=2.7 kN/m
==3.6926=22.64kN/m
=0
==26=62 kN/m
=0
0.240.7624=26.24 kN
2(0.7-0.62)0.02667=2.37 kN
0.962.36=62.74 kN
0.920.02667=3.67kN
0.460.464.77=43.73kN
顶层边节点集中荷载 4=4=77.76 kN
中柱纵向框架梁自重 0.240.7624=26.24 kN
粉刷 6 0.02667=2.46 kN
纵向框架梁传来的屋面自重 0.460.464.77=43.73kN
0.42.764.37=34.40kN
顶层中节点集中荷载 4=4=607.79 kN
- 活荷载
4=4=0.460.460.4=4.4kN
4=4=0.460.460.4 62.70.40.4=7.44kN
- 楼面框架节点集中荷载标准值
- 永久荷载
边柱纵向框架梁自重 26.24 kN
粉刷 2.37 kN
钢窗自重 2.26.40.4=6.32 kN
墙体自重 ( 63.9-22.26.4)2.36=39.64 kN
粉刷 ( 63.9-22.26.4)0.0267=2.76kN
72.3 kN
中间层边节点集中荷载
柱传来集中荷载 ==72.3 kN
框架柱自重 ==0.60.63.924=34.6 kN
中柱纵向框架梁自重 26.24 kN
粉刷 2.46 kN
内墙自重 (63.9-2.26.4-2.66)2.36=42.47 kN
粉刷 (63.9-2.26.4-2.66)0.0267=6.62 kN
纵向框架梁传来楼面自重
0.460.463.692=33.23 kN
2.70.463.692=24.76 kN
77.26kN
中间层中节点集中荷载
柱传来集中荷载 ==77.26 kN
框架柱自重 ==34.6 kN
- 活载
==0.460.462=67 kN
==0.460.462 0.42.763.4=46.34kN
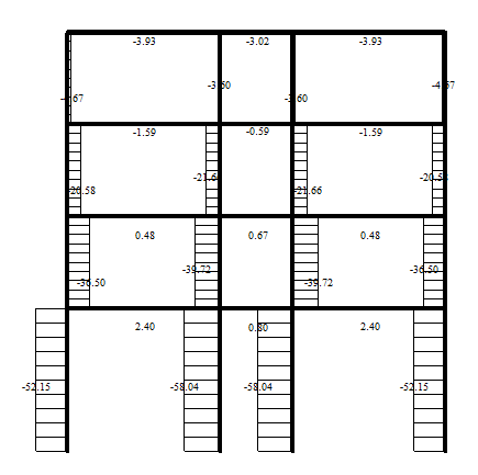
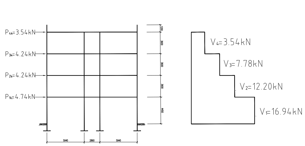
层次 | Z(m) | (kN/) | A() | (kN) | |||
4 | 6.0 | 6.3 | 69.4 | 6.22 | 0.44 | 64.4 | 60.27 |
4 | 6.0 | 6.3 | 64.6 | 6.64 | 0.44 | 23.4 | 64.6 |
3 | 6.0 | 6.3 | 66.7 | 6.04 | 0.44 | 23.4 | 64.24 |
2 | 6.0 | 6.3 | 7.7 | 6 | 0.44 | 23.4 | 63.69 |
6 | 6.0 | 6.3 | 3.9 | 6 | 0.44 | 23.4 | 63.69 |
40%雪载: 0.40.3469.476.4=244kN
板上荷载:
层面永久荷载
4.7776.47.42 4.3776.42.7= 6693.47kN
梁自重:
横向梁 4.077.4(62 63) 2.72.7(64-3)=944.27 kN
纵向梁 (26.24 2.37)(62 66) (26.24 2.46)(63 62)=6374.76 kN
柱自重: 0.60.624244=972 kN
隔墙自重:
横墙2.36[7.4226 (2.72-2.66.4/2) (2.72)]= 744.37kN
纵墙 2.36[(62-2.6/2-6.76.4/2)20 (62-2.26.4/2)69 (7.42-0.66.4/24) (62-0.66.42/2)]=974.46 kN
钢窗 372.26.40.40.4 0.66.40.40.4
696.76.40.40.4=36.42 kN
女儿墙 0.92.36(7.4 2.7 6.4 7.4 666 2.4 7.4 6.4 2.7 7.4 4 6.7 666 6.4)=390.67 kN
4= 62474.04kN
- 集中于三,四,五层处的质点重力荷载代表值
40%楼面活载 0.4[(67.4 66.4)7.42 76.42.73.4 7.4603.4]=6476 kN
板上荷载:
楼面永久荷载
3.69276.47.42 3.69276.42.7=4046.04 kN
梁自重:
横梁 944.27 kN
纵梁 6374.76kN
柱自重: 9722=6944 kN
隔墙自重:
横墙 744.372=6707.76 kN
纵墙 974.462=6949.62 kN
钢窗 36.422=72.74 kN
===64620.76kN
- 集中于二层处的质点重力荷载标准值6
40%楼面活载 6476 kN
板上荷载:
楼面永久荷载 4046.04 kN
梁自重:
横梁 6707.76 kN
纵梁 6949.62 kN
相关图片展示:









