东风设计研究院钢结构住宅楼设计毕业论文
2020-04-12 16:17:58
摘 要
本毕业设计论文针对东风设计研究院有限公司钢结构住宅楼进行研究,在此过程中对其进行建筑设计和结构设计。在建筑设计方面,本毕业设计论文将确定建筑物内部各种使用功能和使用空间的合理安排,并确定主要部位的构造及材料做法,在此基础上绘制建筑施工图,包括平面布置、立面图、剖面图及大样图。在结构设计方面,本毕业设计论文结合建筑设计选择合理的结构方案进行结构布置,确定框架梁、柱截面形式并进行线刚度计算,并在荷载计算后绘制计算简图,对其进行内力分析,得出荷载组合和内力组合,同时考虑钢结构构件和连接设计,对楼板、基础和楼梯进行设计和计算,在此基础上绘制结构施工图,包括结构平面布置、计算书及钢框架详图等。
关键字:钢结构;住宅楼;建筑;结构
Abstract
This graduation design paper is aimed at the Dongfeng Design Institute Co., Ltd. steel structure residential building research, in the process of the construction design and structural design. In the area of architectural design, this graduation design paper will determine the rational arrangement of various functions and use spaces within the building, and determine the structure and material practices of the main parts. Based on this, it will draw the construction drawings for the building, including the layout and elevation of the building. Figure, section and large sample diagram. In terms of structural design, this graduation design paper combines structural design with a reasonable structural scheme for structural layout, determines the frame beam and column section form and performs line stiffness calculation, and draws a calculation diagram after the load calculation to analyze its internal forces. A combination of load combinations and internal forces is derived. Steel structural components and connection designs are taken into consideration. Floor slabs, foundations and stairs are designed and calculated. On this basis, structural construction drawings are drawn, including structural plane layouts, calculation books, and steel frame details.
Key words:Steel Structure;Residential;Building;Architecture
目录
第一章 工程概况 7
1.1 设计题目 7
1.2 设计资料 7
1.3 建筑技术条件 9
1.3.1 气象条件 9
1.3.2 抗震设防烈度要求 9
第二章 荷载统计 10
2.1 恒载标准值统计 10
2.1.1 屋面 10
2.1.2 楼面 10
2.1.3 外墙 10
2.1.4 内墙 11
2.2 活载标准值统计 12
2.2.1 屋面及楼面 12
第三章 构件截面初选 14
3.1屋面梁截面初选 14
3.1.1 GL1截面初选 14
3.1.2 GL2截面初选 15
3.1.3 GL3截面初选 16
3.1.4 GL4截面初选 17
3.1.5 GL5截面初选 18
3.1.6 CL1截面初选 19
3.1.7 CL2截面初选 20
3.1.8 CL3截面初选 21
3.1.9 CL4截面初选 22
3.1.10 CL5截面初选 23
3.1.11 CL6截面初选 24
3.2标准层梁截面初选 25
3.2.1 GL1截面初选 25
3.2.2 GL2截面初选 26
3.2.3 GL3截面初选 27
3.2.4 GL4截面初选 28
3.2.5 GL5截面初选 29
3.2.6 CL1截面初选 30
3.2.7 CL2截面初选 31
3.2.8 CL3截面初选 32
3.2.9 CL4截面初选 33
3.2.10 CL5截面初选 34
3.2.11 CL6截面初选 35
3.3 框架柱截面初选 37
3.3.1 内墙框架柱截面初选 37
3.3.2 外墙框架柱截面初选 38
3.4 框架柱截面验算 39
第四章 内力计算 40
4.1 确定框架计算简图 40
4.1.1 梁、柱线刚度计算(非组合梁设计) 40
4.1.2 相对线刚度计算 40
4.2 分层法计算竖向荷载 41
4.2.1 确定各节点弯矩分配系数 41
4.3 恒载作用(标准值) 43
4.3.1顶层恒载统计 44
4.3.2标准层恒载统计 60
4.3.3恒载作用下的内力计算 75
4.4 活载作用(标准值) 83
4.4.1顶层活载统计 83
4.4.2顶层活载统计 93
4.4.3 活载作用下的内力计算 102
4.5 风荷载计算 111
4.5.1 风荷载标准值计算 111
4.6 水平地震作用下框架内力计算 125
4.6.1 确定地震影响系数 125
4.6.2 确定各层地震作用 126
4.6.3 D值法计算框架内力 128
第五章 内力组合 138
5.1组合说明 138
5.2组合说明 139
第六章 梁柱截面验算 165
6.1 柱截面验算 165
6.1.1 底层柱截面验算 165
6.1.2 标准层柱截面验算 167
6.1.3 顶层柱截面验算 170
6.2 柱截面验算 173
6.2.1 底层柱截面验算 173
6.2.2 第二层A-B、B-D梁验算 173
第七章 节点设计 175
7.1 梁柱连接节点 175
7.1.1 计算腹板分担弯矩 175
7.1.2 螺栓验算 175
7.1.3 焊缝验算 176
7.1.4 节点验算 177
7.2 主次梁的连接设计 177
7.2.1 CL4 连接设计 178
7.2.2 CL5连接设计 179
7.3钢柱的拼接 180
7.3.1螺栓验算 180
7.3.2焊缝验算 181
7.4柱脚设计 182
7.4.1柱脚底板计算 183
7.4.2隔板计算 184
7.4.3靴梁计算 185
第八章 楼板设计 187
8.1 板筋计算 187
8.2板内力计算 188
8.3配筋计算 189
第九章 楼梯计算 190
9.1踏步板计算 190
9.2 斜梁计算 191
9.3平台梁计算 193
9.4刚度验算 194
第十章 基础设计 195
10.1地基基础设计等级 195
10.2工程地质条件 195
10.3 B柱独立基础设计 195
参考文献 198
致谢 199
第一章 工程概况
1.1 设计题目
东风设计研究院钢结构住宅楼设计。
1.2 设计资料
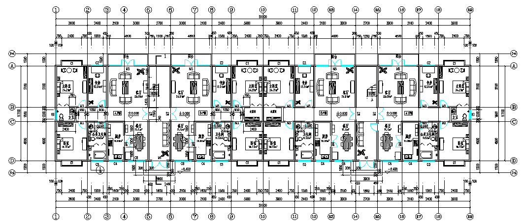
本工程为东风设计研究院有限公司钢结构住宅楼,建筑面积约为3580.2m2,拟建建筑物层数为6层,设计使用年限为50年,防火等级为二级,结构安全等级为二级,填充墙用加气混凝土,外墙装饰采用外墙涂料、瓷片;窗户采用平开铝合金窗,门采用铝合金门;房间有客厅、厨房、厕所、书房、主卧、次卧和儿童房等。
图1.1 首层平面图
图1.2 二~六层平面图
图
1.3 正立面图
图1.4 侧立面图
图
1.5 结构图
1.3 建筑技术条件
1.3.1 气象条件
基本风压:
基本雪压:
1.3.2 抗震设防烈度要求
武汉市抗震设防烈度为6度,设计基本地震加速度值为0.05g,设计地震分组为第一组。
第二章 荷载统计
2.1 恒载标准值统计
2.1.1 屋面
保护层:
20厚1:3水泥砂浆
400mm×400mm×30mm预制混凝土块
以上是毕业论文大纲或资料介绍,该课题完整毕业论文、开题报告、任务书、程序设计、图纸设计等资料请添加微信获取,微信号:bysjorg。
相关图片展示:









