大冶特大桥上部结构设计毕业论文
2020-04-12 09:03:07
摘 要
本文为大冶特大桥上部结构计算书,计算书主要内容包括对大冶特大桥上部结构的结构设计以及各种验算。此次毕业设计在结构模型的设计方面采用了Midas/Civil软件,它能够通过我们对桥梁结构各方面类型、参数的设定,来进行一种较为接近实际的计算,从而来确定我们模型建设的合理程度,以及不合理之处。而此计算书的主要内容,则包括大冶特大桥的地质地形资料、桥梁建设方案的比选、桥梁跨径的拟定、箱梁形式尺寸的拟定、Midas模型的建立、荷载内力的组合设计、预应力钢束的布置、次内力计算、截面安全验算等内容。在截面安全验算结果的基础上不断进行改进,最终完成对此大冶特大桥上部结构的设计。本次上部结构设计为(60.85 100 60.85)m三跨变截面预应力混凝土连续箱梁,桥面全长221.7m,宽20.5m,单箱双室截面,桥梁施工所用到的施工方法是连续梁桥中比较常用的悬臂浇筑法。
关键词:Midas/Civil;预应力;连续梁桥;悬臂施工法。
Abstract
This paper is the calculation of the upper structure of the Daye Super Bridge,The main contents of the calculation book include the structural design and various checks on the superstructure of the Daye Bridge.This graduation design has used Midas/Civil finite element analysis software,which can make a more realistic calculation through the setting of various types and parameters of the bridge structure to determine the rationality and unreasonable of our model construction.The main contents of the calculation include the geological and terrain data of the Daye special bridge, the comparison of the bridge construction scheme, the formulation of the span of the bridge, the formulation of the form size of the box girder, the establishment of the Midas model, the combination design of the load internal force, the layout of the pre-stressed steel beam, the calculation of the secondary internal force, the safety checking calculation of the cross section and so on.And complete the improvement of the superstructure of the Daye bridge finally,which based on the results of cross section safety checking.The superstructure is designed as a (60.85 100 60.85) m three-span variable-section prestressed concrete continuous box girder with a total length of 221.7m and a width of 20.5m,with single box and double chamber section.And the construction method used in bridge construction is a commonly used cantilever casting method in continuous girder bridges .
Key Words:Midas/C;Prestress;Continuous bridge;
目 录
摘要 I
Abstract II
第一章 绪论 1
1.1连续梁桥发展简介 1
1.2 毕业设计的重要性 2
第二章 设计基本资料及说明 3
2.1桥址建设条件 3
2.1.1 地形地貌 3
2.1.2 气候条件 3
2.1.3 水文条件 3
2.1.4 航道等级 4
2.1.5 地层岩性 4
2.1.6 地震 4
2.2设计说明 4
2.2.1 设计依据 4
2.2.2 技术标准 5
第三章 桥梁设计 6
3.1 桥型设计方案比选 6
3.1.1 方案一:连续梁桥 6
3.1.2 方案二:连续刚构桥 6
3.1.3 方案三:双塔悬索桥 7
3.1.4 方案比选 7
3.2主要材料 8
3.2.1混凝土 8
3.2.2钢材 8
3.3 桥跨总体布置 9
3.4 桥梁施工方案 9
3.5 Midas/Civil模型 10
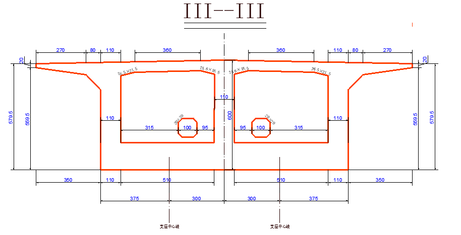
3.6结构构造尺寸的拟定 10
3.6.1梁高 10
3.6.2结构细部尺寸 11
第四章 Midas/Civil 模型的建立 13
4.1模型的建立 13
4.1.1设定Midas/Civil操作环境 13
4.1.2定义材料 13
4.1.3定义时间依存材料 15
4.1.4节点的建立 16
4.1.5定义截面 17
4.1.6定义变截面 18
4.1.7单元的建立 18
4.1.8定义变截面组 19
4.1.9定义边界条件 20
4.1.10定义边界组 21
4.1.11定义结构组 22
4.1.12定义荷载组 22
4.1.13建立静力荷载工况 23
4.1.14建立移动荷载工况 24
4.1.15定义支座沉降 25
4.1.16定义钢束组 26
4.1.17定义预应力钢束特性以及钢束布置情况的设定 27
4.1.18张拉预应力钢束 29
4.1.19定义施工阶段 30
4.2模型分析 31
4.2.1模型分析设定 31
4.2.2荷载组合生成 31
4.2.3结构内力图 32
4.2.4 PSC设计 33
第五章 结构内力计算 36
5.1恒载内力计算 36
5.1.1 结构自重 36
5.1.2二期恒载内力 36
5.2活载内力计算 37
5.3支座位移内力 39
5.4温度内力 40
5.5荷载内力组合 42
第六章 收缩徐变及预应力损失 44
6.1收缩徐变 44
6.2预应力损失 44
6.2.1预应力损失种类 44
6.2.2预应力损失计算 45
第七章 截面安全验算 50
7.1内力组合 50
7.1.1正常使用极限状态短期效应组合 50
7.1.2正常使用极限状态长期效应组合 51
7.1.3承载能力极限状态基本组合 51
7.1.4弹性阶段内力组合 52
7.2截面安全验算 53
7.2.1施工阶段法向压应力验算 53
7.2.2受拉区钢筋的拉应力验算 54
7.2.3使用阶段正截面抗裂验算 55
7.2.4使用阶段正截面压应力验算 56
7.2.5使用阶段斜截面主压应力 57
7.2.6使用阶段正截面抗弯验算 57
第八章 毕业设计总结 59
致 谢 60
参考文献: 61
第一章 绪论
1.1连续梁桥发展简介
近代以来,中国的经济实力随着时间在不断的增长,交通的现代化也成为我国目前所注重的问题。交通,是一个国家强盛发展的必要条件,不断加强我国交通的现代化、加大交通网覆盖范围,对于不同民族、全国人民之间的联系,起着极大的促进作用。作为一种主要的交通设施,桥梁的建设,自始至终都是加强国力建设的重要举措,无论何时何地,桥梁的存在都起着不可忽视的作用。
预应力混凝土连续梁桥作为一种新兴的桥梁结构类型,近几十年才开始被人们运用于各种大型桥梁中。连续梁桥被不断的运用在全世界各个地方,其主要原因在于它的优良性能,承受荷载时受力科学,同时桥梁曲线造型优美,是一种竞争力很强的桥型,在世界各国得到了广泛的应用。在我国,预应力混凝土连续梁桥在1970年就开始修建于各大河流、山谷之上。这是我国公路桥梁的主要结构形式之一。
20世纪50年代,悬臂施工法的出现,对于跨径较大的连续梁桥体系,这种施工方法的出现为其提供了极大的发展空间。现在桥梁结构中所经常用到的预应力混凝土结构,是由于在施工前,通过人为操作来使混凝土或钢筋混凝土中设置应力,令此应力所产生的作用能够一定程度上抵消结构的自重所产生的应力,此即为预应力混凝土结构。
通过连续梁桥的受力特点,以及荷载分布,可以得到,在荷载作用下,支座处的负弯矩会对跨中处的正弯矩起到一定的抵消效果,使桥梁结构在受力方面,更为合理,增强桥梁结构承载能力。在满足桥梁承载能力要求,保证运营安全的前提下,可以在一定程度上降低桥梁高度,从而减少桥梁建造费用。同时,连续梁桥桥面连续,车辆通行时,不会出现较大颠簸,减少行车影响。随着桥梁施工方法的不断创新发展,连续梁在建造的过程中所需要的经济与劳动力成本大大降低,这也导致了连续梁桥成为目前桥梁建设中的主流桥型。
与传统的混凝土结构有所差异的是,预应力混凝土结构对于构件的抗裂度和刚度方面得到了较大的改善,同时,桥梁自重减小,建设预算降低,这也是现在桥梁选择预应力混凝土的原因。由于材料的更新,桥梁的建设方式也处于不断更新中。在最近这一段时间,我国对于土木工程的关注度,在世界上少有国家能与之相比。同时,在不断的研究中,预应力混凝土技术也再次登上了一个新台阶。可以说,我国在预应力混凝土结构方面所取得的成就,是来之不易的,这也基于中华人民不断进行着的创新、创造,是值得我们所自豪的事情。
1.2 毕业设计的重要性
以上是毕业论文大纲或资料介绍,该课题完整毕业论文、开题报告、任务书、程序设计、图纸设计等资料请添加微信获取,微信号:bysjorg。
相关图片展示:









