创意建筑设计事务所办公楼设计毕业论文
2020-04-10 14:45:02
摘 要
此计算书是针对武汉理工大学土建学院的土木工程专业2014级毕业设计“创意建筑设计事务所办公楼设计”所做的书面成果。该设计的主要内容为八层框架结构的办公楼设计。
在“建筑设计部分”中,在建筑指导老师的指导下,反复确定柱网布置,考虑建筑使用要求,进行修正,对建筑图纸进行绘制。进而确定具体的建筑构造、做法以及材料,为结构设计做足准备。
在“结构设计部分”中,首先选定第⑨轴的横向框架作为此计算书手算的任务,绘制结构平面布置图,然后熟悉结构设计步骤以及内力计算中的方法。然后统计荷载,荷载包括恒荷载,活荷载,左右风荷载,左右地震作用,采用不同的内力计算方法根据荷载计算梁柱板的内力,用分层法计算竖向荷载作用下的内力,用D值法计算水平荷载作用下的内力,再进行组合后得到各截面的控制内力,最后进行各构件的配筋计算。
此外,还进行了结构方案中的楼梯设计,其中完成梯段板,平台板,平台梁等构件的内力计算、配筋计算以及施工图绘制。根据工程地质资料,结构采用柱下独立基础。
结构设计过程中先选取一榀具有代表性的框架进行手算,再用建筑结构设计软件PKPM对整个结构进行电算,比对二者结果进行修正,绘制结构图纸。这样是对大学四年所学知识的汇总和应用,既弄清了原理方法,同时也掌握了结构软件的使用方法,能让自己对框架结构的受力有一个更明确的了解。
关键词:钢筋混凝土框架结构;⑨轴框架设计;结构设计;D值法;分层法
Abstract
This calculation sheet is the written result of "office building design of creative architecture design firm", 2014 graduation design of civil engineering major, school of civil engineering and architecture, wuhan university of technology. The office building has eight floors of reinforced concrete frame structure.
In the "architectural design part", under the guidance of the building instructor, the column network layout is repeatedly determined, the use requirements of the building are taken into account, the amendment is made, and the construction drawings are drawn. Then the concrete building structure, practices and materials are determined to make adequate preparation for structural design.
In the "structure design section", first select the horizontal frame of the 9th axis as the task for calculating the bookwork, draw the structure layout diagram, and then be familiar with the structure design steps and the method in the internal force calculation. Then the statistical load, the load includes the constant load, the living load, the left and right wind load, the left and right seismic effects, and the internal force calculation method adopts different internal force calculation methods to calculate the internal force of the beam column plate according to the load, and the internal force under the vertical load is calculated by the stratification method. The internal force under horizontal load is calculated by the D value method. After the combination, the controlled internal force of each section is obtained. Finally, the reinforcement of each member is calculated.
In addition, the staircase design in the structural scheme is also carried out, in which the internal force calculation, reinforcement calculation and construction drawing of the ladder segment board, platform board, platform beam and other components are completed. According to engineering geological data, the structure adopts independent foundation under column.
Structure design process to select a common representative of the first to hand, then use PKPM structure design software to computer of the whole structure, comparing the two results are revised, draw the structure drawings. This is the summary and application of knowledge in the four years at college, is to understand the principle of the method, as well as the use of the structure of the software, can let oneself of the stress of the frame structure has a clear understanding.
Key Word: Reinforced concrete frame structure;⑨ Frame design; Structure design;D value method;Layered method
目录
摘 要 1
Abstract 2
绪 论 6
第1章 设计资料 7
1.1 工程名称 7
1.2 工程概况 7
1.3 建筑等级 7
1.4 设计荷载 7
1.5 抗震设防 7
1.6 气象资料 7
1.7 地质资料 7
1.8 材料选用 8
第2章 结构选型 9
2.1 柱网布置 9
2.2 框架结构承重方案的选择 9
2.3 计算单元选取 9
2.4 ⑨轴框架梁、柱截面尺寸的初步估计 13
2.4.1 梁截面初选 13
2.4.2 柱截面初选 13
第3章 侧移刚度的计算 15
3.1 梁线刚度的计算 15
3.2 柱线刚度的计算 15
3.3 相对线刚度计算 15
第4章 恒荷载作用下的框架内力计算 17
4.1 恒荷载标准值计算 17
4.2 恒载作用下框架的所受荷载 18
4.2.1框架梁的恒载 19
4.2.2柱纵向集中恒荷载计算 20
4.3 恒载作用下框架的内力计算 23
第5章 活荷载作用下的框架内力计算 33
5.1活荷载标准值计算 33
5.2活载作用下框架所受荷载 33
5.2.1屋面与楼面活载 33
5.2.2柱的集中力 35
5.3 活载作用下框架的内力计算 37
第6章 风荷载作用下的框架内力计算 46
6.1 风荷载标准值 46
6.2 侧移刚度D 48
6.3 风荷载作用下框架侧移计算 48
6.4 框架柱的剪力分配计算 49
6.5 框架柱反弯点高度的计算 50
6.6 框架柱端的剪力、弯矩及梁端的弯矩的计算 51
第7章 水平地震作用下的框架内力计算及变形验算 56
7.1 重力荷载代表值的计算 56
7.1.1顶层重力荷载代表值 56
7.1.2三~七层重力荷载代表值 56
7.1.3二层重力荷载代表值 56
7.1.4底层重力荷载代表值 57
7.2 水平地震作用力的计算(基底剪力法) 57
7.3 水平地震作用下框架的侧移验算 59
7.4 水平地震作用下框架内力计算(D值法) 60
第8章 内力组合 67
8.1 梁的内力组合 74
8.1.1梁的内力组合计算 74
8.1.2框架梁组合的剪力设计值 87
8.2 柱的内力组合 88
8.2.1 柱的内力组合计算 88
8.2.2 柱的剪力设计值 101
第9章 框架梁、柱截面设计 103
9.1 框架梁配筋 103
9.2 框架柱配筋 107
第10章 板的配筋计算 112
10.1 荷载设计值 112
10. 2 内力计算 113
第11章 楼梯设计 118
11.1 设计参数 118
11.2 楼梯板的配筋计算 118
11.3 平台板的配筋计算 119
11.4 楼梯梁的配筋计算 120
第12章 基础设计 123
12.1 地基基础设计等级 123
12.2 A柱独立基础设计 123
12.2.1 确定基底尺寸 123
12.2.2 地基承载力验算 123
12.2.3 基础受冲切承载力验算 124
12.2.4 基础底板配筋计算 125
12.3 A柱独立基础设计 127
12.3.1 确定基底尺寸 127
12.3.2 地基承载力验算 127
12.3.3 基础受冲切承载力验算 127
12.3.4 基础底板配筋计算 128
结束语 131
参考文献 132
致谢 134
绪 论
随着经济的发展、社会的进步,土木工程行业在国家建设中扮演着一个越来越重要的角色,作为一名土木工程专业的学生,应具备基本的专业知识以及设计能力。不仅要弄懂课本上的理论知识,还要具备足够的工程实践能力,对结构设计步骤、结构设计方法等都要有较好的掌握。在熟练掌握CAD、PKPM等软件的基础上,不仅要掌握电算,也应能手算。手算计算书包含着对于基本理论、方法的掌握程度,更能检验一名学生的知识牢靠程度。
本次毕业设计的题目是创意建筑设计事务所办公楼设计,为框架结构,在结构设计时先进行结构选型,柱网布置,梁柱各截面的估算,本次设计采取先手算、后电算的形式,先由导师选择一榀有代表性的框架,学生结合以往学习知识进行计算,编写手算计算书,包括荷载计算、内力计算、内力组合及配筋计算,具体为:竖向荷载作用下的近似内力计算采用分层法,水平荷载作用下的近似内力计算采用D值法,地震荷载作用下框架内力近似计算采用底部剪力法,在完成弯矩调幅后进行内力组合获得各控制截面的内力,最后进行各个构件的配筋计算;此外,还包括板配筋、楼梯设计、基础设计。电算采用PKPM软件建模计算整体结构的受力,比对二者结果后对手算计算书进行修正与更改,最后绘出整套的施工图纸,毕业设计的所有任务涵盖了大学四年学到的所有知识,也需要学生将所学知识较好的融合在一起,系统的完成本次设计。
第1章 设计资料
1.1 工程名称
创意建筑设计事务所办公楼
1.2 工程概况
建筑总高度为29.4m,共8层,首层层高为4.2m,其余各层层高为3.6m,楼梯间出屋面高3.0m。室内外高差为450mm,底层室内设计标高为±0.000。建筑总面积为5961.6m2。
1.3 建筑等级
地面粗糙程度类别为B类,耐火等级为二级,耐久等级为二级。
1.4 设计荷载
基本雪压:0.40KN/m2, 雪压值每50年一遇。
基本风压:0.30KN/m2,表面粗糙度为B级,风压值每50年一遇。
1.5 抗震设防
本工程抗震设防烈度为7度,设计基本地震加速度值为0.10g,设计地震分组为第一组,场地土类型为中软场地土,建筑场地类别为Ⅱ类。建筑结构安全等级为二级。
1.6 气象资料
(1)全年气温:平均气温:16.7 oC
极端最高:40.3 oC
极端最低:-10.9 oC
(2)平均相对湿度:76%
(3)主导风向及风压:冬季为北偏东风,夏季以南风为主。
(4)降水和降雪:平均年降雨量600mm。
1.7 地质资料
本工程建筑场地划分为I1类,工程建筑场地土层至上而下分述为:
1.人工填土:以素填土为主,黄褐色,可塑,含水率较高,结构松散,组成成分主要是粘性土并夹杂少量碎砖瓦片,层厚约为 0.5 m;
2. 亚粘土:黄褐色、黄灰色为主,为可塑状态,局部呈软塑状态,含少量铁锰氧化物及其结核及少量高岭土,层厚约为 0.8m;
3. 粘土:褐黄、灰黄等色,硬塑状态,含灰白色团块状高岭土、铁锰氧化物及其结核,层厚约为 5.4 m,承载力特征值fak=300kPa。施工时应该做好防排水,回填时采用不透水材料分层夯实。
1.8 材料选用
(1)混凝土:梁采用C30,柱、板、基础均为C30
(2)墙体: 外墙采用200mm厚加气混凝土砌块
内墙采用200mm厚加气混凝土砌块
(3)钢筋: 柱、梁纵筋:HRB400级(Ⅲ级)
板钢筋:HRB400级(Ⅲ级)
箍筋:HRB300级(I级)
基础钢筋:HRB400级(Ⅲ级)
第2章 结构选型
该办公楼整体采用现浇钢筋混凝土框架结构体系。屋顶和地板采用现浇钢筋混凝土肋楼盖。屋面板厚度为120mm,楼板厚度为120mm。楼梯是用钢筋混凝土板建造的,为板式楼梯。
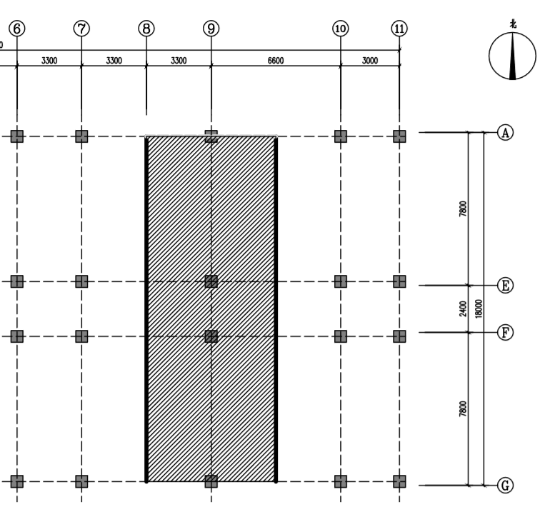
2.1 柱网布置
本教学楼标准层柱网布置如图2.1所示:
2.2 框架结构承重方案的选择
竖向荷载的传力途径:楼板上均匀分布的活荷载和恒荷载经次梁间接或直接传至主梁,再由主梁传至框架柱,最后传至地基。
2.3 计算单元选取
框架结构计算单元如图2.2所示。假设框架柱固定在基础的顶部,框架梁刚性连接到柱子上。框架梁的长度等于柱截面中心轴之间的距离,因为每个柱的截面尺寸是相同的。下柱的高度从基础的顶部计算到一层。根据地质条件和室内外高度的不同,基础的埋深为-1.5m,底层的高度为4.2m。每层的其他柱高都是从地面到地面计算的,所以都是3.6m。计算单元的立面图如图2.3所示。

图2.1 柱网布置图

图2.2 计算单元选取简图

图2.3 计算单元立面示意图
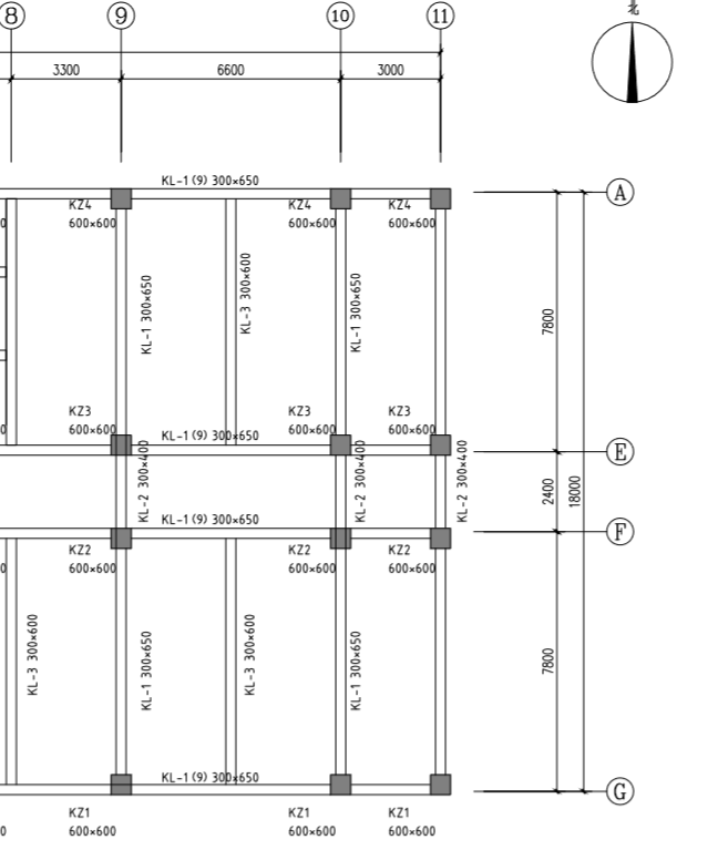
2.4 ⑨轴框架梁、柱截面尺寸的初步估计
2.4.1 梁截面初选
主梁:AB跨 L=7800mm
h=(1/10~1/15)L=780mm~520mm,取h=650mm; b=300mm
BC跨 L=2400mm
取h=400mm; b=300mm
CG跨 L=7800mm
h=(1/10~1/15)L=780mm~520mm,取h=650mm; b=300mm
⑦~⑨轴 L=6600mm
h=(1/10~1/15)L=660mm~440mm,取h=650mm; b=300mm
⑨~⑩轴 L=6600mm
h=(1/10~1/15)L=660mm~440mm,取h=650mm; b=300mm
次梁: AB跨 L=7800mm
h=(1/10~1/15)L=780mm~520mm,取h=600mm; b=300mm
CG跨 L=7800mm
以上是毕业论文大纲或资料介绍,该课题完整毕业论文、开题报告、任务书、程序设计、图纸设计等资料请添加微信获取,微信号:bysjorg。
相关图片展示:








        
            
