65 110 65m 预应力混凝土连续刚构箱梁桥设计毕业论文
2020-04-09 15:36:55
摘 要
本毕业设计为题目为65 110 65m预应力混凝土连续刚构箱梁桥。根据本次毕业设计提供的设计资料,依据现行公路桥梁设计规范,对跨径为
的预应力混凝土连续钢构箱梁桥上、下部结构进行设计计算并完成施工图设计。
首先,根据规范及梁桥构造要求确定主梁的主要构造及细部尺寸。主梁为箱梁结构,箱梁的高度和底板厚度从支点至墩座处呈二次抛物线变化,腹板厚度在边跨跨中和中跨四分之一处呈直线变化,顶板厚度保持不变。本设计考虑到跨径和桥梁的结构形式,采用了矩形双肢薄壁墩。
其次,确定桥梁的施工方法,本设计采用挂篮式悬臂浇筑的施工方法,0号块在墩浇筑完成后,采用支架进行现浇,之后利用挂篮对称浇筑1-11号块,边跨利用满堂支架法现浇完成,然后进行边跨现浇段和0-11号浇筑段合拢,最后进行中跨合拢,形成全桥。
然后,利用Midas/civil软件进行有限元分析。根据已经拟定的桥梁尺寸建立基本模型,进行内力分析、预应力钢筋的调束和布置和截面验算,直至各施工阶段以及成桥只够的使用阶段满足桥梁的基本内力要求和位移要求。最后,对下部结构进行计算和验算,并完成相应图纸的绘制。
通过分析验算表明,本次设计的上、下部结构计算方法正确,内力分布合理,符合设计任务书的要求。
关键词:连续钢构箱梁桥、挂篮式悬臂施工法、Midas/civil、有限元分析
Abstract
This graduation project is entitled 65 110 65m prestressed concrete continuous rigid box girder bridge. According to the graduation design specification requirements, on the basis of the existing highway bridge design code, the span of (65 110 65) m prestressed concrete continuous steel box girder bridge, the structure of the lower part of design calculations and complete the construction drawing design.
First, the main structure and detail dimensions of the main girder are determined according to the specifications and the structural requirements of the girder bridge. Main girder of box girder structure, the height of the box girder and slab thickness from the fulcrum to block a quadratic parabola changes, web plate thickness in side span cross neutralization across a quarter of the change is linear, the roof thickness remains constant. The design takes into account the structure of span and bridge, and adopts rectangular double-leg thin-walled pier.
Second, determine the construction method of bridge, this design USES the hanging basket cantilever pouring construction method, 0 blocks in the block casting, after the completion of the stent for cast-in-situ, symmetrical casting using hanging basket after 1-11 block, side span with full framing method cast-in-situ completed, then the side span cast-in-place folded and 0 to 11, casting, finally underway across fold, forming the whole bridge.
Then, Midas/civil software is used for finite element analysis. According to establish the basic model has proposed bridge size, internal force analysis, and cross section calculation of prestressed beams and arrangement, until each construction stage as well as the use phase of only enough to meet basic internal force and displacement of the requirements of the bridge. Finally, calculate and check the lower structure, and complete the drawing of the corresponding drawings.
Through analysis and calculation, it is shown that the calculation method of upper and lower structures in this design is correct, and the distribution of internal forces is reasonable.
Key words: continuous steel box girder bridge, hanging basket cantilever construction method, Midas/civil, finite element analysis
目 录
第1章 绪论 1
1.1 预应力混凝土连续刚构箱梁桥简介 1
1.2 选题设计的意义 1
1.3 设计资料 1
1.3.1 设计规范 1
1.3.2 技术标准 2
1.3.3 地质 2
1.3.4 主要材料 2
第2章 桥型方案比选 4
2.1 构思宗旨 4
2.2 比选原则 4
2.3 方案比选 4
第3章 桥跨布置及结构尺寸拟定 6
3.1 桥型布置 6
3.2 上部结构尺寸拟定 6
3.2.1 顺桥方向尺寸拟定 6
3.2.2 横桥方向尺寸拟定 6
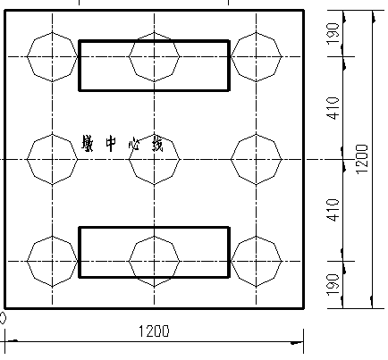
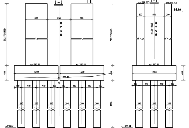
3.3 下部结构尺寸拟定 8
3.3.1 墩身尺寸拟定 8
3.3.2 桩基础尺寸拟定 8
3.3.3 承台尺寸拟定 9
第4章 建模 10
4.1 模型 10
4.2 主要参数 10
4.2.1 材料参数 10
4.2.2 荷载参数 11
4.2.3 边界条件 12
4.3 施工阶段 12
第5章 桥梁结构内力计算 14
5.1 毛截面几何特性 14
5.2 恒载内力 14
5.3 活载内力计算 18
5.4 次内力计算 21
5.4.1 温度引起的次内力 21
5.4.2支座沉降引起的内力计算 22
5.4.3 收缩徐变引起的内力计算 24
5.5 承载能力极限状态的内力组合 26
5.6 正常使用极限状态的内力组合 27
5.6.1 频遇组合 27
5.6.2 准永久组合 27
5.7 内力组合 27
第6章 预应力钢束数量及损失计算 34
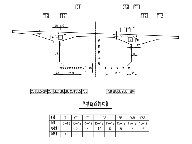
6.1预应力钢束数量确定 34
6.2 预应力钢束的布置 38
6.2.1 布置原则 38
6.2.2 钢束布置 39
6.3 钢束预应力损失的估算 40
6.4 预应力钢束有效应力计算 42
第7章 主梁验算 43
7.1持久状况承载力极限状态验算 43
7.2 持久状况正常使用极限状态验算 46
7.3 短暂状况构应力验算 50
7.4 正截面受拉区预应力钢束拉应力验算 56
第8章 下部结构计算 58
8.1 桥墩计算 58
8.1.1 荷载计算 58
8.1.2截面配筋计算 59
8.1.3 截面验算 60
8.2 桩计算 61
8.2.1 钻孔桩材料 61
8.2.2 荷载计算 61
8.2.3 桩长计算 61
8.2.4 桩的内力计算(m法) 62
8.2.4.5 基础位移计算 64
8.2.5 桩基配筋计算及桩身材料截面强度验算 64
8.2.5.1 桩身最大弯矩及其位置 64
8.2.5.2桩身配筋计算 64
8.3.5.3截面复核 65
参考文献 67
致谢 68
绪论
1.1 预应力混凝土连续刚构箱梁桥简介
在连续梁桥中,将墩身与主梁固结成一体的为连续刚构桥。由于墩身与主梁形成刚架,承受上部结构的荷载。一方面,主梁的受力是合理的;另一方面,墩身充分发挥其在结构中的潜力。连续刚构桥是大跨径桥梁结构中常用的一种体系,其常用跨径在100~300米之间。当跨径超过100米时预应力混凝土连续刚构可以作为连续梁桥的比选方案。
连续刚构桥综合了连续梁桥和T形刚构桥的受力特点,主梁为连续梁体,并与桥墩固结。在受力特点上连续刚构体系上部结构同连续梁一样,而桥墩底部所承受的弯矩、梁体内的轴力随着墩高的增加而减小。在跨径大而墩高小的连续列刚构桥中,由于体系的温度变化,混凝土的收缩将在墩底产生较大的弯矩。为减小水平位移在墩上产生的弯距值,连续刚构桥通常采用水平抗推刚度较小的双薄壁墩。
这种结构形式的桥首先是从国外发展起来的,第一座即是1964年原联邦德国建造的本道夫(Bendorf)桥。在那之后,一方面随着高等级公路对行车平顺的要求,多伸缩缝的T型刚构桥不能很好的满足要求,另一方面还因为建筑材料和施工方法的进步,大跨径的连续刚构桥开始不断发展,在世界各地开始得到广泛的应用。国外典型的刚构-连续梁桥主要有德国本道夫(Bendorf)桥,瑞士的比艾施纳(Biaschina)桥,澳大利亚的给特威(Gateway)桥,挪威的Stolma桥。
我国的预应力混凝土桥梁发展起步较晚。1956 年京周公路卢沟桥附近建成第一座预应力混凝土简支梁。1965 年,我国用悬臂施工技术建成的第一座预应力混凝土 T型刚构桥,江苏盐河公路实验桥,该桥主跨 33 米。
随着社会的发展,小跨径的桥梁已经不能满足人类生存的需求了。而预应力混凝土连续刚构箱梁桥的特点显著,在跨径较大时,成为了人们的首选之一。
1.2 选题设计的意义
本次毕业设计是以云南大桥桥址为背景,对其主桥箱梁进行设计说明、上部结构计算、下部结构计算以及主要的施工图设计。本次毕业设计所设计的桥梁跨径为65 110 65m的预应力混凝土连续刚构箱梁桥,桥宽12m,单向三车道。主梁采用单箱单室型截面,主要是为了提高跨越能力、减轻桥梁本身自重、美化结构外观。通过相关现场实习及查阅文献、规范,理论联系实际,掌握一般大中型桥梁的设计原则、步骤及方法。通过设计,使学生更好的掌握Auto CAD、Midas/civil等相关计算、绘图软件。外文文献翻译则让学生更加系统的了解专业词汇,了解国外的连续刚构桥的设计思想理念。本次毕业设计能够让学生综合大学期间课程所学知识,联系现实桥梁的设计与施工,巩固桥梁设计基本理论、基本知识、基本方法。
1.3 设计资料
1.3.1 设计规范
- 《》 (JTG B01-2014)
- 《公路桥涵设计通用规范》 (JTG D60-2015)
- 《
》 (JTG D62-2004) - 《公路桥涵地基与基础设计规范》 (JTG D63-2007)
- 《城市桥梁设计规范》(CJJ11-2011)
- 《公路桥涵施工技术规范》(JTG/T F50-2011)

1.3.2 技术标准
设计行车速度:80Km/h。
荷载等级:Ⅰ级。
桥面宽度:桥宽W=0.5 11 0.5=12m。
桥面横坡:单向2%(半幅桥)。
高程系统:黄海高程系统。
坐标系:北京坐标系。
地震烈度:
洪水频率:本设计桥梁桥址位于山谷,主桥为高架桥,洪水影响不需要考虑。
1.3.3 地质
桥址区内上覆第四系坡残积物和全强风化层,结构松散,厚薄较大,工程性能差,在突发性水流冲刷下易产生坍塌,但下付岩体结构面与坡面向相反,稳定性较好。
本设计的桥梁基岩土体分大致分为为三个工程地质层:
1-1、粘土,褐红色,赢塑,主要成分为粘粒,{
}=135kpa,
=35kpa。
1-2、碎石、角砾混亚沙土,褐黄色,中密,主要成分为角砾,{
}=305kpa,
=120kpa,局部为亚沙土混碎石。
2、全风化泥灰岩,灰色,中密,原岩结构,基本被破坏,节理裂隙发育,且较破碎,岩心呈泥沙状,{
}=800kpa,
=180kpa。
3、强风化泥灰岩,灰色,原岩结构部分被破坏,
,且较破碎,岩心多为短柱状,
4、弱风化泥灰岩,灰色,泥晶结构,薄-中厚层状结构,
,且较破碎,岩心多为短柱状,
。
1.3.4 主要材料
1.3.4.1 混凝土



1.3.4.2 钢材
钢筋:Ⅱ级钢筋直径均大于12mm,为热轧带肋钢筋;Ⅰ级钢筋为热轧光圆钢筋。
Ⅱ级钢筋的材质符合GB1499-91的标准;Ⅰ级钢筋的材质符合GB13013-91的标准。
预应力钢绞线:采用符合国家标准的高强低松弛15.2钢绞线,抗拉强度标准值为1860Mpa,张拉控制应力为1395Mpa。
1.3.4.3 其他材料
伸缩缝:本设计桥梁采用SSFB系列伸缩缝进行设计。
支座:主桥支座采用GPZ系列盆式橡胶支座。
预应力管道:主桥箱梁纵向育英路管道采用塑料波纹管。
桥型方案比选
2.1 构思宗旨
1、符合桥址所在区域发展规划,满足当地快速发展的经济的交通需要。
2、桥梁结构造型简洁、轻巧,不与原桥型相似,形成当地一道新的风景线以体现当地的经济发展实力,和现代建桥风格,国家的建桥水平。
3、设计方案尽量满足结构新颖的要求,采用新式桥型,在要求美观的同事保证受力合理,轻盈可靠且施工方便。
2.2 比选原则
桥梁设计需遵循“实用、经济、安全、美观和环保”的基本原则。
2.3 方案比选
表2.1 桥型方案比选表
桥型方案 | 斜拉桥 | 连续刚构箱梁桥 |
使用性能 | 抗震能力强,建筑高度高,施工工期长,难以维护 | 抗震能力强,建筑高度高,工期较短,难以维护 |
受力特性 | 桥面体系以主梁受弯为主,支撑体系以拉索受拉和索塔受压为主 | 上部结构和连续梁受力相同,桥墩受力,减小了上部结构弯矩,墩梁结合处类似钢架结构结构受力,采用变截面符合梁内力分布规律,充分利用梁截面 |
经济性 | 施工费用较大 | 经济实用 |
美观性 | 构造外形美观 | 构造简单,线形简洁美观 |
施工方式 | 悬臂吊装施工法 | 悬臂施工法 |
养护量 | 大 | 小 |
方案一 预应力混凝土斜拉桥
主桥采用30 90 90 30m预应力混凝土箱梁,桥长240m。主桥桥墩采用空心薄壁墩。主梁采用悬臂吊装施工的方法。
以上是毕业论文大纲或资料介绍,该课题完整毕业论文、开题报告、任务书、程序设计、图纸设计等资料请添加微信获取,微信号:bysjorg。
相关图片展示:










