G6公路3×26m简支转连续小箱梁桥结构设计毕业论文
2021-12-04 19:26:40
论文总字数:57859字
摘 要
本毕业设计题目为3×26m简支转连续小箱梁桥结构设计,以G6公路(京藏高速)实际项目为背景,本次计算内容有小箱梁上部结构和小箱梁下部结构计算。简支转连续小箱梁在实际生活中非常的实用,不仅造价成本低,而且经久耐用,桥身结构轻,更是大跨径桥梁的首选。
本次设计首先根据相关规范要求和设计经验拟定了主梁的主要构造和相关细部的尺寸,考虑到桥梁结构形式与地质条件,桥台采用肋板式桥台,桥墩选用圆柱墩,基础均选用摩擦桩,上部结构施工方式为预制吊装施工。
其次利用MIDAS 软件进行建模,然后分析得出上部结构的计算内力以及应力,还有各施工阶段和使用阶段的各种验算,以及桥梁的变形情况。在建模阶段考虑了包括温度和各种次内力的影响,使得建模与实际情况尽量相符。手算的部分包括局部锚固处的承压验算,以及行车道板的计算,还有就是要对下部结构各结构进行手算。采用手算与电算相结合的计算方式。
经过对本设计的分析计算,结果表明:桥梁内力分布合理,并符合相应规范要求。
关键词:简支转连续;结构分析;MIDAS/CIVIL
Abstract
This graduation design topic is 3×26 m simple support turns the continuous small box girder bridge structure design, takes the G6 highway (Beijing-Tibet Expressway) actual project as the background, this calculation content has the small box girder superstructure and the small box girder substructure calculation. Simple-supported continuous small box girder is very practical in real life, not only low cost, but also durable, the structure of the bridge is light, but also the first choice for large span bridges.
This design first according to the relevant code requirements and design experience to draw up the main beam of the main structure and related details of the size, considering the bridge structure form and geological conditions, abutment using ribbed slab abutment, pier using cylindrical pier, foundation are selected friction pile, superstructure construction mode for prefabricated hoisting construction.
After modeling by using MIDAS software, the calculated internal forces and stresses of the superstructure, as well as the checking calculation of each construction each construction stage and use stage, and the deformation of the bridge. In the modeling stage, the influence of temperature and various sub-internal forces is considered, so that the modeling is as consistent as possible with the actual situation. The part of manual calculation includes the checking calculation of the pressure at the local anchorage, the calculation of the carriageway plate, and the manual calculation of each structure of the substructure. The method of combining manual calculation with computer calculation is adopted.
Through the analysis and calculation of this design, the results show that the internal force distribution of the bridge is reasonable and meets the requirements of the corresponding specifications.
Keywords: simple support to continuous; structural analysis; MIDAS/CIVIL;
目 录
摘 要 II
Abstract III
第1章 绪论 1
1.1 简支转连续小箱梁 1
1.2 设计思想及意义 1
第2章 桥型方案比选 2
2.1 构思宗旨 2
2.2 比选原则 2
2.3 设计方案 2
2.3.1 简支转连续小箱梁 2
2.3.2 混凝土简支T梁 4
2.3.3 变高度连续箱梁桥 5
2.3.4 方案比选 6
第3章 桥跨总体布置及结构尺寸拟定 8
3.1 桥梁跨径 8
3.2 上部结构尺寸拟定 8
3.2.1 顺桥向横截面尺寸拟定 8
3.2.2 横桥向主梁尺寸 8
3.3 下部结构尺寸的拟定 8
3.3.1 墩身尺寸拟定 8
3.3.2 桥台拟定 9
3.3.3 桩基础尺寸拟定 9
第4章 建 模 10
4.1 模型简化 10
4.1.1 横向分布系数的计算 10
4.1.2 模型简化 11
4.2 主要参数说明 12
4.2.1 材料参数 12
4.2.2 荷载参数 13
4.2.3 边界说明 13
4.3 施工阶段说明 14
第5章 梁结构内力计算桥 15
5.1 恒载内力 15
5.2 活载内力 17
第6章 预应力钢筋设计及预应力损失计算 22
6.1 预应力钢筋设计 22
6.1.1 纵向预应力筋估算 22
6.1.2 预应力筋的布置 25
6.2 预应力损失 25
6.2.1 预应力钢筋与管道壁之间的摩擦 26
6.2.2 锚具变形、钢筋回缩和接缝压缩 26
6.2.3 预应力钢筋与台座之间的温差 σl3 27
6.2.4 混凝土的弹性压缩 27
6.2.5 预应力钢筋的应力松弛 27
6.2.6 混凝土的收缩徐变σl6 27
6.2.7 预应力损失计算结果 28
第7章 次内力计算及内力组合 30
7.1 温度次内力 30
7.1.1 计算依据及方法 30
7.1.2 温度内力的计算 30
7.2 基础不均匀沉降次内力 35
7.3 预应力产生的内力 37
7.4 收缩次内力 38
7.5 徐变次内力 39
7.6 内力组合 41
7.6.1 承载能力极限状态组合 41
7.6.2 正常使用极限状态组合 43
第8章 主要截面验算 47
8.1 承载能力极限状态截面验算 47
8.1.1 使用阶段正截面抗弯验算 47
8.1.2 使用阶段斜截面抗剪验算 49
8.2 正常使用极限状态截面验算 51
8.2.1 使用阶段正截面抗裂验算 51
8.2.2 使用阶段斜截面抗裂验算 53
8.2.3 挠度验算 55
8.3 持久状况和短暂状况构件的应力验算 56
8.3.1 使用阶段正截面压应力验算 56
8.3.2 使用阶段斜截面主压应力验算 57
8.3.3 受拉区钢筋的拉应力验算 59
第9章 锚下局部承压验算 62
9.1 局部受压区尺寸要求 62
9.2 局部抗压承载力计算 63
第10章 行车道板计算 64
10.1 中间单向板计算 64
10.1.1 恒载内力 64
10.1.2 活载内力 64
10.1.3 内力组合 65
10.2 边梁悬臂板内力计算 66
10.2.1 恒载内力 66
10.2.2 活载内力 66
10.2.3 内力组合 66
10.3 桥面板配筋设计 67
第11章 盖梁计算 68
11.1 计算原理 68
11.2 盖梁截面配筋 70
11.3 盖梁截面承载力验算 70
第12章 桥墩计算 73
12.1 荷载计算 73
12.2 截面配筋计算 74
12.3 墩柱截面承载力验算 75
第13章 桥墩钻孔灌注桩计算 77
13.1 荷载计算 77
13.2 桩长计算 77
13.3 桩的内力及位移计算 79
13.3.1 基本假定 79
13.3.2 桩的计算宽度 79
13.3.3 桩的变形系数 80
13.3.4 计算最大冲刷线处桩身弯矩M0,水平力Q0及轴向力P0 80
13.3.5 计算最大冲刷线下深Z处桩截面弯矩Mz及水平压应力σzx 80
13.3.6 桩顶纵向水平位移验算 82
13.3.7 桩身截面配筋计算 83
13.4 墩柱截面承载力验算 86
第14章 结论 87
致谢 88
参考文献 89
绪论
简支转连续小箱梁
简支转连续小箱梁是现在工厂预制好各跨梁,然后在现场安装到桥墩上,在安装过程中要先把桥安装到临时支座上,形成简支结构,然后现浇湿接缝,待湿接缝达到混凝土龄期后安装永久支座并张拉顶板负弯,转换体系为连续结构,这样的结构使得桥梁的寿命得以延长。
设计思想及意义
此次毕业设计我们是以G6公路(即京藏高速公路)实际项目为背景,对其中某路段的3×26m简支转连续小箱梁进行设计,设计内容包括对桥梁上部结构的电算、以及对下部结构手算、以及主要的施工图纸的设计,旨在培养学生综合运用所学知识,独立完成课题的能力。
在设计的过程中,学生不仅要用到大学四年所学知识,还要学习一些新的知识,接触一些新的软件,这无疑是一个比较不错的挑战。对于每个能够自主完成毕业设计的学生,相信在以后的工作生活中都有一定的独挡一面的能力,毕竟在工作中总会有遇到很多运用我们所学知识及软件无法解决的东西。
总的来说,本次毕业设计是我们走向社会进入工作的一个过渡,目的就在于提前培养我们的综合能力,以及考验我们遇到未知课题时的处理能力,它对于我们巩固旧知识,培养新能力,以及处理实际问题具有重大意义。
桥型方案比选
构思宗旨
(1)经济耐用,具有实用价值,满足当地交通运输需求
(2)桥型新颖,结构优美,稳定,安全可靠
请支付后下载全文,论文总字数:57859字
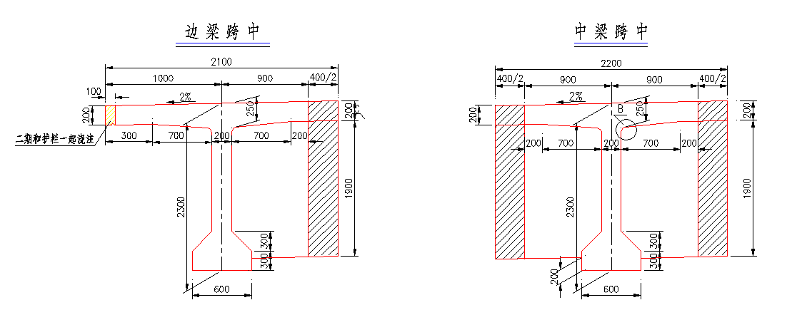
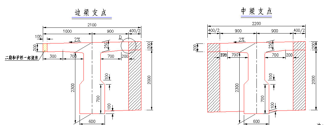
相关图片展示:







