南京师范大学中北学院教学楼A楼毕业论文
2020-05-31 20:38:28
摘 要
第一章 结构选型与布置 6
1.1。结构选型 6
1.2结构布置 6
第二章 荷载计算 9
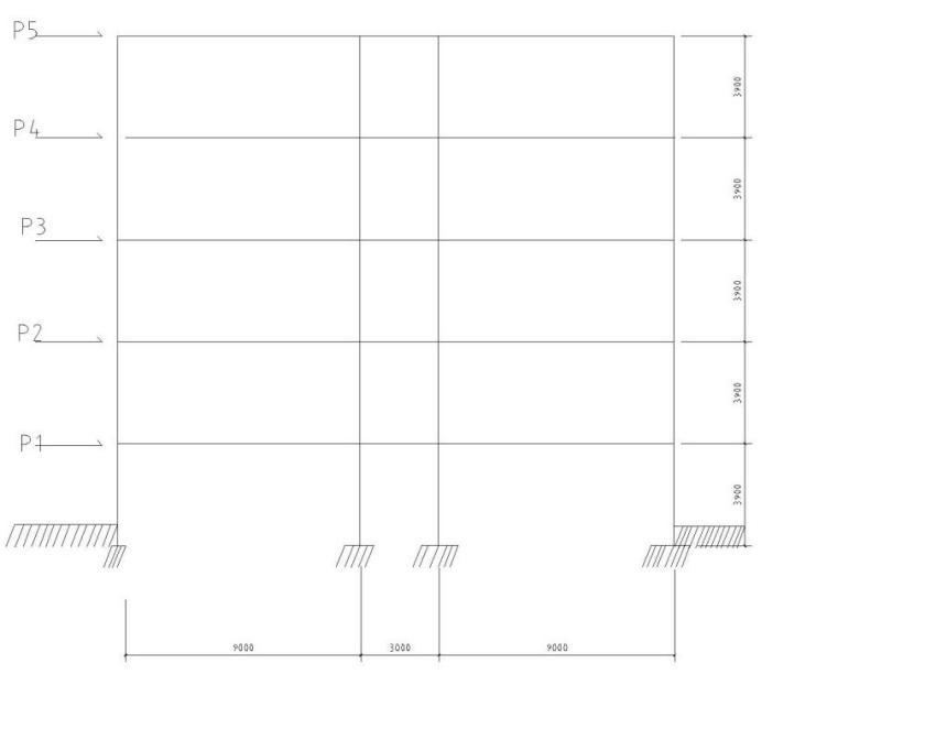
2.1确定计算简图 9
2.2梁、柱截面尺寸 9
2.3材料强度等级 10
2.4荷载计算 10
第三章 内力计算 22
3.1恒载作用下的框架内力 22
3.2活载作用下的框架内力 27
3.3风荷载作用下的位移、内力计算 34
3.4地震作用下横向框架的内力计算 35
第四章内力组合 40
第五章 框架梁柱截面设计 51
第六章 楼梯结构计算设计 60
6.1梯段板计算 60
6.2休息平台计算 61
第七章 现浇楼面板设计 64
7.1跨中最大弯矩 64
7.2求支座中点最大弯矩 65
7.2.3 A区格 65
7.2.4 E区格 66
第八章 基础设计 69
8.1.确定持力层 69
8.2. 确定桩身材料 69
8.3.确定单桩竖向承载力 69
8.4确定布桩与桩数 70
8.5重新验算桩数 70
8.5承台结构验算 71
参考文献 75
致谢 77
摘要
建筑名称:南京师范大学中北学院A楼
位 置:南京市仙林大学城
结构类型:钢筋混凝土框架结构
层 数:5层
总建筑面积:15000m2
本设计建筑名称为教学楼。 本教学楼建筑建筑总高度20米,共5层,层高3.9米,采用现浇钢筋混凝土框架结构,抗震等级为2级,抗震设防烈度为7度,整个设计包括建筑设计和结构设计两部分。
建筑设计部分,首先根据建筑的使用功能确定建筑的初步布局,包括建筑体形及室内空间布置等,然后结合使用的材料、做法进一步确定具体尺寸和平、立面风格等。具体来说,主要包括总平面设计、建筑平面设计(功能布局及布置思路、房间的布置、卫生间的设计、楼梯布置、柱网布置等)、立面设计、剖面设计(层数层高确定及楼梯设计)、建筑材料设计(屋面做法、楼面做法)、防火设计,并对主要设计规范、尺寸单位、荷载及钢筋混凝土作了附加说明。
结构设计部分,首先根据建筑设计、工艺使用要求、材料供应情况以及场地地质条件等确定结构布置方案,然后选取一榀典型框架进行设计计算。在明确计算简图的前提下,进一步确定框架承受的荷载,包括恒载、屋(楼)面活载和风荷载,在此基础上进行框架内力计算(采用D值法计算风荷载作用下的内力,采用弯矩二次分配法计算竖向荷载作用下的内力)、内力组合、梁、柱和基础等构件的配筋计算以及风荷载作用下的侧移验算。除此之外,还进行了楼梯设计(梯段板设计、平台板设计及平台梁设计)等。
为进一步验证手算结果的精确度,采用PKPM 2010行业软件进行了电算,比较分析表明手算结果是可靠的。最后用AutoCAD进行绘图。
关键词:钢筋混凝土框架结构;教学楼建筑;建筑设计;结构设计
Abstract
Building Name:Nanjing Normal University, North Building, Building A
Location :Economic and Technological Development Zone of Qingdao
Struture System: R.C.frame
Number of Stories: 5 stories
Total floor area:15000m2
The present project is a 5-storey library with the floor height 3.9m and the total height 25.875m. The four-layer building is adopted the cast-in-place reinforced concrete frame structure, and the seismic fortification intensity is 7 with the anti-seismic level 3. The entire graduation project divides into two parts, that is, the architectural design part and the structural design part.
In the architectural design part, the general layout is first determined according to the building function, including conformation and indoor spatial setting; then the dimension, plane style and elevation style are chosen considering the engineering materials and constructional details. Make it more specific,it includes the total plane design, architectural graphic design (the function layout and layout thinking, the room arrangement and the design of toilet, stair layout, column, etc), the facade design layout, section design(the number and the height of layers identity and stair design), building materials design (roofing approach, the floor practice) and fire prevention design. In addition, instructions for the main design norms and dimensions, load and reinforced concrete is given.
In the structural design part, the array of structure is first determined according to architectural design, process demand, material supply and geological conditions; then a typical transverse frame is taken to be computed. After the extract of computation sketch, the external loads such as the dead load, living load on the roof (floor) and the wind load are calculated; then the internal force in the structure is obtained through the moment distribution method under vertical loading and the modified knick point method under horizontal loads. In the following, the combination of internal force is performed. On the above basis, the design of structural components such as beams, columns and foundations are respectively carried out, and at the same time the checking computation of the slidesway under wind load is done. In addition, the design of the stair (ladder period of board design, smooth bedplate design and platform beam design), the canopy and other accessory components are also completed..
To verify the accuracy of above results, numerical tests are performed with the software PKPM 2005, and the comparisons prove that the original results are reliable. Finally, the construction documents are completed using the software AutoCAD 2013.
相关图片展示:









