港城广场建设项目15-1、16-1、17-1地块总承包工程(除桩基)施工组织设计毕业论文
2020-07-06 18:31:11
摘 要
港城广场建设项目15-1、16-1、17-1地块总承包工程(除桩基)施工组织设计是基于建设单位的意图和要求、工程的施工图纸及标准图、施工组织总设计对本工程的质量、工期和成本的控制要求、资源配置情况、建筑环境、场地条件和地质、气象资料、有关标准、规范和法律及有关技术新成果和类似建设工程项目的资料和经验等编制而成。
本施工组织设计包含了施工部署计划、施工准备计划、主要分部分项施工方案、施工进度计划、技术组织保证措施、资源计划及施工现场临时设施部署计划。通过合理的项目结构分解(WBS)与项目组织结构指导项目施工运行。
关键词:项目结构分解(WBS) 进度计划 施工方案
Construction Organization Design of the General Contracting Project (except pile foundation) of the Block 15-1, 16-1 and 17-1 of the Construction Project of Gangcheng Square
Abstract
Gangcheng square construction project 15-1, 16-1, 17-1 block general contracting project (except pile foundation) Construction Organization Design is based on the purpose and requirement of the construction unit, construction of the standard drawing, construction organization design and construction drawings on the engineering quality, time limit and cost control requirements, the allocation of resources, building environment and site condition and geological and meteorological data, standards, rules and relevant laws and the relevant technology and new achievements, and similar data and experience of the construction project.
This construction organization design includes the deployment of construction plan, construction preparation, main branch disciplines construction scheme, construction progress plan, technical organization guarantee measures, resource planning and the construction site temporary facilities deployment plan. Guide the construction and operation of the project through reasonable project structure decomposition (WBS) and project organization structure.
Key Words: Work Breakdown Structure;Schedule plan;Construction Pla
目录
摘要 I
Abstract II
第一章 工程概况 1
1.1工程建设概况 1
1.1.1基地概况 1
1.1.2参建单位 1
1.1.3总包和分包范围 1
1.1.4工程地层岩性 1
1.1.5气象条件 3
1.2各专业设计概况 3
1.2.1建筑设计概况 3
1.2.2结构设计概况 3
1.3施工项目结构分解 5
第二章 施工部署 6
2.1工程施工目标 6
2.1.1工期目标 6
2.1.2质量目标 6
2.1.3安全目标 6
2.1.4绿色施工目标 6
2.2施工的重点和难点分析 6
2.2.1组织管理重点难点分析 6
2.2.2施工技术重点、难点分析及保证措施 7
2.3工程管理组织机构形式、人员配备和职责分工 7
2.3.1组织机构形式 8
2.3.2人员职责 8
第三章 施工准备 11
3.1施工资料准备 11
3.1.1 施工资料调查工作 11
3.1.2 施工与设计资料结合工作 11
3.1.3编制施工图预算和施工预算工作 11
3.2 技术资料准备 12
3.3 施工现场准备 12
3.3.1 施工用水、用电准备 12
3.3.2施工场地道路准备 13
3.3.3施工设备准备 13
3.4物资准备 13
3.4.1 物资和机械准备 13
3.4.2 资金准备 13
3.5施工队伍准备 14
3.5.1 组织准备 14
3.5.2 劳动力准备 14
第四章 施工方案 16
4.1总体施工顺序 16
4.1.1施工顺序 16
4.1.2施工总流程安排 16
4.2主要分部分项工程施工顺序 17
4.3主要分部分项工程施工方案 17
4.3.1土方工程 17
4.3.2钢筋工程 18
4.3.3模板工程 20
4.3.4混凝土工程 24
4.3.5砌体工程 27
4.3.6脚手架工程 28
4.3.7装饰装修工程 29
4.3.8门窗工程 30
4.4专项施工方案 32
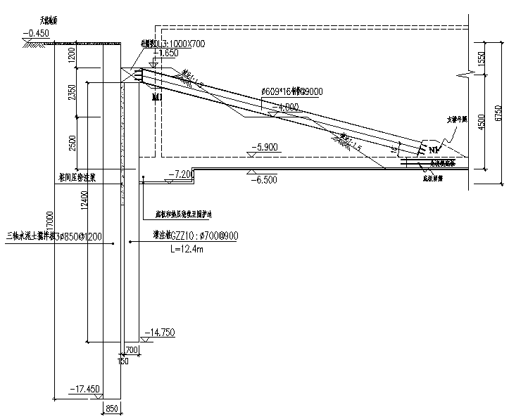
4.4.1基坑支护主要施工方法和技术措施 32
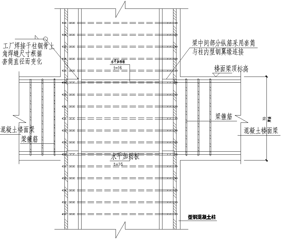
4.4.2劲性结构及钢结构施工 36
4.4.3人防工程施工 40
4.4.4群塔工程施工方案 41
4.4.5防水工程主要施工方法和技术措施 42
第五章 项目施工进度计划 45
5.1施工项目总进度目标的确定及分解 45
5.1.1项目施工进度目标的确定 45
5.1.2施工项目分解 45
5.2进度计划的编制 48
5.2.1控制性进度计划 48
5.2.2实施性进度计划 48
5.2.3作业性进度计划 48
5.2.4双代号网络图 48
5.2.5单代号网络图 48
第六章 技术组织措施 49
6.1工程质量保证措施 49
6.1.1质量目标 49
6.1.2质量保证体系 50
6.1.3质量保证措施 51
6.2工程进度保证措施 53
6.2.1进度管理职能分工 53
6.2.2确保工期的组织措施 54
6.2.3确保工期的技术措施 55
6.3工程安全保证措施 55
6.3.1 建立“双标化”各项制度 55
6.3.2 安全生产措施 56
6.3.3 消防管理措施 58
6.3.4 文明施工总体措施 59
6.4工程文明施工措施 59
6.4.1 文明施工目标 59
6.4.2 场容场貌管理措施 59
6.4.3 文明建设和工地卫生措施 60
6.4.4 废水控制措施 61
6.4.5 扬尘及废气控制措施 62
6.4.6 施工噪声及振动的管理 62
6.4.7 建筑垃圾和渣土控制措施 63
6.4.8 光污染控制措施 64
6.4.9 土壤保护、地下设施和资源保护措施 65
6.4.10 对周边环境控制措施 66
6.4.11 对产品的保护控制措施 68
6.5季节性施工措施 68
6.5.1雨季作业施工方案 69
6.5.2高温作业施工方案 70
6.5.3防台防汛施工方案 70
6.5.4冬季作业施工方案 71
第七章 资源计划 73
7.1资源需用量计划 73
7.1.1劳动力需用量计划 73
7.1.2工程材料需用量计划 74
7.1.3主要施工机械、机具配置计划 75
7.1.4主要测量、计量、试验器具配置计划 76
7.2劳动力配置计划 78
第八章 项目施工临时设施和现场平面图 82
8.1主要生产及生活区布置 82
8.1.1施工现场布置 82
8.1.2办公区及生活区布置 82
8.2施工现场平面布置图 83
附录 84
参考文献 85
第一章 工程概况
1.1工程建设概况
1.1.1基地概况
本工程为港城广场建设项目15-1、16-1、17-1地块总承包工程(除桩基),位于上海市浦东新区,东至环湖西一路,西至环湖西二路,南至海港大道,北至南黄日港路。总建筑面积约为286032.58平方米,其中地下建筑面积约为90204.44平方米,地上建筑面积约为195828.14平方米。
1.1.2参建单位
业主单位:上海展博置业有限公司
设计单位:上海都市建筑设计有限公司
相关图片展示:









