绿地•成都铂仕公馆售楼处室内设计毕业论文
2020-04-16 15:51:13
摘 要
本设计方案以围绕绿地·成都铂仕公馆售楼处室内设计为题而展开,通过案列调研、对国内外售楼处室内设计相关理论整合和研究,分析室内设计元素在本设计中的运用。本售楼处设计将从该楼盘的周边环境和楼盘自身的特色出发,对地理条件和受众人群进行分析,确定该售楼处的地位和整体风格,致力于打造一个清雅含蓄、幽深清远、贴近自然的、具有东方式神韵的售楼处。本文将重点阐述设计思路、理念和具体设计内容。
关键词:售楼处 新中式 自然
The Sales Office Interior Design of Greenland Chengdu Boshi mansion
ABSTRACT
The design Project is based on the sales office interior design of Greenland Chengdu Boshi mansion and expand the by case study of domestic and international sales offices interior design theory and integrate research, analyzes interior design elements in the design of use . The design of the sales offices from the sale of real estate and the surrounding environment starting their own characteristics, geographic conditions and audience demographics analysis to determine the status of the sales offices and the overall style, to create a subtle and elegant, deep Qingyuan, close nature, with a sales office oriental charm. This article focuses on the design ideas, concepts and specific design content.
Key words: Sales offices,New Chinese style, Nature
目 录
摘要 I
ABSTRACTII
第一章 绪论 1
1.1研究背景 1
1.1.1 社会背景——售楼处设计的发展 1
1.1.2 项目背景1
1.2 研究的目的及意义1
1.2.1研究目的1
1.2.1研究意义2
1.3课题研究的内容和方法2
1.3.1课题研究的内容2
1.3.2课题研究的方法2
1.4 案例分析3
1.4.1深圳首营销售中心设计3
1.4.2重庆花与城销售中心室内设计3
第二章 售楼处室内设计概述 5
2.1售楼处室内设计基本元素 5
2.1.1室内空间区域划分5
2.1.2室内空间人流动线规划5
2.1.3室内空间色彩设计5
2.1.4室内空间灯光照明5
2.1.5室内空间装饰材料6
2.1.6室内空间多媒体表现6
第三章 绿地·成都铂仕公馆售楼处室内设计7
3.1售楼处设计的前期分析7
3.1.1项目介绍7
3.1.2受众分析7
3.2售楼处设计的思路7
3.2.1售楼处风格定位7
3.2.2策划思路定位7
3.3材质、空间色彩分析8
3.4展示灯光设计9
第四章绿地·成都铂仕公馆售楼处详细设计10
4.1设计概念分析10
4.2售楼处组织与规划10
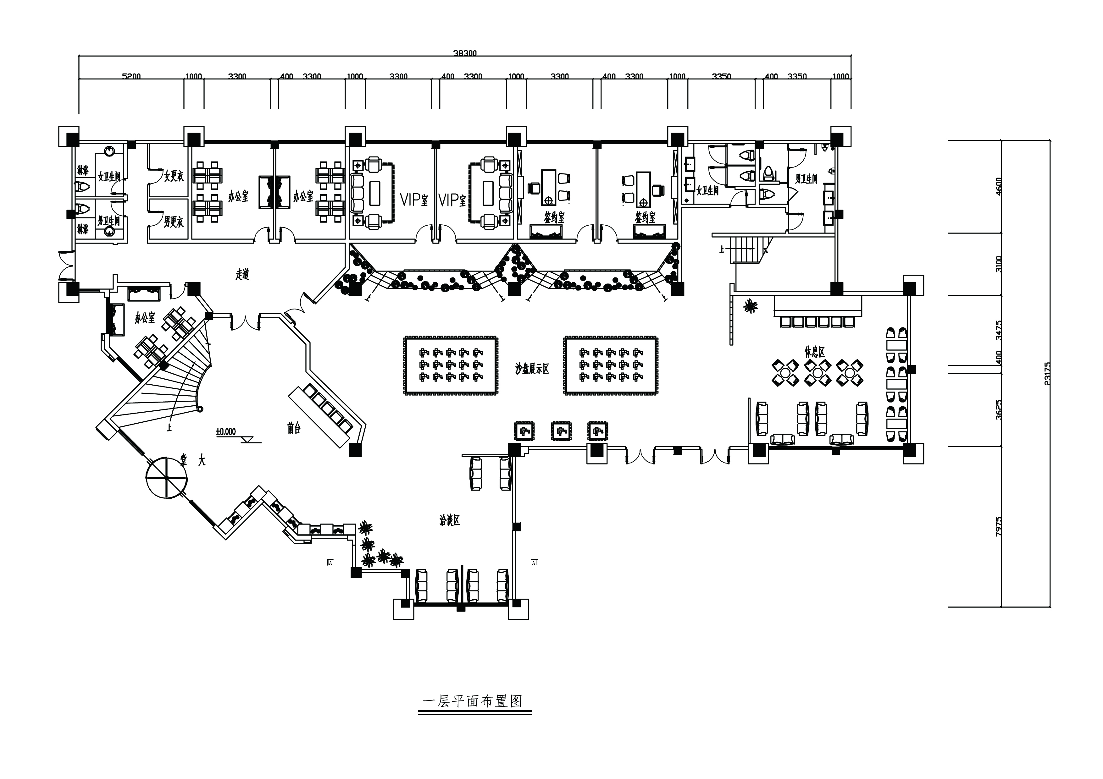
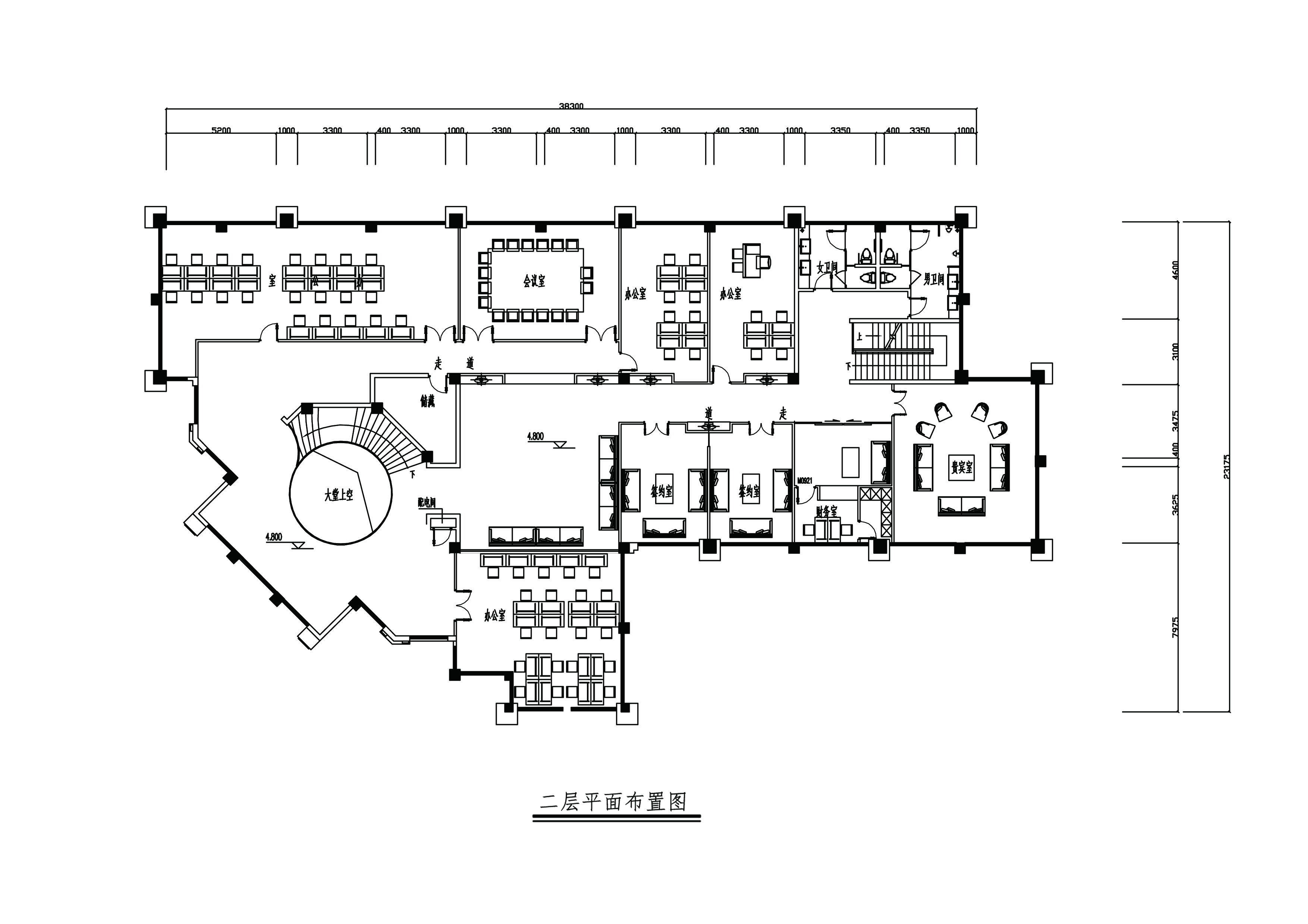
4.2.1售楼处平面布局规划10
4.2.2售楼处功能分区10
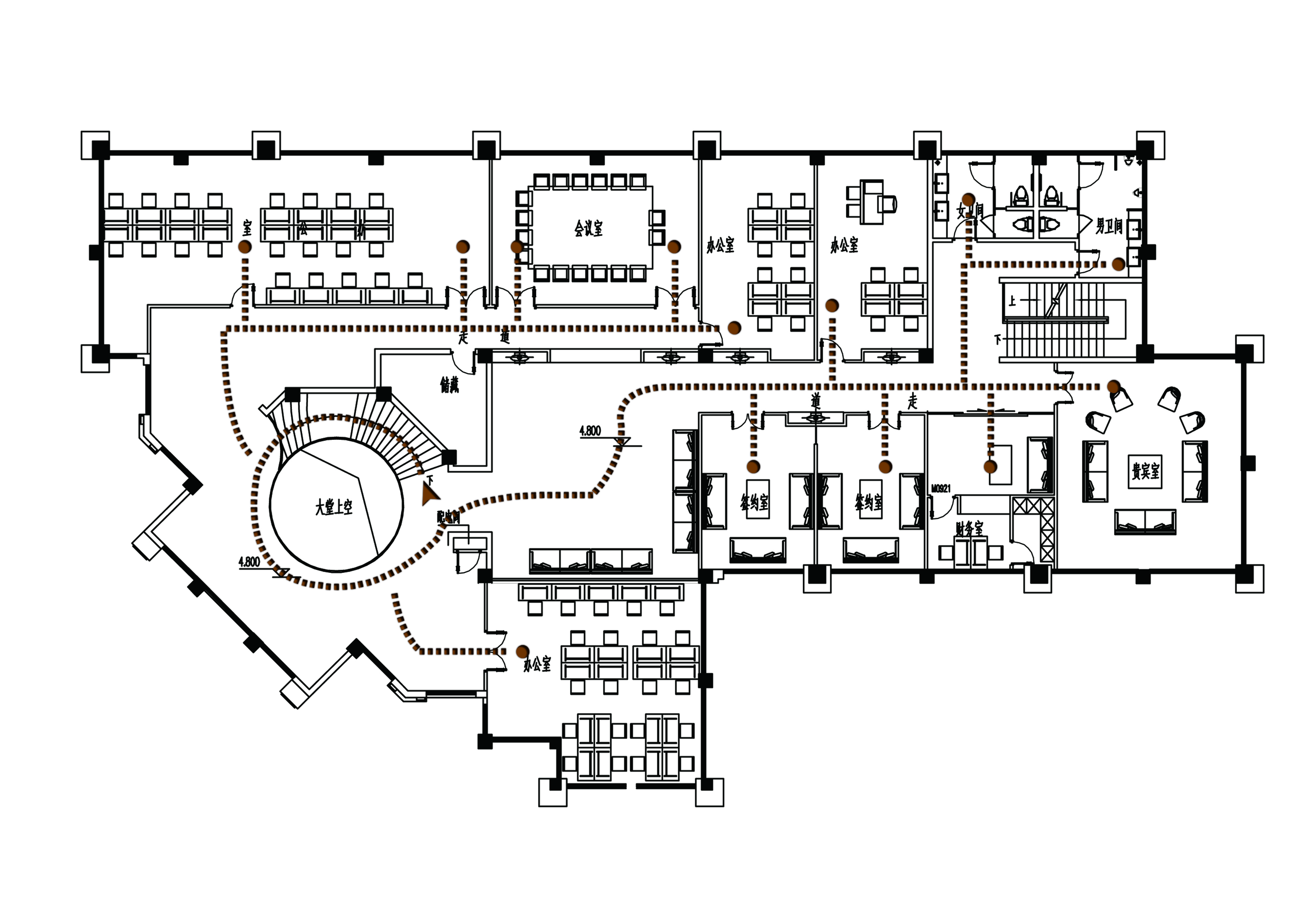
4.2.3售楼处人流动线组织11
4.3售楼处各功能区分析13
4.3.1前台大厅13
4.3.2洽谈区14
4.3.3沙盘展示区15
4.3.4 VIP室16
4.3.5签约室17
4.3.6休息区17
4.3.7会议室18
结语19
参考文献20
致谢22
第一章 绪论
1.1研究背景
1.1.1 社会背景——售楼处设计的发展
售楼处如同是一座桥梁,是商品、买方、卖方之间的桥梁。而商品类比楼盘,买方类比购房者,卖方类比楼盘开发商。一方面我们简单地说,售楼处的存在是为了给买房的顾客提供一个服务空间,但另一方面从深层次上说,售楼处却是整个待售楼盘的形象标识,楼盘开发商将楼盘信息、特色、优势以最好的状态展示在购房者的眼前,为了能够达到吸引购房者的眼球的目的,楼盘开发商对售楼处的整体外形和室内环境的需求都很高。外形要求独特,突出楼盘个性,能够吸引人的视线,勾起人想走进参观的欲望;室内设计不仅要让人感到舒适、优雅,又要体现楼盘开发商整体形象,宣传楼盘开发商,在设计时要考虑到客户的心理需求,确保售楼处的精致。
1.1.2项目背景
成都铂仕公馆是由上海绿地集团成都成华房地产开发有限公司进行项目开发的。绿地集团创立于1992年,是世界500强企业和上海市国有控股特大型企业集团。至今二十余年,始终坚持“绿地,让生活更美好“的企业宗旨,在以房地产为主业的综合性企业集团中排名第一位,发展增速位列全球第三、中国第一。
绿地集团进驻成都10年,项目布局成都,总占地达1500亩,可开发面积达260万平米,总投资额超过150亿元。
铂仕公馆,一个专注建筑品质和住宅文化的楼盘,为成都楼市填写更为浓重的一笔。打造的每一处楼盘都成功的传播了绿地的让生活更美好的理念。社区的园林采用自然布局力求与建筑相辅相成。此售楼处的设计,传承了绿地集团品牌理念,坚持生态自然与人的和谐。
1.2研究的目的及意义
1.2.1研究目的
当房地产进入营销时期,所有与楼盘销售有关的,包装楼盘已经成为现代社会的发展趋势。楼盘开发商主要通过售楼处进行销售,而售楼处具有了宣传和销售的功能,使得售楼处显得十分重要。所以,为了给客户呈现良好的视觉效果,激发他们强烈的购房欲望,售楼空间成为房地产营销环节中不可忽视的重要部分。而通过沙盘、展品,以及其他信息的展示,运用艺术的手法,吸引客户眼球,在有限的空间内,制造出最丰富全面的信息。因此,以此作为选题能使我们更好地了解实践设计的流程与方法,锻炼我们的实战能力。
1.2.2 研究意义
随着社会的进步,科技越来越发达,市场竞争越发激烈,各开发商利用设计各具特色的售楼处以此来吸引客户的眼球,来宣传自己的楼盘。购房者需要感受到的不仅是楼盘本身的魅力,更是整个企业传达出的服务理念,文化内涵。所以售楼处对房地产销售的作用再也不仅仅是装修,设计上对购房者感官的作用,人们越来越关注理念文化与人性化服务,这种心理上的满足,对设计师,对开发商都是新的挑战和创新。除此之外,通过一个个临时性亦或是永久性的充满艺术和设计感的建筑,也是这个城市,乃至国家的艺术氛围、精神文化意蕴的体现。
社会在发展,现在中国多数售楼处设计只是一个简单的销售楼盘的场所,没有氛围,本次设计致力于创新,设计一个用材料来表达情感的综合展示艺术,增强人与人之间情感的交流;让世界觉得中国在当代艺术上有所突破,既能保持中国特有的风格,也能将现代艺术表现的好。
以上是毕业论文大纲或资料介绍,该课题完整毕业论文、开题报告、任务书、程序设计、图纸设计等资料请添加微信获取,微信号:bysjorg。
相关图片展示:









