“霓裳羽衣”loft展示空间设计毕业论文
2020-04-16 15:50:23
摘 要
本文主要探究的是“霓裳羽衣”LOFT展示空间的设计,借助这种旧厂房式建筑,合理利用LOFT风格所具有的流动性、开放性、透明性、艺术性强等特点,打造一个既满足展示功能,也满足办公空间的服装展示会场。首先,本文通过对LOFT风格的形成原因、国内外的发展、现状等进行分析,探索“霓裳羽衣”LOFT展示空间的设计的意义和目的。其次,通过实践调查、网络搜素、文献查阅、以及与老师进行讨论的方法对当下LOFT风格的建筑尤其是展览馆这一类别的设计特点、空间布局等对文化发展以及它为表现主题所起到的作用进行探讨。最后,引出“霓裳羽衣”LOFT展示空间设计的课题。本文重对霓裳羽衣”LOFT展示空间内部的组件及划分、人性化、将工业元素与现代文明有机结合等方面的设计进行阐述。通过对 霓裳羽衣”LOFT展示空间的设计与探索,创造出符合观展人员心理需求的人性化展示环境,使之成为服装艺术活动的传播地,具有精美建筑风貌和艺术开放精神的文化场所。
关键词:“霓裳羽衣”LOFT展示空间 设计 心理需求 人性化
"Colourful Plumage" LOFT exhibition space design
Abstract
This paper is to explore "Colourful Plumage" LOFT design of exhibition space, with this old factory building, rational use of LOFT style has fluidity, openness, transparency, artistic, etc., to create a display function only meet , but also to meet the office space fashion show venue.Firstly, by causes of LOFT-style development at home and abroad, the status quo were analyzed to explore the "Colourful Plumage" LOFT design exhibition space meaning and purpose.Secondly, through the practice of investigation, network search elements, literature review, and discuss methods and teacher of contemporary LOFT-style architecture, especially the development of culture and its exhibition hall for the performance of the theme played by the design features of this type of spatial layout to explore the role.Finally, it leads to "Colourful Plumage" LOFT exhibition space design issues. In this paper, the weight of Colourful Plumage "LOFT internal components and display space division, humane, civilized and modern industrial elements and other aspects of organic combination of elaborate design. Through Colourful Plumage "Design and exploration LOFT exhibition space, to create a line concept development personnel psychological needs of humanity display environment, making it spread to clothing artistic activities, cultural and artistic venues exquisite architectural style open spirit.
Key Words:"Colourful Plumage" LOFT exhibition space;Design;Psychological needs;Humanize
目录
摘 要.....................................................................................................Ⅰ
Abstract....................................................................................................Ⅱ
第一章 课题概述.....................................................................................1
1.1 LOFT空间背景分析........................................................................................1
1.2 LOFT空间的设计特点....................................................................................2
1.3 课题的研究内容和方法.................................................................................3
1.3.1 研究内容.............................................................................................3
1.3.2 研究方法.............................................................................................4
第二章 前期调研......................................................................................5
2.1 国内外经典案例分析.....................................................................................5
2.1.1国外经典案例分析..............................................................................5
2.1.2国内经典案例分析..............................................................................7
2.2 “霓裳羽衣”LOFT展厅设计概况................................................................9
2.2.1 设计地点.............................................................................................9
2.2.2 目标群体.............................................................................................9
2.2.3 设计风格............................................................................................10
第三章 方案构思 ...................................................................................11
3.1“霓裳羽衣”LOFT展厅设计构思................................................................ 11
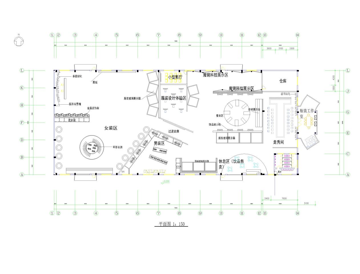
3.1.1 功能分区及平面构思........................................................................11
3.1.2 人流动线构思....................................................................................12
3.2“霓裳羽衣”LOFT展厅设计思路.................................................................13
3.2.1“霓裳羽衣”展厅设计理念..............................................................13
3.2.2“霓裳羽衣”LOFT展厅展示手法.....................................................14
3.2.3“霓裳羽衣”LOFT展厅展馆体验.....................................................14
第四章 最终设计.....................................................................................15
4.1“ 霓裳羽衣”LOFT展厅道具造型设计.......................................................15
4.2“霓裳羽衣”LOFT展厅设计亮点................................................................16
4.2.2 “羽”顶.............................................................................................17
4.2.3 “3D魔镜隧道”...............................................................................17
4.3“霓裳羽衣”LOFT展厅最终效果.................................................................18
结语..........................................................................................................23
参考文献..................................................................................................24
致谢..........................................................................................................26
第一章 课题概述
1.1 LOFT空间背景分析
“LOFT”这个单词在牛津词典里的意思是“在屋顶之下,用来存放东西的阁楼”,而如今,“LOFT”已经成为设计行业中的一个专业名词,它在行业内的解释是由旧工厂或旧仓库改造而成的,少有内墙隔断的高挑开敞空间,通过在保留原来厂房结构和外观的基础上,在内部的大空间中重新进行布局,既可以成为工作场所亦可以满足生活的空间。
关于LOFT的空间概念初始于19世纪中叶的巴黎,成形于上世纪40年代的纽约soho地区,并在上世纪50年代后迅速繁衍至美国芝加哥、旧金山、洛杉矾、西班牙巴塞罗那、意大利米兰、德国柏林、法国巴黎等发达国家和地区。生活在那个时期的艺术家们,为了能不影响工作,还能逃避生活在市区所需要支付的高额租金,便想到了利用一些废弃的工业产房。这些艺术家通过对这些旧厂房的改造,打造出了既能工作又能生活的各种空间。同时,厂房里高大的窗户以及宽敞的空间也满足了这些艺术家的需要。因此,也可以说LOFT空间是工业空间和其他功能的一种结合产物,被赋予了新的功能价值。后来,LOFT一词就剥褪了顶楼、阁楼或厂房、仓库的原始外衣,换上了先锋艺术的时装,并且人们还在不断地采用新潮的设计与艺术思想赋予其新的活力,构建出一个崭新的空间。
以上是毕业论文大纲或资料介绍,该课题完整毕业论文、开题报告、任务书、程序设计、图纸设计等资料请添加微信获取,微信号:bysjorg。
相关图片展示:









