基于OpenFOAM的粘弹性流体注塑成型嵌件流动的模拟研究毕业论文
2020-02-18 10:40:52
摘 要
随着石油化工工业和聚合物工程的迅速发展,处理和操作粘弹性流体渐渐变得十分关键。粘弹性流体在流动的过程中,大多数情况下都会流经由不同尺寸的管道拼接形成的收缩或扩展流道。本文借助计算流体力学软件OpenFOAM对粘弹性嵌件收缩流动进行了数值模拟。模拟中首先建立几何模型,划分网格,设定合适的边界条件,此后选取DCPP模型为本构模型,其引入了非线性参数,能够区分分支和线性大分子结构,同时确定拉伸流动在确定复杂流动行为中的作用,随后讨论了不同尺寸的圆形嵌件以及腰圆形嵌件导致的聚合物浓厚体系的变化,包括速度场U、第一法向应力差N1、第二法向应力差N2以及主应力差PSD等。在圆形嵌件收缩流中,U、N1、N2以及PSD变化明显,且嵌件直径越大,对流体阻碍作用越强,流体受到的剪切拉伸作用越强。在腰圆形嵌件中,相对尺寸长度L等于1.5mm时,对流场速度提升最为合适,其N1、N2的幅值最大。对两种流动进行了分析,所得结果对于聚合物的加工、模具优化具有重要的指导意义。
关键词:粘弹性流体;DCPP模型;变尺寸嵌件;收缩流
Abstract
With the rapid development of petrochemical industry and polymer engineering, the treatment and operation of viscoelastic fluids are becoming increasingly critical. In the process of viscoelastic fluid flow, in most cases, it flows through different sizes of pipes to form contraction or expansion channels. In this paper, the contractile flow of viscoelastic fluid through inserts is numerically simulated by using computational fluid dynamics software OpenFOAM. In the simulation, geometric model is established firstly, mesh is divided and appropriate boundary conditions are set. Then DCPP constitutive model is selected. Nonlinear parameter is introduced to distinguish branching and linear macromolecular structure. At the same time, the role of tensile flow in determining complex flow behavior is determined. Polymer concentration caused by circular inserts of different sizes and waist-circle inserts of different sizes is discussed. The variation of thick system includes velocity field U, first normal stress difference N1, second normal stress difference N2 and principal stress difference PSD. In the shrinkage flow of circular insert, U, N1, N2 and PSD change obviously, and the larger the diameter of the insert, the stronger the hindrance to the fluid and the stronger the shear and tensile effect on the fluid. When the relative dimension length L is equal to 1.5mm, it is most suitable to increase the velocity of the flow field, and the magnitudes of N1 and N2 are the largest in the waist circular insert. By analyzing the two kinds of flow, the results obtained have important guiding significance for polymer processing and die optimization.
Key Words:viscoelastic fluid;DCPP model;variable-size inserts;contractile flow
目 录
第1章 绪论 1
1.1粘弹性流体简介 1
1.2计算流体动力学(CFD)及OpenFOAM简介 2
1.3国内外研究现状 2
1.4本文研究内容 3
第2章 数值模拟基础、求解设置及准确性验证 5
2.1本构方程 5
2.2控制方程 5
2.3数值算法 6
2.4模型验证 7
2.5数值算法求解设置 8
2.5.1边界条件设置 8
2.5.2物性参数设置 9
2.5.3求解器设置 9
2.6本章小结 9
第3章 中心放置的变尺寸圆形嵌件收缩流分析 10
3.1圆形嵌件流道几何模型建立 10
3.2圆形嵌件流道网格划分 10
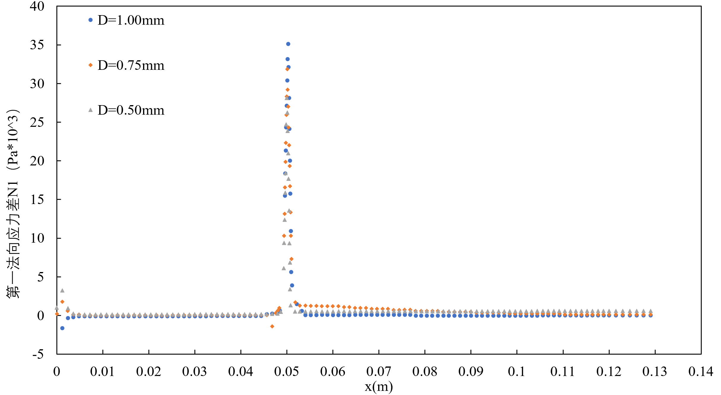
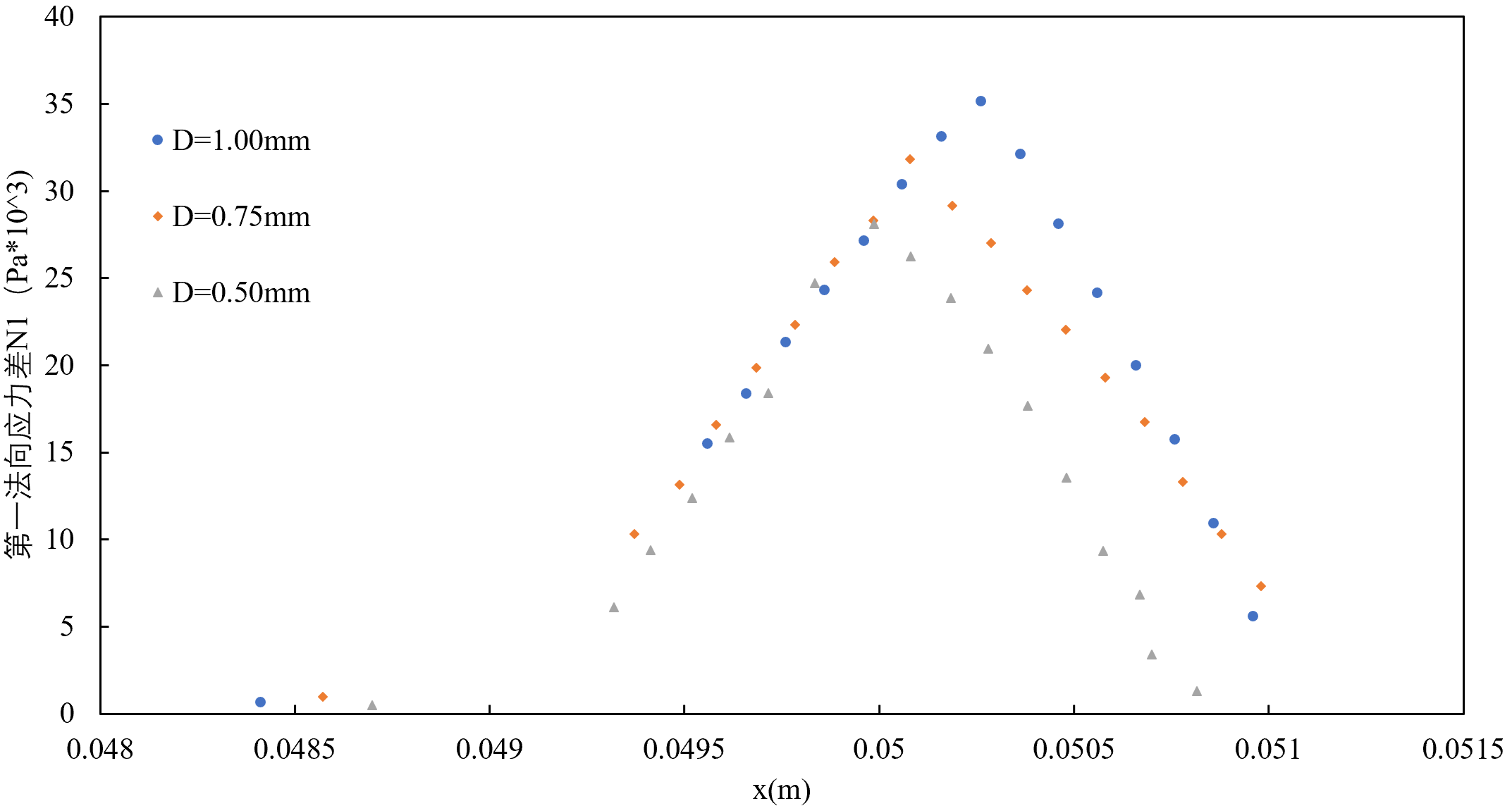
3.3圆形嵌件流道数值计算结果与分析 11
3.3.1速度场 11
3.3.2第一法向应力差和第二法向应力差 12
3.3.3主应力差 17
3.4本章小结 17
第4章 中心放置的变尺寸腰圆形嵌件收缩流分析 19
4.1腰圆形嵌件流道几何模型建立 19
4.2腰圆形嵌件流道网格划分 19
4.3腰圆形嵌件流道数值计算 20
4.3.1速度场 20
4.3.2第一法向应力差和第二法向应力差 21
4.3.2主应力差 24
4.4本章小结 25
第5章 总结与展望 27
5.1全文总结 27
5.2工作展望 29
致 谢 32
第1章 绪论
1.1粘弹性流体简介
粘弹性流体是指介于粘性流体和弹性固体之间的流体,它能同时表现出粘性和弹性,在不超过屈服强度的条件下,剪应力去除后,其变形能部分的复原[1]。严格意义上说,粘弹性流体并不多见,常见的如沥青、油漆以及凝固汽油等等。但随着石油化工工业和聚合物工程的迅速发展,处理和操作粘弹性流体渐渐变得十分关键。在粘弹性流体的剪切流动时,粘度的函数与剪切时间有一定联系,还会出现法向应力差效应等。粘弹性流体在流动的过程中,大多数情况下都会流经由不同尺寸的管道拼接形成的收缩或扩展流道。在注塑成型的过程中,模具的流道内通常含有一些形状以及尺寸各异的嵌件。这些嵌件会使得粘弹性流体的流变行为发生变化,使得流体的流动特性发生改变。因此,研究粘弹性流体流动特性成为了一个比较重要的热点话题。
在研究粘弹性流体的过程中,特别是高分子领域中,选择合适的本构模型是求解中最为关键也较为困难的一步。所选择的本构模型需能准确的描述材料的流变特性。在聚合物浓厚体系中,构造合理描述大分子链缠结效应的本构方程是相当困难的,特别是考虑到支化链对分子链缠结效应的影响[2]。就目前而言,国内外的研究学者提出了很多描述聚合物的本构模型,如Olyroyd B模型、PP(Pom-Pom)模型、XPP(Extended Pom-Pom)模型、DCPP(Double Convected Pom-Pom)模型等。除此之外还有许多简化模型,如White–Metzner、PTT、KBKZ模型等。Oldroyd B模型[3]由于其粘度以及第一法向应力差为常数,不适用于粘弹性材料剪切变稀以及第一法向应力差随着剪切力发生变化的粘弹性流体。Pom-Pom模型[4]是由McLeish和Larson基于蛇管爬行和支化分子拓扑学理论提出的,被认为是粘弹性流体本构方程研究过程中的重大突破。Pom–Pom模型在预测支化聚合物的流变性能方面非常成功。但同时它还显示了一些数值和流变缺陷,这些缺陷可能妨碍其在复杂流动模拟中的应用。从流变学的角度来看,Blackwell等人提出了改进。在阻力-应变耦合项下,当大分子达到其最大拉伸时,稳定的拉伸粘度会出现一些突变。此外,McLeish和Larson提出的Pom-Pom模型的特征是第二法向应力差不可预测,这与实验证据是不符的。随后,Verbeeten等[5]人提出了XPP(Extended Pom-Pom model)本构模型。模型引入各向异性参数α,使得剪切过程中的第二法向应力差不为零,但模型存在高剪切速率下的过度剪切变稀现象和计算模拟过程中的数值算法的不稳定性而被摒弃。Clemeur等[6]人解决了 Pom-Pom模型中稳定拉伸黏度不连续以及不能预测第二法向应力差的缺点,提出了DCPP(Double Convected Pom-Pom)模型。相关参数研究结果也表明,双对流Pom-Pom(DCPP)模型能够根据实验观察区分分支和线性大分子结构,同时确定拉伸性质在确定复杂流动行为中的作用。
1.2计算流体动力学(CFD)及OpenFOAM简介
计算流体动力学(CFD)如今是一门朝气蓬勃的学课。相比起传统的实验求解和解析求解,CFD将流体力学与计算机科学相互融合,利用计算机强大的计算能力求解控制流体流动的偏微分方程组。计算流体力学的原理是用数值方法求解非线性联立的质量、能量、组分、动量和自定义的标量微分方程组,预测流动、传热、传质、燃烧等过程的变化[7]。由于其求解过程只需要在计算机上进行,其便利性也大大丰富了使用价值。就目前而言,许多行业已经将CFD纳入工作流程之中,利用CFD理论来指导实践,如航天设计、生物医学领域、化工处理等。
在求解流体流动过程中,利用实验求解和解析求解复杂流体流动的过程都是十分困难的。因此,现在的研究方向是采取数值模拟的方法求解流体的流场。其计算过程是在空间上用有限体积法或其他相类似的方法将计算域离散化,形成一定数量的体积单元,在每个体积单元上求解离散后的控制方程组。
OpenFOAM(Open Source Field Operation and Manipulation)[8]作为世界最大的免费的CFD开源软件,是一个C 类库,其用于创建可执行文件,如应用程序。OpenFOAM内置的应用程序分为两类:求解器(solver)与工具(utilities)。其中求解器是为了处理特定的连续介质的力学问题而设计的;而工具则是为了执行数据操作等任务而设计的。OpenFOAM的一个特点是用户可以通过一些必要的知识(数学、物理和编程技术等)创建新的求解器和工具。OpenFOAM中新的求解器对多弛豫时间、高Wi数问题、混合网格有着更大的适用性,并且支持并行运算与数据处理,在解决大网格尺寸的问题上有明显优势。此外,作为一个广泛使用的免费开源CFD软件包,具有着C 面向对象编程语言的内在优势,其软件包针对具体问题,可开发自定义的求解器,加深了其用途的广阔性。
1.3国内外研究现状
就目前国内的研究现状而言,Zhao等[2]人选取了XPP模型进行了全域的数值模拟,并得到了支化聚合物在嵌件平板收缩流中的粘弹性行为,如流函数等值线、拉伸量、第一法向应力差以及第二法向应力差等,此后分析比较了方型嵌件处于不同位置时粘弹性流体的流动特性。Zhou[9]等人应用Boltzmann方法结合Oldrody B模型,阐述了不可压缩的Navier-Stokes方程和平流扩散本构方程的解耦及各自求解方法,以及两种问题的边界格式处理,实现了粘弹性流体在二维1:3扩展流道以及3:1收缩流道中的流动的数值模拟,获得了雷诺数和维森伯格数以及粘度下流动的流线分布及其影响;Liu[10]等人基于Rolie-Poly模型数值模拟了聚苯乙烯熔体注塑成型过程中粘弹性流动特征,并讨论了聚苯乙烯的分子取向,延伸和变形;Hu[11]等人模拟求解了十字交叉粘弹性流动与聚乙烯熔体的圆柱绕流,探讨了聚合物拓扑结构与其复杂流变行为的关系。
国外有众多学者研究粘弹性流体流动的特性。Schmidt[12]等人对聚(对苯二甲酸乙二醇酯)(PET)瓶的拉伸/吹塑成型过程,进行了数值模拟并结合实验结果实验进行了比较;Yapici[13]等人采用有限体积方法,选取Oldroyd B模型模拟计算出了多范围维森伯格数与雷诺数的顶盖驱动腔体流动;Favero[14]等人提出了一种基于分裂应力张量法和平衡应力张量概念的数值方法,用任意微分本构方程处理高维森伯格数的问题,该方法是在一种新的计算流体动力学(CFD)工具中实现的,此后对平面4:1收缩流进行了分析计算,以评估该方法的稳定性和有效性;Griebel和Rüttgers[15]等人进行了三维粘弹性流动在方形-方形收缩中的多尺度模拟; Haward[16]等人研究了聚苯乙烯溶液基准8:1微流体平面收缩的流动,该设计对于优化芯片实验室设计以及与弹性主导流体的建模研究进行具有较为重要的意义;Comminal[17]等人采用流函数-对数构象方法模拟计算了Oldroyd B流体在4:1平面收缩中的涡旋行为;López-Aguilar[18]等人模拟了纵横比为10:1:10的圆形收缩再膨胀几何中的流动,分析对比了时间依赖性和粘弹性塑性流动; Nouri[19]等人对纳米流体在突然膨胀和收缩的通道内球形热源上的熵产进行了分析,探讨了体积分数和热源温度对熵产的影响。通过对中外学者的研究现状进行分析,从中可以发现对几何尺寸与粘弹性流体的流变行为关系研究较少,导致的浓厚体系变化缺少宏观表征的物理量对比,且不同尺寸引起的规律缺少阐释与总结。因此在复杂变尺寸嵌件收缩流道的粘弹性流动领域的研究是十分必要的。
1.4本文研究内容
在粘弹性流体注塑成型过程中流道内时常包含有不同形状和尺寸的嵌件,因此优化流道设计成了亟待解决的问题。本文针对粘弹性流体在注塑成型四分之一收缩流内的流动,利用OpenFOAM开源CFD软件,对复杂变尺寸嵌件下的粘弹性流体4:1收缩流动进行了模拟仿真,得到其在嵌件内的流场特性,分析粘弹性流体的流动特点,比较在流经不同形状及尺寸的嵌件时,粘弹性流体流动过程中所表现出的不同流变特性。研究的主要方案见图1.1所示。
本次研究主要工作内容如下:
(1)结合国内外研究现状,确定本次研究内容和研究方法,包括调研模型尺寸、选取合适的本构模型,建立控制方程等。

图1.1 设计采取的技术方案
(2)学习网格划分,利用ICEM CFD对几何模型进行网格划分;学习OpenFOAM开源CFD软件的使用方法,对粘弹性流体嵌件收缩流开展数值模拟。
(3)分析数值模拟结果,包括速度场、第一法向应力差、第二法向应力差等,比较不同形状和尺寸的嵌件对流场特性的影响,为聚合物的加工以及模具的优化提供思路。
第2章 数值模拟基础、求解设置及准确性验证
本章主要介绍此次选用的DCPP模型的本构方程、粘弹性流体流动的控制方程以及在求解过程中数值算法等。
2.1本构方程
由于PP模型在数值和流变中的缺陷以及XPP模型存在高剪切速率下的过度剪切变稀现象和计算模拟过程中的数值算法的不稳定性,此次设计选取了DCPP模型作为本构模型。此模型克服了以上模型在稳定拉伸黏度不连续以及不能计算第二法向应力差的缺陷其相关参数研究结果也表明,DCPP模型能够根据实验观察区分分支和线性大分子结构,同时确定拉伸性质在复杂流动行为中的作用。DCPP模型的本构方程[20]主要由式(2.1)描述,其形式为:
  | (2.1)  | 
上式为单模式下的DCPP模型参数,T为粘弹性额外应力张量,S和分别表示方向张量(单位迹线)和拉伸变量,用于描述Pom–Pom大分子的行为,I为单位张量,G为剪切模量。为控制第二法向应力差的非线性参数。张量S和拉伸量分别由式(2.2)和式(2.3)得出:
(2.2)  | ||
(2.3)  | 
上式中,D为变形率张量,和分别代表上对流导数和下对流导数。式(2.2)(2.3)中包含有许多的材料参数,和G是线性参数的范畴, 为取向弛豫时间,为拉伸机制的弛豫时间,q取决于Pom-Pom大分子的支链数,而参数,q, 为非线性参数。
2.2控制方程
粘弹性流体不可压缩流动的控制方程是连续性方程(2.4)和动量守恒方程(2.5)如下:
(2.4)  | ||||
(2.5)  | ||||
上式中:为流体的密度,u为速度矢量,p为压力,为应力张量。应力张量可分为牛顿应力张量和弹性聚合物应力张量,三者之间的关系以及计算公式如下列方程所示:
(2.6)  | ||
(2.7)  | ||
(2.8)  | 
上式中:是溶剂粘度;D为变形率张量;由粘弹性流体的本构方程决定。其中变形率张量D由式(2.9)计算:
(2.9)  | 
2.3数值算法
在OpenFOAM中,大部分的求解器都是使用PISO或者SIMPLE算法,或者两者的结合体PIPMLE算法。其中,SIMPLE算法用来处理稳态问题,而PISO和PIMPLE算法用来处理非稳态问题。SIMPLE算法[21]是利用先猜想后验证的方式求得压力场,在运算前包含两个假设:(1)基本假设:速度场的假定和压力场的假定各自独立进行,二者没有任何联系。对假定压力场的修正是通过求解得到的速度场的质量守恒条件得到的。中间速度通过求解当前压力而得到,如不满足质量守恒,加入一个修正量进行修正,则速度场也会修正;(2)第二假设:在做速度修正时,忽略不同位置的速度修正量之间的相互影响。SIMPLE算法的主要思路是:(1)假设一个初始速度分布记为;(2)将初始速度场带入动量离散方程中,求解离散方程的系数以及常数项;(3)假定一个压力场;(4)求解动量离散方程,得;(5)求解压力修正方程,得;(6)根据修正速度场;(7)求解通过源项物性等与速度场耦合的变量,如果变量不影响流场,则应在速度场收敛后求解;(8)判断结果是否收敛,若收敛,输出结果,若不收敛,利用改进后的速度场重新计算动量离散方程的系数,并利用改进后的压力场作为下一次迭代的初值。
以上是毕业论文大纲或资料介绍,该课题完整毕业论文、开题报告、任务书、程序设计、图纸设计等资料请添加微信获取,微信号:bysjorg。
相关图片展示:








        
            
