南京工业大学科技创新大楼防排烟系统设计——团队课题《南京工业大学科技科技创新大楼消防系统设计及火灾风险数值模拟与评估》的子课题毕业论文
2020-05-15 22:29:38
摘 要
近年来,高层建筑火灾的发生率明显上升。与普通低层建筑相比,高层建筑由于其建筑层数多且结构复杂的特点,使得高层建筑火灾的蔓延速度及危害远高于低层建筑。其中最明显的就是火灾产生的烟气量大大增加,而烟气又是火灾中致人死亡的主要因素。由此可见,高层建筑的防排烟系统的设计尤为重要。
南京工业大学科技创新大楼属于一类高层建筑,鉴于高层建筑火灾的危险性,本文针对南京工业大学科技创新大楼进行了防排烟系统的设计,主要包括机械加压送风系统和机械排烟系统的设计。机械加压送风系统设置在地下室车库及地上高层建筑的防烟楼梯间及合用前室部位。机械排烟系统设置在地下室车库和地上高层建筑的走廊、中庭等部位。机械加压送风防烟设计主要包括三个方面:计算加压送风量、设置加压送风系统、设置加压送风系统的压力控制。机械排烟系统设计主要包括五个方面:划分防火防烟分区、计算排烟量、设计排烟口、设计排烟风机及排烟风道。
关键词:防排烟系统 高层建筑 地下车库 机械加压送风系统 机械排烟系统
Abstract
In recent years, the occurrence rate of high rise buildings is obviously increased.Compared with the ordinary low level buildings, high-rise buildings because of its many buildings and complex structure characteristics, making the spread of high building fire speed and damage is much higher than the low level buildings.One of the most obvious is that the amount of smoke generated by the fire greatly increased, while the smoke is the main cause of death in the fire.This shows that the design of high-rise building smoke exhaust system is particularly important.Mechanical pressurization system set in the basement and garage floor high-rise building smoke proof staircase and common antechamber part.Mechanical smoke exhaust system is set up in the basement of the garage and the floor of the corridor, the atrium and other parts of the building.
Nanjing Tech University of Technology science and technology innovation building belongs to a class of high-rise buildings,In view of the danger of high rise building fire,In this paper, the design of smoke control system is designed for the science and technology innovation building of Nanjing University of Technology,The design of mechanical ventilation system and mechanical smoke exhaust system is mainly included in the system.The design of mechanical pressurization air supply and smoke control mainly includes three aspects: the calculation of the pressurized air supply, the setting of the pressurized air supply system and the pressure control of the pressurized air supply system.The design of mechanical smoke exhaust system mainly includes five aspects: Division of fire prevention and smoke partition, calculation of smoke exhaust, design of smoke exhaust port, exhaust fan and exhaust duct.
Key words: smoke control system;high-rise building;underground garage;mechanical pressurized air supply system;mechanical smoke exhaust system
目录
摘要 I
Abstract II
绪论 1
第一章 工程概况 2
1.1工程概况 2
1.2消防火灾隐患 2
1.3设计范围 2
第二章 防排烟概述 3
2.1高层建筑的火灾危险性 3
2.2高层建筑的火灾特点 3
2.3防排烟的基本方法 3
2.3.1自然排烟 3
2.3.2机械排烟 4
2.3.3机械加压送风防烟 4
第三章 设计依据及规范 5
3.1依据 5
3.2规范 5
3.3防排烟设计的程序 5
3.4防排烟方式的选择 6
3.4.1防烟方式主要有以下几种: 6
3.4.2排烟方式 7
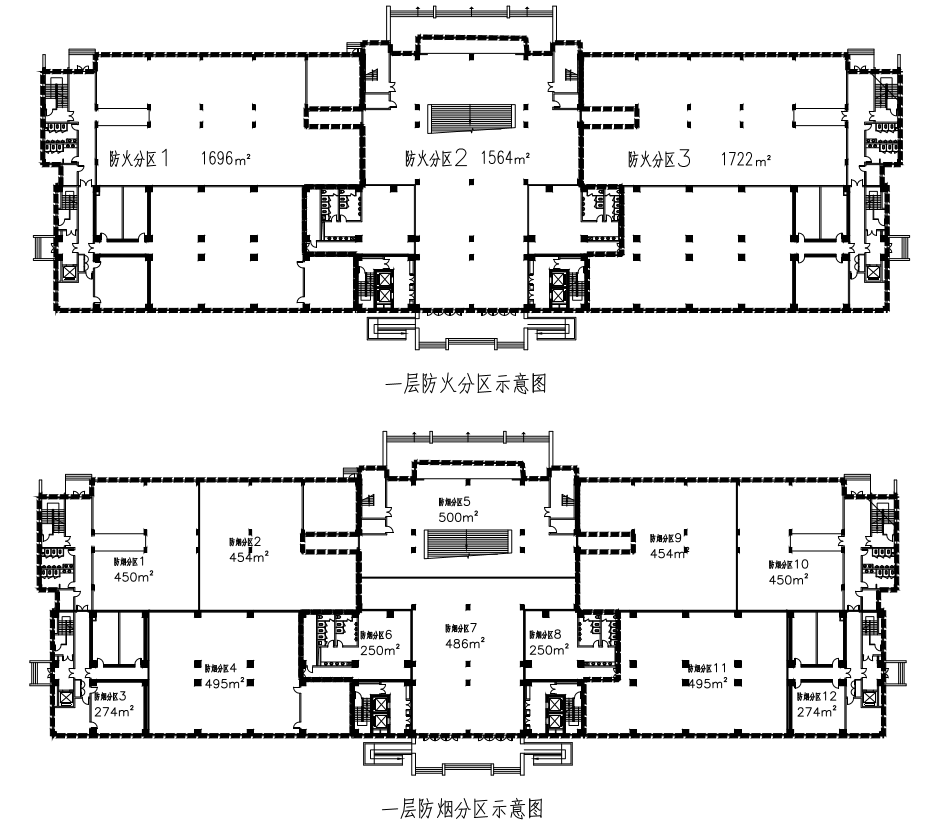
第四章 防火分区及防烟分区的划分 8
4.1防火分区 8
4.2防烟分区 8
第五章 机械加压送风系统设计 14
5.1机械加压送风系统运行方式 14
5.2确定机械加压送风防烟的部位 14
5.3设计机械加压送风系统 16
5.3.1计算机械加压送风量 16
5.3.2计算法 16
5.3.3查表法 18
5.4计算加压送风系统阻力 18
5.4.1沿程阻力损失 18
5.4.2 局部阻力损失 19
5.5 各部位加压送风的计算 19
5.5.1 防烟楼梯间1 19
5.5.2 合用前室2 21
5.5.3防烟楼梯间3 23
5.5.4风机选型 25
第六章 机械排烟系统设计 27
6.1地下车库机械排烟系统设计 27
6.1.1确定排烟量 27
6.1.2排烟口设计 27
6.1.3排烟管道设计 28
6.1.4阻力计算 28
6.1.5风机选型 29
6.2地上部分机械排烟 30
6.2.1 机械排烟设计规范 30
6.2.3地上二层机械排烟设计 32
6.2.4地上3层机械排烟设计 33
6.2.5地上四层到地上二十六层机械排烟设计 35
第七章 总结 38
参考文献 39
绪论
最近几年,越来越多的高层建筑火灾发生,对人民的生命和财产造成了巨大的损失。据统计显示,在火灾事故中,烟气中毒和窒息是人员未能及时安全逃离而伤亡的主要原因。以下列举几个因烟气而伤亡的代表性火灾事故案例。2000年12月15日,河南洛阳的东都商厦发生特大火灾事故,商厦的地下二层起火,火灾并未向地下一层及地上建筑蔓延,然而四层的娱乐城却被火灾产生的高温烟气吞噬,309名在娱乐城内的人员无一逃生。又如2003年10月18日美国芝加哥的政府大楼火灾,当时政府大楼的中部起火,大量烟气从起火处一直向上蔓延,由于烟气的遮蔽性使得许多人被困在楼内找不到疏散通道。虽然大火只在大楼中部起火处燃烧,但是起火点以上的楼层都受到了浓烟的威胁,许多人因浓烟都有不同程度的熏伤及死亡。从这些火灾事故案例中可以发现防排烟在高层建筑的消防安全中的至关重要的地位。那么怎么样才能做到在火灾事故发生时及时排除建筑内的浓烟而能使被困人员能及时安全的通过安全通道撤离,同时能使消防人员进入火灾场所进行有效的灭火救援工作,最大程度上减少人员的伤亡和财产的损失呢?建立严谨的防排烟规范,在规范的基础上进行科学合理的防排烟设计才是关键。
第一章 工程概况
1.1工程概况
本工程为南京工业大学科技综合楼,总建筑面积74415
,其中地下室的面积为7166
。建筑楼层为26层,共99.6m,为一类高层建筑,耐火等级为一级。主要功能如下:地下一层为人防工程,平时用作汽车库。一至二十五层主要用途为办公室、会议室、图书阅览室、报告厅以及实验室等,二十六层为设备层,消防水箱、电梯机房、风机房等设置在此。
1.2消防火灾隐患
根据《建筑设计防火规范》GB50016-2014,本建筑为一类高层建筑,地上部分存在的火灾隐患是火灾的蔓延速度快、人员疏散困难、火灾的扑救难度大、火灾的危险隐患多,地下室车库部分存在的火灾隐患是火灾发生时温度高无法泄压、产生的大量烟气难以排出等。
1.3设计范围
本次设计主要是地上高层建筑和地下室车库的加压送风防烟和机械排烟设计。
第二章 防排烟概述
2.1高层建筑的火灾危险性
高层建筑的层数多,这就造成了火灾发生时人员的逃生难度加大。另外,高层建筑的建筑结构较其他建筑更为复杂,各种竖向管井如电梯井、楼梯井、空调管道等,火灾都是通过这些途径向上蔓延的。高层建筑房间内的用电设备和可燃物较多,高层建筑的火灾危险性由此而增加。
2.2高层建筑的火灾特点
高层建筑的火灾发生后火势蔓延很快,烟囱效应强,高温、烟气、毒气等危害都特别严重。高层建筑内用电设备及可燃物较多,发生火灾时,火势会迅速的蔓延,产生大量有毒的烟气。而且高层建筑内容纳的人比较多,火灾事故发生时,由于高层建筑本身的复杂结构和人群在火灾中容易慌乱以及烟气的遮蔽性和有毒性,高层建筑发生火灾时人员不能及时安全疏散是主要的问题。人在浓烟气中几分钟就会晕倒死亡,而人在浓烟中晕倒的话,那死亡就是时间的问题了。热传播是高层建筑内火灾蔓延的方式,火灾蔓延的形式是热对流,烟囱效应是火灾向上蔓延的动力。高层建筑里的竖向管井、公用空间如中庭等部位容易产生立体火灾。
2.3防排烟的基本方法
2.3.1自然排烟
自然排烟是通过建筑的开口如门、窗、阳台等等或者排烟竖井,将室内的浓烟气排到室外。自然排烟有其优缺点,优点:不需要风机设备,平时可以通风。缺点:由于室外风向和风速的不稳定性及建筑内部结构复杂,造成了排烟效果的不稳定性。若建筑物开口部位在迎风面,不仅会降低排烟效果,还有可能加快烟气向建筑物其他部位的蔓延。自然排烟存在的主要问题:
(1)制约建筑的设计。
相关图片展示:









