小西弓中矿带金矿地下开采设计毕业论文
2020-02-18 00:11:53
摘 要
对我国金属矿山地下开采进行了解,通过系统工程控制,基本查明矿体规模、形态、产状及厚度与品位变化情况,初步划分矿床水文地质、工程地质、环境地质类型及复杂程度,综合划分矿床开采技术条件类型,大致评价其对矿床开采的影响程度。
我国的金矿产区大部分地质条件复杂, 开采条件较为恶劣,这就要求我们较为系统的掌握金属矿山地下开采采矿方法选择的技术条件,选用合理可行的方案,在设计过程中要吸取国外先进的金矿开采技术, 提高矿山的开采效率,减少金矿开采过程中的废弃率更好的利用金矿资源, 将资源损失降到最低。按照规定建设矿山安全避险六大系统以应对矿山安全事故的发生。
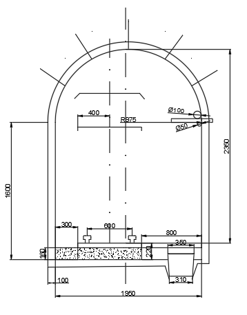
关键词:矿体地质条件;采矿方法;开拓采准;安全避险系统
Abstract
Understand the underground mining of metal mines in China, and systematically control the scale, shape, occurrence, thickness and grade change of the ore body, and preliminarily divide the hydrogeology, engineering geology, environmental geological type and complexity of the deposit, and comprehensively divide The type of technical conditions for mining, and roughly evaluate its impact on mining.
Most of the geological conditions in China's gold mining areas are complex, and the mining conditions are relatively harsh. This requires us to systematically grasp the technical conditions for the selection of mining methods for underground mining in metal mines, select reasonable and feasible solutions, and draw advanced foreign technology in the design process. The gold mining technology, improve the mining efficiency of the mine, reduce the abandonment rate in the gold mining process, make better use of gold resources, and minimize the loss of resources. In accordance with the provisions of the construction of six safe safety hazard systems to deal with the occurrence of mine safety accidents.
Key words: ore body geological conditions; mining method; development and mining; safe haven syste
目录
摘 要 I
Abstract II
第1章 绪论 1
1.1 目的及意义 1
1.2 设计主要内容 1
第2章 矿山概况 2
2.1 矿区地形、地貌、地物及其对开采的影响 2
2.1.1矿区位置及交通情况 2
2.1.2 矿体地质 3
2.1.3 矿石储量资源/储量估算的工业指标 4
2.2 矿床开拓方式及主要井巷的布置形式 4
2.2.1 开拓方案的选择 4
2.2.2 矿山工作制度、生产能力和服务年限 5
2.2.3 方案初选 5
2.2.4 矿床开采顺序 6
2.2.5 主要开拓巷道位置的选择 6
2.3 矿井提升运输系统及主要设备配备情况 7
第3章 采矿方法的选择 9
3.1对采矿方法的要求 9
3.2开采条件评价 9
3.3初步选择采矿方法 9
3.3.1浅孔留矿法 9
3.3.2 垂直深孔落矿阶段矿房法 10
3.3.3下向分层水力充填采矿法 11
第4章 采矿方法方案设计 14
4.1 结构与参数 14
4.1.1 矿块布置 14
4.1.2 阶段高度 14
4.1.3 采矿方法的结构参数 14
4.2 采准工作 14
4.3 切割工作 15
4.4 回采计算 15
4.4.1 凿岩设备和工具的选择 15
4.4.2炮眼布置和崩矿参数的选择设计 16
4.4.3 矿石出矿 17
4.5 采场通风 17
4.5.1 选择通风系统方式 17
4.5.2 通风系统的基本要求 17
4.5.3 风井布置方式 18
4.5.4 采区风量计算和通风时间 18
4.6 矿石搬运 18
4.6.1 搬运设备的选择 18
4.6.2 矿石出矿流程 19
4.6.3 铲运机生产能力和往返时间 19
4.7 回采作业循环图表 20
第5章 矿山基建工程 22
5.1 运输路线设计 22
5.1.1 运输线路布置 22
5.1.2 运输设备选择 22
5.2 平巷断面设计 23
5.2.1 断面形式的选择 23
5.2.2 断面尺寸的确定 23
5.3 竖井设计 26
5.3.1 断面形状选择 26
5.3.2 井筒断面设计 26
第6章 地下矿山安全避险系统 29
6.1 矿山安全避险六大系统 29
6.1.1 监测监控系统 29
6.1.2 井下人员定位系统 29
6.1.3 紧急避险系统 29
6.1.4 压风自救系统 30
6.1.5 供水施救系统 30
6.1.6 通信联络系统 30
6.2 矿山紧急避险系统使用管理与安全监督 31
总结 32
致谢 33
参考文献 34
第1章 绪论
1.1 目的及意义
我国内金矿分布较广,但其开采回收率却不高,希望通过此次设计过程中根据所设计矿山的自然条件和矿体产状,选择出合适的采矿方法,并依靠新型设备和技术,努力降低生产过程中矿石的损失贫化率,同时降低生产成本。
希望在设计过程中将以前所学习的专业知识系统化,补充新的知识点,提高自己搜集资料和独立解决问题的能力,为今后的专业学习打下基础。
1.2 设计主要内容
(1)开拓系统设计;
(2)采矿方法的选择;
(3)矿山提升与运输设计
(4)矿山通风系统设计
第2章 矿山概况
2.1 矿区地形、地貌、地物及其对开采的影响
2.1.1矿区位置及交通情况
小西弓中矿带金矿是小西弓金矿区的一部分,地理位置:甘肃省肃北蒙古族自治县马鬃山乡,位于玉门镇350°方向约65km处,地理坐标:东经96°48′00″—96°53′00″;北纬40°48′00″—40°50′00″。由酒泉沿312国道经玉门镇至3140km处向北有公路或便道可达矿区,总行程230km。矿区周边交通条件良好,矿区行至兰新铁路桥湾站行程约50km。
图1.1交通位置图

2.1.2 矿体地质
(1)矿化带特征
小西弓金矿区的地理位置在该区域断裂带靠北侧。由于断层的影响,导致矿体空间形态上呈条带状产出。该矿区主要有着3条矿化带,按照空间产出特征和地理位置等因素可划分成北、中、南三个矿带,。
(2)矿体特征
矿体在空间上的排列形式大致平行,产出形态主要为脉状。单个矿体长在50~700m,平均厚度0.85~2.62m,金含量一般在1.02~86.58×10-6。矿体走向290°~110°,倾向北,倾角58°~72°。
该矿区主要有两大矿体,分别为中矿带的主矿体Au2和最大饮服矿体Au6
厚度都在1~2.5m之间,倾角在60~70°,属于极倾斜矿体,且有用矿物含量均匀,工业品为中等。
(3)矿床水文地质条件
矿区内地貌为微切割的剥蚀丘陵与洪积山间倾斜平原,地形起伏不大,相对比高一般10~30m,最大相对比高不超过50m,最低侵蚀基准面海拔高程为1630m。位于矿区南侧戈壁滩。矿体大部分位于当地最低侵蚀基面之下,但矿区内及其附近无地表水存在。
该矿区地下水可划分为二种类型:第四系沟谷潜水、基岩裂隙水,基岩裂隙水根据富水裂隙的不同及水动力特征进一步划分为两个亚型,即变质岩基岩裂隙水和侵入岩基岩裂隙水。
矿床充水方式为直接充水,属裂隙充水矿床。主要充水水源为基岩裂隙水、浅层潜水及大气降水。初步确定矿区水文地质条件简单。
(4)矿区工程地质特征
小西弓金矿区地处北山坚硬-较坚硬工程地质区,低山丘陵坚硬-较坚硬工程地质亚区,按地貌单元和岩土体类型可进一步划分为三个工程地质地段,分别为稍密—松散卵砾石土工程地质地段、坚硬—较坚硬变质岩类工程地质地段、坚硬侵入岩岩类工程地质地段。
与矿床开采较为密切的工程地质岩组有坚硬—较坚硬变质岩类和坚硬侵入岩类,变质岩类的绢云钙质片岩、片状石英岩组成,局部夹二云片岩。侵入岩类的花岗岩、二长花岗岩、钾长花岗岩等构成矿体围岩。岩矿石结构构造多为花岗结构,块状构造,岩心多呈长柱状、柱状,以Ⅲ-Ⅳ级结构面为主,结构面多闭合,岩石坚硬、完整,裂隙不发育,可能会出现坍塌,局部掉块现象,井巷开拓时应采取必要的支护措施。
矿区地层岩性较简单,岩石整体强度高,稳定性好。但由于局部风化带、蚀变带、软弱夹层或构造断裂的存在,造成岩体稳定性降低,开采时可能引发矿山工程地质问题。因此,确定矿区工程地质条件为中等。
(5)环境地质
矿区周围居民区较少,处于旱区。矿区无崩塌、滑坡、泥石流等地质灾害发生。矿区内没有有毒、有害、放射性等污染源,地下水无污染,矿石和废石无有害物质分解。对于矿山开采生产出的矿石、废石处理场地要慎重考虑,要尽量远离沟谷地带,以免对当地环境的造成过度的污染和次生地质灾害的发生。
所以,矿区地质环境质量良好。
2.1.3 矿石储量资源/储量估算的工业指标
根据固体矿产地质勘查评价要求,依据《岩金矿地质勘查规范》(DZ/ T0205—2002),确定资源/储量估算的工业指标如下:
边 界 品 位:
工 业 品 位:
矿床平均品位:
最小米*克/吨值:≥2.0×10-6m*g/t
最小可采厚度:≥0.8m
夹石剔除厚度:≥2m
2.2 矿床开拓方式及主要井巷的布置形式
2.2.1 开拓方案的选择
(1) 选择矿床开拓方案的基本要求及影响因素
1)能为工人提供舒适的作业环境,同时安全性高,能够高效有序地完成作业流程所规定内容;
2)选择开拓工程量小的开拓方案,降低生产成本;
3)确保在规定时间内投产,在生产期间能及时准备出新阶段;
4)为了降低矿石损失贫化率,应该尽量少留保安矿柱;
5)地表工业建筑应该远离居民区和庄田,减少对环境的影响和不必要的经济纠纷。
(2) 影响开拓方案井巷类型选择的主要因素:
1)选择井巷类型时要考虑到矿山的自然地质环境;
2)根据矿体倾角选择开拓方法,对于极倾斜矿体选用竖井开拓方法比较合适;
4)选择开拓井巷类型的选择还应考虑到矿床的开采深度;
3)矿体倾角、厚度、埋藏深度等会对地表建筑物的布置范围及主要开拓巷道的位置产生很大的影响;
5)矿床规模通常是决定矿山生产能力的重要因素,开拓类型又取决于矿山生产能力;
6)矿岩的稳固性会对整个矿山开拓工程施工进度和安全性产生很大影响,所以周围岩石稳固性较差的情况下应该矿床开拓方式选用竖井掘进会相对方便;
(7)地表总图布置与主要井巷位置综合考虑,以求合理布局,降低生产经营成本。
2.2.2 矿山工作制度、生产能力和服务年限
(1.1)
式中:A——矿山年产量,9 万 t/a;
T——合理服务年限,年;
E——地质影响系数,0.7~1.0,取 0.7;
Q——矿床工业储量,564384t;
ρ——矿石贫化率,取ρ=10%;
η——矿石总回收率,取η=92%。
故:
所以该矿山日处理矿石300t,年处理矿石90000t,年工作天300天,是合理的,符合小西弓矿山经济上合理的矿山生产能力和服务年限。井下每天4班,每班6小时;井上每日工作3个班,每班8个小时。服务年限5年。
2.2.3 方案初选
考虑到矿床开拓方案选择的基本要求及影响开拓方案井巷类型选择的主要因素,结合本矿体实际情况:
(1)矿区位于羊圈沟-西尖山-华窑山复式向斜南翼靠近核部,羊圈沟-西尖山-华窑山大断裂大断裂北侧。
(2)矿体走向100°~130°,倾角58°~72°;
(3)Au2矿体走向长700m。
竖井开拓的使用条件:当矿体赋存地面工业场地标高以下,矿体倾角45°的矿体,且其赋存条件适应时,可采用明竖井开拓。
最后确定的开拓方案:竖井开拓,
主副井联合开拓, 布置1条主井、1条南北副井、1条专用进风井和1条南北专用回风井,共4条井。
2.2.4 矿床开采顺序
(1)阶段开采顺序
为了缩短矿山基建年限,提高矿山投产速度,采用下行式开采,单阶段回采。
为了在矿山初期的建设工程中降低建设成本,同时也能缩短建设周期,所以应该自上而下进行回采,这样做可以边采边探,可以避免浪费;这种开采方式生产安全条件好,适用的采矿方法范围广。
(2) 阶段中矿块开采顺序
因为此设计为金矿,矿床埋藏条件复杂,此阶段中矿块的开采顺序采用后退式开采。当一条阶段运输平巷掘进完成后,由矿体边界向主井依次回采各个矿块。
后退式开采的优点是:巷道维护工作少,维护费用低,采准矿量多,并有利于生产探矿工程提前安排。
缺点:矿井基建时间长。
(3)相邻矿体的开采顺序
如果一个矿床周围有许多临近矿体,这时开采其中一个矿体时,可能会影响邻近的矿体。因此确定合理的开采顺序,已达到安全生产和资源回收利用的目的。
由于矿体倾角大于围岩移动角,矿体间距离很近,选用先采上盘矿体后采下盘矿体的开采顺序。
2.2.5 主要开拓巷道位置的选择
(1)主要开拓巷道位置选择要求
选择主要开拓巷道的基本原则是:基建与生产经营成本低,尽可能不留保安矿柱,有方便和足够的工业场地,掘进条件良好等。在具体选择时应考虑以下因素:
1)矿体的产出特征;
2)井巷位置应尽量避开涌水量很高的地下含水层;
3)开掘井巷时应考虑到其位置和地面储矿仓、尾矿库距离及运输设备的搬运能力,尽量缩短运输距离,降低运输成本。
4)如果矿区位于高原地区,这种地区易发生自然灾害会对地面设施造成很大威胁,要进行重点防护。
5)历年最高洪水位不得高于井口出口位置3m。同时选厂、贮矿仓、卸矿口的水平位置应低于井口位置,这样运输设备行驶到该位置可利用重力运输,减少燃料消耗;
6)工业场地建设位置尽可能开阔,方便井下人员、物料的运输,但同时考虑到经济因素用不占或少占农田;
7)根据矿山生产需要原有工业场地进行扩迁,要求对原有井巷和有关建筑物、构筑物进行考虑以达到再利用。
(2)井底车场
井下各种巷道、联络道错综复杂,互相交汇,形成了井下车场这个重要的中转站。它连接着井下运输与井筒提升。主要作用是提升矿石、废石和物料,此外,也为升降人员、排水及通风等工作服务。同时,地下主要硐室如水泵房、变电所、电机车库、机修站等多设置在井底车场附近。
影响井底车场形式选择的因素:
1)提升井筒的数目、提升容器的类型以及井底车场的矿车运输系统应该满足矿山实际生产需要。
2)矿山井下的开拓运输系统的布置情况。
3)采矿方法的自动化程度以及运输设备的选型。
综合以上各因素,最终确立井底车场的形式为环形式井底车场。
(3)阶段运输巷道
满足运输能力的要求;安全和通风要求;支护材料消耗少,维护费用少;矿体的厚度和矿石、围岩的稳固性;其他技术要求。
综述,因为主矿体赋存于地平面以下,且为急倾斜矿体,所以采用下盘立井开拓,下盘立井井筒在矿体底板中。主井与副井采用集中布置,风井采用中央并列式布置,采用垂直式溜井,阶段运输巷道为单一沿脉布置形式。
2.3 矿井提升运输系统及主要设备配备情况
(1)矿山运输水平
通过所给资料知道矿山的储量及年产量都比较低,采用单罐笼提升设备,采用分散运输水平。
(2) 地下运输方式选择
根据本矿山矿床的自然地质条件、开拓系统、生产规模及与生产服务年限等,该矿山采用轨道运输方式。轨道运输可采用计算机控制管理,实现运输自动化措施,劳动条件改善,人员明显减少,运输效率提高,给矿山带来良好的经济效益。选择轨道运输方式做到了技术上先进可靠、经济上合理有利、运转安全、管理方便、能耗小、投资少。
(3) 井下运输设备
1)井下运输所需设备选择要求
①设计时应合理的选择生产不均匀系数和设备能力的配套系数;采取一些缓冲措施,如设置矿仓或储车线等,为缓和上下两个运输环节的生产不均匀性或不连续性。
②必须注意尽量减少运输转载的次数;
③井下运输设备、物料工作流程应简单方便,同时减少对通风的影响,避免阻碍风流流动。检查井下供电设施是否满足所需设备的要求;
2)机车的选择
以上是毕业论文大纲或资料介绍,该课题完整毕业论文、开题报告、任务书、程序设计、图纸设计等资料请添加微信获取,微信号:bysjorg。
相关图片展示:







        
            
