集装箱轨道场桥能耗与状态监测的大数据分析方案设计毕业论文
2020-02-14 19:20:29
摘 要
随着如今能源危机的日益加剧以及工人劳动力成本的不断提升,能源消耗对港口企业而言,一直扮演着重要的影响角色。对于能源消耗量巨大的港口而言,能耗量的多少对一个港口企业的核心竞争力有着十分重要的影响。就目前而言,港口企业对于节能环保这一方面,往往都通过采用替代能源等技术来做到节能效果,但都忽略了起重机本身的能耗特性,这必然会导致港口在节约能源上的瓶颈。因此,根据当今港口的需求本论文通过对港口中常用的轨道场桥进行研究,监测其运行时状态数据并进行相关分析,了解其能耗特性以及能耗与影响因素之间的关系,并结合数据挖掘技术,提出了一套轨道场桥的能耗监测分析系统的设计方案,这对港口企业的节能、降低成本具有一定意义。
本文以轨道场桥为研究对象,制定了一套能耗监测分析系统的方案,并提出了数据挖掘技术运用于对轨道场桥能耗监测数据关系的深度分析,之后将分析结果呈现给使用者。具体如下:
首先,对轨道场桥进行了总体结构设计,绘制了一张A1大小的图纸,并对其常规载荷、整体稳定性以及轮压进行了计算。
其次,通过轨道场桥的结构特点和能耗特性对轨道场桥的能耗数据的采集提供了方案,包括数据采集系统的设计和传感器布置设计。
最后,结合数据采集系统以及港口实际需求,设计了能耗数据分析模块。同时结合数据挖掘技术,提出将其运用于港口实际数据分析的方案。
关键词:能耗;数据挖掘;轨道场桥;设计;集装箱码头。
Abstract
With the increasingly intensified energy crisis and rising labor costs of workers, energy consumption plays an important role for port enterprises, both in terms of national energy consumption policies and their own operating costs. For ports with huge energy consumption, the amount of energy consumption has a very important impact on the core competitiveness of a port enterprise. At present, in terms of energy saving and environmental protection, port enterprises often adopt alternative energy technologies to achieve energy saving effect, but they ignore the energy consumption characteristics of the crane itself, which will inevitably lead to the bottleneck of energy saving in the port. Therefore, according to the needs of the port that is commonly used in this dissertation through to the port rail bridge is studied, monitoring the operation state of the data and related analysis, understand the characteristics and the relationship between energy consumption and the factors affecting energy consumption, and combining with data mining technology, puts forward a set of track field bridge design scheme of monitoring and analysis system of energy consumption, energy efficiency, reduce the cost of the port enterprise has a certain significance.
In this dissertation, the track field bridge as the research object, developed a set of energy consumption monitoring and analysis system, and put forward the data mining technology used in the track field bridge energy consumption monitoring data relationship in-depth analysis, and the analysis results will be presented to the user. The details are as follows:
Firstly, the overall structure of the track field bridge is designed, and the drawings are drawn, and the conventional load, overall stability and wheel pressure are calculated.
Secondly, through the structural characteristics and energy consumption characteristics of the track field bridge, it provides a scheme for the acquisition of energy consumption data of the track field bridge, including the design of the data acquisition system and the sensor layout design.
Finally, the energy consumption data analysis module is designed based on the data acquisition system and the actual demand of the port. At the same time, combined with the data mining technology, this paper puts forward the scheme of applying it to the actual data analysis of the port.
Key words: Energy consumption; Data mining; Track bridge; Design; Container terminal.
目录
第一章 绪论 1
1.1选题的背景及意义 1
1.2轨道场桥能耗的国内外研究现状 2
1.3大数据处理技术的国内外研究现状 3
1.4设计内容与研究问题 3
1.4.1设计内容 3
1.4.2研究问题 3
第二章 集装箱堆场轨道场桥的总体设计 4
2.1设计参数 4
2.2主要工作机构和金属结构形式的确定 5
2.2.1确定主要工作机构形式 5
2.2.2金属结构的选型 9
2.3载荷的计算 9
2.3.1坐标系的建立 9
2.3.2自重载荷 10
2.3.3起升载荷 10
2.3.4动力载荷 11
2.3.5风载荷 13
2.4轮压计算 15
2.5起重机整机的稳定性计算 20
2.6功率计算 21
2.6.1起升机构的功率计算 21
2.6.2大、小车运行机构的功率计算 22
2.7经济性评价分析 24
2.7.1外形尺寸分析 24
2.7.2成本分析 24
2.7.3工作效率分析 25
2.7.4转场分析 26
2.7.5安全环保性分析 26
2.7.6经济分析结论 26
2.8本章小结 26
第三章 数据监测系统的需求分析及设计 27
3.1轨道场桥监测系统的需求分析 27
3.1.1能耗特性分析 27
3.1.2影响因素的分析 28
3.1.3需求分析 31
3.2能耗监测系统方案设计 32
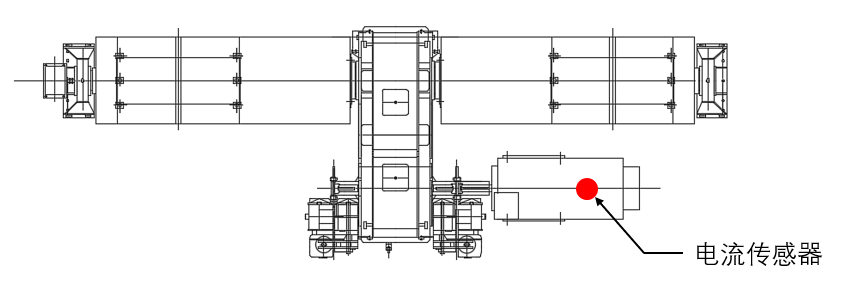
3.2.1能耗数据采集系统总体设计 32
3.2.2系统的全局设计 42
3.3本章小结 43
第四章 轨道场桥能耗数据分析系统方案设计 44
4.1总体需求与系统架构 44
4.1.1系统组成部分 45
4.1.2系统的分析内容 48
4.1.3系统的架构组织 49
4.1.4系统的分析功能(相关、预测、分类) 50
4.2常规分析方法 51
4.3能耗数据深度挖掘方法 53
4.4本章小结 60
第五章总结与展望 61
5.1总结 61
5.2展望 61
参考文献 63
附录 64
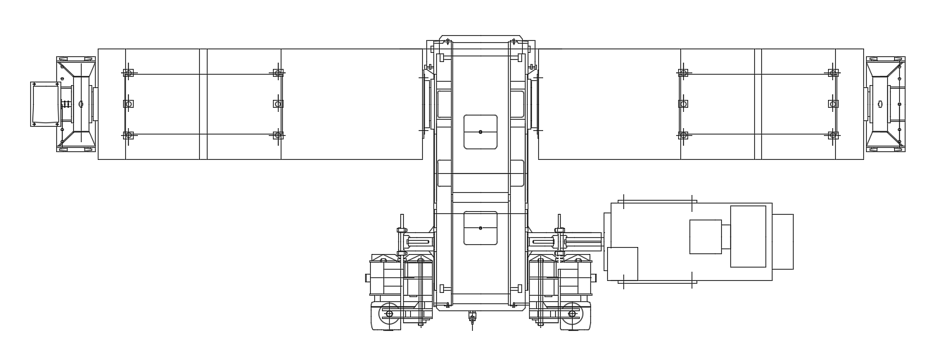
附录A 轨道场桥总体设计图 64
致谢 65
第一章 绪论
1.1选题的背景及意义
到目前为止,人类文明已经在地球上存在了400多万年。从人类使用火种开始,便意味着人与能源不可分离。近代以来,我们人类社会已经经历了两次工业革命,第一次工业革命让蒸汽成为动力介质,而加热它的煤成为了人们生活中必不可少的能源。第二次工业革命,则让电力成为了新的能源动力。这两次的工业革命,使得人类文明到达了新高度。但是,随之而来的是人类社会能耗的不断提升,对能源的需求不断加大。
21世纪以来,随着世界经济的不断发展,经济全球化已成为当今时代不可逆的趋势。面对当今国际贸易的日益繁荣,也使得集装箱运输地位也得到了提升。从20世纪中页以来,由于集装箱具有转运过程中无需拆卸、适应各种类型的货物以及成本相对较低的优势,使得其在国际贸易中的到广泛应用,而集装箱码头作为集装箱运输的重要节点,也因此开始繁荣。
集装箱码头作为海陆物流输送的枢纽,在现代物流供应体系中占有举足轻重的地位。我国作为世界上最大的海上贸易国,每年的进出口贸易额一直处于世界前列,并且各大港口的吞吐量也在世界上占据着相当庞大的份额。然而,进入21世纪后,随着劳动力成本的上升以及全球能源的不断匮乏,节约成本对于港口而言变得越来越重要。与此同时,我国为响应国际上对节能的一系列会议精神,因此制定了一些列降低能耗的措施。例如,我国曾于2011年提出《公路水路交通运输节能减排“十二五”规划》,对我国港口的节能工作提出了明确要求:我国港口在2015年要实现单位集装箱吞吐量综合能耗相对于2005年低8%,单位吞吐量CO2排放量比2005年减少10%。因此,节能减排,降低成本关系着港口自身的核心竞争力。据统计,在港口总能耗中,集装箱码头耗能占总能耗的80%,其中耗能最大的就是其中的港口装卸设备,而港口中最常见的便是岸桥和场桥。
对于港口企业自身而言,它既要追求运营的经济效益,又希望能响应国家号召做到节能环保、降低成本,使得自身利益达到最大化。但是,在实际当中,港口的生产作业流程又是一个十分复杂的运营过程,运营数据非常之多,各种因素交织在一起发生动态变化,每个港口又根据自身的地理位置,周边企业分布以及自身交通情况具有自身的特殊性,使得港口运营管理十分困难,很难在其中找出最佳的运营管理策略。但是随着计算机技术、信息获取技术以及大数据处理技术的不断发展,使得解决这一问题成为可能。因此,应构建码头生产作业能耗监测系统,对大型机械设备能耗进行实时采集和监测,将该数据与作业流程、工班调度、累计作业量、设备可靠性数据等相关信息结合,运用大数据挖掘技术,来分析各子系统的输入输出,各机构的能耗数据、速度状态、运行里程、作业量等多种状态数据之间,以及设备故障状态、调度使用、司机操作习性等之间的复杂联系,来评估作业瓶颈,优化作业流程和设备能耗,合理安排设备维护保养周期,节能安全,提高港口的经济效益。
1.2轨道场桥能耗的国内外研究现状
在港口节能、港口能源消耗研究方面,国外学者们层展开了大量的研究,取得了许许多多的研究成果。C.W、A.B和E.P等人通过从港口企业的发展和运营的情况,对其中影响附近环境的影响因素分析,对英国的港口政策、立法进行了探讨,并通过结合港口的技能管理经验和实证,对英国的港口环保措施提出了建议。Meifeng Luo、 Thomas.A.gngalun通过在Seattle, Charleston, Novak, New Jersey, New York等港口的考察,提出了从港口的可持续发展方面针对集装箱港口发展困难提出了相关建议。我国在港口行业的节能减排方面的研究,也取得了一定成果。习江鹏在节能减排概念上进行了阐述,通过对比分析其内涵,得出了节能减排对于交通运输行业实施的可行性结论,为后来的节能提供了理论支撑和帮助。我校校友包起帆就港口的运输结构、门机的变频改造以及龙门集装箱起重机的能源消耗上的油改电方面,在上海港对这些技术进行了应用,并取得一定效果。刘甲申指出通过加强港口的监管力度,创新节能减排方法和管理方法,协调、调度各方面力量,能够有效提高节能效果。胡成彪认为定期保养和维护、排除故障也能起到一定节能作用。
国外企业对于能耗监测方面的工作十分重视,投入了大量的人力物力财力进行研究。因此高智能化、高精度、高网络化的能耗监测系统被广泛应用于各个企业。相比国外,我国这在方面的研究显得落后。截止目前,我国大部分港口企业仍然采用人工抄表、用加油本加油等初级的人工统计分析式,对港口进行能耗监测,这种方式十分落后,不仅效率低而且容易出错。但天津港近年就这一方面进行了相关改进,其研发的能耗智能监控平台具有能耗数据实时采集和远程传输、数据分析、节能分析、数等多种功能,实现了对港口能耗的智能监测。
1.3大数据处理技术的国内外研究现状
大数据技术应用方面,在80年代,美国就将信息技术应用于港口,通过信息系统来获得港口的各种作业信息。日本则在港口费用管理方面施行信息化,大大的提升了港口的作业效率。近年来,随着港口信息化的不断发展,数据挖掘技术在港口中逐渐展开应用。例如,Mi W J等人通过选取典型测试点的方法建立数据挖掘模型,分析大型港口设备的最大强度和小车位置的关联关系问题。Chen D等人则通过数据挖掘方法,对大型集装箱码头进行仿真,通过计算时间价值及可靠性来评估收费定价策略。我国在港口应用数据挖掘技术的研究也非常多,叶艳霞通过数据挖掘技术来分析港口内部运营数据、周转情况、外部环境等,为港口的生产运营决策提供支持。陈龙利用时序算法预测港口设备的运行数据,利用回归方法获取港口设备的寿命周期,利用神经网络预测港口设备的故障,有效支持了港口设备的决策管理。
综上所述,随着时代的发展,信息技术、节能减排技术方面的研究不断加深,我国的港口将不断朝着智能化、绿色化发展,因此采用大数据技术对港口进行分析,优化生产流程将成为一种趋势。
1.4设计内容与研究问题
1.4.1设计内容
本文以港口中最常见的集装箱轨道场桥为研究对象,结合当今大数据分析技术,对港口的集装箱轨道场桥建立一个能耗监测系统,以能量动力流为主线,对集装箱轨道场桥的起升机构、小车运行机构以及大车运行机构进行深层次关联分析,分析各子系统的输入于输出关系,揭示各机构能耗数据、速度状态、运行里程、作业量等多种状态数据之间,以及设备故障状态、调度使用、司机操作习惯之间复杂的联系,系统的提出集装箱轨道场桥的能耗与状态监测的大数据分析方法与大数据分析系统的组成,以此来优化港口运营策略以及设备的调度。
为了充分融合大数据技术,面对海量的起重机运行状态数据,本文阐述了K均值算法和Apriori算法,分别对其中的数据进行聚类和关联规则分析,通过聚类找出异常数据,同时找出统一数据簇内的相同数据特征,通过相关关联规则分析找出能耗与相关影响因素的关系,更好的分析起重机调度中的缺点、评估作业优劣,优化起重机的运维管理,辅助港口管理部门进行相关决策。
1.4.2研究问题
本文研究的问题,可总结为以下几点:
(1)面向能量流的集装箱轨道场桥的结构系统分析;
(2)集装箱轨道场桥生产调度及装卸作业的数据需求分析;
(3)集装箱轨道场桥机电系统可靠性及维护保养的需求分析;
(4)集装箱轨道场桥大数据分析系统构型的研究与应用。
第二章 集装箱堆场轨道场桥的总体设计
2.1设计参数
起重机的主要设计参数作为衡量一台起重机工作能力的主要示数,给其设计以及选型提供了重要依据。技术参数是先由用户根据自己需求提出的,具体数值要依照国标选择的参数。本次设计的轨道场桥的主要参数如下表2.1。
表2.1 主要性能参数表

2.2主要工作机构和金属结构形式的确定
集装箱轨道场桥和其他起重机相似,主要是由工作机构(包括:起升机构,大车行走机构,小车行走机构)、金属结构、动力装置、控制系统以及安全辅助装置等组成。
2.2.1确定主要工作机构形式
1)起升机构
①驱动装置的选型
起升机构作为让起重机吊起货物让货物实现高度变化的机构,是起重机械中不可或缺的工作机构,也是区别于其他机械最具特点的机构。它的工作性能好坏直接影响到起重机的技术性能。起升机构主要由驱动制动装置、钢丝绳滑轮组卷绕系统以及取物装置等组成。驱动装置则由电机、卷筒、减速器等组成。取物装置则有集装箱吊具、吊钩、吊环以及抓斗等多种形式。此外,根据工作需要还可装各种辅助装置,例如起升高度限制器、超速开关保护等。
在起重机中,各工作机构的运动都是依靠驱动装置实现的。它是为起重机的动力来源,是起重机的重要组成部分。驱动形式在很大程度上决定起重机的工作特点以及性能特点。根据原动机与工作机构的驱动关系可分为集中驱动和分别驱动两种,按照驱动形式可分为电力驱动、内燃机驱动以及复合驱动等。由于分别驱动分组性好、安装维修方便,易于实现自动化控制。因此本设计采用的是分别驱动。
以上是毕业论文大纲或资料介绍,该课题完整毕业论文、开题报告、任务书、程序设计、图纸设计等资料请添加微信获取,微信号:bysjorg。
相关图片展示:
















