一种深海液压动力源的结构设计毕业论文
2020-02-19 19:19:08
摘 要
随着人们对资源需求的日益增加,人们对深海不断地开发与探索,而现有液压系统考虑的都是在陆地上使用,不适用于深海这种高压且具有腐蚀性的环境。深海动力源作为深海作业设备的重要组成部分,为深海作业设备提供动力,因此对深海动力源的研究有重要意义。
现有液压动力源考虑的是在陆地环境的使用,深海动力源除了必须考虑陆地环境所需注意的问题,还要考虑压力平衡问题,密封问题,材料腐蚀问题等。
针对这些问题,本文以深海液压动力源为对象,通过对系统方案的设计,以及关键技术的解决,最终完成了6000m级深海动力源的结构设计。
关键词:深海;高压;动力源;结构设计
Abstract
With the increasing demand for resources, people continue to develop and explore the deep sea, and the existing hydraulic system is considered to be used on land, not suitable for the high-pressure and corrosive environment of the deep sea. As an important part of deep-sea operation equipment, deep-sea power sources provide power for deep-sea operation equipment, so the research on deep-sea power sources is of great significance.
The existing hydraulic power source considers the use of the terrestrial environment. In addition to the issues that need to be taken into account in the terrestrial environment, the deep sea power source must also consider the pressure balance problem, the sealing problem, and the material corrosion problem.
In response to these problems, this paper takes the deep-sea hydraulic power source as the object, and finally completes the structural design of the 6000m-class deep-sea power source through the design of the system scheme and the solution of key technologies.
Key Words:deep sea; high pressure; power source; structural design
目录
第1章 绪论 1
1.1 选题背景与意义 1
1.2 国内外研究现状 1
1.2.1 国外研究现状 1
1.2.2 国内研究现状 2
1.3 课题研究内容 3
第2章 深海动力源的系统设计 4
2.1 深海动力源的系统分析 4
2.2 深海动力源的主要组成部分 4
2.3 深海动力源的原理图 5
2.4 深海动力源的设计要求 5
2.5 本章小结 5
第3章 深海动力源的结构设计 7
3.1 电机的布置方式 7
3.2 电机与液压泵的连接方式 7
3.3 系统压力平衡问题 7
3.4 油箱的布置方式 8
3.5 压力补偿器的设计 8
3.6 深海动力源的总体结构 11
3.7 本章小结 11
第4章 深海动力源的部件设计 12
4.1 液压泵的选型计算 12
4.1.1 液压泵的工作压力的计算 12
4.1.2 液压泵的最大流量 12
4.1.3 液压泵的选型 12
4.2 电机的选型 13
4.3 密封装置的选型 13
4.4 过滤器的选型 14
4.5 压力表和接口部件的选型 15
4.5.1 压力表的选择 15
4.5.2 接头方式 15
4.6 油箱的结构设计 15
4.7 本章小结 16
第5章 主要零部件的校核 17
5.1 油箱的强度校核 17
5.2 压力平衡器的体积校核 17
5.3 本章小结 18
第6章 经济性分析 19
结论 20
致谢 21
参考文献 22
第1章 绪论
1.1 选题背景与意义
海洋占据着地球70%以上的面积,海洋不仅仅可以调节气候,其中还蕴藏着无数的能源。比如海底的石油,天然气以及可燃冰。这些资源的开发与合适的工具密不可分。由于高压,海水侵蚀和密封等问题,地面上技术完善的设备不能直接应用于深海开发。而如果没有深海动力源的支持,深海设备就无法正常工作。目前深海动力源的驱动方式可以分为以下三种:电力驱动,气压驱动和液压驱动。液压推进动力源的特点是无级变速,以及拥有良好的功率密度,因而得到了研究和应用。因此,对于深海液压动力源的研究,对于我国深海开发,以及能源的采集有着积极意义[1]。
1.2 国内外研究现状
1.2.1 国外研究现状
在对深海开发以及深海探测的技术运用这方面,国外相对于国内较为成熟。早在20世纪70年代,日本的三菱重工就开展了有关这方面的研究工作,并设计出了能够正常应用于深海的动力源。其研制的深海动力源的结构如图1.1(a)所示,由电机,电动马达,液压泵等装置组成。20世纪90年代,日本海洋科技中心成功设计研制了“海沟号”潜水器,其下潜深度达到11000米,是世界上唯一一个能够下潜到这个深度的潜水器。如图1.1(b)所示。

图1.1 日本深海设备

图1.2美国佩里深海动力源
1960年,美国规模最大的深海装备的制造商和供应商佩里公司就开始了关于深海设备的研制工作。如图1.2所示的油压动力源都是佩里公司的典型产品,由电机、液压泵和油箱等部分组成。这系列的深海动力源产品技术先进,集成化较高,受到世界各地人们的使用[2]。
1.2.2 国内研究现状
对于深海动力源的研究,我国的研究工作开展的相较于其他国家较晚。20世纪90年代哈尔滨研发了原理如图1.3所示的油压动力源。该类型的动力源由水密电机,油泵,阀箱和补偿器组成,由于设计了补偿器,该系统可以维持油箱压力略高于环境压力,其工作深度达到了300米。

图1.3 动力源原理图
2012年,西南交通大学与其他公司单位开发出五种不同功率的深海液压动力源,其工作深度为4500m,该动力源原理图以及实物图如图1.4所示。深海集成油压动力源的阀置于油箱内部,使用压力补偿装置来对油箱的液压油进行自动补偿。并且为了使得动力源可以安全稳定的使用,在系统上安装了多种传感器,如油温和压力传感器[3]。

图1.4 西南交通大学深海动力源
1.3 课题研究内容
现有液压动力源考虑的都是在陆地环境使用,不适用于深海这种高压且具有腐蚀性的环境。深海液压动力源不仅需要考虑陆地所需要注意的问题,比如振动,泄露,液压系统污染控制,还要考虑在深海环境下出现的新的问题,包括系统的压力平衡问题,密封问题,以及电缆接口等问题,还要注意材料在深海环境下易腐蚀的问题。针对上述深海环境特点,本课题要设计一种适合深海作业的液压动力源,作为深海作业,探测和开采等系统的动力源。
本论文设计的主要内容为开发一套6000m深海液压动力源,工作压力为21MPa,额定排量为35ml/r。
第2章 深海动力源的系统设计
本课题所要设计的深海动力源与普通的动力源工作环境不同,其工作地点为深海。不仅要承受深海的高压环境,还要有很好的密封性能,材料选择上还需要有良好的抗腐蚀性。本章主要对该深海动力源的结构方案进行设计。
2.1 深海动力源的系统分析
深海动力源的工作原理与液压站设计类似,但是其主要的区别是其对密封和腐蚀的要求,虽然普通的液压站也要考虑到腐蚀和密封的问题,但是与深海动力源的要求完全不同。其主要区别是
(1)由于是在深海作业,系统会受到海水水压的影响,需要设置有压力平衡器,才能使得系统能够在高压环境下正常工作。
(2)深海动力源为了避免工作介质受到海水的污染,只能采用封闭结构,不能使用开式结构。
(3)主要的部件需要选择防腐材料制造,如本次设计中的液压泵,油箱,密封件等。
2.2 深海动力源的主要组成部分
(1)液压泵装置:部件有电动机和液压泵,其主要是将电动机产生的机械能转换成液压油的压力能,是整个动力源的核心驱动部件。
(2)集成块:其主要组成部分是各种控制液压阀门,如节流阀、溢流阀等,为了方便采用了集中布置,这样方便调节。
(3)油箱装置:油箱采用的是密封式油箱,上面装有过滤装置,油箱的主要作用是存储液压油,并进行散热过滤[4]。
2.3 深海动力源的原理图

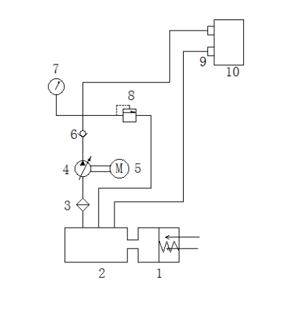
1.压力平衡器 2.油箱 3.过滤器 4.油泵 5电机 6.单向阀 7.压力表 8. 溢流阀 9.接头 10.执行器
图2.1 深海动力源原理图
如图所示是深海动力源,采用的是和液压站相似的结构,设计采用的是电机5驱动液压泵4启动,将油箱2中的工作液抽取出油箱,经过过滤器3过滤,然后通过单向阀供给执行器10,而压力平衡器1主要是起着压力补偿的作用。
2.4 深海动力源的设计要求
该动力源的主要设计参数如表2.1所示。
表2.1 主要设计参数
工作深度 | 工作压力 | 额定排量 | 驱动方式 | 压力补偿方式 |
6000m | 21MPa | 35ml/r | 电机驱动 | 压力平衡器 |
2.5 本章小结
本章对动力源液压系统的组成进行了分析,确定了深海液压动力源系统的主要组成部分,并确定了以电机驱动液压泵,压力补偿器对系统压力进行补偿的工作方式,最后绘制了系统的原理图,为后面动力源系统的结构设计打下基础。
第3章 深海动力源的结构设计
3.1 电机的布置方式
通常液压系统使用的交流电机或者直流电机。液压泵在启动的时候为空载,其对电动机启动转矩要求不高,大多情况下采用三相异步电动机就能够满足系统的要求。而且多数情况下采用防护等级低的IP11型,恶劣环境采用的是IP44型。
但是本次设计中情况不同,动力源要求在水下作业,不可能采用陆地上使用的防护方式,电机需要考虑到密封和海水压力等问题,而具有防水功能的电机性能差,价格贵,所以在设计中采用了将电机和泵放在一个箱体中,来解决其密封问题。最后选择的是高性能可靠的三相异步电机。
3.2 电机与液压泵的连接方式
由于采用的是叶片泵和Y型三相异步电机,所以采用的是联轴器连接。
联轴器的种类有以下两种。
刚性联轴器:此类型联轴器只能传递运动和转矩,而不具备其他的作用。
挠性联轴器:无弹性元件的挠性联轴器,不仅具备前者的作用,而且还具备一定程度的轴向、径向和角向补偿性能。有弹性元件的挠性联轴器不仅具备前者的功能,还有减震、缓冲的作用。
由于电机转速不高,震动不大,根据电机轴和叶片泵轴的大小,采用的是GCLD1型联轴器。
3.3 系统压力平衡问题
设计是在深海6000m深度的环境下使用,必须要有压力平衡器,而由于液压动力源不可能在同一深度下作业,所以要设置自动压力补偿来满足系统的需求。这样不管要设计的动力源在水下何种深度工作时,都能够使系统内部压力一直略大于外部压力,除此以外还能够防止液压系统被海水渗入现象的发生。
使用压力补偿器后,由于压差的存在,海水压力通过压力补偿器传递到液压油中,这个时候压力补偿器会发生变形,从而减小油液的体积,使液压油的压力增大,与海水压力相等,内外压力达到平衡。因此,不管动力源在多深海底,都能够进行压力补偿,使得油箱内外的压力相等,从而实现对深海环境的高压补偿。这样也就解决了系统自动补偿的问题[5]。
3.4 油箱的布置方式
液压动力源在选择何种布置方式时,要根据其工作环境以及对动力源的工作需要而选择。
上置式液压站的优点是工作时不用占据太大的面积,并且工作时的噪声低,整体的结构可以制造的很紧密,在中小型液压系统应用的比较广泛。
非上置式液压站因为动力源安装的高度低,设备维护起来较为方便,而且液压泵处于油箱液面以下的地方,泵的吸油能力得到大幅提升。
综合考虑本课题所要设计的动力源的特点,采用了下置式的结构来设计本动力源[6]。
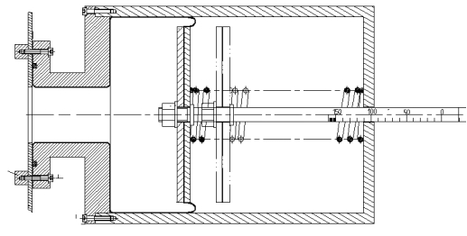
3.5 压力补偿器的设计
由于不能够在油箱体积不变的情况下随意增大工作液的压力,所以采用的方案是在保证液压油容量一定的前提下,减小油液的体积,以此来提升油液的压力。

图3.1 活塞式压力补偿器
(1)活塞式压力补偿器:
该类型的压力补偿器的工作原理是活塞随着外部压力的改变,而沿着油箱内部发生滑动,从而减小或者增大了内部的体积,以此来保持内外的压力一致。

图3.2 皮囊式压力补偿器
(2)皮囊式压力补偿器:其在油箱的箱体上装了充满液压油的气囊,因为其与油箱内部的液压油是连通的,它可以根据海水的压力大小,自动收缩,以此来保证油箱内部与海水高压平衡。

图3.3 金属薄膜式压力补偿器
(3)金属薄膜式压力补偿器:这种类型的压力补偿器与皮囊式的工作原理是类似的,不过与前者的不同的是,只有当外部面积比较大时,使用此类型的压力补偿器效果才比较好,但是密封性能不够良好。

图3.4 波纹管式压力补偿器
(4)波纹管式压力补偿器:该补偿器具备纵向收缩的特性,能够通过收缩从而改变液压油的体积,以此来改变油箱内部液压油的压力,但是工作的时候,其体积变化不高,不能够满足对体积要求较大时的工作要求。
这几种压力平衡器的工作原理总体上是一致的,将海水与液压油用柔性材料隔开,使得深海环境的压力能够通过该材料传递,从而保证系统能够在深海环境正常工作。
前两个类型的压力补偿器的压力补偿和体积补偿效果要优于后两者的。因为前者的材料相对于后者的材料柔性更大,传递压力的时候阻碍更加小,而且橡胶能够更好地承受延展以及收缩,对系统的体积补偿效果更佳。
由于是深海作业,其系统液压油平衡压力要大于海水压力。皮囊式的压力补偿器综合性能虽然更好,但是为了给液压泵提供吸油压力,要使液压油的压力略大于海水压力,而皮囊式不能满足这个要求,只能使油压压力与海水的压力持平。活塞式压力补偿器工作时,能够通过弹簧压缩使得液压油的压力大于海水压力。本设计采用活塞式压力平衡器。
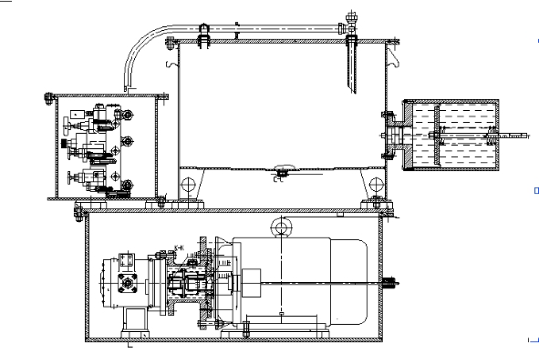
3.6 深海动力源的总体结构

图3.5 总体结构图
在液压系统中,深海液压动力源的油箱不仅要作为油箱,还要作为封装电机泵组以及阀组等元件的隔离舱,因此动力源的主要布置方式是采用密封舱把整个动力源的三个部分分别用箱体密封起来。这样整体结构紧凑,不仅减小了整个动力源的体积大小,并且解决了系统的密封问题,不会使得电机泵组直接暴露在深海高压,强腐蚀环境中,降低了对部件的性能要求,从而减小了整个动力源的成本。而且压力补偿器的布置使得系统能够自动对压力进行补偿,在深海能够正常工作。
3.7 本章小结
本章对电机的布置方案进行了设计,然后确定了电机与液压泵的连接方式为联轴器连接,其次给系统设置压力补偿器使系统能够自动进行压力补偿,适应各种工作深度,最后确定了油箱的布置。整合起来以后得到本液压系统动力源的总体结构图。
第4章 深海动力源的部件设计
4.1 液压泵的选型计算
本设计要求的工作压力为21MPa,齿轮泵的工作压力相对较低,柱塞泵的价格较贵,因此本设计选择叶片泵。
4.1.1 液压泵的工作压力的计算
液压缸的最高工作压力P=21MPa。系统进油路元件较少,所以泵到执行元件的进油压力损失估计取为
=0.5MPa 。泵的最高工作压力
(4.1)
式中
——最大工作压力;
以上是毕业论文大纲或资料介绍,该课题完整毕业论文、开题报告、任务书、程序设计、图纸设计等资料请添加微信获取,微信号:bysjorg。
相关图片展示:



