组合钢箱梁桥三维受力性能研究毕业论文
2020-02-19 16:34:08
摘 要
钢箱梁被广泛的运用在城市桥梁建设中,有很多立交桥从混凝土桥变成了钢箱梁桥,主要的原因是钢材是一种重量相对轻、柔韧性好、便于施工制造的材料,弥补了混凝土施工比较笨重、需要现配现用、施工周期长等等的不利点。混凝土桥不太适用于较大跨径的高空立交桥,而在钢混组合下在大跨径桥梁已经得到了很好的发挥。组合钢箱梁桥结构是一种将钢和混凝土两种材料性能进行有利互补,共同承担负荷载作用的结构。中小跨径的钢箱梁桥施工方便,经济效益良好,整体性良好,抗震水平高,因此被大量用于建筑工程。本论文研究的是钢—混凝土复合结构的多种类型中的一个。本文通过大型有限元软件ANSYS建立总跨径为30米的,节段组合分为11.46 10 8.54m的钢—混凝土组合钢箱梁桥三维有限元实体单元的模型研究钢箱梁桥细部受力性能,主要内容包括:
①介绍了钢箱梁桥的概念、分类、发展历程以及优缺点;
②阐述了钢—混组合桥梁的目的、作用,以及研究分析组合桥梁的两种设计的基本原理;
③粗略地讲解了影响组合钢箱梁桥受力的因素,和它的变化规律等理论;
④通过ANSYS建模,施加约束和外部荷载,研究桥梁在施加车道荷载和集中荷载情况下钢箱与混凝土板的各部位细节受力情况以及变形。
最后通过理论的分析、实体建模的分析,主要的研究结论有:
①钢箱梁桥的应力应变分布情况;
②位移变形随剪力分布的情况;
③横隔板间距对钢箱梁桥受力后应力应变的影响;
④翼缘板有效宽度对剪力滞的影响;
关键词: 钢箱梁桥;三维受力;静力分析;有限元;薄壁杆件
Abstract
Steel box girders are widely used in urban bridge construction. Many overpasses have changed from concrete bridges to steel box girder bridges. The main reason is that steel is a relatively light weight, good flexibility, easy to construct and manufacture material, which makes up for the disadvantages of heavy concrete construction, need for ready-to-use, long construction period and so on. Concrete bridges are not suitable for long-span overpasses, but under the steel-concrete combination, long-span bridges have been well developed. Composite steel box girder bridge structure is a kind of structure which can complement the performance of steel and concrete materials and bear the load together. Medium and small span steel box girder bridges are widely used in construction projects because of their convenient construction, good economic benefits, good integrity and high seismic level. This paper studies one of the various types of steel-concrete composite structures. In this paper, the model of three-dimensional finite element solid element of steel-concrete composite steel box girder bridge with 30 m span and 11.46 10 8.54m segments is established by ANSYS software to study the detailed mechanical properties of steel box girder bridge. The main contents include:
①The concept, classification, development process, advantages and disadvantages of steel box girder bridges are introduced.
②The purpose and function of steel-concrete composite bridge are expounded, and the basic principles of two kinds of design of composite bridge are studied and analyzed.
③The factors affecting the stress of composite steel box girder bridge and its changing law are explained roughly.
④Based on ANSYS model, restraint and external load are applied to study the detailed stress and deformation of steel box and concrete slab under Lane load and concentrated load.
Finally, through the analysis of theory and entity modeling, the main conclusions are as follows:
①Stress and strain distribution of steel box girder bridges;
② Distribution of displacement and deformation with shear force
③The influence of diaphragm spacing on stress and strain of steel box girder bridge after loading;
④The influence of effective width of flange plate on shear lag.
Keywords: steel box girder bridge; three-dimensional force; static analysis; finite element; thin-walled members.
目录
学位论文原创性声明 1
学位论文版权使用授权书 1
摘要 2
Abstract 3
第1章 绪论 8
1.1 研究背景 8
1.1.1 钢箱梁桥 8
1.1.2 箱梁桥的分类 9
1.1.3 国内外研究历史背景 9
1.1.4 箱形梁桥的优点和快速发展 10
1.2 本文主要研究内容及意义 12
1.2.1 研究意义 12
1.2.2 研究内容 12
第2章 组合钢箱梁桥设计理论概述 14
2.1 组合桥梁的概述 14
2.2 组合梁桥设计基本原理 15
2.2.1 弹性设计的基本方法 15
2.2.2 塑性设计的基本方法 16
2.2.3 混凝土收缩徐变应力 17
第3章 影响组合钢箱梁桥构件受力的因素及其变化规律 18
3.1 剪力滞效应 18
3.2 薄壁箱梁的弯曲理论 19
3.3 横隔板的作用 19
第4章 组合钢箱梁桥件ANSYS三维实体建模与分析 21
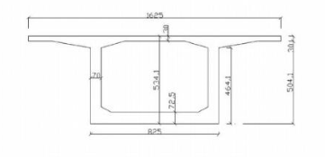
4.1 钢箱梁桥图纸及其设计要素 21
4.1.1 设计要素 21
4.1.2 箱梁布置 23
4.2 箱梁模型的建模与静力分析 27
4.2.1 箱梁模型建模 27
4.2.2 横截面和横隔板 27
4.2.3 混凝土板 29
4.2.4 添加材料(网格划分) 30
4.2.5 施加约束 31
4.2.6 施加荷载 31
4.3 钢箱梁模型静力分析 32
第5章 研究结论及设计建议 37
5.1 结论 37
5.2 不足 38
5.3 展望 38
致谢 40
参考文献 41
绪论
研究背景
钢箱梁桥
箱梁桥是指主梁横截面是以钢板包括底板、顶板、顶板、腹板、加劲板围成,横截面就像空心的箱子一样,如图1.1.1所示。钢箱梁桥的主梁一般被人们叫做箱形截面梁或箱形梁。箱梁桥已经从中小跨桥梁逐渐应用到了大跨、高跨桥梁之中 ,比如目前世界最大的港珠澳大桥的主梁就是用的箱型结构。

图1.1.1单箱梁基本横截面样式
组合梁桥是以梁跨为基本结构的组合结构桥梁。两个或两个以上体系叠加后,整个结构在弯曲荷载作用下的反应特性与梁相同。这类桥梁的特点主要表现在设计计算工作量大、结构细节复杂、内力变化大等等地方。混凝土板和钢箱梁通过剪力钉来连接(有均布式和集束式),既能起到很好的连接作用,有能减缓因材料不同而导致的收缩徐变不同带来的应力集中;在负弯矩区混凝土板上,通过预加预应力混凝土板,可建立大的压应力准备,使得负弯矩区混凝土的抗裂性能有较大加强。
随着我国经济的发展,民生得到了很好的改善,而道路桥梁、房建、基础设施建设等等无论在理论上还是在技术应用上都有了很大的提高。钢管混凝土拱桥、钢骨混凝土结构的桥梁和前弯结构的桥梁等新结构的桥梁相继出现。作为一名建筑方面专业的学生,我们不但要掌握建筑方面最基础、最必要的知识, 而且要学习其他方面的知识,比如数学领域、力学领域的理论知识,这样才有利于我们进行结构分析,以及掌握一定的计算机知识,我们才能对结构进行建模、模拟、仿真分析,探索、研究和学习这些新构造的相关知识,才能更好的理解、认识、设计、施工以及探索这些新构造的桥梁。通过焊接模钢或钢板、冷压钢的断面,将混凝土材料注入钢断面的上部、周围或内部,与混凝土形成一体,或者通过钢性接触连接、特殊的连接方式比如说剪力钉,他们能作为一个整体来承担外界的压力,就叫做为钢—混凝土组合结构,或者简称组合结构。
箱梁桥的分类
(1)倒梯形箱梁桥 倒梯形截面的箱梁桥。与矩形截面箱形梁桥相比,它不仅具有较好的抗风性能,而且可以形成较宽的桥面,减小墩台宽度和砌体数量,适用于城市桥梁。
(2)分离式箱梁
与连接箱梁的箱形桥并列有两个。两桥之间以纵向结构缝制独立受力,可构成车道多宽桥(大概32 m左右)。其结构比单箱多室桥简单,方便材料经济、施工。
钢桥面板箱梁桥
箱梁桥的上部结构由焊接钢板和纵向肋条的正交异方板构成。它可以减少桥梁自重,完成经济结果。大部分用于长跨度钢桥。
(4)双层箱梁桥
箱型结构有上下两层,能够用来同时通两条路,达到了一梁两用的效果。在上面可以设置人行道、栏杆等等上部结构设施。
(5)双腹板箱梁桥
钢箱梁桥在主梁两侧有一个双腹板。其特点是建筑高度可比一般钢箱梁桥低,但钢材较多。
(6)斜腹板箱梁桥
反梯形截面的箱梁桥是由外侧腹板向外倾斜形成的。在多车道宽桥中,该断面可以减小桥面悬臂长度、箱室底板宽度和桥墩宽度,从而获得更大的经济效益。缺点是截面形心偏大,负弯矩区底板需加厚,高度变化时不易处理。组合箱梁桥箱梁桥由槽梁和桥面组成。它是公路桥梁和城市桥梁中的一种组合梁桥。普通预应力混凝土具有抗扭强度高、节约钢材等优点,但施工周期较长。
国内外研究历史背景
组合梁已经使用了80多年,最早的应用是在英国的海峡上修建的一座桥,当时的桥跨只有一百多米,不过这已经算是桥梁上技术上的突破了。钢混桥梁是从封闭式混凝土工字梁演变来的,当时钢混连接只是靠接触,还没有使用剪力钉。当时使用工字钢和混凝土的主要原因是主要为钢梁防火,钢受温度影响产生的变化太大。混凝土抗压能力强,而且坚固不易被破坏;钢梁抗拉能力强,但是柔韧性好,容易发生变形,所以将钢梁用混凝土包裹起来,形成一个闭合的组合结构,这样就能同时利用钢梁的抗拉强度和混凝土的抗压强度,所以说这种组合结构在出现以后,人们便在现有组合结构中进行研究,便将它大量的应用到土木建筑事业中。
这种混凝土组合梁结构最早是在国外得到了应用,在国外发展迅速,主要在西方发达国家,美国、英国、法国、日本等国家对钢-混凝土组合梁进行了详细的研究,形成了较为完整的理论体系。世界上的第一座用钢箱梁制作成的桥,它是十九世纪五十年代在大不列颠帝国修建而成地,这座桥架的一端从conway,穿越海峡,落到了Britania,为两地的交通提供了极大的便宜。这座桥跨度有一百四十多米,属于中小型桥,但这是箱型梁桥在桥梁界的第一步。这座桥设计的很成功,可是近百年间这种封闭式箱梁桥却很少再被采用,当时的环境没有得到太大的重视。第二次世界大战后,在法西斯主义的德意志国家,由于莱茵河桥被炸毁需要修复,所以接下来假设了很多近代大跨径的箱型桥梁的形式,并得到了实际的检验,打破了britania大桥的桥跨记录。
我国在该领域的研究起步相对较晚。改革开放以前,虽然有一些桥梁建设中使用了钢筋和混凝土组合使用的结构,但当时我国的建筑行业里还没有一本关于组合结构桥梁的设计规范,施工得不到安全保障和尺度统一。Reform-and-openning up以后,我国的人民劳动生产力得到了解放,钢筋混凝土组合结构快速地应用到了桥梁建设中,钢箱梁桥在建筑和桥梁结构等领域都得到了越来越多的应用,并且得到了显著的效益,使得建筑施工工艺有了明显的进步。与世界其他国家相比,我国在交通运输、冶金、电力、煤矿等行业都采用了组合式结构,起步并不晚。然而,从我国复合梁结构的整体发展来看,复合梁结构的实际试验和深入研究还不够。
箱形梁桥的优点和快速发展
- 重量轻、省钢。
- 箱形梁为了更有效地发挥钢板的负荷能力,采用了正交性钢桥面板和薄钢板的梁肋和底板的箱形梁,比特拉斯梁桥可节约钢材20%左右。根据上部构造的自重缓和,桥梁下部构造的造价一般可以降低5%~15%。
- 耐弯曲和耐扭曲刚性大。这是根据闭合的中空断面的特性决定的,材料的数量相同的话,可以提供比其他截面形式更大的弯曲防止和扭曲刚性,特别适合于承受曲线桥和大的偏心荷重的直线桥型。
- 能迅速安装,容易保护箱子的形状的光束,在工厂能制作大的安装单元,减少施工现场的螺栓连接数。施工过程中,纵向的拉伸都显得十分地方便。箱型梁构造美观,重量轻盈,易于维修检查,并且它的空心封闭结构更易于抵抗外力的腐蚀。
- 适合做连续梁。这是因为其截面形式大体上能够提供同等的耐正、负曲力矩的能力。
- 结构轻盈有骨感,排列规则整齐,易于设计出各种样式,符合人们的审美,方便人们的交通生活。
在这若干理论研究中,箱梁桥跨能够增长的原因主要有:
- 箱型桥的抗扭刚度比较大、抗扭强度都比较高,不仅适合做均布式,也适合做曲线式、变截面式。直线型的钢箱梁桥桥在受到偏心活载的压力作用情况下,其横向分布系数较小,受力比较均匀,就拿单箱室来说,顶板和底板的受力相差不大,左腹板和右腹板的受力相差也不大。
- 箱梁桥翼缘板的宽度远大于工字钢桥翼缘板的宽度,因此薄翼缘板和腹板也能提供良好的抗弯应力。工字钢上部结构的翼缘板是有限的,在中小桥梁里的发挥倒是不值得我们顾虑,但是随着跨径的增加,桥梁自身重力的作用和车辆荷载、人群荷载等的施加,工字钢结构就显得稳定性不足、桥梁结构连接也显得困难,不能承受太大的力,并且由于箱梁翼缘板较薄,可以很好地解决这一问题。 通常来看,箱型梁和工字钢梁在同跨度比较,梁的高度低,高跨比小,整体受力性能好,模型轻巧,结构中空,牢固有效。
- 随着桥梁建设过程中施工技术的发展,流水线施工作业一度提高了建设效率。箱型桥梁很适合分块架设,提高了施工效率,缩短工期,节约成本。这就使得箱型桥梁得到了很大的推广。
- 从箱型桥的构造来看,无论是纵向的偏心负荷,还是纵向的集中负荷,都作为整体的空间构造抵抗外力,发挥着各板块的作用。象钢材托拉斯桥一样地,有不受力量的零保罗。箱型桥梁在所有负荷作用下,各杆按空间位置和结构分担外部力量。一根棒子可以起到支撑、稳定、压力等很多作用。箱型梁上翼板的作用,根据铁桥面板的作用,把车轮的负荷传达到主梁。在纵载的作用中,抵抗作为主梁翼板的弯曲力矩。由于偏心负荷的作用,作为闭口的薄壁的断面螺丝抵抗。另一方面,下翼缘板在水平负荷下起着平纵连的作用。因此,机械力学性能良好,设计可以达到经济效益。
- 箱型梁的内部作为维修管理用的通道是很适合的, 其内部中空的空间为维修人员对桥梁的检测维修,安装桥梁检测装置,对桥梁经行维修或者进行改造,都提供了极大的便利。
本文主要研究内容及意义
研究意义
钢混组合箱型桥梁通过钢板的连接形成箱型结构,和上部混凝土结构通过钢性接触、或者剪力钉、螺栓等等方式进行连接,和之前的砖石结构、混凝土结构等相比来说,它有它独特的结构优点和力学理论。钢板和混凝土组合之后,既能发挥钢板的抗拉强度高的优点和混凝土板的抗压强度高的优点,又能通过组合结构弥补钢板变形能力大和混凝土自重大的缺点,很大程度上加强了整体结构的稳定性,发挥结构的优势,钢材可以提前批量制作,混凝土得现制现用,两种材料的同时使用加快了施工工期的进程。
这篇论文中参考的是安顺至都匀高速公路某阶段的施工图,由于我的水品有限,在建模过程中对结构的细节部分进行了简化,力在争取模拟出大体的桥梁的受力情况。在静力分析理论方面参考了弹性分析方法和塑性分析方法,所以我将车道荷载简化成施加在混凝土板上的面荷载,集中荷载施加在桥梁中间,对桥梁结构的挠度变化图、应力变形图、位移图等等进行了简略的分析。
以上是毕业论文大纲或资料介绍,该课题完整毕业论文、开题报告、任务书、程序设计、图纸设计等资料请添加微信获取,微信号:bysjorg。
相关图片展示:









