钢桁架桥横梁疲劳性能研究毕业论文
2020-02-19 16:34:03
摘 要
随着钢桥在生活和工程中越来越多的应用,关于钢桥病害问题的研究也显得越发重要。早在上个世纪,国外的桥梁检测报告就指出,钢桥80%—90%的破坏与疲劳断裂有关。本文以某使用多年并且目前出现很严峻的疲劳病害的钢桁架桥为背景,采取有限元软件分析与理论相结合的方法对其横梁节点加固前后的疲劳性能进行了研究。
本文首先对钢桥的疲劳问题进行了介绍,简单叙述了世界上对钢结构疲劳问题研究的历史以及国内外对疲劳问题研究的现状。之后介绍了几种疲劳累积损伤理论及其应用,对其适用条件和应用效果进行了分析讨论。对现在常用的疲劳寿命估算方法(包括S-N疲劳曲线法、断裂力学法、可靠度方法)进行优缺点分析及介绍其工程应用。其中介绍最详细的是S-N疲劳曲线法确定疲劳寿命的方法,主要包括名义应力法和热点应力法。
主要工作是先运用有限元软件ansys进行钢桁架桥的建模,设计要素为某长江大桥公路正桥的连续梁桥段,对其桥梁上部结构(主要包括桥面板、纵梁、横梁和其他支撑结构)建立有限元模型,对整体模型进行结构受力分析,并选取连接纵梁与横梁的典型节点进行局部建模。根据实际情况建立了加固前与加固后两种模型,首先对节点模型进行静力承载分析,选取其中受力不佳部位,之后收集资料编制荷载谱,使用S-N曲线法进行疲劳寿命评估。按照桥梁病害检测报告对加固前模型预制裂纹,使用断裂力学的方法分析其疲劳性能并计算其剩余疲劳寿命。
使用S-N曲线法分别得到在疲劳荷载下的节点模型加固前后的疲劳寿命,加固前由于具有严重的应力集中问题,疲劳寿命计算得到为887743次。加固后的模型应力集中问题得到了极大的改善,在同等疲劳荷载下循环应力幅未能达到结构的疲劳极限强度(即N>
),结构的抗疲劳性能得到了很大的提升,因此对节点加固或者可以说改善结构的局部细节构造是提升结构抗疲劳性能的重要措施之一。
接下来在断裂力学法的基础上进行了疲劳裂纹扩展的研究,计算不同裂纹长度对J积分与应力强度因子的影响,并完成了一个例子的计算,并对裂纹初始长度和裂纹扩展速率之间的关系进行了分析讨论。
最后总结本文的研究并对钢结构的设计提出自己的建议。
关键词: 钢桁架桥;疲劳破坏;疲劳寿命;裂纹模拟;有限元建模
Abstract
With more and more applications of steel bridges in life and engineering, the research on steel bridge diseases is becoming more and more important.As early as last century, foreign bridge inspection reports pointed out that 80%-90% of the damage of steel bridges is related to fatigue fracture.Based on a steel truss bridge which has been used for many years and is suffering from severe fatigue diseases, this paper studies the fatigue performance of the beam joints before and after reinforcement by combining finite element software analysis with theory.
Firstly, the fatigue problems of steel bridges are introduced. The history of fatigue research on steel structures in the world and the present situation of fatigue research at home and abroad are briefly described.Then several fatigue cumulative damage theories and their applications are introduced, and their application conditions and effects are analyzed and discussed. The advantages and disadvantages of the commonly used fatigue life estimation methods (including S-N fatigue curve method, fracture mechanics method and reliability method) are analyzed and their engineering applications are introduced.Among them, S-N fatigue curve method is the most detailed method to determine fatigue life, including nominal stress method and hot spot stress method.
The main work is to use the finite element software ANSYS to model the steel truss bridge. The design elements are the continuous beam section of the main highway bridge of a Yangtze River Bridge. The finite element model of the superstructure of the bridge (mainly including bridge deck, longitudinal beam, cross beam and other supporting structures) is established. The whole model is used to analyze the structural forces, and the typical joints connecting the longitudinal beam and the transverse beam are selected for local modeling.According to the actual situation, two kinds of models before and after reinforcement are established. Firstly, the static bearing capacity of the joint model is analyzed, and the parts with poor bearing capacity are selected. Then, the load spectrum is compiled by collecting data, and the fatigue life is evaluated by S-N curve method. According to the bridge disease detection report, the fatigue performance of the pre-reinforced model was analyzed by fracture mechanics and the residual fatigue life was calculated.
The fatigue life of the joint model before and after strengthening under fatigue load was obtained by S-N curve method. Before strengthening, the fatigue life was calculated 887743 times due to the serious stress concentration problem. The problem of stress concentration in the reinforced model has been greatly improved. Under the same fatigue load, the cyclic stress amplitude can not reach the ultimate fatigue strength of the structure (that is, N gt;
), and the fatigue resistance of the structure has been greatly improved. Therefore, strengthening the joints or improving the local details of the structure is one of the important measures to improve the fatigue resistance of the structure.
Then, based on the fracture mechanics method, the fatigue crack growth is studied. The effects of different crack lengths on J integral and stress intensity factor are calculated. An example is completed to verify that the crack growth rate increases with the crack length.
Finally, this paper summarizes the research and puts forward some suggestions for the design of steel structure.
Keywords: Steel Truss Beam Bridges;Fatigue failure; Fatigue life; Crack simulation; Finite element modeling
目录
学位论文原创性声明 I
学位论文版权使用授权书 I
Abstract II
第1章 绪论 3
1.1 研究背景 3
1.1.1 钢桥节点疲劳问题 3
1.1.2 国内外研究现状 4
1.2 本文主要研究意义及内容 5
1.2.1 研究意义 5
1.2.2 研究内容 6
第2章 钢桥疲劳性能分析理论 7
2.1 结构疲劳破坏的基本概念 7
2.2 疲劳累积损伤理论 7
2.2.1 线性疲劳累积损伤理论 7
2.2.2 非线性疲劳累积损伤理论 8
2.2.3 概率疲劳累积损伤理论 11
2.2.4 对疲劳累积损伤理论的讨论 12
2.3 常用的疲劳寿命估算方法 12
2.3.1 S-N疲劳曲线法 12
2.3.2 局部应力-应变法 20
2.3.3 断裂力学法 21
2.4 本章小结 23
第3章 钢桁梁桥横梁节点建模 24
3.1 钢桁梁桥设计要素及其建模 24
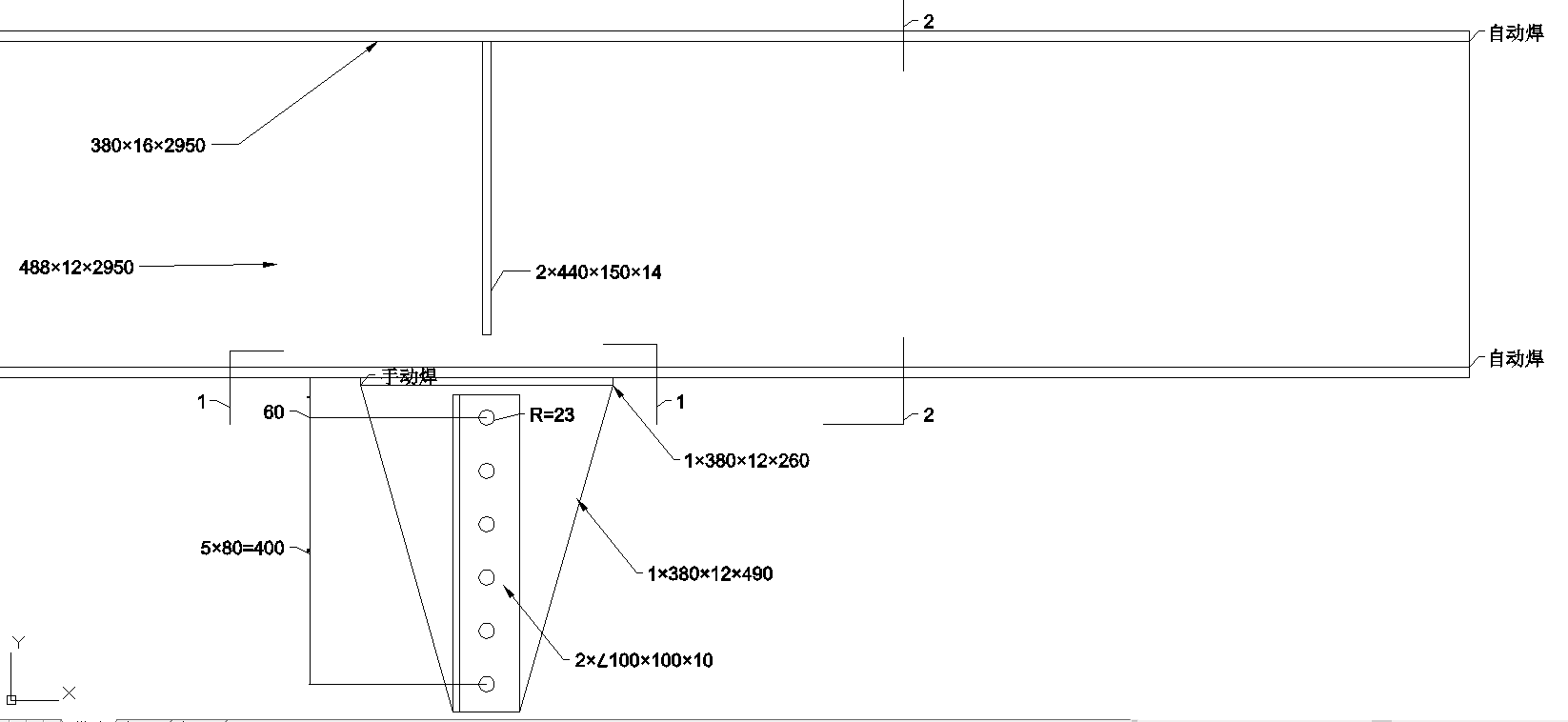
3.1.1 设计要素 24
3.1.2 建模分析 25
3.2 节点模型的建模与静力分析 26
3.2.1 节点模型建模 26
3.2.2 节点模型静力分析 30
3.3 本章小结 35
第4章 节点模型疲劳寿命评估 36
4.1 简单的荷载谱制定 36
4.2 S-N曲线法估算疲劳寿命 36
4.2.1 加固前模型 36
4.2.2 加固后模型 38
4.3 断裂力学法估算剩余疲劳寿命 39
4.4 本章小结 44
第5章 总结与展望 45
5.1 总结 45
5.2 展望 45
参考文献 46
致谢 47
绪论
研究背景
钢桥节点疲劳问题
钢桥,顾名思义就是以钢材建设而成的一种桥梁。钢桥与混凝土桥相比具有更低的梁高和更小的自重。美国于1874年在密西西比河上建造了圣路易斯(St.Louis)钢拱桥,这是世界上第一座大型钢桥。在二战以后,由于建造工艺的提高以及结构理论的发展,促使了更多的大型大跨度钢桥出现。虽然钢桥相对于混凝土桥梁来说具有很多自己的优势,比如具有更大的刚度和更高的强度,但它并不是完美的,除去金属的腐蚀问题之外最严重的就是它的疲劳问题。
一九六七年十二月十五日下午,位于美国西弗吉尼亚州与俄亥俄州之间的银桥(the Silver Bridge)在没有征兆的情况下骤然垮塌,据目击者的描述,横跨俄亥俄河三十九年且总长1460英尺的大桥“像一幅纸牌”,在不到二十秒的时间内坍塌并坠入河中。这次事故造成遇难者四十六人,三十七辆汽车被抛入河中。经事后调查发现,事故产生的原因是桥体的一处因为疲劳而发生的断裂。
一九九四年十月二十一日,伴随着一声巨大的声响,位于韩国汉城已经建成并通车使用十五年的Sungsoo大桥中部发生断裂,一块长达四十八米的桥面板落入水中,六辆汽车和两辆巴士直接跌进了汉江。事故后分析调查得知,主要原因是焊接与制造工艺的不准确,导致在很短时间内出现了疲劳裂缝,另一个原因是缺乏严格的桥梁养护与检测,导致没有及时发现疲劳裂缝并提前采取措施。
在过去的半个多世纪,钢结构上涌现了许多因为疲劳荷载而导致的局部构造病害,虽然有一些上文中发生疲劳破坏并最终造成严重损失的情况,但大多数还是被桥梁相关从业者很快的检查出来,及时采取措施避免了灾害的发生。这些因疲劳荷载导致的桥梁病害有一个相同的地方:就是发生破坏时钢结构所承受的荷载相比其静荷载下的承载力非常的小,而且荷载是动荷载。这种结构承受动荷载导致破坏就是我们平时所说的疲劳病害。
大型钢结构桥在其很长的使用时间内,由于疲劳荷载的作用、环境的影响和材料自身的缺陷等,必然会出现疲劳损伤、材料弱化,然后造成疲劳破坏;当其结构的疲劳破坏累积到一定程度时,往往会造成结构破坏和事故。从近年来世界上一些国家的桥梁破坏案例我们可以得知,钢桥节点的疲劳破坏是主要的疲劳破坏之一。同时,根据一些桥梁建设较早国家的桥梁病害报告可以得知,在使用几十年后,钢桥的疲劳损伤已经比较严重,并成为了日常维护的重点。因此,为保证桥梁在使用期间安全可靠,钢结构设计在能满足经济的要求的同时又能满足性能的要求,对钢桁架桥局部构造细节的疲劳性能进行深刻的研究是非常重要的。
国内外研究现状
历史上记载的世界上最早的与材料的疲劳有关的试验是一八二九年,由W.A.爱波特进行。十年之后,J.-V.Poncelet在他的文章中开创性的提出了使用“疲劳”(Fatigue)来形容“在反复荷载作用下的构件破坏现象”。世界上第一次对疲劳问题进行了专业实验研究的是德国人A.Wohler,他创造性的提出了应力疲劳曲线和疲劳强度的观念,创新性的指出了了疲劳循环荷载引起的应力循环是疲劳问题的最大影响因素,为后人所做的金属材料疲劳性能的研究指明了方向。
一九二四年J.V.帕姆格林创造性的提出了疲劳累积损伤理论中的线性损伤理论,1945年M.A.麦纳在帕姆格林的工作基础上发展性的提出:结构的疲劳损伤与结构所承受的疲劳荷载和应力循环次数之间存在线性关系。自然而然后来的学者就将其称之为Palmgren-Miner线性疲劳累积损伤定律,并在疲劳研究中得到了广泛运用。结构发生疲劳破坏时首先都会有裂纹的产生,之后在应力循环之下裂纹不断扩展,当裂纹扩展到一个临界限值时,无法承受应力集中,导致结构断裂破坏,但实际材料中不可能是没有缺陷的,总是会存在一些缺陷,因此在上世纪60年代有学者将断裂力学理论引入了疲劳研究之中。
G.R.欧文在1957年研究了中心具有裂纹的板件在垂直于裂纹的方向受拉伸的情况,把裂纹尺寸的平方根与应力的乘积定义为应力强度因子。1971年韦策尔建立了用局部应力—应变分析预估零件和构件在随机荷载历程下的疲劳寿命的较完整的方法,并给出了这种方法的计算程序,随后局部应力—应变法就以很快的速度进开始发展。
美国科学家J.M.费希尔在1974年经过了对大量规格合格的焊接钢梁进行疲劳试验得到的结果的分析,证明了对于焊缝工艺细节来说,不同细部构造的结构的抗疲劳能力主要由循环应力的脉动量
决定,而不是钢结构的强度等材料特性以及最大应力与应力比决定。
美国从1967年开始进行大规模钢材料的疲劳试验与研究分析,提出了根据循环应力幅值
和不同的结构布局类型来确定疲劳寿命N的方法。该方法一九七七年已被AASHT0公路桥梁规范和AREA铁路桥和钢结构规范所采用;日本钢结构协会疲劳设计指南和西德桥规DN804也先后采用了这些研究成果。
最近的二三十年,在断裂力学研究方向的疲劳性能分析研究得到了充分十足的发展,尤其是在以钢材为主要材料的桥梁中,这些新进行的研究和理论发展不仅能够为之前的疲劳性能研究提供更多的理论基础,也能够解决一些旧的疲劳性能研究所不能解决的问题。断裂力学法的最大特色就是可以依靠结构已经存在的裂纹来预估到破坏时所剩余的疲劳寿命。除此之外还可以根据应力强度因子来判定已经存在的裂纹在确定的疲劳荷载下是否会继续发生裂纹扩展,所以此方法对焊接钢结构的疲劳性能研究取得了优异的成效。
目前,疲劳性能分析的主要研究目标是使基于断裂力学的疲劳性能分析方法能像经典的“S-N”曲线疲劳性能分析方法那样大量应用于钢结构疲劳寿命评估,合理解释已经存在于结构上的大量裂纹并精准的进行钢结构剩余疲劳寿命的评估。
关于钢桥节点的疲劳性能研究,孙口黄河大桥、芜湖长江大桥都进行了整体节点的疲劳试验,西南交通大学与2005年完成了重庆菜园坝长江大桥的节点疲劳试验,重庆交通大学也于2008年完成了朝天门大桥的节点疲劳试验。这些节点疲劳试验成果除指导钢桥设计外,也为今后同类桥梁的设计提供参考,推动我国钢桥技术的发展。
本文主要研究意义及内容
研究意义
对于钢桥结构而言,节点是极其重要的一部分,一般来说也是整体结构上的最不利部位。在各个杆件连接的部位上,因为某些杆件会出现很大变形,所以导致这些杆件连接部位的应力发生了很大变化进而出现很严重的应力集中,再加上残余应力等不利因素的存在,如果再不断地受到应力循环的作用,必然会大幅增加裂纹产生的几率与其发展的速率,进而导致整体钢结构失去效力即使用寿命的降低。因此,钢结构节点的疲劳损伤问题应该受到桥梁相关工作者的着重研究。与此同时,为了保证我国当今正在使用的钢结构节点满足安全的要求,准确分析其在工作荷载引起的应力循环下的疲劳性能,推动我国桥梁与钢结构规范的大力发展,对钢结构节点局部构造细节的疲劳性能进行更深层次的研究至关重要。
通过该课题,培养我们查阅文献、独立思考、动手操作的能力,同时,让我们对国内外节点疲劳性能研究的现状有一定的认识;巩固大学所学的理论知识,学习很多其他知识如断裂力学、有限元等方面的知识,对ansys软件的建模操作也更加熟悉。另外,通过软件建模,掌握建模分析的基本步骤、方法与原则,学会对计算出的数据的分析,找到其中规律;利用实际案列来提高我们解决实际问题的能力,培养我们全方位、多层次的运用知识的能力和将理论与实践统一起来的能力。通过该课题,能更好的培养我们的主动性和耐性,培养我们的独立性和能吃苦的精神,为我们之后走上工作岗位打下坚实的基础。
研究内容
这次的毕业设计题目为“钢桁架桥横梁疲劳性能研究”,主要采取的研究方法有文献调查法、实验法、比较分析法。合理运用收集的资料,结合ansys软件,借鉴疲劳性能相关理论,建立钢桁梁桥模型,对其进行横梁节点应力分析,通过建立不同环境分析影响疲劳性能的因素,运用不同的方法来进行节点的疲劳寿命评估,分析比较并找出最合适的疲劳性能评估方法。研究结果可作为设计时的理论基础和实践依据。
以上是毕业论文大纲或资料介绍,该课题完整毕业论文、开题报告、任务书、程序设计、图纸设计等资料请添加微信获取,微信号:bysjorg。
相关图片展示:








        
            
