某多跨刚架系杆拱梁组合桥施工过程加载顺序分析毕业论文
2020-02-19 16:22:37
摘 要
本论文以漳州市东环城路马洲大桥为依托,对刚架系杆拱桥的施工技术进行研究。马洲大桥为35m 100m 150m 100m 35m=420m五跨连续拱桥,结构体系为刚架系杆拱梁组合桥,,拱起到主要的承载能力,通过吊杆主梁将节间荷载传递给拱肋,之后由拱脚将力传递到基础。论文通过数据模型的建立对桥梁的施工阶段进行分析,并对系杆吊杆张拉进行了分析,对马洲大桥的建设有一定指导意义。
本文的主要工作及结论如下:
1 详细的叙述了工程背景、自然条件、技术标准、桥型布置,结构设置、施工方案和项目重难点。
2 梳理了系杆拱桥的发展历史,分析了系杆拱桥的结构特点。
3 建立了马洲大桥的MIDAS模型,对马洲大桥的结构受力进行了计算。
4 探讨了吊杆索力调整的主要方法,并对马洲大桥的系杆吊杆张拉力进行了计算。
5 对马洲大桥的各施工阶段和成桥状态进行了分析,发现了桥面铺装阶段受力最为不利。同时对对桥梁设计进行了验证,桥梁受力符合安全要求。
关键词:刚架拱桥;有限元分析;施工顺序;吊杆索力
Abstract
Based on Mazhou Bridge of Donghuancheng Road in Zhangzhou City, this paper studies the construction technology of rigid frame tied arch bridge. Mazhou Bridge is a five-span continuous arch bridge with 35 m 100 m 150 m 100 m 35 m=420 M. The structure system is a rigid frame tied Arch-Girder composite bridge. The arch plays the main bearing capacity. The load between nodes is transmitted to the arch ribs through the main beam of the suspender, and then the force is transferred to the foundation by the arch foot. In this paper, the construction stage of the bridge is analyzed by establishing the data model, and the tension of the tied rod and suspender is analyzed, which has certain guiding significance for the construction of Mazhou Bridge.
The main work and conclusions of this paper are as follows:
1.This paper describes in detail the engineering background, natural conditions, technical standards, bridge layout, structural settings, construction schemes and key and difficult points of the project.
2.This paper combs the development history of tied arch bridge, and analyses the structural characteristics of tied arch bridge.
3.In this paper, the MIDAS model of Mazhou Bridge is established, and the structural stress of Mazhou Bridge is calculated.
4.In this paper, the main methods of adjusting suspender cable force are discussed, and the tension force of tied suspender of Mazhou Bridge is calculated.
5.In this paper, the construction stages and completion status of Mazhou Bridge are analyzed, and the most disadvantageous force is found in the deck pavement stage. At the same time, the design of the bridge is verified, and the force of the bridge meets the safety requirements.
Key Words:Rigid Frame Arch Bridge; Finite Element Analysis; Construction Sequence; Suspender Cable Force
目 录
第一章 绪论 1
1.1 系杆拱桥发展 1
1.2 系杆拱桥特点 2
1.3 国内外研究现状 2
1.4 本文研究内容 3
第二章 系杆拱桥的施工 4
2.1 项目概况 4
2.1.1 技术标准 5
2.1.2 桥型布置 5
2.1.3 结构参数 6
2.2 常规系杆拱桥的施工方法 8
2.3 本桥的施工顺序及方法 9
2.4 项目重、难点 10
第三章 系杆拱桥施工过程有限元建模与分析 11
3.1 有限元结构模型建立 11
3.1.1 主要计算参数选取 11
3.1.2 边界条件的设置 11
3.1.3 MIDAS有限元模型 11
3.1.4 施工阶段的划分 13
3.2 结构性能分析 14
3.2.1 施工阶段分析 14
3.2.2 成桥内力分析 16
3.2.3 温度荷载分析 18
3.2.4 活载分析 19
第四章 水平系杆及吊杆索力调整及分析 21
4.1 系杆及吊杆张拉力的调整方法 21
4.2系杆及吊杆张拉力的结果 21
第五章 结论与展望 24
5.1 结论 24
5.2 展望 24
参考文献 26
致谢 27
第一章 绪论
1.1 系杆拱桥发展
拱桥是所有桥梁体系中变化最多的结构。拱桥有简单体系拱桥和组合体系拱桥两种。按桥墩受力可分为有推力与无推力体系拱桥。新材料、新工艺和新理论的出现,大大推动了拱桥体系的发展,使拱桥形式绰约多姿。拱桥和梁桥的外观不尽相同,在受力状态方面更是差异明显。由力学知识可知,在竖向荷载作用下,梁在支承处将仅受到竖向反力作用,而供在竖向荷载作用下,支承处将同时受到竖向和水平反力的共同作用[1]。这个水平反力的反用力,被称为水平推力。水平反力的作用使得拱承受的弯矩相较于梁桥承受的弯矩小很多,从而可以看作只承受轴向压力作用。这样,拱桥就可以用承压能力较强而抗拉能力较差的材料进行建造。
在古代由于科技水平的限制,石拱桥是应用最广泛的拱式桥。石拱桥具有很高的承载能力并且耐用性好。但随着现代化桥梁跨度越来越大,石拱桥自重大,且存在较大的水平推力,桥墩的强度要求大,地质要求高,限制了拱桥技术的广泛应用[2]。
18世纪中期至20世纪中期拱桥技术的发展主要体现在4个方面,设计理论、制造材料、施工方法及体系改进。弹性拱理论的完善产生了两铰拱和三铰拱桥,随着工程师们对不同构件共同作用的深人理解及简化计算的进步,出现了梁拱组合体系桥梁的设计思想。铸铁、锻铁、钢等金属材料和钢筋混凝土、钢管混凝土等新材料的应用使拱结构的实现有了多种可能,出现了肋拱、箱拱、桁架拱等。悬臂施工、劲性骨架施工(米兰法)、顶推改变压力线等施工方法的应用促进了大跨径拱桥的发展。
19世纪中期,欧洲出现了梁拱组合体系桥梁,由于计算复杂,近代建成的实桥数量有限。梁拱组合体系是在桥梁结构中包含了拱和梁这两种基本结构,拱和梁在结构中都分担一部分荷载。这时梁主要承受弯矩,而拱肋主要承受轴力,两者的材料特性得到充分发挥,降低了了工程造价也提高了结构安全性。
在地基条件较差的情况下,拱的水平推力对桥墩不利。为了平衡水平推力,产生了在拱肋两端之间设置拉杆的拱结构,称为系杆拱。1858年,奥地利人兰格尔设计了一种结构,其中的拱只分担轴力作用,梁可以分担水平推力和弯矩,并申请了专利。这种结构后来被称为刚性梁柔性拱桥,也可以叫做兰格尔桥。1881 年.兰格尔设计建造了第一座刚梁柔拱组合体系桥梁。还有一种拱梁结合桥为刚拱刚梁组合体系桥梁(洛泽桥)。19世纪末,德国易北河上制造了一座跨径为96.35m的10跨透镜形弦杆铁路桥,这是史上的第一座洛泽拱桥。1909年,法国建成麦斯纳桥,总长75m,拱跨径为60m,是早期的钢筋混凝上刚拱刚梁组合体系拱桥[3]。
尼尔森在为了提高结构的刚度同时减小拱肋和系梁的弯矩,在结构中采用了斜吊杆而不是竖直吊杆。这个技术在1929年被申请为专利。当时尼尔森体系的应用十分狭窄,只有几座尼尔森拱桥,直到现代才得到应用。
1.2 系杆拱桥特点
系杆拱桥是由拱肋、梁、系杆、吊杆和桥面铺装等组成的梁拱组合体系,可以跨越较大的河流、峡谷并且梁部结构高度小同时外形看着舒适大方。梁拱组合体系是在桥梁结构中包含了拱和梁这两种基本结构,拱和梁在结构中都分担一部分荷载。这时梁主要承受弯矩,而拱肋主要承受轴力,两者的材料特性得到充分发挥,减少了工程造价也提高了结构安全性。在系杆拱桥中,系杆既可以承受自重,也可以将活载作用均匀分布,同时起到平衡拱脚水平推力的作用;拱肋主要承受压力;吊杆则调节拱梁之间的受力,桥面荷载通过其传递给拱肋。系杆、拱肋和吊杆等构件各自具有多样的截面形式,相互间也有多种组合形式,也就有了富有变化的系杆拱桥形式。
系杆和拱肋的材料截面不同其刚度也不同。不同的刚度组合,桥梁的受力也有所不同,因此系杆拱桥可分为柔性系杆刚性拱、刚性系杆柔性拱以及刚性系杆刚性拱等三种结构体系。
(1)柔性系杆刚性拱
柔性系杆刚性拱中,拱肋的刚度相对较大,因此产生的内力也较大,此时可以认为拱肋将会承受结构中中所有的弯矩作用,而系杆只承受拉力。
(2)刚性系杆柔性拱
刚性系杆柔性拱和柔性系杆刚性拱正好相反,拱肋的刚度远小于系杆,在这种情况下,拱肋可认为只承受轴向压力作用,而系杆则同时承受弯矩和水平推力。
(3)刚性系杆刚性拱
刚性系杆刚性拱组合体系的特点介于上述两种体系之间,结构中拱肋和系杆的抗弯刚度相当,两者同时分担荷载引起的弯矩作用,此组合体系适用于桥梁设计荷载较大的情况。
1.3 国内外研究现状
国内外学者对系杆拱桥的受力特性及施工监测与控制进行了大量研究。孙广俊,李正嘉,章世祥,等希望能够发现系杆拱桥在主要承重部位有损伤之后内力的变化规律和安全性,利用有限元软件建立了某个钢管混凝土系杆拱桥的全桥模型,定义了不同的阶段模拟了吊杆损伤、吊杆失效和拱肋损伤,比较了该桥在损伤前后的结构受力,分析了损伤状态对其动力特性、稳定性、结构位移和内力的影响[4];汤虎,邵长宇,颜海为明确大跨度组合桥面系杆拱桥的力学与经济性能,针对主跨200m的桥梁,进行3种系杆拱桥方案(组合桥面、竖直吊杆;正交异性钢桥面、竖直吊杆;组合桥面、网状吊杆)的试设计研究[5];祁强,张戎令,胡锐鹏,等为研究系杆拱桥在施工过程吊杆索力变化规律,制作了河特大桥的缩放模型并模拟了系杆拱桥的吊杆张拉过程,分别采用常见的2种跳跃式张拉顺序,记录和分析了吊杆在张拉过程中的索力变化[6];李浩师,黄平明,王涛,等在现有等步长更换的基础上,为减小更换吊杆对相邻吊杆索力和桥面线形的影响,对吊杆张拉方案进行研究,提出采用差值法进行梯度张拉和卸载[7];许汉铮、蔡昌伟和李浩师利用有限元软件用差值迭代法和正装迭代法建立了吊杆张拉模型,同时求出施工索力。对比分析施工过程及成桥状态下系杆、拱肋内力及变形差异,探讨这两种方法的适用性[8];Torkamani,Morteza A.M.和Hak E. Lee研究了钢桥面、系杆、拱桥在地震作用下的动力响应[9]。
1.4 本文研究内容
系杆拱桥由于其变化多样的结构、轻盈美观的外形以及优秀的受力状态在桥梁建筑中得到了大量的应用,各种关于系杆拱桥的研究也随之展开。本文以马洲大桥的建模计算为基础,对系杆拱桥的结构进行以下点的研究工作:
(1)采用MIDAS软件建立了马洲大桥的数值模型,并按照施工方案划分了施工阶段,并添加了温度荷载和车辆荷载。得到了各个施工阶段和成桥状态下的内力状态与变形图,同时掌握了温度荷载和车辆荷载下的受力水平与变形规律。
(2)对马洲大桥的系杆和吊杆的张拉力进行了计算分析,并对吊杆的张拉力的计算方法进行了一些探讨,比较了几种方法之间的适用性与误差。
第二章 系杆拱桥的施工
2.1 项目概况
漳州市东环城路及其接线工程起点位于联六线龙文段,往南跨漳龙高速,沿云洞岩西麓走行,跨越九龙江后至项目终点象镇互通,主线全长8.237km。采用城市快速路兼一级公路标准,A3合同段主线起点位于迎宾互通匝道鼻端处(迎宾互通主线桥中 部,桩号 K6 550),路线由北往南布设,设北江滨路互通与已建的北江滨路交叉,建马洲大桥(马洲大桥35m 100m 150m 100m 35m=420m五跨连续拱桥,起始桩号K7 022,终点桩号 K7 442,主跨跨径 150m)跨九龙江,之后设南江滨互通对接规划的南江滨路,终点与在建的厦漳同城大道象镇互通对接(桩号 K8 237.523),A3合同段 主线全长 1.688 公里。
规划中的东环城路将北接北环城路,途经云洞岩风景名胜区、蓝田经济开发区,跨越九龙江西溪,南至象镇互通,将完善漳州环城道路的路网格局,有效疏解城市过境交通,加快城市建设的步伐。马洲大桥是规划东环城路的重要连接点,也是漳州主城区重要的过江通道。随着马洲大桥的建设,漳州市市民的交通将更加便捷,城市将更加紧密的连接起来,加速经济发展和城市建设。
图2.1 项目总体设计布置图
图2.2 项目总体立面图
2.1.1 技术标准
道路等级:城市快速路
设计行车速度:60km/h
机动车车道数:10道
一条机动车道宽度:3.75m
最小净高度:机动车道 4.5m;非机动车道 2.5m
车辆荷载等级:桥涵 城-A 级;路面 标准轴载 BZZ-100
洪水频率:100年一遇
地震烈度:场地基本烈度为七度,0.15g
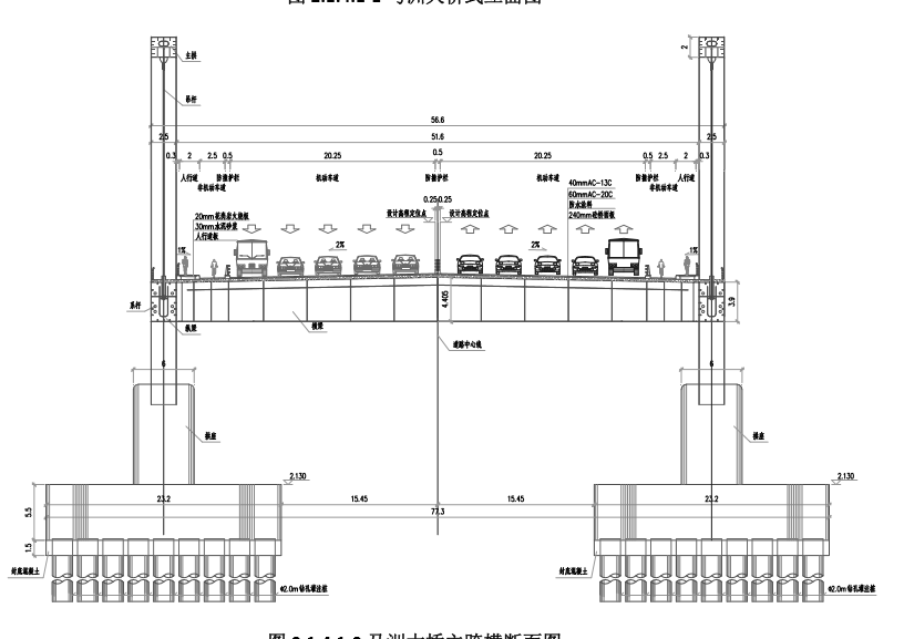
2.1.2 桥型布置
马洲大桥为35m 100m 150m 100m 35m=420m五跨连续拱桥,起始桩号K7 022, 终点桩号 K7 442,桥梁标准横断面具体布置为:0.3m(人行护栏) 2.0m(人行道)  2.5m(非机动车道)  0.5m(防撞护栏)  20m(机动车道)  0.25m(安全宽度)  0.5m(防 撞护栏) 0.25m(安全宽度) 20m(机动车道) 0.5m(防撞护栏) 2.5m(非机动车道) 2.0m(人行道) 0.3m(人行护栏)=51.6m,两侧各有 2.5m 宽拱肋,结构全宽 56.6m。
图2.3 马洲大桥主跨横断面
图2.4 马洲大桥立面图
2.1.3 结构参数
(1)主拱结构
本桥拱肋由中跨拱肋、次中跨拱肋以及边拱拱肋组成。三个拱肋跨度分别为150m、100m以及35m,拱肋矢高分别为33.3m、20m以及8m,拱轴线均采用二次抛物线。
①拱结构系统总体设计
拱肋采用钢结构矩形断面,截面宽度均为2.5m,高度由各拱拱顶高度2m按弧长线性变化至拱脚处4m,拱肋分别在中墩(次中墩)处与墩柱固结,结构关于主桥跨中对称布置。拱肋横桥向在拱梁节段处通过横梁相连,出于行车景观考虑,在保证拱 肋受力安全和侧向稳定前提下,全桥不设横向风撑。拱肋均采用Q345qD钢材。
②拱肋结构
拱肋采用矩形断面,截面宽2.5m,高度2~4m,拱肋截面顶、底以及腹板板厚由 拱顶处 32mm 变化至拱脚处50mm。纵向加劲肋采用扁钢加劲,板厚28~36mm,高 度 280~400mm。每隔2.7m左右设一道横向隔板或加劲,板厚16~24mm,垂直拱轴线设置。
③拱梁节点
拱梁节点采用拱肋板件贯通,主梁板件断开的设计形式。通过在相应位置设置竖直、水平向隔板与主纵梁、横梁相连。为优化节点受力,拱肋与主纵梁腹板采用整体节点板形式,均为50mm厚Z向板。
④拱脚结构
由于传力与连接构造需要,拱脚采用在混凝土拱座中预埋开孔板件形式与钢拱肋相连。拱脚处拱肋由三道腹板组成,开孔板对应两侧拱肋底板以及拱轴交点设置。通过开设φ75mm圆孔、布设φ22×200焊钉以及内填混凝土的形式实现拱肋向墩柱可靠、均匀传力的目的。
(2)主梁结构
本桥主梁采用组合梁,钢与混凝土通过剪力键相结合。钢梁部分由纵梁、横梁及小纵梁共同组成钢梁格体系。加劲梁标准段水平投影长度为8.0m,水平向每4.0m设一道横梁,两横梁之间设一道横向加劲。纵梁与横梁间、纵梁节段之间均采用焊接连接;混凝土板之间采用现浇湿接缝进行连接。
(3)钢主纵梁
标准段的编号为ZL1、ZLla、ZL1b、ZL2、ZL3,共设两片闭口箱形钢纵梁,两纵梁 腹板中心线间距54.1m。纵梁顶板宽 2.83m,板厚 20mm;腹板高3.76~3.86m,板厚20~32mm,腹板设五道纵向加劲,并且每隔2.0m设置一道竖向加劲;底板宽2.5m,板厚20mm。合龙段的编号为HLD,共设两片闭口箱形钢纵梁,两纵梁腹板中心线间距54.1m。纵梁顶板宽 2.5m,板厚20mm;腹板高3.86m,板厚 20mm,腹板设五道纵向加劲,并且每隔2.0m设置一道竖向加劲;底板宽2.5m,板厚 20mm。边跨梁拱节点的编号为B-LGJD,共设两片闭口箱形钢纵梁,两纵梁腹板中心线间距54.1m。纵梁顶板宽2.5m,板厚32mm;腹板高3.86m,板厚28~36mm,腹板设五道纵向加劲,并且每隔2.0m设置一道隔板;底板宽2.5m,板厚40mm。纵梁采用 Q345qD 钢材,梁拱节点的系杆锚固区腹板有 Z 向性能要求。
(4)钢横梁
以上是毕业论文大纲或资料介绍,该课题完整毕业论文、开题报告、任务书、程序设计、图纸设计等资料请添加微信获取,微信号:bysjorg。
相关图片展示:








        
            
