北铭河大桥设计毕业论文
2020-02-19 16:22:20
摘 要
本设计为北铭河大桥的设计计算,根据设计资料,以经济、安全、适用、美观为原则进行方案比选。最后选取桥梁为两跨预应力混凝土T型连续梁桥,沿跨中对称布置。主梁采用变截面预应力混凝土T型梁桥。施工采用平先简支后连续法。
设计内容为根据设计资料进行方案比选,确定桥型为二跨预应力混凝土连续梁桥。拟定T型梁的截面尺寸,计算各个控制截面的内力,根据内力分析估计预应力钢筋和普通钢筋的数量并对其进行布置。计算预应力钢筋产生的应力损失,计算配束后的内力组合。对截面进行承载力复核,计算持久状态和短暂状态下各截面的应力验算。通过本次毕业设计,对本专业知识进行系统学习并掌握桥梁设计的基本步骤,对今后的学习有着重要意义。
关键词:预应力混凝土;连续梁桥;T型截面
Abstract
This design is the design calculation of Beiminghe Bridge. According to the design data, the scheme is compared with the principle of economy, safety, application and beauty. Finally, the bridge is selected as a two-span prestressed concrete T-shaped continuous beam bridge, which is symmetrically arranged along the span. The main beam adopts variable-section prestressed concrete T-beam bridge. The construction adopts the continuous method of simple and simple support.
The design content is based on the design and comparison of the design data to determine the bridge type as a two-span prestressed concrete continuous beam bridge. The cross-sectional dimensions of the T-beam are drawn, the internal forces of each control section are calculated, and the number of pre-stressed steel bars and ordinary steel bars is estimated and arranged according to internal force analysis. Calculate the stress loss caused by the prestressed steel bars and calculate the internal force combination after the distribution. The bearing capacity of the section is reviewed, and the stress check of each section in the permanent state and the transient state is calculated. Through this graduation design, systematic learning of this professional knowledge and mastering the basic steps of bridge design are of great significance for future study.
Key words: prestressed concrete; continuous beam bridge; T-section
目录
第1章 绪论 1
1.1. 设计概况 1
1.2. 基础资料 1
第2章 桥型方案比选 3
2.1. 初拟技术方案 3
2.2. 方案比选 3
2.2.1. 方案一:三跨预应力混凝土空心板简支梁桥 3
2.2.2. 方案二:二跨预应力混凝土连续T梁桥 5
2.2.3. 方案三:梁拱组合体系桥 6
2.3. 桥型选择 7
第3章 设计资料及构造尺寸 9
3.1. 设计基本资料 9
3.2. 构造布置及尺寸 10
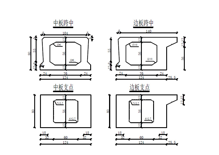
3.2.1. 主梁截面尺寸 10
3.2.2. 上部构造图 10
3.2.3. 横截面沿跨长的变化 11
3.2.4. 横隔梁的设置 11
第4章 主梁全截面几何特性 12
4.1. 计算原理 12
4.2. 截面几何特性计算结果 13
第5章 内力计算 14
5.1. 结构自重效应计算 14
5.1.1. 结构自重作用荷载集度计算 14
5.1.2. 结构自重内力计算 15
5.2. 汽车荷载内力计算 21
5.2.1. 荷载分布系数 21
5.2.2. 公路II级集中荷载计算 23
5.2.3. 冲击系数和车道折减系数 23
5.2.4. 汽车荷载效应内力计算 24
5.3. 温差内力及基础沉降计算 25
5.3.1. 温差内力计算 25
5.3.2. 基础沉降计算 27
5.4. 内力组合 27
第6章 预应力钢束估算及布置 31
6.1. 预应力钢束估算 31
6.2. 预应力钢束布置 37
6.2.1. 钢束各控制点的确定 37
6.3. 非预应力筋布置 39
6.4. 主梁净、换算截面几何特性计算 40
第7章 预应力损失及有效应力计算 43
7.1. 预应力损失计算 43
7.1.1. 后张法由预应力钢筋与管道摩擦引起的应力损失。 43
7.1.2. 后张法由锚具变形、钢筋回缩和接缝压缩引起的应力损失 44
7.1.3. 后张法由混凝土弹性压缩引起的应力损失 45
7.1.4. 后张法由钢筋松弛引起的预应力损失终极值 46
7.1.5. 后张法由混凝土收缩、徐变引起的预应力损失 47
7.1.6. 截面预应力损失合计和有效预应力 49
7.2. 配束后主梁内力计算及内力组合 50
第8章 截面强度验算 53
8.1. 正截面承载力计算 53
第9章 第九章抗裂验算 55
9.1. 计算要求 55
9.2. 正截面抗裂验算 55
9.3. 斜截面抗裂验算 58
第10章 应力验算 61
10.1.持久状况构件的应力验算 61
10.1.1.正截面混凝土压应力验算 61
10.1.2.预应力筋拉应力验算 62
10.1.3.混凝土主压应力验算 63
10.2.短暂状况下的应力计算 66
参考文献 67
致谢 69
绪论
设计概况
北铭河大桥位于湖北省鄂州市境内,全桥桥梁采用相对桩号系统,桥梁中心桩号K0 022.54,桥梁全长45.08米,桥面铺装上层为沥青混凝土,下层为C40混凝土现浇层。
本桥平面位于直线段内,桥梁中心线与水流方向交角为90°;立面部分位于竖直线上,纵坡1.0%。
基础资料
1、气象
北铭河大桥桥址位于鄂州市葛店镇大湾境内,所经地区主要属冲积平原及湖区,零星分散有丘陵,海拔15-50m。本区属亚热带季风气候过渡区,四季分明,年平均气温17℃,最高40.7℃,最低-12℃,年平均降雨量1241mm,无霜期266天。
2、工程地质
根据勘探资料,按《公路桥涵地基与基础设计规范》,查表确定桥位处各地基岩土分层承载力
及钻孔灌注桩桩周土极限摩阻力
(kPa)值如下表:
岩土工程设计参数建议值
地层编号  | 岩土名称  | 状态  | 承载力基本容许值[fa0](kPa)  | 桩侧摩阻力标准值qik(kPa)  | 岩石天然单轴抗压强度frk(MPa)  | 
③  | 粉质粘土  | 硬塑状  | 320  | 65  | /  | 
④  | 泥质粉砂岩  | 强风化  | 260  | 60  | /  | 
⑤  | 泥质粉砂岩  | 中风化  | 380  | /  | 1.2  | 
3、水文地质条件
根据勘测资料,场地地下水类型为上层滞水,主要赋存于上部的填土层中,其补给来源主要为大气降水及河水。勘察期间测得地下水静止水位埋深为3.1-3.3m。
4、地震动参数
根据《中国地震动参数区划图》(GB18306-2001),湖北省鄂州市抗震设防烈度属六度区,桥址区属Ⅱ类建筑场地,设计基本地震加速度值为0.05g,地震动反应谱特征周期T=0.35s。
5、不良地质
拟拟建桥址处岩土种类简单,无特殊类型土层,无岩溶、滑坡、泥石流、采空区、地面沉降等不良地质作用,场区范围内没有活动性断裂通过。
桥型方案比选
初拟技术方案
考虑总体施工布局和本桥梁工程设计的结构形式,公路上合理桥型的选择总结起来有以下几点:1)桥型方案的选择应结合当地自然环境和交通条件的特点,选择最合理的桥梁上部结构。2)桥型方案选择应适应当地路况和往来车辆的特点,不但要选用布局简单、造型简捷、技术成熟、可靠,工程方案经济、合理,施工方便桥型,而且还要充分考虑结构的耐久性和运营期间的养护费用。
根据当地实际地形,其中包括地型、地貌条件、地质条件和外部环境,初步拟定主桥部分以下3种方案:
三跨预应力混凝土空心板简支梁桥方案
三跨预应力混凝土连续T梁桥方案
梁拱组合体系桥方案
方案比选
方案一:三跨预应力混凝土空心板简支梁桥
(1)桥型介绍
三跨预应力混凝土简支空心板桥是常用的一种桥梁结构形式,属于静定体系。与钢筋混凝土梁桥相比,能节省很多材料。其在恒载、活载作用下,主梁的受力明确,主梁截面尺寸较小,结构抗弯抗扭性能好。可采用顶推法、逐跨施工法、预制安装法施工,充分应用预应力技术的优点使施工设备机械化,生产工厂化;采用预制主梁,然后安装就位,张拉预应力钢筋,施工速度快,主梁质量有保证。
(2)尺寸拟定
① 桥跨布置
采用三跨简支梁,三跨采用等跨布置,初步确定桥跨布置为:3×13m,总长为39m.布置图如图2.1所示。

图2.1 桥型布置图(三跨空心板简支梁)
②截面尺寸
根据已建成的桥梁资料分析,主梁截面的梁高,截面细部构造图如图2.2所示。

图2.2 截面细部构造图(三跨空心板简支梁方案)
③下部结构
墩身采用圆形实心墩,桥台采用柱式桥台,基础采用钻孔灌注桩基础。
(4)施工方案设计
结合当地自然条件和施工环境,本次施工采用预制安装法施工。
方案二:二跨预应力混凝土连续T梁桥
(1)桥型介绍
预应力混凝土连续T梁是目前较为成熟的一种桥梁结构形式,属于超静定体系。其在恒载,活载作用下产生的支点负弯矩对跨中正弯矩有卸载的作用,使其内力分布比较均匀。结构刚度大,变形小,动力性能好,其具有建桥速度快、工期短、模板支架少等优点而应用广泛。
(2)尺寸拟定
① 桥跨布置
确定桥跨布置为:21 21,总长为42米。布置图如图2.3所示

图2.3 桥型布置图(二跨连续T梁)
②截面尺寸
根据已建成桥的资料,确定T梁的截面尺寸,其截面细部构造图如图2.4所示。

图2.4 截面细部构造图(连续T梁)
③下部结构
从受力性能上考虑,连续T梁与三跨空心板桥的受力一致,其基础构造与三跨简支空心板桥相同。
(4)施工方法设计
从施工上考虑,连续T梁可采用悬臂施工和先简支后连续。考虑到本桥跨径较短,采用先简支后连续施工更为方便、快捷,因此采用先简支后连续施工。
方案三:梁拱组合体系桥
(1)桥型介绍
拱桥是我国公路上使用较广泛的一种桥型。拱桥与梁桥不仅在于外形上有着明显的区别,而且两者的受力方面有着很大的不同。由力学知,拱桥结构在竖向荷载作用下,两端将产生水平推力。这种水平推力,使拱内产生轴向压力,可以显著抵消荷载所在拱圈内引起的弯矩,截面上的应力分布与受弯梁的应力相比,较为均匀。因此,可以充分发挥主拱截面材料强度,使跨越能力增大。
(2)尺寸拟定
① 桥跨布置
桥跨布置为一跨48m,其布置图如图2.5所示。

图2.5 桥型布置图(梁拱组合体系桥)
②截面尺寸
主拱圈采用等截面矩形钢筋混凝土截面,主梁为厚度0.2m实心板,横梁为
矩形截面,横向联系为
矩形截面,吊杆为柔性吊杆,采用冷轧粗钢筋。
③下部结构
主拱圈基础采用群桩基础。
(4)施工方法设计
对于主拱圈的施工,常见的施工方法有悬臂浇筑法、悬臂拼装法、转体施工法等,对于此桥,考虑到施工环境的影响,采用缆索吊装拼装法。拱上建筑简支T梁采用预制安装法,以缩短工期。
桥型选择
各方案各指标如表2.1所示:
表2.1 方案比选指标
桥型方案 比较指标  | 方案一简支梁桥  | 方案二连续梁桥  | 方案三拱桥  | 
桥型介绍  | 三跨简支梁桥,跨径13×3m  | 两跨预应力混凝土简支T梁桥,跨径21×2m  | 预应力混凝土拱桥,跨径48m  | 
截面形式  | 空心板  | T型截面  | 单箱双室箱型截面  | 
施工方法  | 平衡悬臂浇筑施工法  | 先简支后连续施工  | 平衡悬臂施工法  | 
优点  | 结构比较简单,制作方便,抗扭能力强,吊装方便,不需较大的起重设备  | 自重小,承载能力大,受力好,线形美观,能充分发挥材料的性能,施工便利,快速  | 线路平顺、通畅、安全,技术成熟,施工简便、养护费用低,抗震性好,无需支座,节省大量支座费用,比较美  | 
缺点  | 需多设几个桥墩。整个桥面整体性差  | 施工较复杂,对技术要求较高  | 要求地基条件良好,石料充足,对基础的要求较高  | 
经济性  | 上部结构造价较搞,施工虽无需大型设备,降低成本,但需大型支座,养护费较低  | 上部结构造价较低,成桥后养护费用较低  | 桥梁整体造价较高,但无需支座,且后期养护费用少  | 
比选结果  | 比选方案  | 推荐方案  | 比选方案  | 
经过比较,我们选用连续梁桥方案作为北铭河大桥设计方案。
设计资料及构造尺寸
设计基本资料
桥梁线型布置:无平曲线,纵坡1%,墩台中心线平行布置,全桥设1.5%单向横坡。
桥梁全长45.08米,上部构造采用2
21m预应力T型梁,计算跨径
。施工方法为简支转连续。
桥面宽度:5.5m=0.5m防撞栏杆 4.5m机动车道 0.5m防撞栏杆。
设计荷载:公路Ⅱ级。
主梁片数:两幅,每幅各三片梁。
主要材料:桥面铺装上层为10cm沥青混凝土,下层为10cmC40混凝土现浇层;T型截面连续梁采用C50混凝土,墩身、系梁、盖梁、桥台耳背墙、栏杆均采用C30混凝土,桩基采用C25水下混凝土。钢筋:普通钢筋主要采用HRB335钢筋;预应力钢筋采用GB/T5224-1995标准低松弛高强度钢绞线,
=1860MPa,公称直径15.24mm,公称面积140
。支座:桥梁支座采用GYZ板式橡胶支座。桥面防水采用FYT-1新型防水层。桥型布置图如图3.1所示。

以上是毕业论文大纲或资料介绍,该课题完整毕业论文、开题报告、任务书、程序设计、图纸设计等资料请添加微信获取,微信号:bysjorg。
相关图片展示:








        
            
